Chào các bạn, hôm nay, Techhome sẽ giới thiệu đến các bạn một công trình mà mình cực kỳ tâm đắc: Mẫu nhà của cô Oanh tại Việt Trì. Đây là một điển hình cho dòng biệt thự mái Mansard tân cổ điển đang làm mưa làm gió trên các hội nhóm yêu nhà đẹp.
1. Tại sao biệt thự mái Mansard tân cổ điển lại được ưa chuộng?
Nếu bạn dạo quanh các trang mạng xã hội, bạn sẽ thấy từ khóa biệt thự mái Mansard tân cổ điển luôn nằm trong top tìm kiếm. Lý do rất đơn giản: nó đẹp, nó sang và nó không bao giờ lỗi mốt. Với thiết kế mái hình thang úp ngược đặc trưng, dòng nhà này tạo ra một không gian uy nghi như những tòa lâu đài Pháp cổ điển.
Tại dự án của cô Oanh, Techhome đã khéo léo kết hợp hệ mái màu xanh ghi với tông sơn trắng sứ. Sự đối lập này giúp mẫu biệt thự mái Mansard tân cổ điển trở nên nổi bật giữa khu phố Việt Trì.

2. Chi tiết kiến trúc ngoại thất đầy mê hoặc
Nhìn vào phối cảnh 3D, ta thấy rõ cái “hồn” của biệt thự mái Mansard tân cổ điển. Hệ thống cột trụ tròn vững chãi tại sảnh chính không chỉ có tác dụng chịu lực mà còn tạo nên vẻ đẹp bề thế. Các đường phào chỉ được đắp vẽ tỉ mỉ, không quá rườm rà nhưng đủ để khẳng định đẳng cấp của gia chủ.
Một điểm nhấn khác của biệt thự mái Mansard tân cổ điển chính là hệ thống cửa vòm. Những ô cửa kính lớn giúp lấy sáng tự nhiên tối đa, phá bỏ sự bí bách thường thấy của nhà phố.
Ngay từ cái nhìn đầu tiên, ngôi nhà hiện lên với sắc trắng tinh khôi chủ đạo. Điểm nhấn đắt giá nhất chính là hệ mái Mansard màu xanh đậm, tạo nên vẻ bề thế như những tòa lâu đài thu nhỏ giữa lòng Việt Trì. Đây là phong cách mà Nhà đẹp Techhome cực kỳ tâm đắc khi tư vấn cho khách hàng phân khúc cao cấp.
Mặt tiền ấn tượng
Hệ cột trụ tròn được thiết kế tỉ mỉ tại sảnh chính, kết hợp với các đường phào chỉ uốn lượn mềm mại. Cửa chính bằng gỗ tự nhiên màu nâu ấm áp đối lập hoàn hảo với màu sơn trắng, tạo cảm giác chào đón ngay từ bậc ngũ cấp. Các cửa sổ được thiết kế dạng vòm, sử dụng nhôm kính xingfa cao cấp để lấy sáng tối đa, đúng như tôn chỉ của Nhà đẹp Techhome là mang thiên nhiên vào nhà.
Hệ thống cổng và tường rào
Không thể không nhắc đến bộ cổng nhôm đúc mạ đồng với hoa văn tinh xảo. Nó không chỉ bảo vệ ngôi nhà mà còn là “lời chào” khẳng định vị thế của gia chủ. Tường rào được xây dựng kiên cố nhưng vẫn có những khoảng hở nghệ thuật để không làm bí bách không gian.

3. Giải pháp công năng “chiều lòng” gia chủ
Không chỉ đẹp ở vẻ ngoài, nội hàm của căn biệt thự mái Mansard tân cổ điển này được các kiến trúc sư và KS tính toán cực kỳ kỹ lưỡng.
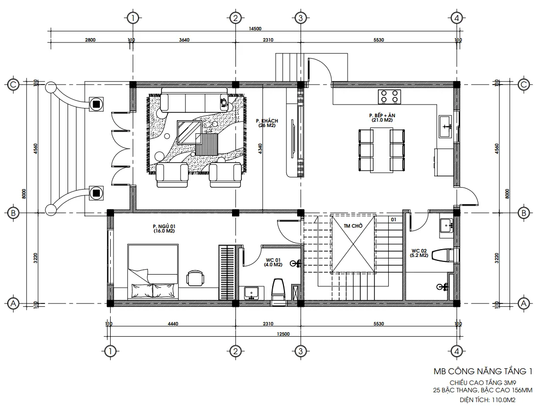
Mặt bằng tầng 1: Nơi gắn kết yêu thương
Với diện tích 110 m2, tầng 1 bao gồm:
-
Phòng khách (26 m2): Không gian rộng mở, là “bộ mặt” của căn biệt thự mái Mansard tân cổ điển.
-
Phòng bếp + ăn (21 m2): Nơi giữ lửa ấm cho gia đình.
-
Phòng ngủ 01 (16 m2): Tiện lợi cho việc nghỉ ngơi mà không cần leo cầu thang, kết hợp với vệ sinh khép kín WC 01 4m2.
-
WC và Thang máy: Hệ thống thang bộ 25 bậc cùng thang máy chờ hiện đại.

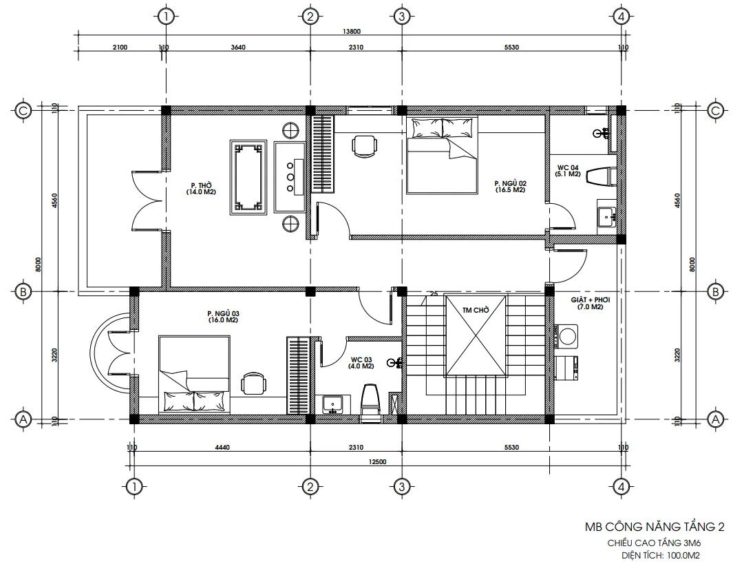
Mặt bằng tầng 2: Sự riêng tư tuyệt đối
Tầng 2 của biệt thự mái Mansard tân cổ điển rộng 100 m2, tập trung vào nghỉ ngơi:
-
Phòng thờ (14 m2): Vị trí trang trọng hướng ra mặt tiền.
-
Phòng ngủ 02 & 03: Diện tích lần lượt là 16.5 m2 và 16 m2, đều có ánh sáng tự nhiên và vệ sinh khép kín riêng.
-
Khu giặt phơi (7 m2): Bố trí khoa học, kín đáo.
Rõ ràng, một căn biệt thự mái Mansard tân cổ điển thực thụ phải là sự kết hợp hoàn hảo giữa thẩm mỹ và công năng sử dụng thực tế.

4. Báo giá thiết kế và thi công (Cập nhật 2026)
Để sở hữu một căn biệt thự mái Mansard tân cổ điển như cô Oanh, bạn cần có sự chuẩn bị kỹ lưỡng về tài chính. Techhome xin đưa ra bảng giá tham khảo:
| Hạng mục | Đơn giá | Mô tả |
| Gói thiết kế Kiến trúc | 108.000đ/m2 |
Hồ sơ đầy đủ từ 3D đến điện nước. |
| Gói thiết kế Nội thất | 150.000đ/m2 | Sang trọng, đồng bộ phong cách tân cổ điển. |
| Thi công phần thô | Từ 4.500.000đ/m2 trở lên | Cam kết vật tư chính hãng, đúng tiến độ. |
| Thi công trọn gói | Từ 7.500.000đ/m2 trở lên | Chìa khóa trao tay cho chủ đầu tư. |
Việc đầu tư vào một căn biệt thự mái Mansard tân cổ điển không chỉ là xây nhà, mà là đầu tư vào giá trị sống bền vững cho nhiều thế hệ.
Lưu ý: Đây chỉ là mức chi phí ước tính. Để nhận được báo giá chính xác và chi tiết nhất cho công trình của bạn, vui lòng liên hệ trực tiếp với chúng tôi. Hoặc để tìm hiểu rõ hơn về tiêu chuẩn vật liệu xây dựng và các yếu tố ảnh hưởng đến chi phí, bạn có thể tham khảo thêm tại các bài viết chuyên sâu về vật liệu xây dựng cao cấp trên Wikipedia.

5. Những lưu ý “vàng” khi xây biệt thự mái Mansard tân cổ điển
Dưới góc độ chuyên gia, mình có vài lời khuyên cho các bạn đang có ý định xây biệt thự mái Mansard tân cổ điển:
-
Đừng tiết kiệm tiền thiết kế: Hệ mái Mansard rất khó xử lý về mặt kỹ thuật và chống thấm. Chỉ những đơn vị có kinh nghiệm như Techhome mới đảm bảo được độ bền.
-
Chọn vật liệu chuẩn: Tông màu sơn và loại ngói lợp mái sẽ quyết định 70% vẻ đẹp của biệt thự mái Mansard tân cổ điển.
-
Hệ thống cổng rào: Phải đồng bộ. Bạn không thể xây một căn nhà Pháp mà dùng cổng inox đơn giản được. Hãy chọn cổng nhôm đúc như bản vẽ của cô Oanh.

6. Techhome – Đơn vị kiến tạo biệt thự mái Mansard tân cổ điển hàng đầu
Techhome tự hào là đơn vị đứng sau hồ sơ thiết kế kỹ thuật thi công này. Mỗi dự án biệt thự mái Mansard tân cổ điển đều được chúng tôi gửi gắm tâm huyết, từ việc chọn chiều cao tầng 3m9 cho tầng 1 để tạo độ thoáng , đến việc bố trí 25 bậc thang chuẩn phong thủy.
Sự tin tưởng của cô Oanh tại Việt Trì là minh chứng rõ nhất cho chất lượng dịch vụ của Techhome. Nếu bạn đang tìm kiếm một đơn vị có thể biến ý tưởng biệt thự mái Mansard tân cổ điển thành hiện thực, Techhome chính là địa chỉ tin cậy.

7. Tại sao bạn nên chọn Nhà đẹp Techhome?
Giữa hàng ngàn công ty kiến trúc, tại sao cô Oanh và hàng trăm khách hàng khác lại chọn Nhà đẹp Techhome?
-
Hồ sơ kỹ thuật chi tiết: Như bạn thấy trong ảnh đính kèm, từ số bậc thang đến diện tích từng phòng đều được KTS và cộng sự tính toán tỉ mỉ.
-
Sự minh bạch: Techhome cam kết không phát sinh chi phí ẩn khi thi công trọn gói.
-
Tâm huyết trong từng đường nét: Mỗi ngôi nhà mang thương hiệu Nhà đẹp Techhome đều là một tác phẩm nghệ thuật duy nhất, không “copy – paste”.
-
Hỗ trợ kỹ thuật 24/7: Hotline 0364042222 luôn sẵn sàng giải đáp mọi thắc mắc của chủ nhà ngay tại công trường.
Ngôi nhà không chỉ là nơi để che mưa che nắng, nó là bộ mặt của gia chủ, là nơi lưu giữ tiếng cười. Đừng để những sai lầm trong thiết kế làm hỏng đi giấc mơ đó. Hãy để Nhà đẹp Techhome đồng hành cùng bạn.
8. Cảm nhận của khách hàng về Nhà đẹp Techhome
Cô Oanh chia sẻ: “Lúc đầu cô cũng lo lắm, không biết lên hình có giống bản vẽ không. Nhưng khi cầm bộ hồ sơ của Nhà đẹp Techhome trên tay, thấy chi tiết đến từng cái ổ điện, vị trí đặt cây xanh, cô hoàn toàn yên tâm. Đội ngũ KTS rất lễ phép và lắng nghe.”
Những lời động viên ấy chính là động lực để Techhome tiếp tục hành trình kiến tạo những không gian sống đẳng cấp trên khắp dải đất hình chữ S.

9. Kết luận
Mẫu biệt thự mái Mansard tân cổ điển của gia đình cô Oanh không chỉ là niềm tự hào của gia chủ mà còn là tác phẩm khẳng định vị thế của Techhome trong ngành kiến trúc. Sang trọng, đẳng cấp và tối ưu công năng – đó là tất cả những gì bạn nhận được khi chọn phong cách này.
Hy vọng bài viết này đã giúp bạn có cái nhìn chi tiết hơn về dòng biệt thự mái Mansard tân cổ điển. Đừng quên theo dõi website của chúng tôi để cập nhật thêm nhiều mẫu nhà đẹp nhé!
Thông tin liên hệ:
-
Website: https://nhadeptechhome.vn/
-
Hotline hỗ trợ kỹ thuật: 0364042222 – 0387603333
-
Địa chỉ văn phòng: B1.1 LK18 Ô 3 – KĐT Thanh Hà – Cienco 5 – Thanh Oai- Hà Nội.
Cảm ơn các bạn đã theo dõi bài viết. Chúc bạn sớm tìm được ý tưởng cho ngôi nhà của mình cùng Nhà đẹp Techhome!
