
Mục lục
-
Giới thiệu về mái bằng nhà phố
-
Ưu điểm vượt trội của mái bằng nhà phố
-
Những phong cách thiết kế mái bằng phổ biến
-
Bản vẽ công năng mẫu mái bằng nhà phố 3 tầng
-
Mái bằng nhà phố và yếu tố phong thủy
-
Dự toán chi phí xây dựng mái bằng nhà phố
-
Tại sao nên chọn Techhome thiết kế & thi công mái bằng nhà phố?
-
Kết luận
Giới thiệu về mái bằng nhà phố
Mái bằng nhà phố đang trở thành xu hướng kiến trúc thịnh hành nhất hiện nay tại Việt Nam. Không chỉ mang đến vẻ đẹp hiện đại, sang trọng, kiểu mái này còn đáp ứng hoàn hảo công năng, dễ dàng mở rộng thêm tầng hoặc thiết kế sân thượng xanh.
Trong những năm gần đây, các gia đình trẻ và gia chủ yêu thích sự tối giản đều lựa chọn mái bằng thay cho mái thái hay mái lệch. Đây là phong cách kiến trúc thể hiện sự tinh tế – tiện nghi – bền vững theo thời gian.

Ưu điểm vượt trội của mái bằng nhà phố
-
Phong cách hiện đại: Đường nét vuông vức, hình khối khỏe khoắn, hợp thị hiếu đô thị.
-
Tận dụng công năng: Có thể biến mái thành sân phơi, khu vườn nhỏ, sân thượng BBQ hoặc phòng thờ.
-
Chống nóng – chống thấm tốt: Với công nghệ thi công hiện đại, mái bằng được xử lý chống thấm, chống nóng, đảm bảo độ bền lâu dài.
-
Chi phí hợp lý: So với mái thái hoặc mái Nhật, mái bằng tiết kiệm chi phí vật liệu, rút ngắn tiến độ xây dựng.
-
Dễ mở rộng tầng: Nếu sau này cần xây thêm tầng, mái bằng là lựa chọn tối ưu nhất.

Những phong cách thiết kế mái bằng phổ biến
1. Mái bằng nhà phố hiện đại
Kết hợp kính cường lực, lam chắn nắng, màu sơn trung tính (trắng, ghi, be), tạo nên một tổng thể sang trọng và đẳng cấp.
2. Mái bằng kết hợp sân thượng xanh
Biến mái thành không gian thư giãn với tiểu cảnh, cây xanh, bàn trà – mang lại cảm giác hòa mình với thiên nhiên ngay giữa phố thị.
3. Mái bằng kết hợp mái kính – giếng trời
Tận dụng ánh sáng tự nhiên, giúp ngôi nhà luôn thông thoáng và tiết kiệm điện năng.
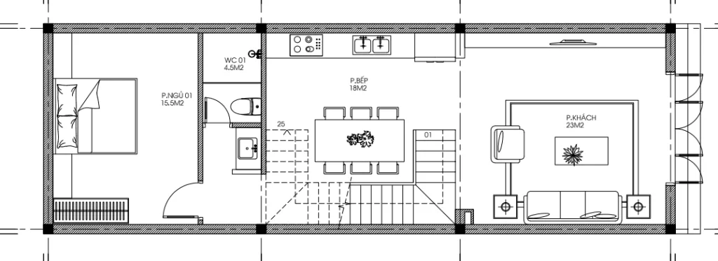
Bản vẽ công năng mẫu mái bằng nhà phố 3 tầng
Trong dự án mới nhất của Công ty Cổ phần Kiến trúc và Xây dựng Techhome, chúng tôi triển khai thiết kế mái bằng nhà phố 3 tầng tại Hà Nội với:
-
Tầng 1: Phòng khách 23m², phòng bếp + ăn 18m², 1 phòng ngủ 15,5m² và 1 WC khép kín.
-
Tầng 2: 2 phòng ngủ master, ban công rộng thoáng.
-
Tầng 3: Phòng thờ, sân thượng, khu giặt phơi.
Mặt bằng công năng được bố trí khoa học, tối ưu diện tích, đảm bảo sự tiện nghi cho gia đình 4–6 thành viên.

Mái bằng nhà phố và yếu tố phong thủy
Theo phong thủy, mái bằng tượng trưng cho sự vững chắc – ổn định – kiên định, rất phù hợp với gia chủ mệnh Thổ hoặc Kim. Khi kết hợp sân thượng trồng cây, không gian xanh trên mái sẽ giúp cân bằng âm dương, thu hút tài lộc và may mắn.
Dự toán chi phí xây dựng mái bằng nhà phố
Chi phí xây dựng mái bằng nhà phố dao động từ 6 – 8 triệu/m² tùy vào:
-
Diện tích xây dựng.
-
Vật liệu hoàn thiện (gạch, sơn, cửa, nội thất).
-
Địa điểm thi công.
Techhome luôn cung cấp báo giá chi tiết – minh bạch – cam kết không phát sinh, giúp gia chủ yên tâm từ giai đoạn thiết kế đến bàn giao.
Lưu ý: Đây chỉ là mức chi phí ước tính. Để nhận được báo giá chính xác và chi tiết nhất cho công trình của bạn, vui lòng liên hệ trực tiếp với chúng tôi. Hoặc để tìm hiểu rõ hơn về tiêu chuẩn vật liệu xây dựng và các yếu tố ảnh hưởng đến chi phí, bạn có thể tham khảo thêm tại các bài viết chuyên sâu về vật liệu xây dựng cao cấp trên Wikipedia.
Tại sao nên chọn Techhome thiết kế & thi công mái bằng nhà phố?
-
Kinh nghiệm lâu năm trong thiết kế & thi công trọn gói.
-
Đội ngũ kiến trúc sư sáng tạo, luôn cập nhật xu hướng mới.
-
Cam kết tiến độ & chất lượng công trình.
-
Bảo hành dài hạn và hỗ trợ sau bàn giao.
Thực tế đã có hàng trăm công trình mái bằng nhà phố do Techhome triển khai tại Hà Nội, Hải Dương, Bắc Ninh… nhận được sự hài lòng tuyệt đối từ khách hàng.
Kết luận
Mái bằng nhà phố không chỉ là lựa chọn thẩm mỹ mà còn mang lại công năng vượt trội, chi phí hợp lý và phong thủy hài hòa. Nếu bạn đang tìm kiếm một mẫu nhà phố hiện đại, bền vững và dễ dàng mở rộng trong tương lai, thì mái bằng chắc chắn là giải pháp hoàn hảo.
👉 Liên hệ ngay với Công ty Cổ phần Kiến trúc và Xây dựng Techhome để được tư vấn thiết kế & thi công trọn gói:
📞 Hotline: 0364 042 222 – 0387 603 333
Xem thêm các dự án nổi bật khác của Techhome tại https://nhadeptechhome.vn/

