Giới thiệu về mẫu nhà phố 3 tầng hiện đại
Mẫu nhà phố 3 tầng hiện đại đang trở thành xu hướng thiết kế được nhiều gia đình trẻ lựa chọn trong năm 2025. Với ưu điểm vừa tiết kiệm diện tích đất, vừa tạo không gian sống thoáng đãng, tiện nghi, kiểu nhà này phù hợp cho cả khu đô thị đông đúc lẫn những vùng ven có quỹ đất hạn chế.
Trong dự án mới nhất, Công ty Cổ phần Kiến trúc và Xây dựng TECHHOME đã thực hiện thành công một mẫu nhà phố 3 tầng hiện đại, kết hợp hoàn hảo giữa công năng và thẩm mỹ. Thiết kế này hứa hẹn mang lại cho gia chủ không chỉ một nơi an cư vững bền mà còn là tổ ấm đáng mơ ước.

Điểm nhấn kiến trúc của mẫu nhà phố 3 tầng hiện đại
-
Mặt tiền sang trọng: Với phong cách hiện đại, mặt tiền ngôi nhà sử dụng những đường nét vuông vắn, kết hợp gam màu trung tính và vật liệu ốp gỗ – đá tạo điểm nhấn sang trọng. Ban công xanh mát giúp không gian thêm phần hài hòa với thiên nhiên.
-
Công năng hợp lý:
-
Tầng 1: Gồm phòng khách rộng rãi, phòng bếp ăn kết hợp, một phòng ngủ nhỏ và nhà vệ sinh khép kín.
-
Tầng 2: Bố trí phòng ngủ master có ban công, thêm 1-2 phòng ngủ cho con, phòng sinh hoạt chung.
-
Tầng 3: Không gian thờ trang nghiêm, phòng giặt phơi và sân thượng thoáng đãng.
-
-
Phong thủy chuẩn mệnh: Các yếu tố cửa chính, hướng bàn thờ, vị trí phòng ngủ đều được TECHHOME tính toán theo phong thủy, đảm bảo mang lại tài lộc và bình an cho gia chủ.

Tại sao mẫu nhà phố 3 tầng hiện đại được yêu thích?
-
Tiết kiệm diện tích đất: Với lô đất mặt tiền 4–5m, chiều sâu 15–20m, mẫu nhà này khai thác triệt để không gian.
-
Chi phí xây dựng hợp lý: So với biệt thự hoặc nhà vườn, chi phí hoàn thiện chỉ dao động từ 1,2 – 1,8 tỷ đồng (tùy vật liệu và phong cách).
-
Công năng tối ưu: Đáp ứng gia đình 4–6 thành viên, vừa có không gian riêng tư, vừa có khu sinh hoạt chung.
-
Phong cách trẻ trung, hợp thời: Thiết kế hiện đại, tối giản nhưng vẫn sang trọng, phù hợp với xu hướng sống xanh – thông minh.

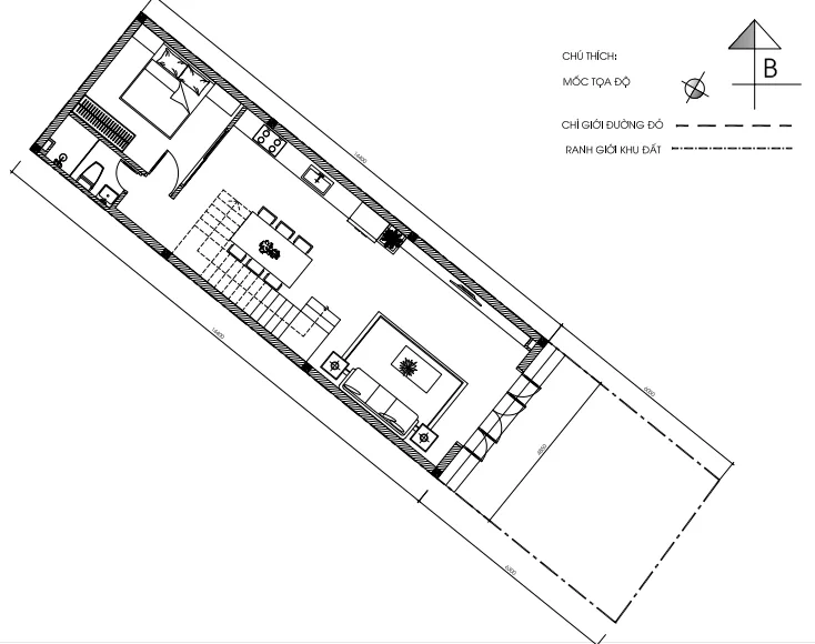
Bản vẽ công năng chi tiết
-
Phòng khách (20m²): Không gian mở, kết nối trực tiếp với cửa chính, đón sáng tự nhiên.
-
Phòng bếp + ăn (23m²): Thiết kế liên thông, thuận tiện sinh hoạt gia đình.
-
Phòng ngủ (11m²): Bố trí hợp lý ở cuối nhà, đảm bảo sự yên tĩnh.
-
WC (4,5m²): Đặt cạnh cầu thang, gọn gàng và tiện lợi.

Hình ảnh phối cảnh 3D




Lợi ích khi xây dựng cùng TECHHOME
-
Thiết kế – thi công trọn gói: Đảm bảo đồng bộ từ bản vẽ đến công trình thực tế.
-
Đội ngũ kiến trúc sư chuyên nghiệp: Kinh nghiệm lâu năm, am hiểu phong thủy và xu hướng mới.
-
Cam kết chất lượng: Vật liệu chính hãng, thi công đúng tiến độ.
-
Bảo hành uy tín: Hỗ trợ bảo trì công trình sau khi bàn giao.
Để tìm hiểu rõ hơn về tiêu chuẩn vật liệu xây dựng và các yếu tố ảnh hưởng đến chi phí, bạn có thể tham khảo thêm tại các bài viết chuyên sâu về vật liệu xây dựng cao cấp trên Wikipedia.
Liên hệ tư vấn
Nếu bạn đang tìm kiếm một mẫu nhà phố 3 tầng hiện đại vừa đẹp, vừa chuẩn phong thủy, hãy liên hệ ngay với Công ty Cổ phần Kiến trúc và Xây dựng TECHHOME để được tư vấn miễn phí:
📍 Địa chỉ: B1.1 LK17 ô số 4 – KĐT Thanh Hà, Thanh Oai, Hà Nội
📞 Hotline: 0364 042 222 – 0387 603 333
Xem thêm các dự án nổi bật khác của Techhome tại https://nhadeptechhome.vn/
