Nhà tân cổ là lựa chọn hoàn hảo dành cho những gia chủ yêu thích sự sang trọng, bề thế nhưng vẫn muốn giữ được nét thanh thoát và hiện đại. Với sự kết hợp hài hòa giữa phong cách cổ điển châu Âu và đường nét kiến trúc đương đại, nhà tân cổ không chỉ mang đến không gian sống tiện nghi mà còn khẳng định đẳng cấp và gu thẩm mỹ tinh tế của gia chủ.
Trong bài viết này, Techhome sẽ cùng bạn khám phá mẫu nhà tân cổ mái bằng mới nhất, chiêm ngưỡng phối cảnh ngoại thất – nội thất và tìm hiểu lý do vì sao kiểu nhà này luôn được săn đón hàng đầu.

Nhà tân cổ – sự kết hợp hoàn hảo giữa vẻ đẹp sang trọng cổ điển và tiện nghi hiện đại. Techhome giới thiệu mẫu thiết kế nhà tân cổ mái bằng mới nhất, chuẩn phong thủy, tối ưu công năng và khẳng định đẳng cấp gia chủ.
1. Nhà tân cổ là gì?
Nhà tân cổ (tân cổ điển) là sự hòa quyện giữa kiến trúc cổ điển phương Tây và lối thiết kế hiện đại, tạo nên không gian sang trọng, tinh tế nhưng không quá cầu kỳ. Các chi tiết phào chỉ, hoa văn được tiết chế vừa đủ để giữ được sự quý phái, đồng thời kết hợp vật liệu hiện đại như kính, sắt, bê tông để tăng tính bền vững và công năng.
2. Ưu điểm nổi bật của nhà tân cổ
-
Sang trọng & bề thế: Với các chi tiết hoa văn tinh xảo, cột trụ vững chãi, nhà tân cổ luôn toát lên vẻ uy nghi, khẳng định đẳng cấp.
-
Trường tồn theo thời gian: Phong cách tân cổ điển không bao giờ lỗi mốt, mang đến giá trị thẩm mỹ lâu dài.
-
Công năng khoa học: Dù giữ nét cổ điển, nhà tân cổ vẫn đảm bảo không gian sống hiện đại, tiện nghi.
-
Phong thủy thuận lợi: Với cách bố trí cân đối, đối xứng, kiểu nhà này thường hợp phong thủy, giúp gia chủ thu hút tài lộc và may mắn.



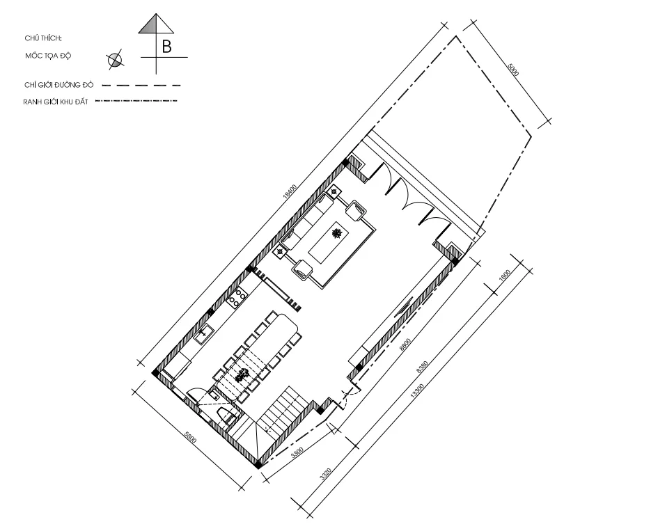
3. Mẫu thiết kế nhà tân cổ mái bằng ấn tượng
Ngoại thất – vẻ đẹp kiêu sa và quyền quý
-
Mặt tiền được trang trí bằng hệ cột Corinth vững chãi, kết hợp ban công lan can sắt nghệ thuật mạ vàng.
-
Các chi tiết phào chỉ tinh tế, uốn lượn mềm mại tạo nên sự thanh thoát, không quá rườm rà.
-
Tông màu trắng chủ đạo kết hợp cửa gỗ và kính, vừa hiện đại vừa sang trọng.
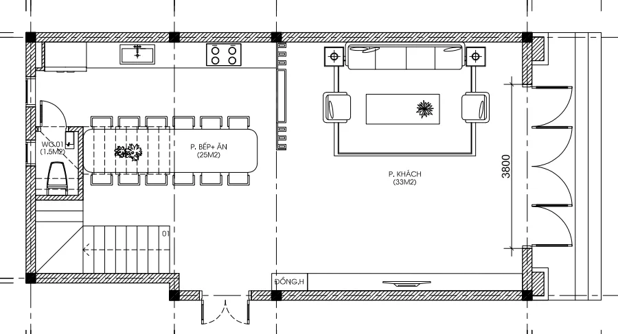
Nội thất – tiện nghi và đẳng cấp
-
Phòng khách 33m2: Không gian rộng, trần cao, kết hợp sofa sang trọng và ánh sáng tự nhiên từ hệ cửa lớn.
-
Phòng bếp + ăn 25m2: Bố trí hiện đại, tối ưu công năng, thuận tiện cho sinh hoạt gia đình.
-
Các phòng ngủ: Được thiết kế đảm bảo sự riêng tư, thoáng mát và tinh tế.
-
Mái bằng: Vừa bền chắc, vừa dễ dàng lắp đặt hệ thống năng lượng mặt trời, bồn nước, đồng thời tạo khoảng sân thượng xanh mát.

4. Chi phí xây dựng nhà tân cổ
Chi phí sẽ phụ thuộc vào diện tích, số tầng, mức độ đầu tư chi tiết nội thất và vật liệu. Trung bình, nhà tân cổ có mức chi phí cao hơn nhà phố hiện đại do nhiều chi tiết trang trí tinh xảo, nhưng đổi lại là sự sang trọng vượt thời gian.
Techhome luôn đồng hành cùng gia chủ từ khâu tư vấn – thiết kế – thi công trọn gói, đảm bảo chất lượng và tối ưu chi phí.
Để tìm hiểu rõ hơn về tiêu chuẩn vật liệu xây dựng và các yếu tố ảnh hưởng đến chi phí, bạn có thể tham khảo thêm tại các bài viết chuyên sâu về vật liệu xây dựng cao cấp trên Wikipedia.
5. Lý do nên chọn Techhome khi xây nhà tân cổ
-
Đội ngũ kiến trúc sư chuyên môn cao, am hiểu kiến trúc tân cổ điển.
-
Thiết kế độc quyền, tối ưu công năng, chuẩn phong thủy.
-
Thi công chất lượng – đúng tiến độ với cam kết bảo hành rõ ràng.
-
Hình ảnh thực tế minh chứng, nhiều công trình đã hoàn thiện tại Hà Nội, Hải Dương, Hưng Yên, Bắc Ninh…
6. Kết luận
Nhà tân cổ không chỉ là nơi để ở mà còn là biểu tượng cho sự thịnh vượng và gu thẩm mỹ tinh tế của gia chủ. Nếu bạn đang tìm kiếm một không gian sống vừa tiện nghi vừa sang trọng, thì đây chính là lựa chọn hoàn hảo.
Hãy liên hệ với Techhome để được tư vấn thiết kế và thi công trọn gói, kiến tạo tổ ấm mang đậm dấu ấn riêng cho gia đình bạn.
Xem thêm các dự án nổi bật khác của Techhome tại https://nhadeptechhome.vn/
