Mẫu nhà phố 3 tầng hiện đại đang trở thành xu hướng nổi bật những năm gần đây, đặc biệt tại các tỉnh thành có tốc độ đô thị hóa nhanh như Thanh Hóa. Với thiết kế sang trọng, đường nét tinh tế cùng công năng khoa học, mẫu nhà phố của chủ đầu tư anh Danh tại Thanh Hóa được Techhome thực hiện đã thực sự gây ấn tượng mạnh, khiến bất kỳ ai đi ngang cũng phải dừng chân ngắm nhìn.
✨ Vì sao mẫu nhà phố 3 tầng hiện đại lại được yêu thích đến vậy?
-
Phong cách hiện đại – tối giản nhưng tinh tế
Nhà phố 3 tầng hiện đại thường sử dụng hình khối vuông vức, kết hợp kính, gỗ, và các mảng tường ốp đá để tạo nên sự sang trọng. Thiết kế của anh Danh tại Thanh Hóa mang hơi hướng minimalism (tối giản), nhưng lại cực kỳ cuốn hút bởi sự hài hòa trong màu sắc và vật liệu. -
Công năng khoa học – đáp ứng nhu cầu gia đình Việt
-
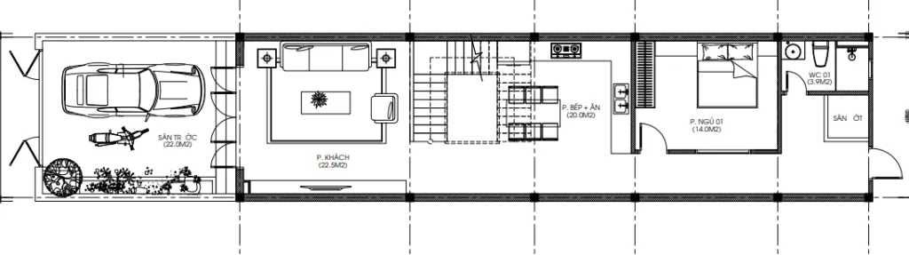
Tầng 1: Sân trước rộng rãi để xe, phòng khách thoáng sáng, bếp + ăn hiện đại, 1 phòng ngủ và WC tiện lợi.
-
Tầng 2: Bố trí thêm phòng ngủ, phòng sinh hoạt chung và ban công lớn với tiểu cảnh xanh.
-
Sân thượng: Không gian mở, có thể tận dụng làm khu trồng cây, phơi đồ hoặc làm nơi thư giãn ngoài trời.
-
-
Không gian xanh – yếu tố bắt trend năm 2025
Xu hướng “nhà phố xanh” đang được nhiều gia đình trẻ săn đón. Từ ban công đến sân thượng, Techhome đã khéo léo đưa cây xanh vào không gian sống, mang lại sự cân bằng, thoáng đãng và gần gũi với thiên nhiên.
🏠 Điểm nhấn trong thiết kế nhà phố 3 tầng hiện đại của anh Danh
-
Mặt tiền hiện đại, hút mắt: Sự kết hợp giữa kính cường lực trong suốt và hệ lam gỗ ngoài trời không chỉ tăng tính thẩm mỹ mà còn giúp đón ánh sáng tự nhiên tối đa.
-
Hệ thống chiếu sáng ấn tượng: Đèn LED âm trần, ánh sáng vàng nhẹ nhàng làm nổi bật vẻ sang trọng của ngôi nhà cả ngày lẫn đêm.
-
Công năng tối ưu: Diện tích được tận dụng tối đa, phù hợp với gia đình có 4 – 5 thành viên.
-
Chất liệu cao cấp: Ốp đá granite mặt tiền, cửa nhôm kính Xingfa, sơn chống thấm ngoại thất – đảm bảo độ bền lâu dài theo thời gian.
Để tìm hiểu rõ hơn về tiêu chuẩn vật liệu xây dựng và các yếu tố ảnh hưởng đến chi phí, bạn có thể tham khảo thêm tại các bài viết chuyên sâu về vật liệu xây dựng cao cấp trên Wikipedia.
🔑 Lợi ích khi chọn xây nhà phố 3 tầng hiện đại tại Techhome
-
Tư vấn thiết kế miễn phí theo phong thủy và nhu cầu thực tế.
-
Thi công trọn gói – tiết kiệm chi phí, đảm bảo tiến độ và chất lượng.
-
Bảo hành dài hạn, hỗ trợ gia chủ từ lúc lên ý tưởng đến khi bàn giao nhà.
-
Ứng dụng công nghệ xây dựng mới giúp công trình nhà phố 3 tầng hiện đại bền đẹp, tiết kiệm năng lượng.
📸 Phối cảnh 3D nhà phố 3 tầng hiện đại tại Thanh Hóa

Mẫu nhà phố 3 tầng hiện đại tại Thanh Hóa của anh Danh không chỉ là một ngôi nhà để ở mà còn là biểu tượng của sự sang trọng, tiện nghi và phong cách sống hiện đại. Nếu bạn đang tìm kiếm một ý tưởng thiết kế độc đáo, sang trọng nhưng vẫn tiết kiệm chi phí thì đây chính là lựa chọn lý tưởng.
Lợi Ích và Giá Trị Khi Tin Chọn TECHHOME
TECHHOME, với tên đầy đủ là Công ty Cổ phần Kiến trúc và Xây dựng Techhome, tự hào là đơn vị uy tín hàng đầu trong lĩnh vực thiết kế và thi công nhà ở gia đình. Khi chọn Techhome, khách hàng nhận được:
- Thiết kế Tối ưu: Đội ngũ KTS và KS giàu kinh nghiệm, đảm bảo mỗi hồ sơ thiết kế kỹ thuật thi công là một giải pháp hoàn chỉnh, khoa học, phù hợp với nhu cầu sử dụng và ngân sách của gia chủ.
- Minh bạch về Chi phí và Vật liệu: Mọi quy cách vật tư, từ kích thước cửa đến chi tiết lát sàn, đều được thể hiện rõ ràng trong hồ sơ, giúp gia chủ kiểm soát chất lượng và chi phí tuyệt đối.
- Chất lượng Thi công Đảm bảo: Techhome cam kết quy trình thi công nghiêm ngặt, đúng kỹ thuật, sử dụng vật liệu chuẩn và đội ngũ thợ lành nghề, mang lại công trình bền vững, đẹp như bản vẽ 3D.
- Hỗ trợ Kỹ thuật Toàn diện: Cung cấp dịch vụ hỗ trợ tư vấn kỹ thuật xây dựng qua Hotline 0364042222 – 0387603333, sẵn sàng giải đáp mọi thắc mắc trong suốt quá trình triển khai dự án.
Đừng để ý tưởng về ngôi nhà mơ ước chỉ dừng lại trên bản vẽ! Hãy liên hệ ngay với CÔNG TY CỔ PHẦN KIẾN TRÚC VÀ XÂY DỰNG TECHHOME để được tư vấn miễn phí, nhận báo giá chi tiết và biến ngôi nhà mơ ước của bạn thành hiện thực.
Hotline Tư vấn 24/7: 0364042222 – 0387603333
Hãy để TECHHOME đồng hành cùng bạn trên hành trình xây dựng tổ ấm!
Xem thêm các dự án nổi bật khác của Techhome tại https://nhadeptechhome.vn/

