Chào các bạn, lại là đội ngũ Techhome đây! Hôm nay, mình muốn dẫn các bạn về thăm mảnh đất Kim Động, Hưng Yên để chiêm ngưỡng một công trình mà anh em chúng mình vừa hoàn thiện hồ sơ thiết kế cho gia đình chú Quân. Nếu bạn đang sở hữu một mảnh đất rộng và muốn xây một ngôi nhà vừa sang, vừa ấm cúng, lại không phải leo cầu thang mệt nghỉ thì mẫu nhà mái Nhật 1 tầng 3 phòng ngủ này chính là câu trả lời trọn vẹn nhất.
1. Cái “Chất” riêng của kiến trúc mái Nhật tại Hưng Yên
Tại sao chú Quân lại chọn mái Nhật mà không phải mái Thái hay mái bằng? Thực ra, chú tâm sự với mình rằng: “Chú thích cái vẻ điềm đạm, không quá phô trương nhưng nhìn lâu vẫn thấy sang”. Và đúng thật, nhìn vào phối cảnh tổng thể, các bạn sẽ thấy hệ mái màu xanh thẫm không quá dốc, tạo nên sự cân đối tuyệt vời với chiều cao tầng 4,1m của ngôi nhà.
Mẫu nhà mái Nhật 1 tầng 3 phòng ngủ này được thiết kế theo phong cách tân cổ điển, vẫn giữ được nét kiến trúc truyền thống của vùng đồng bằng Bắc Bộ. Toàn bộ tông màu chủ đạo là trắng tinh khôi, kết hợp với những đường phào chỉ tinh tế chạy dọc cột và bao quanh cửa sổ. Nó tạo nên một cảm giác nhẹ nhàng, thanh thoát nhưng vô cùng vững chãi.

2. Chi tiết công năng: 160m2 “vàng” cho cuộc sống tiện nghi
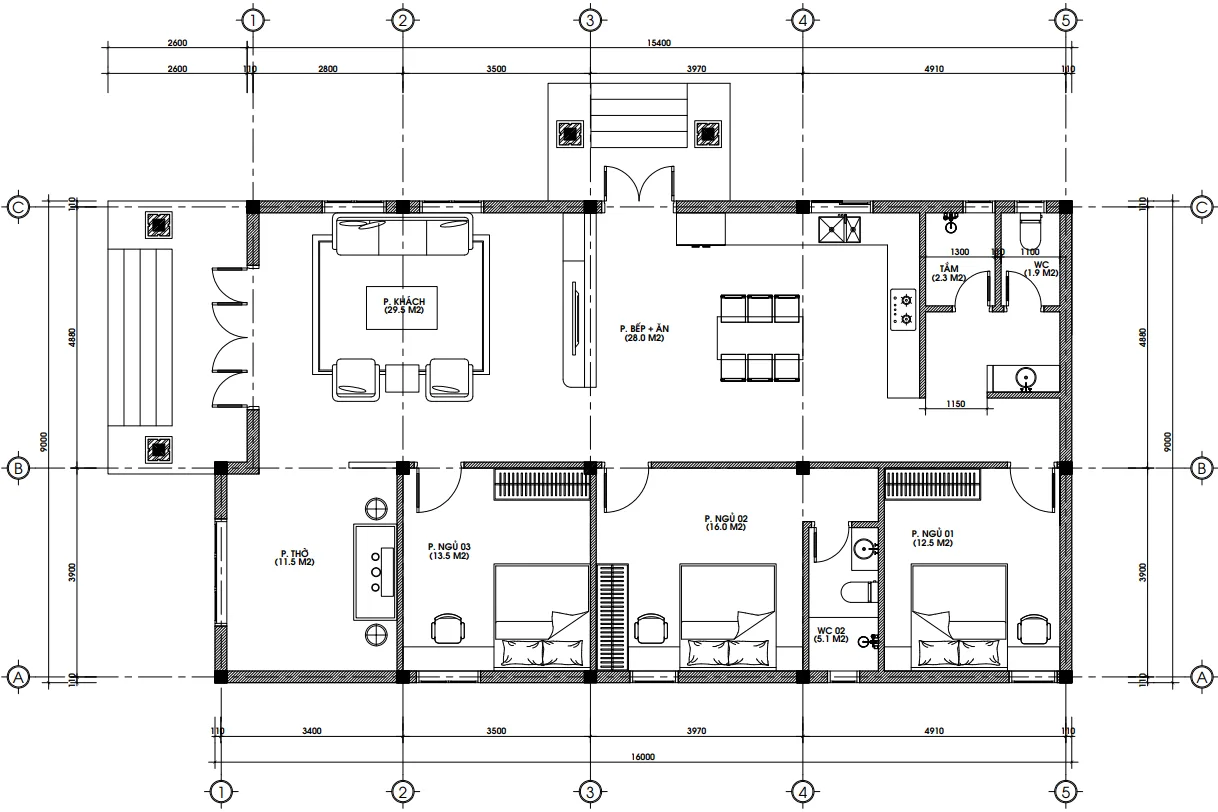
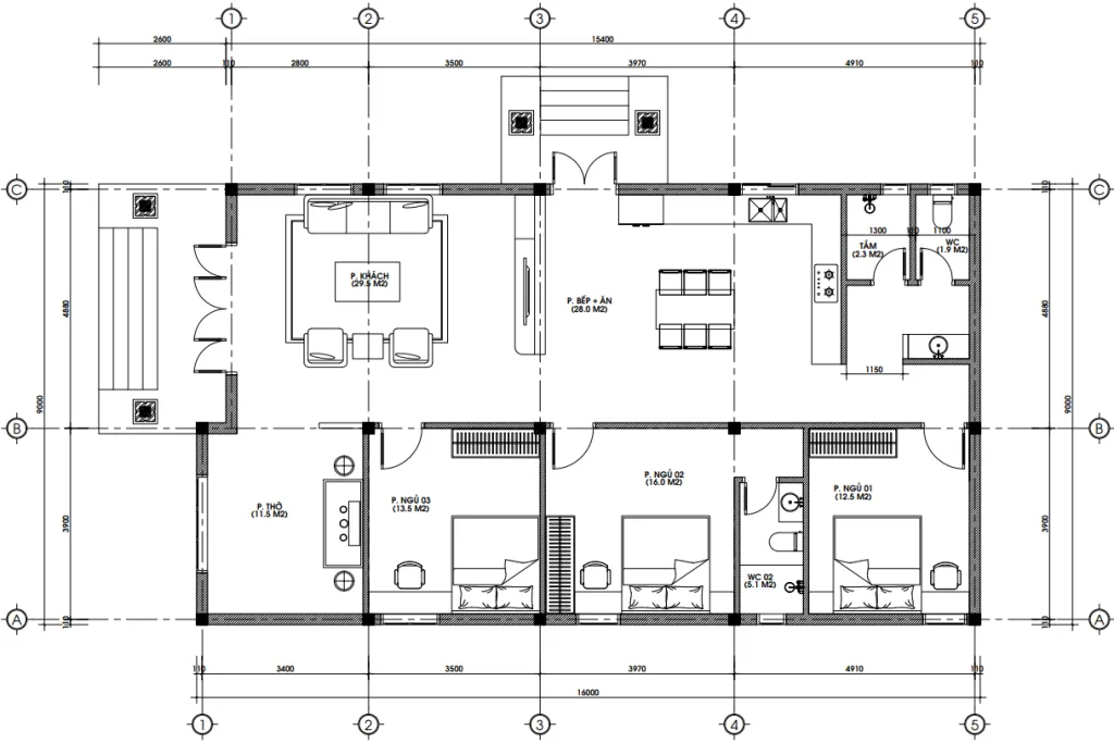
Một ngôi nhà đẹp trước hết phải là một ngôi nhà tiện. Với diện tích sàn 160m2, đội ngũ kiến trúc sư Techhome đã tính toán tỉ mỉ từng mét vuông để tối ưu hóa không gian sinh hoạt cho gia đình chú Quân.
Không gian sinh hoạt chung rộng mở
-
Phòng khách (29.5 m2): Ngay sau cánh cửa gỗ đại hội là không gian phòng khách cực kỳ rộng rãi. Đây là nơi chú Quân đón tiếp khách khứa, họ hàng. Với diện tích gần 30m2, chú có thể thoải mái bày biện những bộ sofa gỗ lớn hay sập gụ mà không lo chật chội.
-
Phòng bếp + Ăn (28.0 m2): Một điểm mình cực kỳ ưng ý trong mẫu nhà mái Nhật 1 tầng 3 phòng ngủ này là khu vực bếp ăn được tách biệt một cách tinh tế qua hệ lam gỗ. Việc thiết kế cửa phụ đi ra sân bên hông giúp bếp luôn thông thoáng, không bị ám mùi thức ăn vào phòng khách.
Không gian tâm linh và nghỉ ngơi
-
Phòng thờ (11.5 m2): Được đặt ở vị trí trang trọng, có cửa sổ nhìn ra mặt tiền, đảm bảo sự tôn nghiêm và thông thoáng.
-
Hệ thống 3 phòng ngủ: * Phòng ngủ 01 (12.5 m2): Dành cho con cái hoặc khách, gần khu vực vệ sinh chung.
-
Phòng ngủ 02 (16.0 m2): Phòng ngủ lớn nhất, có cửa sổ rộng nhìn ra sân vườn phía sau. Kết hợp WC riêng biệt.
-
Phòng ngủ 03 (13.5 m2): Bố trí khoa học, đón ánh sáng tự nhiên tốt.
-
-
Khu vực vệ sinh: Ngôi nhà có 2 WC, trong đó có một WC chung diện tích 1.9 m2 và khu vực tắm riêng 2.3 m2 giúp việc sinh hoạt của các thành viên không bị chồng chéo.

3. Ngoại thất ấn tượng: Điểm nhấn từ sự chỉn chu
Nhìn từ bên ngoài, mẫu nhà mái Nhật 1 tầng 3 phòng ngủ của chú Quân trông giống như một căn biệt thự vườn mini. Hệ cột trụ vuông vắn, khỏe khoắn, chân nhà được ốp gạch thẻ tạo cảm giác kiên cố và bảo vệ công trình khỏi rêu mốc.
Đặc biệt, phần cửa chính sử dụng gỗ tự nhiên cao cấp với những hoa văn chạm khắc hình tròn đồng tâm, tạo điểm nhấn sang trọng ngay từ cái nhìn đầu tiên. Toàn bộ hệ cửa sổ lại được sử dụng nhôm kính xingfa màu đen, giúp lấy sáng tối đa và tạo view nhìn rộng mở ra khoảng sân vườn xanh mát.
Phần sân được lát gạch xám chống trơn, hài hòa với màu sắc tổng thể của công trình. Techhome còn khéo léo bố trí các bồn hoa nhỏ sát chân tường và những cây bonsai trước cửa để mang không gian xanh vào sát hơi thở cuộc sống.

4. Tại sao nên chọn mẫu nhà mái Nhật 1 tầng 3 phòng ngủ?
Sau nhiều năm tư vấn, mình nhận thấy đây là xu hướng bền vững vì:
-
Phù hợp khí hậu: Mái Nhật có khả năng chống nóng và thoát nước cực tốt, rất phù hợp với kiểu thời tiết nồm ẩm hay nắng gắt tại Việt Nam.
-
Gần gũi thành viên: Việc sinh hoạt trên một mặt sàn giúp ông bà, cha mẹ và con cái dễ dàng tương tác, gắn kết tình cảm hơn so với nhà cao tầng.
-
Tiết kiệm chi phí: So với nhà tầng, mẫu nhà mái Nhật 1 tầng 3 phòng ngủ giảm bớt được chi phí làm cầu thang, ban công và tiết kiệm thời gian thi công đáng kể.

5. Báo giá sơ bộ công trình (Tham khảo năm 2026)
Để các bạn dễ hình dung và chuẩn bị tài chính, Techhome xin đưa ra bảng dự toán sơ bộ cho công trình tương tự 160m2 tại khu vực Hưng Yên:
| Hạng mục | Đơn giá dự kiến (VNĐ/m2) | Thành tiền (VNĐ) |
| Gói thi công phần thô (Nhân công + Vật tư thô) | 3.800.000 – 4.200.000 | ~ 640.000.000 |
| Gói hoàn thiện cơ bản (Gạch, sơn, thiết bị vệ sinh, trần thạch cao) | 2.500.000 – 3.000.000 | ~ 450.000.000 |
| Hệ mái Nhật (Khung kèo + Ngói màu cao cấp) | Trọn gói | ~ 150.000.000 |
| Tổng cộng | ~ 7.000.000 – 8.000.000 | 1.200.000.000 – 1.300.000.000 |
Lưu ý: Đây chỉ là mức chi phí ước tính. Để nhận được báo giá chính xác và chi tiết nhất cho công trình của bạn, vui lòng liên hệ trực tiếp với chúng tôi. Hoặc để tìm hiểu rõ hơn về tiêu chuẩn vật liệu xây dựng và các yếu tố ảnh hưởng đến chi phí, bạn có thể tham khảo thêm tại các bài viết chuyên sâu về vật liệu xây dựng cao cấp trên Wikipedia.

6. Techhome – Người hiện thực hóa ước mơ của bạn
Chúng mình không chỉ bán bản vẽ, chúng mình bán niềm tin và sự hài lòng. Mỗi mẫu nhà mái Nhật 1 tầng 3 phòng ngủ mà Techhome tạo ra đều xuất phát từ sự lắng nghe chân thành những mong muốn của chủ đầu tư.
Hồ sơ thiết kế kỹ thuật thi công của chúng mình luôn đảm bảo các yếu tố:
-
Đầy đủ bản vẽ kiến trúc, kết cấu, điện nước chi tiết.
-
Hỗ trợ tư vấn kỹ thuật trong suốt quá trình xây dựng qua hotline 0364042222.
-
Đảm bảo tính thẩm mỹ đi đôi với phong thủy và công năng sử dụng.
Nếu bạn đang yêu thích mẫu nhà mái Nhật 1 tầng 3 phòng ngủ này của chú Quân, đừng ngần ngại nhấc máy gọi cho anh em Techhome nhé. Chúng mình luôn sẵn sàng về tận đất để khảo sát và tư vấn cho bạn một tổ ấm hoàn hảo nhất!

CÔNG TY CỔ PHẦN KIẾN TRÚC VÀ XÂY DỰNG TECHHOME
🏠 Website: https://nhadeptechhome.vn/
☎️ Hotline: 036.273.2222
📍 Địa chỉ: B1.1 LK18 Ô 3 – KĐT Thanh Hà – Cienco 5 – Thanh Oai- Hà Nội.
