
Trong xu hướng kiến trúc hiện nay, mẫu nhà 2 tầng mái bằng hiện đại luôn được nhiều gia đình lựa chọn bởi sự trẻ trung, sang trọng và tối ưu công năng. Công trình mà Công ty Cổ phần Kiến trúc và Xây dựng Techhome giới thiệu hôm nay là nhà 2 tầng mái bằng hiện đại diện tích 9,9×11,5m của chủ đầu tư anh Hùng tại Thanh Hóa. Ngôi nhà không chỉ gây ấn tượng mạnh với ngoại thất hiện đại mà còn mang lại không gian sống tiện nghi với 3 phòng ngủ, 1 phòng khách, 1 phòng làm việc khoa học.

1. Thông tin tổng quan về công trình
-
Chủ đầu tư: Anh Hùng
-
Địa điểm xây dựng: Thanh Hóa
-
Diện tích xây dựng: 9,9m x 11,5m
-
Số tầng: 2 tầng mái bằng hiện đại
-
Công năng chính: 3 phòng ngủ, 1 phòng khách, 1 phòng làm việc, bếp – ăn, vệ sinh tiện nghi
-
Đơn vị thiết kế & thi công: Công ty Cổ phần Kiến trúc và Xây dựng Techhome

2. Kiến trúc ngoại thất – Hiện đại, tinh tế và bền vững
Ngay từ cái nhìn đầu tiên, mẫu nhà 2 tầng mái bằng hiện đại 9,9×11,5m đã tạo dấu ấn mạnh mẽ với bố cục vuông vắn, đường nét gọn gàng và cách phối vật liệu sang trọng.
-
Hệ mái bằng: Thiết kế phẳng, khỏe khoắn, tối giản, giúp tối ưu không gian sử dụng phía trên. Mái bằng còn chống chịu tốt trước thời tiết khắc nghiệt, đặc biệt phù hợp với khí hậu miền Trung.
-
Mặt tiền hiện đại: Kết hợp giữa kính cường lực, gỗ nhựa ốp ngoài trời và đá ốp tường tạo điểm nhấn. Ban công kính giúp không gian thoáng đãng, tăng sự kết nối giữa nội thất và thiên nhiên.
-
Màu sắc hài hòa: Tông trắng chủ đạo kết hợp ghi xám và gỗ nâu, vừa sang trọng vừa ấm áp, toát lên phong cách trẻ trung và hiện đại.

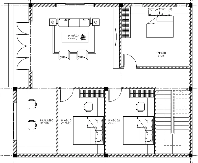
3. Công năng khoa học – Tối ưu tiện nghi cho gia đình
Ngôi nhà không chỉ đẹp về kiến trúc mà còn được bố trí công năng hợp lý, đáp ứng nhu cầu sinh hoạt của gia đình anh Hùng.
-
Tầng 1:
-
Phòng khách rộng rãi, liên thông với bếp – ăn, tạo không gian sinh hoạt chung thoáng đãng.
-
Phòng làm việc yên tĩnh, phù hợp với gia đình trẻ cần không gian sáng tạo và tập trung.
-
Khu bếp và bàn ăn được bố trí gọn gàng, kết hợp cửa sổ lớn để đón gió, tránh mùi.
-
-
Tầng 2:
-
3 phòng ngủ rộng rãi, đầy đủ tiện nghi, đảm bảo sự riêng tư.
-
Ban công và hệ cửa kính lớn giúp các phòng luôn tràn ngập ánh sáng tự nhiên.
-
Phòng sinh hoạt chung kết hợp phòng khách tầng 2, mang đến nơi kết nối gia đình ấm cúng.
-
4. Ưu điểm nổi bật của mẫu nhà 2 tầng mái bằng hiện đại 9,9×11,5m
-
Phong cách hiện đại: Hình khối kiến trúc trẻ trung, tinh tế, phù hợp xu hướng mới.
-
Tối ưu công năng: Bố trí khoa học, đầy đủ không gian sinh hoạt và nghỉ ngơi.
-
Tận dụng ánh sáng tự nhiên: Ban công kính, cửa kính lớn giúp không gian luôn sáng và thoáng.
-
Bền vững: Hệ mái bằng chắc chắn, tuổi thọ cao, chi phí bảo trì thấp.
-
Chi phí hợp lý: So với biệt thự cổ điển, chi phí thiết kế và thi công nhà 2 tầng mái bằng tiết kiệm hơn mà vẫn giữ được sự sang trọng.
Để tìm hiểu rõ hơn về tiêu chuẩn vật liệu xây dựng và các yếu tố ảnh hưởng đến chi phí, bạn có thể tham khảo thêm tại các bài viết chuyên sâu về vật liệu xây dựng cao cấp trên Wikipedia.
5. Techhome – Đồng hành cùng gia chủ kiến tạo không gian sống mơ ước
Với nhiều năm kinh nghiệm trong lĩnh vực thiết kế và thi công trọn gói nhà ở, biệt thự, Techhome luôn mang đến giải pháp kiến trúc thẩm mỹ, công năng tối ưu và chi phí hợp lý.
Chúng tôi cam kết:
-
Tư vấn tận tâm – Phương án thiết kế tối ưu.
-
Thi công trọn gói – Bàn giao đúng tiến độ.
-
Vật liệu chính hãng – Chất lượng bền vững.
-
Bảo hành dài hạn – An tâm tuyệt đối.
Xem thêm các dự án nổi bật khác của Techhome tại https://nhadeptechhome.vn/
