Nhà mái Nhật – Xu hướng kiến trúc chinh phục mọi gia chủ Việt
Nhà mái Nhật từ lâu đã trở thành biểu tượng của sự bền vững, sang trọng và gần gũi thiên nhiên. Với thiết kế mái dốc nhẹ, độ cân đối hài hòa, cùng khả năng chống nóng – chống thấm hiệu quả, nhà mái Nhật đang là lựa chọn số 1 cho các gia đình Việt muốn sở hữu một tổ ấm vừa đẹp vừa tiện nghi.
Trong xu hướng xây dựng hiện đại, nhà mái Nhật không chỉ đáp ứng yếu tố thẩm mỹ mà còn phù hợp khí hậu nhiệt đới gió mùa của Việt Nam. Chính vì vậy, ngày càng nhiều chủ đầu tư tìm đến Techhome để sở hữu những công trình mái Nhật chuẩn chỉ từ thiết kế đến thi công.
Ưu điểm vượt trội của nhà mái Nhật
1. Thiết kế sang trọng nhưng gần gũi
Nhà mái Nhật mang đến vẻ đẹp tinh tế, đơn giản mà vẫn hiện đại. Các đường nét kiến trúc mềm mại, kết hợp với hệ mái dốc vừa phải giúp công trình nổi bật nhưng không phô trương.
2. Phù hợp với mọi diện tích
Dù bạn sở hữu mảnh đất rộng hay hẹp, nhà mái Nhật đều có thể linh hoạt thiết kế. Từ biệt thự 1 tầng, 2 tầng đến nhà phố, mái Nhật luôn tạo cảm giác thoáng đãng, tối ưu không gian sử dụng.
3. Bền bỉ với thời gian
Cấu trúc mái Nhật được nghiên cứu kỹ lưỡng, độ dốc vừa phải giúp thoát nước nhanh, hạn chế thấm dột và chống ẩm mốc. Đồng thời, mái Nhật còn giúp giảm bức xạ nhiệt, giữ cho không gian bên trong mát mẻ vào mùa hè.
4. Tối ưu công năng và phong thủy
Nhà mái Nhật thường được bố trí không gian khoa học, có nhiều cửa sổ lớn đón ánh sáng và gió tự nhiên. Về phong thủy, mái Nhật được coi là kiểu mái “hòa hợp thiên nhiên”, mang đến sự an yên, thịnh vượng cho gia chủ.
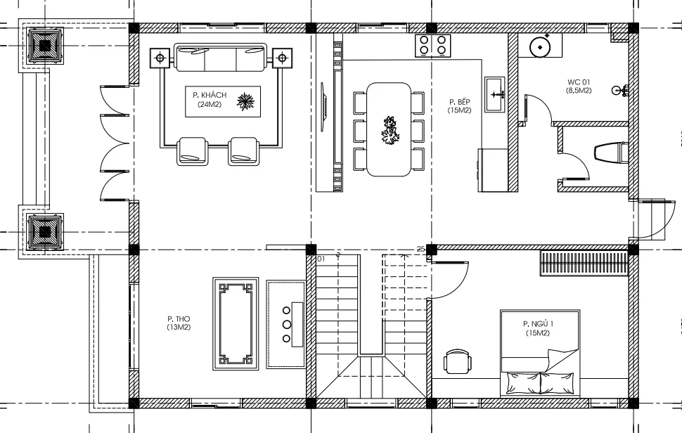
Bản vẽ công năng mẫu nhà mái Nhật 2 tầng tại Techhome
Trong mẫu thiết kế mới nhất của Techhome, căn nhà mái Nhật 2 tầng được bố trí thông minh, đáp ứng đầy đủ nhu cầu sinh hoạt của gia đình 3 – 4 thế hệ:
-
Tầng 1: Phòng khách rộng 24m², phòng bếp + ăn 15m², 1 phòng ngủ 15m², phòng thờ 13m² và WC tiện nghi.
-
Tầng 2: Bố trí phòng ngủ master, phòng ngủ phụ, phòng sinh hoạt chung và ban công rộng rãi.
Sự kết hợp giữa công năng tiện lợi và thẩm mỹ tinh tế giúp gia chủ tận hưởng một không gian sống hiện đại nhưng vẫn giữ trọn vẹn nét truyền thống.
Vì sao nên chọn Techhome để thiết kế và thi công nhà mái Nhật?
-
Đội ngũ kiến trúc sư giàu kinh nghiệm: Am hiểu kiến trúc Nhật – Việt, đảm bảo công trình tối ưu cả công năng lẫn thẩm mỹ.
-
Thi công trọn gói uy tín: Cam kết chất lượng vật liệu chuẩn, tiến độ nhanh chóng và bảo hành dài hạn.
-
Chi phí hợp lý, minh bạch: Techhome luôn đồng hành cùng khách hàng từ khâu dự toán đến hoàn thiện.
-
Hơn 500+ công trình đã bàn giao: Tạo dựng niềm tin tuyệt đối cho hàng trăm gia chủ khắp miền Bắc.
Để tìm hiểu rõ hơn về tiêu chuẩn vật liệu xây dựng và các yếu tố ảnh hưởng đến chi phí, bạn có thể tham khảo thêm tại các bài viết chuyên sâu về vật liệu xây dựng cao cấp trên Wikipedia.
Kết luận
Nhà mái Nhật không chỉ là một xu hướng, mà còn là giải pháp bền vững cho cuộc sống hiện đại. Với sự tinh tế, tiện nghi và bền đẹp theo thời gian, kiểu nhà này chắc chắn sẽ mang lại một tổ ấm hoàn hảo cho gia đình bạn.
Nếu bạn đang tìm kiếm đơn vị thiết kế và thi công nhà mái Nhật uy tín, Techhome sẵn sàng đồng hành cùng bạn kiến tạo không gian sống lý tưởng.
Xem thêm các dự án nổi bật khác của Techhome tại https://nhadeptechhome.vn/



