Khám phá chi tiết mẫu thiết kế nhà 2 tầng mái Nhật chữ L hiện đại của gia đình anh Phan tại Thuận Thành, Bắc Ninh. Techhome phân tích chuyên sâu về mặt bằng công năng 3 phòng ngủ, giải pháp vật liệu cao cấp và chi phí xây dựng tối ưu năm 2025. Hotline tư vấn: 0364.04.2222.
1. Xu hướng “Thiết kế nhà 2 tầng mái Nhật” – Làn gió mới tại Bắc Ninh
Trong bức tranh kiến trúc đa dạng tại Việt Nam hiện nay, thiết kế nhà 2 tầng mái Nhật đang nổi lên như một biểu tượng của sự sang trọng, thanh lịch và bền vững. Không quá cầu kỳ như mái Thái, cũng không quá đơn điệu như mái bằng, hệ mái Nhật (hay còn gọi là mái lùn) mang vẻ đẹp dung hòa giữa phương Đông và phương Tây, tạo nên sức hút khó cưỡng đối với các chủ đầu tư tại Bắc Ninh, và gia đình anh Phan tại huyện Thuận Thành cũng không ngoại lệ.
Tại sao mẫu nhà này lại được yêu thích đến vậy?
-
Thẩm mỹ vượt thời gian: Hệ mái mở rộng ra các hướng với độ dốc vừa phải giúp ngôi nhà trông bề thế, cân đối nhưng vẫn giữ được nét thanh thoát.
-
Công năng ưu việt: Phù hợp với khí hậu nhiệt đới ẩm gió mùa của miền Bắc. Độ dốc giúp thoát nước mưa nhanh chóng, trong khi kết cấu mái tạo lớp đệm không khí giúp chống nóng hiệu quả vào mùa hè và giữ ấm vào mùa đông.
-
Tối ưu chi phí: So với các loại hình kiến trúc cổ điển hay tân cổ điển rườm rà, thiết kế nhà 2 tầng mái Nhật hiện đại tập trung vào hình khối và vật liệu, giúp gia chủ tiết kiệm đáng kể chi phí đắp vẽ phào chỉ mà vẫn sở hữu một cơ ngơi đẳng cấp.
Dự án của anh Phan được Techhome triển khai là một minh chứng rõ nét cho xu hướng này: Một ngôi nhà chữ L thông minh, tối ưu diện tích đất và đáp ứng hoàn hảo nhu cầu của gia đình đa thế hệ.

2. Phối cảnh ngoại thất: Bản giao hưởng của hình khối và màu sắc
Khi nhìn vào phối cảnh Mẫu nhà 2 tầng mái Nhật đẹp, ngôi nhà hiện lên với vẻ đẹp khỏe khoắn, hiện đại. KTS đã khéo léo sử dụng ngôn ngữ kiến trúc hiện đại để thổi hồn vào từng đường nét.
2.1. Hình khối chữ L thông minh
Thiết kế nhà 2 tầng mái Nhật với kích thước mặt tiền khoảng 9.4m và chiều sâu 13.7m, việc lựa chọn dáng nhà chữ L là giải pháp “vàng”. Phần khuyết của chữ L không chỉ tạo nên điểm nhấn kiến trúc mà còn giải quyết bài toán không gian đỗ xe ô tô một cách tinh tế ngay trong khuôn viên nhà mà không cần xây gara riêng biệt tốn kém. Đồng thời, thiết kế này giúp đón gió và ánh sáng tự nhiên len lỏi vào sâu bên trong các phòng chức năng.
2.2. Sự phối hợp màu sắc và vật liệu tinh tế
Dựa trên hồ sơ kỹ thuật, Techhome đã chỉ định những vật liệu ngoại thất cao cấp để đảm bảo độ bền và thẩm mỹ:
-
Màu sơn: Sử dụng tông màu trắng sứ chủ đạo, mang lại cảm giác tươi mới, sạch sẽ và giúp ngôi nhà luôn nổi bật giữa cảnh quan xung quanh.
-
Điểm nhấn mặt tiền: Các mảng tường tại tầng 2 và khu vực dưới mái được ốp nhựa giả gỗ ngoài trời . Màu nâu trầm của gỗ kết hợp với màu trắng của tường tạo nên sự tương phản ấm áp, sang trọng.
-
Chân tường: Được ốp đá ong xám hoặc đá chẻ. Đây là chi tiết nhỏ nhưng đắt giá, giúp bảo vệ chân tường khỏi rêu mốc, ẩm ướt, đồng thời tạo cảm giác vững chãi cho khối đế công trình.
-
Hệ thống cửa: Toàn bộ cửa sổ và cửa đi ban công sử dụng nhôm hệ (nhôm Xingfa) kết hợp kính an toàn dày 6.38mm đến 8.38mm. Kính không chỉ mang lại vẻ đẹp hiện đại mà còn xóa nhòa ranh giới giữa nội thất và thiên nhiên.

3. Phân tích chuyên sâu mặt bằng công năng: Đỉnh cao của sự tiện nghi
Một bản vẽ thiết kế nhà 2 tầng mái Nhật thành công là khi nó giải quyết được trọn vẹn bài toán sinh hoạt của gia chủ. Hãy cùng đi sâu vào từng không gian trong ngôi nhà của anh Phan.
3.1. Tầng 1: Không gian kết nối và sẻ chia
Mặt bằng tầng 1 được bố trí tập trung vào các không gian sinh hoạt chung, tạo sự gắn kết giữa các thành viên:
-
Phòng khách (25.8m2): Bước qua sảnh chính là không gian phòng khách rộng rãi. Với cốt nền ±0.000, đây là nơi trang trọng nhất để đón tiếp khách khứa. Vị trí đặt sofa và kệ tivi được tính toán kỹ lưỡng để đảm bảo lối giao thông thuận tiện.
-
Bếp và Phòng ăn (22.5m2): Liên thông với phòng khách nhưng được ngăn cách nhẹ nhàng bởi hệ lam gỗ hoặc tủ trang trí (Tủ Decor). Diện tích này đủ rộng để bố trí bộ bàn ăn 6-8 ghế và hệ tủ bếp chữ L tiện dụng.
-
Phòng ngủ 01 (19m2): Techhome đặc biệt chú trọng bố trí một phòng ngủ lớn tại tầng 1. Đây là thiết kế nhân văn dành cho ông bà hoặc người lớn tuổi, giúp hạn chế việc leo cầu thang, đảm bảo an toàn tuyệt đối.
-
Vệ sinh chung (WC 01 – 4.2m2): Được đặt kín đáo phía cuối nhà, đảm bảo sự tế nhị và vệ sinh cho không gian sinh hoạt chung.

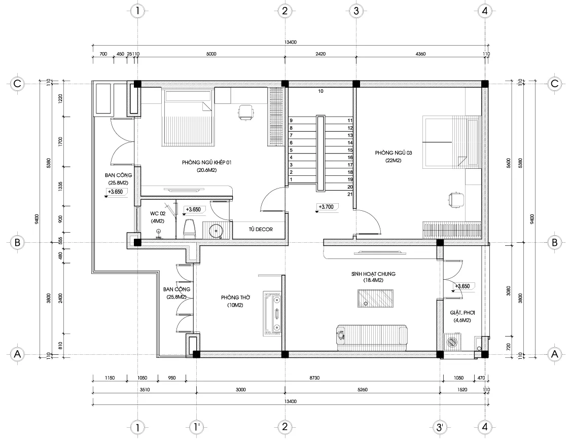
3.2. Tầng 2: Sự riêng tư và Tôn nghiêm
Di chuyển lên cầu thang bộ 21 bậc chuẩn phong thủy (Sinh – Lão – Bệnh – Tử), chúng ta đến với không gian nghỉ ngơi riêng tư tại tầng 2:
-
Phòng ngủ Master (20.6m2): Đây là “vương quốc” riêng của vợ chồng anh Phan. Căn phòng được thiết kế khép kín với nhà vệ sinh riêng (WC 02 – 4m2). Đặc biệt, phòng ngủ này sở hữu ban công rộng thoáng hướng ra mặt tiền, là nơi lý tưởng để thưởng thức ly cà phê buổi sáng.
-
Phòng ngủ 03 (22m2): Diện tích rất rộng rãi, được thiết kế dành cho con cái. Không gian này đủ để bố trí giường ngủ, tủ quần áo, bàn học và cả khu vực vui chơi nhỏ trong phòng.
-
Phòng sinh hoạt chung (18.4m2): Nằm ở vị trí trung tâm sảnh tầng, đây là nơi cả gia đình có thể quây quần xem phim, đọc sách hoặc trò chuyện trước khi đi ngủ, tăng sự gắn kết tình cảm.
-
Phòng thờ (10m2): Trong văn hóa Việt, phòng thờ là nơi linh thiêng nhất. KTS Techhome đã bố trí phòng thờ tại vị trí đẹp nhất của tầng 2, có cửa sổ hướng ra ban công mặt tiền, đảm bảo sự thông thoáng và trang nghiêm, hợp phong thủy đón tài lộc.
-
Sân giặt phơi (4.6m2): Khu vực giặt là được bố trí kín đáo phía sau, đảm bảo thẩm mỹ cho tổng thể ngôi nhà.

4. Giải mã hồ sơ kỹ thuật: Chất lượng làm nên thương hiệu Techhome
Sự khác biệt của Techhome nằm ở chi tiết kỹ thuật. Trong hồ sơ thiết kế nhà 2 tầng mái Nhật này, chúng tôi quy định rõ ràng các tiêu chuẩn vật liệu cao cấp:
4.1. Hệ thống cửa và An ninh
-
Cửa đi chính (D1): Sử dụng cửa nhôm hệ kính an toàn hoặc cửa gỗ pano kính, kích thước thông thủy lớn để đón khí vượng.
-
Cửa thông phòng (D5): Sử dụng cửa nhựa Composite chịu nước, chống mối mọt, kích thước 930x2400mm, đảm bảo độ bền trong môi trường khí hậu Việt Nam.
-
Khung bảo vệ: Hệ thống cửa sổ được gia cố bằng khung Inox 30×30 chống trộm, đảm bảo an ninh tuyệt đối cho gia đình.
4.2. Cầu thang và Sàn nhà
-
Cầu thang bộ: Là xương sống của ngôi nhà, cầu thang được đổ bê tông cốt thép chắc chắn. Mặt bậc ốp đá Granite đen ánh kim dày 20mm , cổ bậc ốp đá trắng, tạo hiệu ứng tương phản sang trọng. Tay vịn sử dụng gỗ Lim Nam Phi kết hợp lan can kính cường lực 12mm, mang lại vẻ đẹp hiện đại và tầm nhìn thoáng đãng.
-
Sàn nhà:
-
Sàn tầng 1: Lát gạch Granite vân mây màu trắng kích thước 800×800, giúp không gian thêm rộng mở và sang trọng.
-
Sàn vệ sinh & ban công: Sử dụng gạch Ceramic chống trơn kích thước 300×600, đảm bảo an toàn khi sử dụng nước.
-
4.3. Hệ thống Trần và Ánh sáng
Techhome thiết kế hệ thống trần thạch cao khung xương chìm giật cấp nghệ thuật. Kết hợp với đó là hệ thống đèn LED âm trần (Downlight) và đèn hắt khe, tạo nên kịch bản ánh sáng linh hoạt: sáng sủa khi sinh hoạt và ấm cúng khi nghỉ ngơi. Riêng khu vực vệ sinh và ban công sử dụng trần thạch cao chịu nước hoặc trần nhựa giả gỗ để tăng tuổi thọ công trình.

5. Bảng giá thi công và thiết kế nhà 2 tầng mái Nhật 2025
Một trong những câu hỏi lớn nhất của khách hàng khi tìm hiểu về thiết kế nhà 2 tầng mái Nhật là: “Chi phí bao nhiêu?”. Tại Techhome, chúng tôi cam kết minh bạch về tài chính.
Với tổng diện tích sàn xây dựng của nhà anh Phan khoảng hơn 200m2 (Tầng 1 + Tầng 2 + Mái), mức đầu tư có thể được ước tính như sau (Số liệu tham khảo thị trường 2024-2025):
-
Gói Thiết kế Kiến trúc & Kết cấu:
-
Bao gồm: Bản vẽ 3D phối cảnh, Hồ sơ kiến trúc, Hồ sơ kết cấu, Hồ sơ điện nước , Dự toán chi phí.
-
Đơn giá: Dao động từ 100.000đ – 120.000đ/m2.
-
-
Gói Thi công Phần thô:
-
Bao gồm: Vật liệu xây dựng (sắt thép, xi măng, gạch, cát đá…) và nhân công xây trát, đi điện nước ngầm.
-
Đơn giá: 3.800.000đ – 4.200.000đ/m2.
-
-
Gói Thi công Trọn gói (Chìa khóa trao tay):
-
Bao gồm: Phần thô + Vật liệu hoàn thiện (Gạch ốp lát, sơn bả, trần thạch cao, cửa, thiết bị vệ sinh, thiết bị điện…).
-
Đơn giá: 5.500.000đ – 7.000.000đ/m2 (Tùy thuộc vào chủng loại vật liệu gia chủ lựa chọn: Trung bình, Khá hay Cao cấp).
-
Lưu ý: Đây chỉ là mức chi phí ước tính. Để nhận được báo giá chính xác và chi tiết nhất cho công trình của bạn, vui lòng liên hệ trực tiếp với chúng tôi. Hoặc để tìm hiểu rõ hơn về tiêu chuẩn vật liệu xây dựng và các yếu tố ảnh hưởng đến chi phí, bạn có thể tham khảo thêm tại các bài viết chuyên sâu về vật liệu xây dựng cao cấp trên Wikipedia.
6. Tại sao khách hàng Bắc Ninh tin chọn Techhome?
Không phải ngẫu nhiên mà anh Phan tại Thuận Thành lại tin tưởng giao phó tổ ấm của mình cho Techhome. Chúng tôi tự hào mang đến những giá trị cốt lõi:
-
Chất lượng hồ sơ chuẩn chỉ: Mỗi bộ hồ sơ thiết kế đều trải qua quy trình kiểm duyệt nghiêm ngặt bởi Chủ trì thiết kế và Kiểm duyệt kỹ thuật .
-
Hỗ trợ kỹ thuật 24/7: Chúng tôi không chỉ bán bản vẽ, chúng tôi đồng hành cùng bạn. Techhome cam kết hỗ trợ tư vấn kỹ thuật xây dựng qua Hotline 0364.04.2222 trong suốt quá trình thi công, giúp gia chủ yên tâm dù tự xây hay thuê thợ.
-
Am hiểu địa phương: Với kinh nghiệm dày dạn tại thị trường Bắc Ninh, chúng tôi hiểu rõ địa chất, khí hậu và nguồn cung vật liệu tại địa phương để đưa ra giải pháp tối ưu nhất.
7. Lời kết
Mẫu thiết kế nhà 2 tầng mái Nhật chữ L của gia đình anh Phan không chỉ là một ngôi nhà, mà là một tác phẩm nghệ thuật kiến trúc, nơi lưu giữ hạnh phúc và sự bình yên cho cả gia đình.
Nếu bạn đang sở hữu một mảnh đất và ấp ủ giấc mơ về một ngôi nhà Đẹp – Sang – Tiện nghi, hãy để Techhome hiện thực hóa giấc mơ đó. Chúng tôi sẵn sàng lắng nghe và kiến tạo nên không gian sống lý tưởng nhất dành riêng cho bạn.
CÔNG TY CỔ PHẦN KIẾN TRÚC VÀ XÂY DỰNG TECHHOME
-
Địa chỉ: B1.1 LK17 – Ô số 4, KĐT Thanh Hà, Thanh Oai, Hà Nội
-
Hotline/Zalo: 0364.04.2222 – 0387.60.3333
- Xem thêm các dự án nổi bật khác của Techhome tại https://nhadeptechhome.vn/
Techhome – Kiến tạo không gian, Vun đắp hạnh phúc!


