Xây nhà là việc trọng đại cả đời. Giữa muôn vàn phong cách kiến trúc, làm sao để tìm được một mẫu thiết kế vừa túi tiền, vừa công năng lại không bao giờ lỗi mốt? Hôm nay, TechHome xin giới thiệu đến bạn một “siêu phẩm” thực tế: Mẫu nhà ống 3 tầng hiện đại của gia đình chị Bảy tại Nghi Sơn, Thanh Hóa. Đây là minh chứng cho việc nhà ống không chỉ là những khối hộp đơn điệu, mà là một tác phẩm nghệ thuật đầy cảm hứng.
1. Tổng quan dự án thiết kế mẫu nhà ống 3 tầng hiện đại
Khi tiếp nhận yêu cầu từ chị Bảy, đội ngũ kiến trúc sư (KTS) TechHome đã về trực tiếp Nghi Sơn để khảo sát khu đất. Mong muốn của chị là một không gian sống trẻ trung, tận dụng tối đa ánh sáng tự nhiên và có sự kết nối giữa các thành viên.
-
Chủ đầu tư: Chị Bảy.
-
Địa điểm: Nghi Sơn – Thanh Hóa.
-
Loại hình: Nhà phố (nhà ống) hiện đại.
-
Số tầng: 3 tầng + 1 tum.
-
Tổng diện tích thiết kế: 191m2.
-
Đơn vị thiết kế: Công ty Cổ phần Kiến trúc và Xây dựng Tech Home.

2. Điểm nhấn kiến trúc: Khi những đường cong lên tiếng
Nhìn vào phối cảnh mặt tiền, bạn sẽ thấy mẫu nhà ống 3 tầng hiện đại này sở hữu những đường nét cực kỳ tinh tế. Thay vì những góc cạnh sắc lẹm, TechHome đã ứng dụng kỹ thuật “bo góc” mềm mại. Điều này không chỉ giúp ngôi nhà trông thanh thoát hơn mà còn tạo cảm giác an toàn, gần gũi.
Gạch kính – “Vũ khí” lấy sáng thông minh
Một trong những điểm nhấn đắt giá nhất ở mặt tiền tầng 1 là mảng tường gạch kính. Đây là giải pháp tối ưu cho mẫu nhà ống 3 tầng hiện đại có diện tích mặt tiền hạn chế. Gạch kính giúp đón ánh sáng tự nhiên vào sâu bên trong nhà nhưng vẫn đảm bảo sự riêng tư tuyệt đối và khả năng cách âm, cách nhiệt cực tốt.
Sự kết hợp vật liệu hiện đại
Toàn bộ trần ban công và các sê-nô trang trí được ốp nhựa giả gỗ cao cấp, kết hợp cùng hệ thống đèn âm trần. Buổi tối, khi ánh đèn vàng hắt lên tông màu nâu ấm của gỗ, ngôi nhà hiện lên lung linh như một resort thu nhỏ giữa lòng phố thị.

3. Giải mã công năng tối ưu cho gia đình đông thành viên
Một mẫu nhà ống 3 tầng hiện đại đẹp thôi chưa đủ, nó phải “vừa vặn” với nhu cầu sinh hoạt. Với tổng diện tích 191m2, các KTS đã bố trí công năng cực kỳ khoa học.
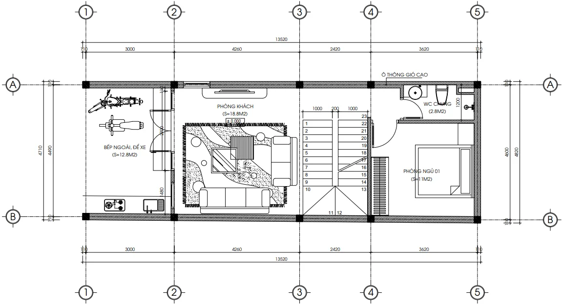
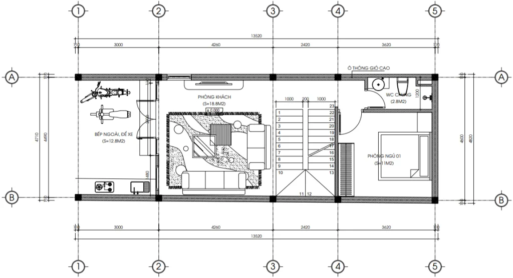
Tầng 1: Không gian sinh hoạt chung và khu bếp ngoài độc đáo
-
Bếp ngoài & Khu để xe (12.8m2): Một thiết kế rất thực tế với văn hóa Việt Nam. Việc tách biệt một khu bếp phụ bên ngoài giúp gia chủ thoải mái chế biến đồ tươi sống hoặc tổ chức ăn uống mà không lo ám mùi vào phòng khách.
-
Phòng khách (18.8m2): Nằm ngay sau sảnh chính, rộng rãi và thoáng đãng.
-
Phòng ngủ 01 (11m2): Dành cho người lớn tuổi hoặc khách đến chơi nhà, hạn chế việc phải leo cầu thang.
-
WC chung (2.8m2): Bố trí gọn gàng góc nhà để tối ưu diện tích.

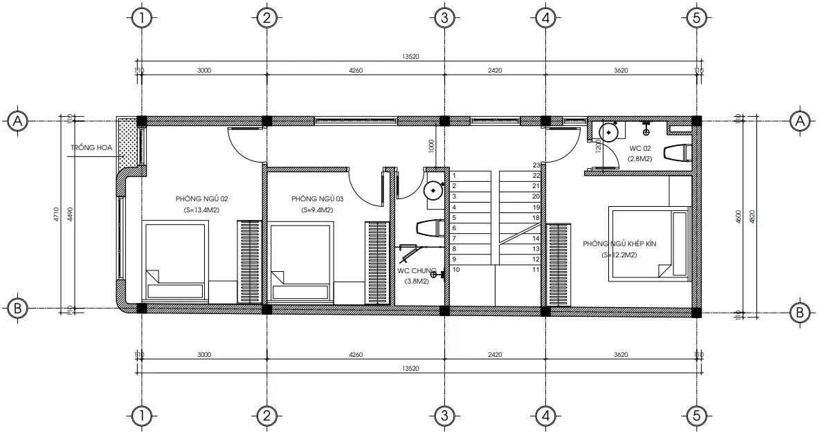
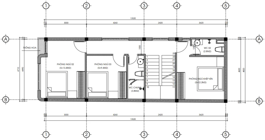
Tầng 2: “Trái tim” nghỉ ngơi của gia đình
Tầng 2 của mẫu nhà ống 3 tầng hiện đại này tập trung hoàn toàn cho việc nghỉ ngơi với 3 phòng ngủ:
-
Phòng ngủ 02 & 03: Diện tích từ 9.4m2 đến 13.4m2, phù hợp cho các con.
-
Phòng ngủ khép kín (Phòng Master): Có nhà vệ sinh riêng bên trong, tạo không gian riêng tư hoàn hảo cho vợ chồng chị Bảy.

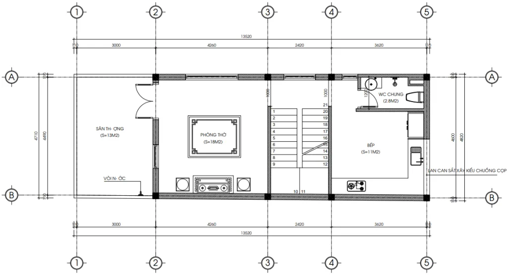
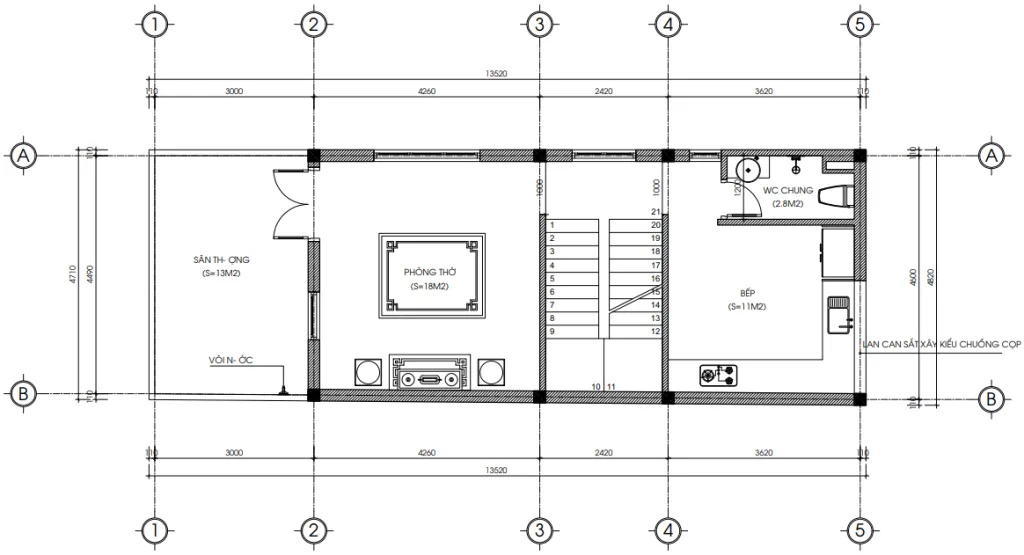
Tầng 3: Tâm linh và thư giãn
-
Phòng thờ (18m2): Đặt ở vị trí trang nghiêm nhất, có cửa hướng ra sân thượng.
-
Khu vực bếp tầng 3 (11m2): Rất tiện lợi cho những buổi tiệc BBQ trên sân thượng mà không phải vận chuyển thức ăn từ tầng 1 lên.
-
Sân thông (Sân thượng): Nơi gia chủ có thể trồng cây, thưởng trà vào mỗi buổi tối.

4. Tại sao mẫu nhà ống 3 tầng hiện đại lại trở thành xu hướng?
Không phải ngẫu nhiên mà chị Bảy lại lựa chọn mẫu nhà ống 3 tầng hiện đại. Dưới góc độ chuyên gia, TechHome nhận thấy kiểu nhà này hội tụ 3 yếu tố:
-
Tiết kiệm diện tích: Phù hợp với những lô đất phân lô tại các khu đô thị mới ở Nghi Sơn.
-
Chi phí đầu tư hợp lý: So với biệt thự hay nhà tân cổ điển, mẫu nhà ống 3 tầng hiện đại có chi phí xây dựng “dễ thở” hơn nhiều do lược bỏ các chi tiết phào chỉ rườm rà.
-
Tính thẩm mỹ bền vững: Sự tối giản luôn có sức sống lâu bền. 10 hay 20 năm nữa, ngôi nhà của bạn vẫn sẽ trông rất thời thượng.

5. Báo giá thi công mẫu nhà ống 3 tầng hiện đại (Tham khảo 2026)
TechHome hiểu rằng, sau khi xem xong bản vẽ, điều bạn quan tâm nhất chính là giá cả. Chúng tôi luôn minh bạch trong từng hạng mục:
| Hạng mục | Đơn giá (VND/m2) | Tổng chi phí ước tính |
| Thiết kế kiến trúc | 108.000 | 20.628.000 |
| Xây dựng phần thô | 3.800.000 – 4.200.000 | ~ 760.000.000 |
| Xây dựng trọn gói (Chìa khóa trao tay) | 6.500.000 – 7.500.000 | ~ 1.250.000.000 – 1.450.000.000 |
Lưu ý: Đây chỉ là mức chi phí ước tính. Để nhận được báo giá chính xác và chi tiết nhất cho công trình của bạn, vui lòng liên hệ trực tiếp với chúng tôi. Hoặc để tìm hiểu rõ hơn về tiêu chuẩn vật liệu xây dựng và các yếu tố ảnh hưởng đến chi phí, bạn có thể tham khảo thêm tại các bài viết chuyên sâu về vật liệu xây dựng cao cấp trên Wikipedia.

6. Lời khuyên từ chuyên gia TechHome khi xây mẫu nhà ống 3 tầng hiện đại
Để có một ngôi nhà ưng ý như chị Bảy, bạn cần lưu ý một vài “bí kíp” sau:
-
Đừng tiết kiệm diện tích cho giếng trời: Với nhà ống, ánh sáng và gió là sinh khí. Hãy hy sinh một ít diện tích sàn để làm giếng trời, bạn sẽ thấy ngôi nhà đáng sống hơn rất nhiều.
-
Ưu tiên vật liệu xanh: Sử dụng sơn không mùi, gạch không nung hoặc các tấm ốp thân thiện với môi trường giúp bảo vệ sức khỏe gia đình.
-
Chọn đơn vị thiết kế có tâm: Một bản vẽ chi tiết sẽ giúp bạn kiểm soát được 95% chi phí phát sinh và đảm bảo thợ thi công đúng ý đồ.
Mẫu nhà ống 3 tầng hiện đại không chỉ là một khối bê tông, nó là nơi bão dừng sau cánh cửa. Nếu bạn đang có ý định xây tổ ấm tại Thanh Hóa hay bất cứ đâu, đừng ngần ngại liên hệ với TechHome. Chúng tôi không chỉ xây nhà, chúng tôi cùng bạn kiến tạo tương lai.

Thông tin liên hệ:
-
Website: nhadeptechhome.vn
-
Hotline : 036.273.2222
-
Địa chỉ: B1.1 LK18 Ô 3 – KĐT Thanh Hà – Cienco 5 – Thanh Oai- Hà Nội.
