Trong xu hướng kiến trúc đương đại, nhu cầu về một không gian sống không chỉ đơn thuần là nơi che mưa nắng mà còn phải thể hiện được gu thẩm mỹ và phong cách sống của gia chủ ngày càng tăng cao. Nổi bật trong số đó, các mẫu thiết kế nhà 2 tầng hiện đại đang trở thành lựa chọn hàng đầu của nhiều gia đình Việt nhờ sự cân bằng hoàn hảo giữa chi phí, công năng và vẻ đẹp thời thượng.
Hôm nay, TechHome xin trân trọng giới thiệu đến quý khách hàng một tuyệt phẩm kiến trúc mới nhất năm 2025: Công trình nhà ở gia đình của Anh Hùng tại Hiệp Hòa, Bắc Giang. Đây là một ví dụ điển hình cho xu hướng thiết kế nhà 2 tầng hiện đại với không gian mở, phóng khoáng và tiện nghi.
1. Tại Sao Xu Hướng Thiết Kế Nhà 2 Tầng Hiện Đại Lại “Lên Ngôi”?
Không phải ngẫu nhiên mà từ khóa thiết kế nhà 2 tầng hiện đại luôn nằm trong top tìm kiếm của ngành xây dựng. Phong cách này mang lại những ưu điểm vượt trội mà các lối kiến trúc truyền thống khó có thể so sánh được.
Thứ nhất, thiết kế nhà 2 tầng hiện đại tập trung vào việc tối ưu hóa không gian sử dụng. Thay vì những chi tiết phào chỉ rườm rà, rối mắt, phong cách hiện đại ưu tiên các mảng khối vuông vức, đường nét dứt khoát, giúp ngôi nhà trông rộng rãi và thoáng đãng hơn so với diện tích thực tế.
Thứ hai, giải pháp kiến trúc này tận dụng tối đa ánh sáng tự nhiên và gió trời – yếu tố sống còn của một ngôi nhà khỏe mạnh. Thông qua việc sử dụng các vách kính lớn và bố trí hệ thống cửa khoa học, ngôi nhà luôn tràn ngập sinh khí.
Cuối cùng, thiết kế nhà 2 tầng hiện đại giúp gia chủ tiết kiệm chi phí thi công đáng kể so với phong cách cổ điển hay tân cổ điển, nhưng vẫn đảm bảo sự sang trọng và bền vững với thời gian.

2. Tổng Quan Về Công Trình Nhà Anh Hùng – Bắc Giang
Để hiểu rõ hơn về cách TechHome áp dụng tư duy thiết kế nhà 2 tầng hiện đại vào thực tế, hãy cùng điểm qua các thông số kỹ thuật ấn tượng của dự án này:
-
Chủ đầu tư: Anh Hùng.
-
Địa điểm: Hiệp Hòa, Bắc Giang.
-
Đơn vị thiết kế: Công ty Cổ phần Kiến trúc và Xây dựng TechHome.
-
Diện tích xây dựng: Mặt tiền 9.1m x Chiều sâu 15m (Diện tích sàn tầng 1 khoảng 135m2).
-
Công năng:
-
Tầng 1: Phòng khách lớn, Phòng thờ, Bếp ăn, 1 Phòng ngủ khép kín, WC chung.
-
Tầng 2: 3 Phòng ngủ (1 Master), Phòng sinh hoạt chung, Sân phơi, Ban công.
-

3. Phân Tích Vẻ Đẹp Kiến Trúc Ngoại Thất: Dấu Ấn Của Sự Phóng Khoáng
Nhìn vào phối cảnh mặt tiền, ngôi nhà của anh Hùng gây ấn tượng mạnh mẽ ngay từ cái nhìn đầu tiên. Đội ngũ kiến trúc sư TechHome đã khéo léo vận dụng ngôn ngữ thiết kế nhà 2 tầng hiện đại để tạo nên một diện mạo vừa vững chãi, vừa thanh thoát.
3.1. Hình khối kiến trúc độc đáo
Khác với những ngôi nhà mái thái quen thuộc, công trình này sử dụng hệ mái bằng (kết hợp mái tôn lạnh giấu bên trong tường thu hồi) để tạo nên sự vuông vức, gọn gàng. Đây là giải pháp thông minh trong thiết kế nhà 2 tầng hiện đại, vừa giúp thoát nước tốt, chống nóng hiệu quả, vừa giữ được vẻ đẹp thẩm mỹ của hình khối hộp.
Mặt tiền được chia thành các khối lồi lõm có chủ đích. Khối sảnh chính đua ra tạo điểm nhấn đón khách, trong khi các khối ban công tầng 2 được thiết kế rộng rãi, sử dụng lan can kính cường lực trong suốt giúp xóa nhòa ranh giới giữa trong và ngoài nhà.
3.2. Vật liệu và màu sắc thời thượng
Bảng màu chủ đạo của công trình là Trắng sứ – Ghi xám – Nâu gỗ. Đây là sự phối hợp màu sắc kinh điển trong thiết kế nhà 2 tầng hiện đại.
-
Mảng tường kính lớn: Điểm đắt giá nhất mặt tiền chính là hệ vách kính thông tầng (hoặc cửa sổ kính khổ lớn) chạy dọc bên phải nhà. Chi tiết này không chỉ mang lại vẻ đẹp sang trọng như các resort cao cấp mà còn giúp lấy sáng tối đa cho khu vực cầu thang và hành lang.
-
Hệ lam trang trí: Để giảm bớt sự đơn điệu của các bức tường phẳng, TechHome đã sử dụng hệ lam giả gỗ ốp tường và trần ban công. Màu nâu trầm ấm của gỗ giúp cân bằng lại sự lạnh lẽo của kính và bê tông, tạo cảm giác ấm cúng, gần gũi.
-
Đá ốp mặt tiền: Tầng 1 được ốp đá tự nhiên hoặc gạch vân đá màu xám sáng. Giải pháp này giúp bảo vệ chân tường khỏi rêu mốc, bụi bẩn, đồng thời tạo thế vững chãi cho “khối đế” của ngôi nhà.

4. Giải Pháp Công Năng Thông Minh Trong Thiết Kế Nhà 2 Tầng Hiện Đại
Một bản thiết kế nhà 2 tầng hiện đại thành công không chỉ đẹp ở vẻ bề ngoài mà còn phải khoa học ở cách bố trí bên trong. Với diện tích sàn hơn 130m2/sàn, TechHome đã kiến tạo nên một không gian sống lý tưởng cho gia đình đa thế hệ của anh Hùng.
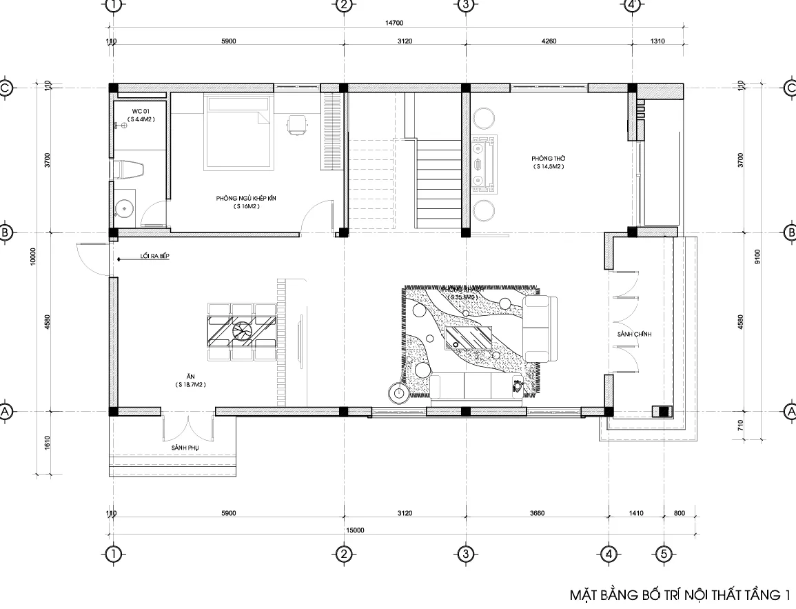
4.1. Tầng 1: Không gian kết nối và ấm cúng
Bước qua sảnh chính rộng rãi là Phòng Khách choáng ngợp với diện tích lên tới 36m2 (kết hợp sảnh đệm). Thiết kế mở giúp phòng khách liên thông với khu vực sảnh thang, tạo cảm giác không gian được nới rộng vô tận.
-
Phòng Thờ (14.5m2): Được bố trí trang trọng ngay tại tầng 1, hướng ra mặt tiền. Đây là nét đặc trưng văn hóa, giúp người lớn tuổi trong gia đình thuận tiện trong việc hương khói mà không phải leo tầng cao.
-
Phòng Bếp + Ăn (18.7m2): Nằm ở phía cuối nhà, có cửa ngăn mùi và lối đi ra sảnh phụ. Thiết kế này giúp việc đi chợ, sơ chế thực phẩm không ảnh hưởng đến không gian tiếp khách.
-
Phòng Ngủ 01 (16m2): Phòng ngủ khép kín dành cho ông bà được đặt tại tầng 1, đảm bảo sự yên tĩnh và an toàn.

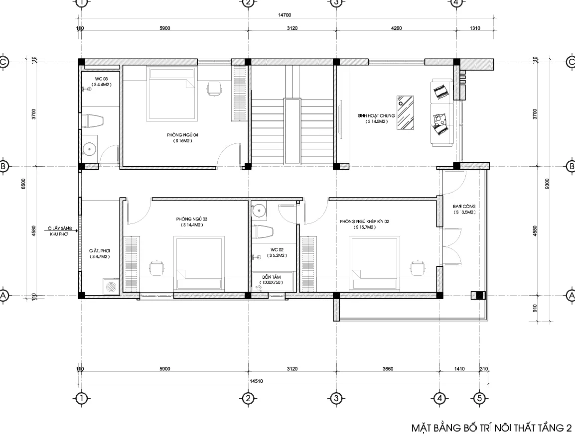
4.2. Tầng 2: Sự riêng tư và tiện nghi đỉnh cao
Tầng 2 là không gian nghỉ ngơi chính của vợ chồng anh Hùng và các con. Trong bản thiết kế nhà 2 tầng hiện đại này, sự riêng tư được đặt lên hàng đầu.
-
3 Phòng ngủ: Bao gồm 1 Phòng ngủ Master (15.7m2) có vệ sinh khép kín và 2 phòng ngủ thường (14.4m2 và 16m2). Tất cả các phòng đều sở hữu cửa sổ lớn đón gió đối lưu.
-
Phòng Sinh hoạt chung (14.5m2): Nằm ở vị trí trung tâm đối diện cầu thang. Đây là nơi cả gia đình quây quần xem phim, trò chuyện mỗi tối trước khi đi ngủ, gắn kết tình cảm thành viên.
-
Sân phơi & Ban công: Khu vực giặt phơi được bố trí kín đáo phía sau (4.7m2), trong khi ban công phía trước (3.5m2) là nơi gia chủ thư giãn, trồng cây cảnh.

5. Yếu Tố Kỹ Thuật Trong Thiết Kế Nhà 2 Tầng Hiện Đại
Để hiện thực hóa vẻ đẹp của bản vẽ 3D, phần kỹ thuật thi công đóng vai trò then chốt. Hồ sơ thiết kế nhà 2 tầng hiện đại của TechHome thể hiện chi tiết từng hạng mục kết cấu, điện nước để đảm bảo chất lượng công trình.
5.1. Kết cấu mái bền vững
TechHome sử dụng giải pháp mái tôn chống nóng kết hợp trần thạch cao và tường thu hồi xây bao quanh. Trên bản vẽ mặt cắt, bạn có thể thấy hệ xà gồ thép hộp và tôn sóng được tính toán độ dốc thoát nước kỹ lưỡng về sê-nô thu nước phía sau. Giải pháp này giúp ngôi nhà mang dáng vẻ mái bằng hiện đại nhưng khả năng chống nóng và chống thấm vượt trội hơn hẳn so với mái bê tông trần.
5.2. Hệ thống chiếu sáng thông minh
Bản vẽ mặt bằng trần đèn cho thấy sự đầu tư vào thiết kế ánh sáng. Hệ thống đèn Downlight âm trần kết hợp với đèn hắt khe trần thạch cao và đèn chùm trang trí tạo nên các kịch bản ánh sáng đa dạng, sang trọng. Đây là yếu tố quan trọng tôn lên vẻ đẹp nội thất của một ngôi nhà theo phong cách thiết kế nhà 2 tầng hiện đại.
5.3. Hệ thống cửa nhôm kính cao cấp
Toàn bộ hệ thống cửa đi và cửa sổ đều sử dụng nhôm hệ cao cấp kết hợp kính dán an toàn 8.38mm hoặc kính cường lực. Lựa chọn này không chỉ đảm bảo an ninh, cách âm, cách nhiệt mà còn là linh hồn của phong cách hiện đại, giúp ngôi nhà luôn sáng sủa và sang trọng.

6. Lợi Ích Khi Chọn TechHome Thiết Kế Nhà 2 Tầng Hiện Đại
Giữa hàng trăm đơn vị tư vấn, tại sao anh Hùng tại Bắc Giang lại tin tưởng lựa chọn TechHome để thực hiện bản thiết kế nhà 2 tầng hiện đại cho tổ ấm của mình?
-
Chuyên môn sâu: Chúng tôi chuyên sâu về phong cách hiện đại, luôn cập nhật những xu hướng vật liệu và giải pháp thi công mới nhất năm 2025.
-
Hồ sơ chi tiết: Bộ hồ sơ thiết kế của TechHome cực kỳ chi tiết, từ kiến trúc, kết cấu đến điện nước, giúp gia chủ và thợ thi công dễ dàng đọc hiểu, tránh sai sót.
-
Tối ưu chi phí: Giải pháp thiết kế nhà 2 tầng hiện đại của chúng tôi luôn hướng tới việc cắt giảm các chi tiết thừa thãi, tập trung vào công năng thực tế, giúp gia chủ tiết kiệm hàng trăm triệu đồng chi phí xây dựng.
-
Hỗ trợ giám sát: TechHome cam kết đồng hành cùng chủ đầu tư, hỗ trợ giải đáp thắc mắc kỹ thuật 24/7 trong suốt quá trình xây dựng.

7. Dự Toán Chi Phí Xây Dựng Nhà 2 Tầng Hiện Đại
Một câu hỏi lớn khi gia chủ quan tâm đến thiết kế nhà 2 tầng hiện đại là chi phí. Với diện tích xây dựng khoảng 135m2/sàn x 2 tầng, tổng diện tích sàn sử dụng khoảng 270m2.
-
Chi phí xây dựng phần thô dự kiến: Sẽ dao động tùy thuộc vào giá vật liệu tại địa phương (Bắc Giang) và thời điểm khởi công.
-
Chi phí hoàn thiện: Phụ thuộc vào chủng loại vật liệu (gạch ốp lát, thiết bị vệ sinh, cửa nhôm kính…) mà gia chủ lựa chọn.
TechHome luôn cung cấp bảng dự toán chi tiết, bóc tách khối lượng rõ ràng để khách hàng chủ động nguồn tài chính, tránh phát sinh.
Để tìm hiểu rõ hơn về tiêu chuẩn vật liệu xây dựng và các yếu tố ảnh hưởng đến chi phí, bạn có thể tham khảo thêm tại các bài viết chuyên sâu về vật liệu xây dựng cao cấp trên Wikipedia.

8. Lời Kết
Công trình nhà anh Hùng tại Bắc Giang là một minh chứng xuất sắc cho vẻ đẹp và tính ứng dụng cao của phong cách thiết kế nhà 2 tầng hiện đại. Ngôi nhà không chỉ là niềm tự hào của gia chủ mà còn góp phần tô điểm cho diện mạo kiến trúc tại địa phương.
Nếu bạn đang sở hữu một mảnh đất rộng và mong muốn xây dựng một không gian sống đẳng cấp, tiện nghi, hãy để TechHome giúp bạn hiện thực hóa giấc mơ đó. Với kinh nghiệm dày dặn và tư duy thẩm mỹ đột phá, chúng tôi tự tin mang đến cho bạn những bản thiết kế nhà 2 tầng hiện đại độc bản và hoàn hảo nhất.
Liên hệ ngay với chúng tôi để được tư vấn miễn phí!
CÔNG TY CỔ PHẦN KIẾN TRÚC VÀ XÂY DỰNG TECHHOME
-
Địa chỉ: B1.1 LK17 – Ô số 4, KĐT Thanh Hà, Thanh Oai, Hà Nội.
-
Hotline hỗ trợ kỹ thuật: 0364.042.222 – 0387.603.333.
- Xem thêm các dự án nổi bật khác của Techhome tại https://nhadeptechhome.vn/
Hãy để TechHome cùng bạn kiến tạo nên những ngôi nhà mơ ước với phong cách thiết kế nhà 2 tầng hiện đại dẫn đầu xu hướng!
