Giới thiệu về xu hướng thiết kế nhà phố hiện đại 2 tầng mái bằng
Trong bối cảnh đô thị ngày càng chật chội, nhà phố hiện đại 2 tầng mái bằng đang trở thành lựa chọn hàng đầu cho nhiều gia đình Việt. Không chỉ đáp ứng nhu cầu về công năng, mẫu nhà này còn mang đến vẻ đẹp tinh tế, sang trọng, đồng thời tối ưu diện tích đất một cách thông minh.
Thiết kế nhà phố hiện đại 2 tầng mái bằng phù hợp với nhiều diện tích đất khác nhau, từ lô đất hẹp ngang phổ biến tại các thành phố lớn cho đến những khu đất rộng hơn ở ngoại ô. Kiến trúc hiện đại kết hợp với mái bằng vuông vức mang lại phong cách trẻ trung, khỏe khoắn và đầy tiện nghi.
Ưu điểm nổi bật của nhà phố hiện đại 2 tầng mái bằng
Phong cách kiến trúc tối giản – sang trọng
Điểm mạnh của nhà phố hiện đại 2 tầng mái bằng chính là sự tối giản trong đường nét, loại bỏ những chi tiết rườm rà. Các mảng khối vuông vức, mặt tiền phẳng phiu kết hợp cùng kính cường lực, lam gỗ, sơn giả đá… tạo nên vẻ đẹp thanh lịch, sang trọng và hiện đại.
Tối ưu công năng sử dụng

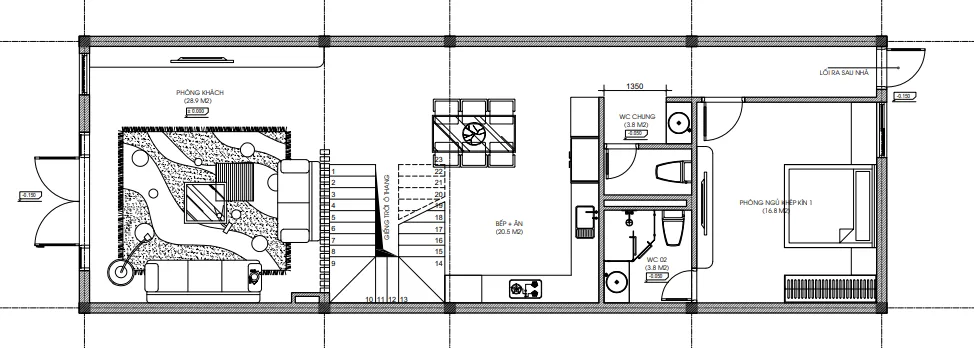
Thiết kế nhà phố hiện đại 2 tầng mái bằng thường bao gồm:
-
Tầng 1: phòng khách, bếp + ăn, 1 phòng ngủ, WC chung.
-
Tầng 2: phòng ngủ master, phòng ngủ con, phòng thờ, WC, ban công thoáng rộng.
Công năng được bố trí khoa học, đáp ứng nhu cầu sinh hoạt thoải mái của gia đình từ 3 – 5 thành viên.
Mái bằng bền bỉ – dễ bảo trì
So với mái thái hay mái nhật, mái bằng có độ bền cao hơn, khả năng chống chịu gió bão tốt, chi phí thi công tiết kiệm. Ngoài ra, gia chủ có thể tận dụng sân thượng làm nơi trồng cây xanh, sân phơi hoặc bố trí không gian thư giãn ngoài trời.
Tối ưu ánh sáng và gió tự nhiên
Các thiết kế nhà phố hiện đại thường chú trọng hệ thống cửa kính, giếng trời và ban công, giúp không gian luôn thoáng đãng, đón nắng gió tự nhiên, tiết kiệm điện năng.
Mẫu thiết kế nhà phố hiện đại 2 tầng mái bằng được ưa chuộng
Mẫu nhà ống 2 tầng mái bằng 4m – 5m mặt tiền
-
Phù hợp với các lô đất hẹp ngang phổ biến ở thành phố.
-
Thiết kế mặt tiền sử dụng lam gỗ hoặc kính cường lực để tạo điểm nhấn.
-
Công năng tối giản nhưng vẫn đảm bảo tiện nghi cho gia đình 3 – 4 người.
Mẫu nhà phố 2 tầng mái bằng có gara ô tô
-
Tầng 1 bố trí gara ô tô, phòng khách, bếp và phòng ngủ.
-
Tầng 2 gồm phòng ngủ master, phòng ngủ nhỏ và sân thượng.
-
Phù hợp với gia đình có nhu cầu để xe hơi hoặc diện tích đất lớn hơn.
Mẫu nhà phố 2 tầng mái bằng kết hợp sân vườn
-
Ban công rộng, sân thượng thoáng đãng trồng cây xanh.
-
Thiết kế mang hơi thở sinh thái, tạo không gian sống gần gũi thiên nhiên.
-
Được nhiều gia chủ ưa chuộng để cân bằng cuộc sống sau những giờ làm việc căng thẳng.
Yếu tố cần lưu ý khi thiết kế nhà phố hiện đại 2 tầng mái bằng
Bố trí công năng hợp lý
Mỗi gia đình có số lượng thành viên và thói quen sinh hoạt khác nhau. Khi thiết kế, cần bố trí phòng khách, bếp – ăn, phòng ngủ, WC… sao cho phù hợp, tối ưu diện tích sử dụng.
Chú trọng phong thủy
-
Hướng cửa chính, bếp, phòng ngủ cần hài hòa với mệnh của gia chủ.
-
Màu sắc ngoại thất – nội thất cũng nên lựa chọn theo ngũ hành để thu hút tài lộc và mang lại sự an yên cho gia đình.
Lựa chọn vật liệu bền đẹp
-
Sử dụng sơn chống thấm, kính cường lực, gạch ốp lát cao cấp để đảm bảo độ bền lâu dài.
-
Mái bằng cần xử lý chống thấm tốt, có hệ thống thoát nước khoa học.
Tối ưu chi phí xây dựng
Chi phí xây dựng nhà phố hiện đại 2 tầng mái bằng dao động từ 700 triệu đến hơn 1,5 tỷ đồng tùy vào diện tích, phong cách và vật liệu lựa chọn. Gia chủ nên tính toán kỹ, lựa chọn đơn vị thi công uy tín để tránh phát sinh.
Chi phí xây dựng nhà phố hiện đại 2 tầng mái bằng (2025)
Theo khảo sát mới nhất, chi phí xây dựng trung bình như sau:
-
Gói cơ bản: 5,5 – 8 triệu/m².
-
Gói khá: 6,5 – 9 triệu/m².
-
Gói cao cấp: từ 9 triệu/m² trở lên.
Ví dụ:
-
Nhà phố 2 tầng mái bằng diện tích 70m² (5x14m), xây dựng 2 tầng = 140m².
-
Chi phí dao động: 870 triệu – 1,6 tỷ đồng.
Lưu ý: Đây chỉ là mức chi phí ước tính. Để nhận được báo giá chính xác và chi tiết nhất cho công trình của bạn, vui lòng liên hệ trực tiếp với chúng tôi. Hoặc để tìm hiểu rõ hơn về tiêu chuẩn vật liệu xây dựng và các yếu tố ảnh hưởng đến chi phí, bạn có thể tham khảo thêm tại các bài viết chuyên sâu về vật liệu xây dựng cao cấp trên Wikipedia.
Xu hướng thiết kế nhà phố hiện đại 2 tầng mái bằng năm 2025
-
Ứng dụng vật liệu xanh: gạch không nung, sơn sinh thái, năng lượng mặt trời.
-
Không gian mở: liên thông phòng khách – bếp – ăn, tăng sự kết nối.
-
Ban công xanh: trồng cây, tiểu cảnh để tạo không gian thư giãn.
-
Smart home: tích hợp hệ thống chiếu sáng, rèm cửa, an ninh thông minh.
Tại sao nên chọn Techhome cho thiết kế & thi công nhà phố hiện đại 2 tầng mái bằng?
-
Kinh nghiệm lâu năm trong thiết kế & thi công trọn gói.
-
Đội ngũ kiến trúc sư chuyên nghiệp, luôn cập nhật xu hướng mới.
-
Bảo hành, bảo trì uy tín sau khi bàn giao.
-
Cam kết tối ưu chi phí và hạn chế phát sinh.
Techhome đã đồng hành cùng hàng trăm gia đình, kiến tạo nên những ngôi nhà phố hiện đại, sang trọng, tiện nghi và bền vững theo thời gian.
Kết luận
Thiết kế nhà phố hiện đại 2 tầng mái bằng là lựa chọn hoàn hảo cho gia đình Việt trong thời đại mới. Không chỉ tối ưu công năng, tiết kiệm chi phí, mẫu nhà này còn mang đến không gian sống sang trọng, tiện nghi và bền vững.
Nếu bạn đang có ý định xây dựng nhà phố 2 tầng mái bằng hiện đại, hãy liên hệ với Techhome để được tư vấn và báo giá chi tiết. Chúng tôi cam kết mang đến cho bạn ngôi nhà mơ ước – tổ ấm bền vững, tiện nghi và chuẩn xu hướng 2025.
Hotline: 0364 042 222 – 0387 603 333
Xem thêm các dự án nổi bật khác của Techhome tại https://nhadeptechhome.vn/





