Khám phá mẫu thiết kế nhà ống 2 tầng hiện đại 4m mặt tiền tại An Dương, Hải Phòng của Techhome. Tối ưu công năng trên diện tích 4×19.55m, ngoại thất ấn tượng, chi phí hợp lý. Xem ngay bản vẽ chi tiết!
🏗️ Giới thiệu chung về Dự án Nhà Ống 2 Tầng
Dự án thiết kế nhà ở gia đình của Anh Tiến tại An Dương – Hải Phòng là một minh chứng hoàn hảo cho phong cách kiến trúc Hiện đại . Với diện tích đất hạn chế của nhà phố, nhà ống 2 tầng trở thành giải pháp tối ưu, mang lại không gian sống tiện nghi, thoáng đãng mà vẫn đảm bảo tính thẩm mỹ cao. Công trình được thực hiện bởi Công ty Cổ phần Kiến trúc và Xây dựng Techhome.
Căn nhà được thiết kế trên một lô đất có kích thước mặt tiền 4.02m (tính cả tường bao) và chiều dài lên đến 19.55m. Đây là một bài toán thiết kế đòi hỏi sự sắp xếp công năng cực kỳ khoa học để tận dụng tối đa chiều sâu, đảm bảo các phòng đều nhận được ánh sáng và gió tự nhiên. Phong cách Hiện đại được lựa chọn với các đường nét vuông vắn, tối giản, kết hợp màu sắc trung tính (trắng, xám) tạo nên vẻ ngoài thanh lịch và bền vững theo thời gian.

🎨 Phối cảnh ngoại thất ấn tượng của nhà ống 2 tầng
Ngoại thất nhà Anh Tiến thể hiện rõ tinh thần tối giản và hiện đại, tập trung vào sự tinh tế và công năng .
- Màu sắc và Hình khối: Tổng thể sử dụng tông màu trắng chủ đạo , làm nền nổi bật cho các chi tiết kiến trúc màu xám và vật liệu gỗ/giả gỗ ở cửa cổng và trần ban công . Các hình khối vuông vắn, sắc nét được làm mềm mại bởi chi tiết bo cong ở phần mái tầng 2, tạo sự phá cách và hiện đại .
- Cửa cổng và Mặt tiền Tầng 1: Cổng chính là sự kết hợp giữa khung thép hộp sơn tĩnh điện màu đen và các nan gỗ/giả gỗ màu nâu ấm, mang lại sự chắc chắn nhưng không kém phần sang trọng . Tầng trệt được ốp lát vật liệu giả đá (hoặc đá tự nhiên) màu trắng xám, tạo sự vững chãi và sạch sẽ cho khu vực gara.
- Ban công Tầng 2 và Mái: Ban công rộng rãi, sử dụng lan can thép hộp hiện đại, cung cấp không gian thư giãn ngoài trời, có bố trí cây xanh nhỏ. Phần mái được thiết kế dạng mái bằng, lợp tôn chống nóng (có thể là mái tôn giả ngói màu tối) , đảm bảo khả năng chống thấm và tản nhiệt hiệu quả cho toàn bộ ngôi nhà ống 2 tầng. Chiều cao tầng 2 (cốt sàn +3.700) và mái (+7.200) được tính toán hợp lý.

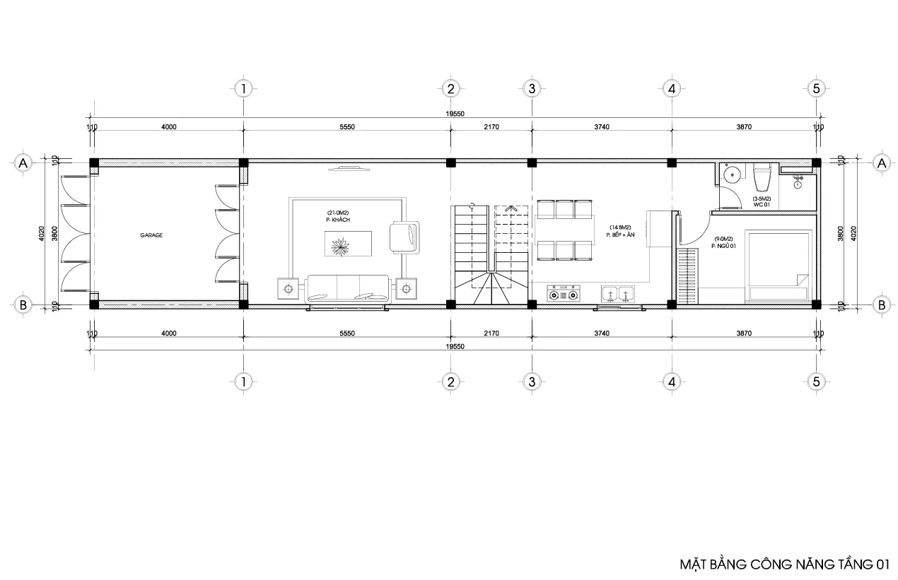
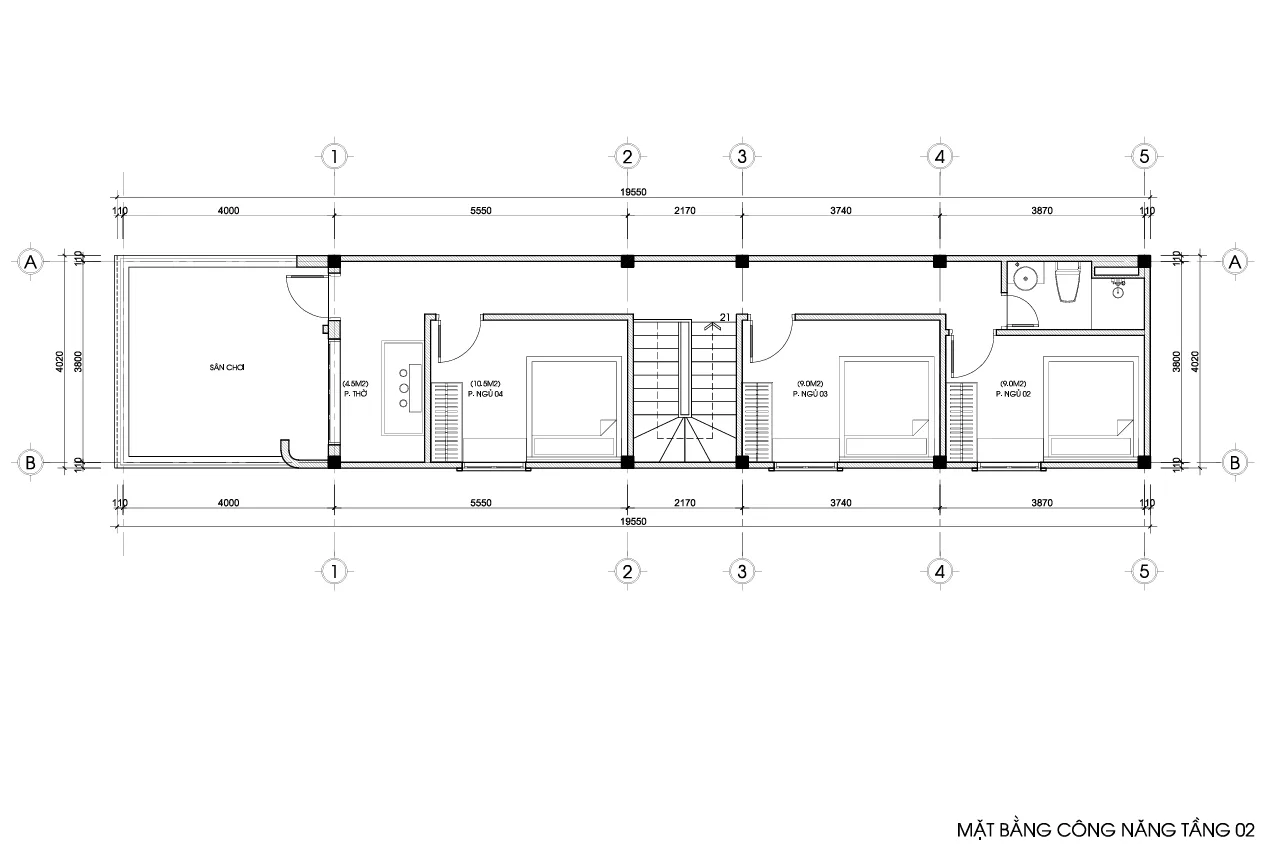
📐 Phân tích mặt bằng công năng tối ưu
Với tổng chiều dài xây dựng 19.55m và chiều rộng 3.8m (lòng nhà), mặt bằng công năng của nhà ống 2 tầng được bố trí khoa học, chia thành các khu vực rõ ràng:
Mặt bằng Tầng 1
- Gara/Sân trước: Chiếm khoảng 4m đầu tiên của chiều dài, đủ rộng rãi cho việc đậu xe hơi và xe máy.
- Phòng Khách: Có diện tích rộng 21M², nằm ngay sau gara, tạo sự kết nối và thuận tiện khi tiếp đón khách.
- Cầu thang và WC Chung: Khu vực giao thông được đặt ở giữa, tận dụng không gian hiệu quả. WC chung có diện tích 3.5M², được đặt ở vị trí khuất, đảm bảo sự riêng tư.
- Phòng Bếp + Ăn: Diện tích 14.5M², thiết kế liền mạch với phòng khách và cầu thang, tạo cảm giác không gian mở, hiện đại.
- Phòng Ngủ 01: Nằm cuối nhà 9 m2, đảm bảo sự yên tĩnh tối đa, có cửa sổ/cửa đi ra sân sau nhỏ .

Mặt bằng Tầng 2
- Phòng Thờ: Bố trí ở phía trước (4.5M²), liền kề với ban công, đảm bảo sự trang nghiêm và thông thoáng.
- Phòng Ngủ 04: Diện tích 10.5M², nằm giữa nhà, yên tĩnh.
- Phòng Ngủ 2 và 3: Diện tích 9 m2, nằm phía sau nhà.
- Sân Chơi/Phòng Giặt: Khu vực phía trước được dành cho sân chơi, có thể làm phòng giặt hoặc phơi đồ, đảm bảo sự riêng tư và tiện ích.
Sự bố trí này tối ưu hóa không gian hẹp chiều ngang và sâu, đảm bảo ánh sáng và thông gió tự nhiên cho các khu vực chính thông qua các cửa sổ, cửa đi và giếng trời .

🛠️ Đánh giá về Kết cấu và Vật liệu xây dựng
Hồ sơ thiết kế kỹ thuật thi công này được Techhome thực hiện dựa trên nguyên tắc chất lượng và bền vững.
- Kết cấu: Sử dụng kết cấu Bê tông cốt thép (BTCT) đổ tại chỗ mác 200 cho sàn, đảm bảo độ chịu lực cao và tuổi thọ công trình dài lâu, phù hợp với tiêu chuẩn xây dựng nhà phố hiện nay.
- Vật liệu Hoàn thiện:
- Sàn: Sử dụng chủ yếu Gạch Granite kích thước lớn (800x800mm) cho phòng khách, bếp và phòng ngủ để tạo không gian liền mạch, sang trọng. Khu vực vệ sinh sử dụng Gạch Ceramic chống trơn (300x300mm) và lát đá granite/vân đá ở cầu thang và một số chi tiết ngoại thất.
- Cửa: Hệ cửa chính là cửa đi 4 cánh mở bằng Thép Hộp kích thước 3200x2800mm, đảm bảo an ninh và sự bề thế. Các cửa đi/cửa sổ bên trong sử dụng Cửa Nhôm Hệ – Kính cường lực (dày 6.38mm hoặc 8.38mm), mang lại sự hiện đại, cách âm, cách nhiệt tốt.
- Thiết bị Vệ sinh: Trang bị thiết bị men trắng cao cấp (Xí bệt, Lavabo + Gương soi).

🌟 Lợi ích và Giá trị khi chọn Techhome
Lựa chọn Techhome là chọn sự an tâm tuyệt đối cho công trình của bạn.
- Năng lực Thiết kế và Thi công: Techhome sở hữu đội ngũ Kiến trúc sư và kỹ sư giàu kinh nghiệm, đảm bảo từ khâu ý tưởng đến bản vẽ kỹ thuật chi tiết đều đạt độ chính xác và tối ưu cao nhất.
- Quy trình Chuyên nghiệp: Từ hồ sơ thiết kế kỹ thuật thi công đến mặt bằng công năng và chi tiết vật liệu, mọi thứ đều được minh bạch và kiểm duyệt chặt chẽ.
- Cam kết Chất lượng: Techhome cam kết sử dụng vật liệu xây dựng đạt chuẩn, đảm bảo chất lượng kết cấu, chống thấm, và thẩm mỹ cho công trình. Các chi tiết kỹ thuật thang , vệ sinh được thể hiện chi tiết, rõ ràng.
- Hỗ trợ Kỹ thuật Xây dựng: Luôn sẵn sàng hỗ trợ tư vấn kỹ thuật xây dựng qua hotline: 0364042222 – 0387603333, đồng hành cùng chủ đầu tư trong suốt quá trình thi công.
💰 Dự án Nhà Anh Tiến có giá bao nhiêu?
Chi phí xây dựng nhà ống 2 tầng hiện đại có thể được tính theo công thức Diện tích xây dựng x Đơn giá.
- Diện tích xây dựng ước tính:
- Mặt bằng Tầng 1 (100% diện tích): 4.02x 19.55 = 78.59 m2
- Mặt bằng Tầng 2 (100% diện tích): 4.02 x 19.55 = 78.59 m2
- Mặt bằng Mái bằng (khoảng 30-50% diện tích sàn): 78.59 x 40\% = 31.44 m2
- Tổng diện tích sàn quy đổi: = 188.62 m2
- Đơn giá tham khảo (trọn gói chìa khóa trao tay): Thường dao động từ 5.500.000 VNĐ – 7.500.000 VNĐ/m² (tùy thuộc vào vật liệu hoàn thiện chi tiết và yêu cầu riêng).
| Hạng mục | Đơn giá ước tính (VNĐ/m²) | Tổng chi phí (VNĐ) |
| Phần Thô & Nhân công Hoàn thiện | 3.500.000 – 4.500.000 | 660.170.000 – 848.790.000 |
| Trọn gói Chìa khóa trao tay | 5.500.000 – 7.500.000 | = 1.037.410.000 – 1.414.650.000 |
Lưu ý: Đây chỉ là mức chi phí ước tính. Để nhận được báo giá chính xác và chi tiết nhất cho công trình của bạn, vui lòng liên hệ trực tiếp với chúng tôi. Hoặc để tìm hiểu rõ hơn về tiêu chuẩn vật liệu xây dựng và các yếu tố ảnh hưởng đến chi phí, bạn có thể tham khảo thêm tại các bài viết chuyên sâu về vật liệu xây dựng cao cấp trên Wikipedia.
📞 Kết luận
Dự án nhà ống 2 tầng hiện đại của Anh Tiến tại An Dương – Hải Phòng là sự kết hợp hài hòa giữa kiến trúc hiện đại, công năng tối ưu và giải pháp vật liệu bền vững. Mẫu thiết kế này không chỉ giải quyết được vấn đề diện tích hẹp mà còn tạo nên một không gian sống đẳng cấp, tiện nghi cho gia đình.
Đừng ngần ngại liên hệ ngay với Techhome để biến ý tưởng về ngôi nhà mơ ước của bạn thành hiện thực. Chúng tôi cam kết mang đến dịch vụ thiết kế và thi công xây dựng chuyên nghiệp, trọn gói, với chi phí minh bạch và chất lượng vượt trội.
LIÊN HỆ TƯ VẤN THIẾT KẾ VÀ XÂY DỰNG:
- Hotline: 0364042222 hoặc 0387603333
- Công ty Cổ phần Kiến trúc và Xây dựng Techhome
Xem thêm các dự án nổi bật khác của Techhome tại https://nhadeptechhome.vn/


