Chiêm Ngưỡng Mẫu Thiết Kế Nội Thất Hiện Đại Sang Trọng Tối Ưu Từng m2 Tại Hưng Yên

Khám phá mẫu thiết kế nội thất hiện đại cao cấp tại Hưng Yên, tối ưu không gian sống với công năng khoa học, vật liệu bền vững. Xem chi phí và nhận tư vấn thiết kế từ Techhome ngay!

🏡 Thiết Kế Nội Thất Hiện Đại Sang Trọng Tại Hưng Yên

Dự án thiết kế nội thất hiện đại cho gia đình Anh Minh tại Hưng Yên là một minh chứng rõ ràng cho sự kết hợp hoàn hảo giữa phong cách Hiện đại tinh tế và công năng sử dụng tối ưu. Phong cách Hiện đại được lựa chọn không chỉ mang lại vẻ đẹp thời thượng, mà còn giải phóng không gian, tạo cảm giác thoáng đãng và rộng rãi cho căn nhà.

Mục tiêu chính của dự án là kiến tạo một không gian sống không chỉ đẹp, tiện nghi mà còn phản ánh được cá tính và gu thẩm mỹ cao của gia chủ. Từ phòng khách, khu vực bếp ăn đến phòng ngủ cá nhân, mỗi chi tiết đều được Techhome chăm chút tỉ mỉ, đảm bảo sự liên kết hài hòa trong tổng thể. Sự khéo léo trong việc sử dụng ánh sáng, màu sắc trung tính kết hợp vật liệu cao cấp đã nâng tầm không gian sống, biến ngôi nhà thành một tổ ấm lý tưởng.

🛋️ Phối cảnh Thiết kế Nội thất Hiện Đại: Vẻ Đẹp Tối Giản Tinh Tế và Tiện Nghi Cao Cấp

Các hình ảnh phối cảnh cho thấy một không gian nội thất được thiết kế theo hướng mởliên thông, đặc biệt ở khu vực phòng khách và bếp ăn, giúp tối đa hóa ánh sáng tự nhiên và luồng không khí.

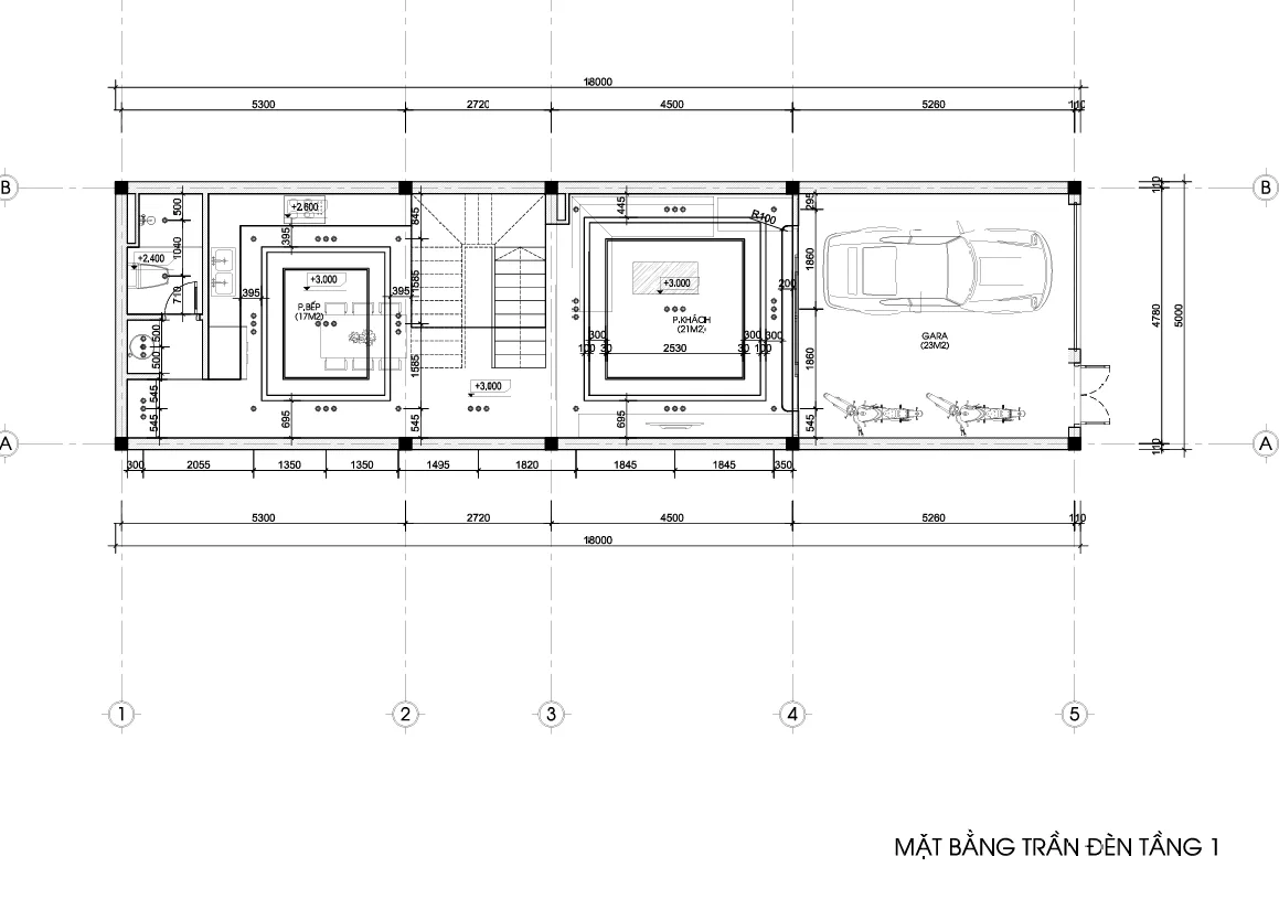
  • Phòng Khách: Nổi bật với bộ sofa gỗ tự nhiên tone màu nâu trầm ấm áp, kết hợp với bàn trà mặt kính, tạo nên sự giao thoa giữa nét truyền thống và hiện đại. Điểm nhấn là bức tường ốp đá tự nhiên/nhân tạo vân mây màu trắng sáng cùng các mảng ốp gỗ/nhựa giả gỗ dọc, tạo chiều sâu và sự sang trọng. Khu vực cầu thang được tận dụng khéo léo, không gian được bổ sung thêm hồ cá cảnh, mang yếu tố phong thủy và thiên nhiên vào nhà.
  • Khu Vực Bếp & Ăn: Bàn ăn gỗ với mặt kính cùng 6 chiếc ghế gỗ màu vàng nhạt mang lại cảm giác ấm cúng, mời gọi. Hệ tủ bếp chữ L cao sát trần với tone màu trắng/ghi hiện đại, tích hợp tủ lạnh và các thiết bị bếp thông minh, đảm bảo sự gọn gàng và tiện dụng tối đa cho người nội trợ.
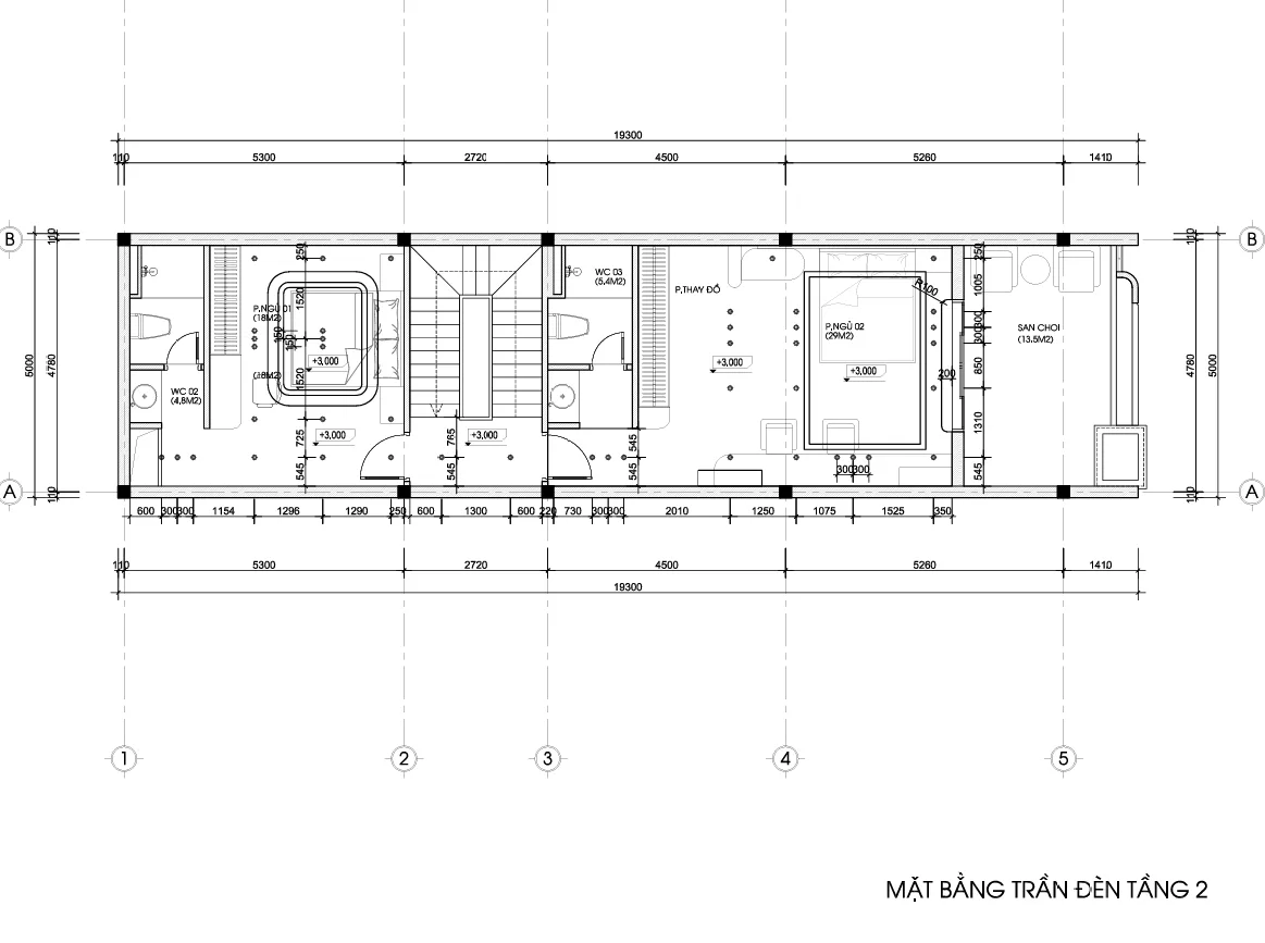
  • Phòng Ngủ: Các phòng ngủ (phòng ngủ Master và phòng ngủ cho con/làm việc) đều duy trì sự thống nhất về phong cách. Thiết kế nội thất hiện đại tập trung vào sự tối giảncông năng, tích hợp bàn làm việc đôi (hoặc bàn trang điểm) cùng hệ tủ quần áo cánh phẳng lớn, tối ưu hóa diện tích lưu trữ. Màu sắc chủ đạo là các gam trung tính như trắng, be, nâu gỗ, tạo không gian nghỉ ngơi thư thái và dễ chịu.

       Khu Vực Phòng Thờ: Không Gian Tâm Linh Tĩnh Lặng và Trang Trọng

Phòng Thờ là một không gian đặc biệt, thể hiện lòng thành kính và giữ gìn nét văn hóa truyền thống của gia đình Việt. Dù theo đuổi phong cách Hiện đại, Techhome vẫn đảm bảo khu vực này giữ được sự tĩnh tại, trang nghiêm nhưng vẫn hài hòa với tổng thể kiến trúc:

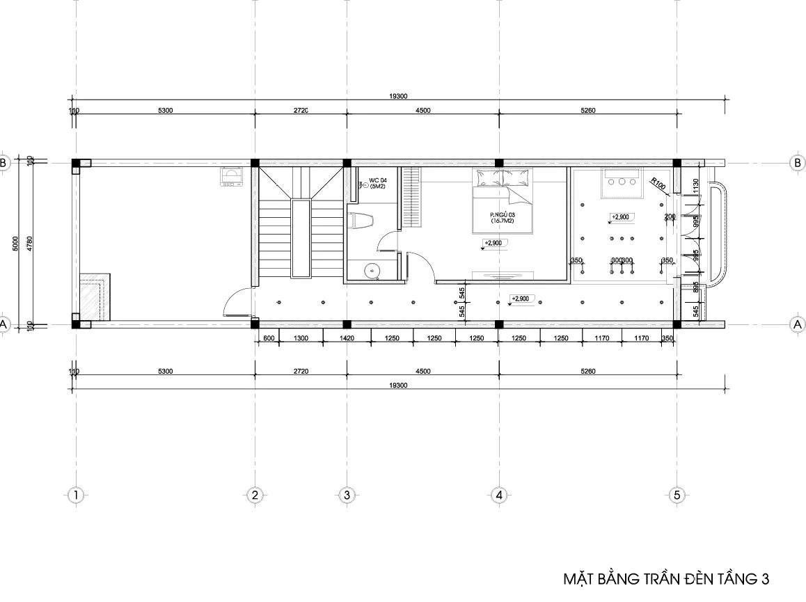
  • Vị trí Tôn Nghiêm: Phòng Thờ được bố trí ở vị trí cao nhất (tầng 3), yên tĩnh nhất trong nhà, tránh xa các khu vực sinh hoạt ồn ào.
  • Thiết Kế Đơn Giản, Ấm Cúng: Nội thất tập trung vào sự tối giản với chất liệu gỗ tự nhiên (như gỗ Óc Chó, Gõ Đỏ hoặc Sồi) cho bàn thờ và tủ thờ. Tone màu trầm ấm của gỗ không chỉ mang lại sự cổ kính cần thiết mà còn tạo cảm giác kết nối tâm linh sâu sắc.
  • Ánh Sáng: Hệ thống ánh sáng được bố trí rất tinh tế, thường là đèn vàng dịu nhẹ, tập trung chiếu sáng vào bàn thờ để tạo điểm nhấn trang trọng, tránh sử dụng đèn chùm quá rực rỡ hoặc ánh sáng trắng làm mất đi vẻ tôn kính.
  • Tối Ưu Phong Thủy: Các chi tiết trang trí như mành che, vách ngăn CNC họa tiết truyền thống (chữ Vạn, hoa sen) được sử dụng khéo léo để đảm bảo yếu tố phong thủy, giúp không gian vừa riêng tư lại vừa thông thoáng. Đây chính là giải pháp thiết kế Phòng Thờ Hiện đại mà vẫn giữ trọn vẹn giá trị tâm linh.

📐 Phân tích Mặt Bằng Công Năng Tối Ưu 

Nhà ống 3 tầng với thiết kế nội thất hiện đại có thể thấy rõ sự bố trí công năng khoa học và hợp lý:

  • Tính Liên Kết Mở: Khu vực sinh hoạt chung (Phòng Khách – Bếp – Ăn) được thiết kế mở hoàn toàn, giúp tăng tính tương tác giữa các thành viên, đồng thời tối ưu hóa diện tích sử dụng, tạo cảm giác không gian lớn hơn diện tích thực.
  • Tận Dụng Chiều Cao và Ánh Sáng: Hệ tủ kịch trần (tủ bếp, tủ quần áo) được ứng dụng triệt để, tận dụng tối đa không gian lưu trữ theo chiều đứng. Việc sử dụng cửa sổ kính lớn, rèm mỏng giúp điều tiết ánh sáng tự nhiên một cách hiệu quả, giảm nhu cầu chiếu sáng nhân tạo vào ban ngày.
  • Khu Vực Học Tập/Làm Việc: Các phòng ngủ đều được bố trí góc làm việc/học tập tiện lợi với bàn dài, đủ chỗ cho 2 người, tích hợp kệ sách treo tường hoặc tủ đứng để tăng không gian trưng bày và lưu trữ tài liệu. Sự sắp xếp này đảm bảo sự riêng tư nhưng vẫn đầy đủ tiện nghi cho các hoạt động cá nhân.

🧱 Đánh giá về Vật liệu và Độ Bền Vững của Thiết kế nội thất hiện đại

Trong dự án này, Techhome ưu tiên sử dụng các vật liệu chất lượng cao, đảm bảo cả về tính thẩm mỹđộ bền vững theo thời gian.

  • Vật liệu Gỗ Công Nghiệp: Sử dụng cốt MDF chống ẩm phủ Melamine/Laminate/Acrylic cao cấp, đặc biệt cho hệ tủ bếp và tủ quần áo. Ưu điểm của loại vật liệu này là khả năng chống cong vênh, mối mọt tốt, đa dạng về màu sắc và vân gỗ, phù hợp với phong cách hiện đại và dễ dàng vệ sinh.
  • Gỗ Tự Nhiên (Nếu có): Có thể là gỗ Óc Chó, Sồi hoặc Xoan Đào cho các chi tiết như sofa, bàn ăn, giường ngủ, mang lại độ bền vượt trội và giá trị thẩm mỹ cao.
  • Vật liệu Bề Mặt:
    • Mặt bàn/Tường bếp: Sử dụng đá nhân tạo hoặc đá tự nhiên (ví dụ: đá Marble) với họa tiết vân mây, đảm bảo khả năng chịu nhiệt, chống thấm và dễ lau chùi.
    • Phụ kiện: Sử dụng phụ kiện ray trượt, bản lề hơi giảm chấn cao cấp nhập khẩu, tối ưu hóa trải nghiệm sử dụng hàng ngày và tăng tuổi thọ sản phẩm nội thất. Việc lựa chọn các vật liệu này không chỉ đáp ứng yêu cầu về mặt thẩm mỹ hiện đại mà còn cam kết về một không gian sống an toàn, bền bỉ, và thân thiện với môi trường.

💎 Lợi ích và Giá trị Khi Lựa Chọn Techhome

Lựa chọn Techhome là quyết định thông minh để đảm bảo dự án thiết kế và thi công nội thất của bạn đạt chất lượng tối đa:

  • Kinh Nghiệm và Năng Lực Chuyên Môn: Techhome sở hữu đội ngũ KTS và thợ thi công lành nghề, có kinh nghiệm thực hiện hàng trăm dự án nhà phố, căn hộ cao cấp, cam kết mang lại giải pháp thiết kế tối ưu và khả thi nhất.
  • Quy Trình Làm Việc Khoa Học: Chúng tôi áp dụng quy trình làm việc chuẩn hóa từ khâu khảo sát, lên ý tưởng, thiết kế 3D, triển khai bản vẽ kỹ thuật đến thi công hoàn thiện, đảm bảo tiến độ và chất lượng đồng bộ.
  • Cam Kết Chất Lượng Vật Tư: Techhome cam kết sử dụng vật liệu đúng chủng loại, đúng chất lượng như đã ký kết trong hợp đồng, với nguồn cung vật tư đầu vào rõ ràng, minh bạch.
  • Chính Sách Bảo Hành Tận Tâm: Tất cả các sản phẩm thiết kế và thi công bởi Techhome đều được bảo hành dài hạn, bảo trì nhanh chóng, mang lại sự an tâm tuyệt đối cho khách hàng trong suốt quá trình sử dụng.

💲 Dự Án Thiết Kế Nội Thất Hiện Đại có Giá Bao Nhiêu?

Chi phí thiết kế và thi công nội thất là mối quan tâm hàng đầu của mọi gia chủ. Chi phí của dự án này sẽ phụ thuộc vào nhiều yếu tố, bao gồm:

  • Diện Tích và Phạm Vi Thiết Kế: Tổng diện tích sàn cần thiết kế và thi công (Phòng Khách, Bếp Ăn, Phòng Ngủ, WC…).
  • Vật Liệu Hoàn Thiện: Sự lựa chọn giữa các loại vật liệu gỗ công nghiệp (MDF, HDF, Acrylic) và gỗ tự nhiên, loại đá ốp lát, thiết bị vệ sinh cao cấp, v.v.
  • Mức Độ Chi Tiết Thiết Kế: Các chi tiết trang trí, phào chỉ, hệ thống đèn chiếu sáng thông minh.

Lưu ý: Đây chỉ là mức chi phí ước tính. Để nhận được báo giá chính xác và chi tiết nhất cho công trình của bạn, vui lòng liên hệ trực tiếp với chúng tôi. Hoặc để tìm hiểu rõ hơn về tiêu chuẩn vật liệu xây dựng và các yếu tố ảnh hưởng đến chi phí, bạn có thể tham khảo thêm tại các bài viết chuyên sâu về vật liệu xây dựng cao cấp trên Wikipedia.

📞 Kết Luận 

Mẫu thiết kế nội thất Hiện đại Sang trọng tại Hưng Yên này là một ví dụ điển hình về khả năng kiến tạo không gian sống đẳng cấp và tiện nghi của Techhome. Đừng để ngôi nhà của bạn chỉ là nơi ở, hãy biến nó thành một tác phẩm nghệ thuật, một không gian sống lý tưởng mà bạn hằng mơ ước.

Liên hệ ngay với Techhome để nhận tư vấn MIỄN PHÍ và bảng báo giá chi tiết nhất cho công trình của bạn!

HOTLINE: 0364042222 / 0387603333

Xem thêm các dự án nổi bật khác của Techhome tại https://nhadeptechhome.vn/

Để lại một bình luận

Email của bạn sẽ không được hiển thị công khai. Các trường bắt buộc được đánh dấu *

    Vui lòng nhấn nút YÊU CẦU TƯ VẤN và đợi 1 - 2 giây đến khi thấy thông báo thành công

    YÊU CẦU TƯ VẤN