Nhà Cấp 4 Mái Bằng Hiện Đại: 3 Phòng Ngủ Tối Ưu Diện Tích 14.5m x 9.72m tại Bắc Giang

Khám phá mẫu nhà cấp 4 mái bằng hiện đại 3 phòng ngủ tại Yên Dũng – Bắc Giang, diện tích 14.5m x 9.72m. Thiết kế tối ưu công năng, ngoại thất tinh tế, chi phí hợp lý. Liên hệ Techhome để nhận tư vấn thiết kế thi công trọn gói.

🏗️ Giới thiệu chung về Dự án Nhà Cấp 4 Mái Bằng

Dự án thiết kế nhà ở gia đình tại Yên Dũng – Bắc Giang là một công trình điển hình cho phong cách kiến trúc hiện đại đang rất được ưa chuộng. Với quy mô nhà ở gia đình , công trình được thiết kế với tổng chiều dài là 14.5m và chiều rộng 9.72m . Đây là một giải pháp hoàn hảo cho những gia đình mong muốn có một không gian sống tiện nghi, tối ưu về mặt chi phí và thời gian thi công.

Mẫu nhà cấp 4 mái bằng này khai thác triệt để ưu điểm của kiến trúc mái bằng , tạo nên một khối hình học khỏe khoắn, thanh thoát và đậm chất đương đại. Hồ sơ thiết kế kỹ thuật thi công do Công ty Cổ phần Kiến trúc và Xây dựng Techhome thực hiện, đảm bảo về mặt kỹ thuật và tính thẩm mỹ cao nhất. Công năng được bố trí khoa học, bao gồm 3 phòng ngủ, phòng khách kết hợp thờ, bếp + ăn và khu vực vệ sinh, đáp ứng đầy đủ nhu cầu sinh hoạt của gia đình.

nhà cấp 4 mái bằng

Phối cảnh ngoại thất ấn tượng: Tối giản và Tinh tế 

Ngoại thất của mẫu nhà cấp 4 mái bằng này là sự kết hợp hài hòa giữa các mảng khối đơn giản, màu sắc trung tính và vật liệu hiện đại, mang lại vẻ đẹp tối giản nhưng sang trọng .

  • Hình khối và Màu sắc: Công trình sử dụng màu trắng và xám chủ đạo. Khối nhà chính sơn màu trắng tinh khôi, tương phản mạnh mẽ với mảng tường ốp gạch hoặc sơn giả bê tông màu xám mạnh mẽ, tạo điểm nhấn thị giác độc đáo .
  • Điểm nhấn Kiến trúc: Mặt tiền nhà cấp 4 mái bằng nổi bật với hệ thống cửa lớn mái vòm cong (bán nguyệt) , đây là chi tiết mềm mại hóa khối kiến trúc vuông vức, mang lại sự tinh tế và thu hút. Hệ cửa đi chính  và cửa phụ sử dụng nhôm hệ kính dày 8.38mm, tối đa hóa ánh sáng tự nhiên và tầm nhìn, đồng thời đảm bảo độ bền và an toàn.
  • Vật liệu Ngoại thất: Phần chân tường và bậc tam cấp được ốp lát bằng đá Granite màu tối, vừa tăng tính thẩm mỹ vừa bảo vệ công trình khỏi ẩm mốc, bụi bẩn. Phần bậc tam cấp (sân chính) có cao độ -0.450 so với cốt nền tầng 01 là ±0.000, tạo sự chuyển tiếp không gian rõ ràng.
  • Hệ thống Chiếu sáng và Cảnh quan: Ánh sáng ngoại thất được bố trí tinh tế (đèn âm trần, đèn tường) , làm nổi bật các mảng tường và chi tiết kiến trúc vào buổi tối. Cây xanh được đặt ở các bồn hoa thấp phía trước nhà , mang lại không gian xanh mát và sinh động.

nhà cấp 4 mái bằng

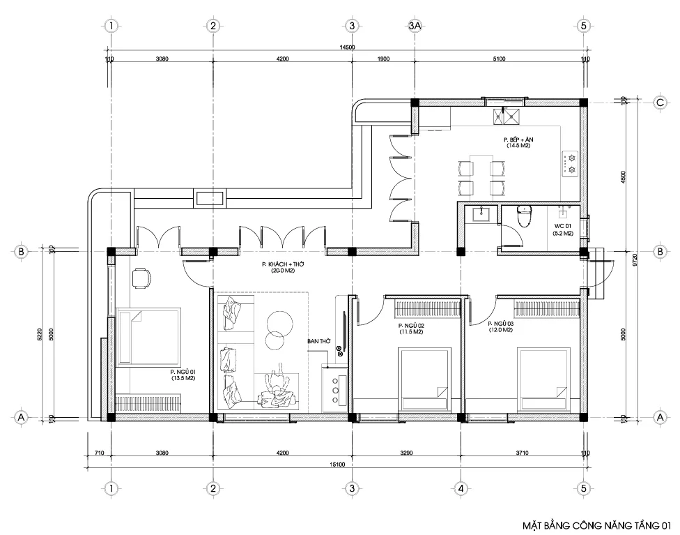
📐 Phân tích mặt bằng công năng tối ưu của nhà cấp 4 mái bằng

Mặt bằng công năng có kích thước xây dựng tổng thể 14.5m x 9.72m được bố trí vô cùng khoa học, đáp ứng nhu cầu sử dụng của một gia đình với 3 phòng ngủ.

Khu vực Chức năng Diện tích (m²) Mô tả chi tiết
Phòng Khách + Thờ 20.0 m² Khu vực trung tâm, rộng rãi, bố trí bàn thờ liền kề.
Phòng Bếp + Ăn 14.5 m² Bố trí hợp lý, gần khu vực sinh hoạt chung, tiện di chuyển.
Phòng Ngủ 01 13.5 m² Phòng ngủ lớn nhất, có thể dành cho Chủ nhà.
Phòng Ngủ 02 11.5 m² Phòng ngủ tiêu chuẩn.
Phòng Ngủ 03 12.0 m² Phòng ngủ tiêu chuẩn.
WC chung 5.2 m² đáp ứng đầy đủ nhu cầu sinh hoạt của gia đình

mặt bằng nhà cấp 4 mái bằng

  • Mặt bằng Xây dựng có tổng kích thước trục chính là 14.5m x 9.72m , cùng với các phần mở rộng kiến trúc khác nâng tổng chiều dài lên 15.1m.
  • Phân khu Tĩnh và Động: Khu vực sinh hoạt chung (Khách + Thờ, Bếp + Ăn) được đặt ở nửa phía trước và bên phải, thuận tiện cho việc tiếp khách và giao tiếp. Khu vực nghỉ ngơi (3 Phòng ngủ) được bố trí về phía sau, đảm bảo sự yên tĩnh và riêng tư.
  • Hệ thống Cửa : Được phân chia hợp lý để lấy sáng và thông gió. Cửa đi 4 cánh kích thước 2700 x 2700mm tại vị trí chính, cửa đi 2 cánh 1400 x 2700mm và cửa đi 1 cánh  900 x 2700mm được sử dụng cho các phòng ngủ. Cửa sổ lùa 1200 x 600mm và cửa sổ mở quay 1200 x 1800mm được áp dụng linh hoạt.

🧱 Đánh giá về Kết cấu và Vật liệu xây dựng 

Techhome cam kết sử dụng các vật liệu xây dựng và kết cấu đạt tiêu chuẩn kỹ thuật cao, đảm bảo độ bền vững và an toàn tuyệt đối cho công trình nhà cấp 4 mái bằng hiện đại tại Bắc Giang này.

  • Kết cấu: Sử dụng kết cấu Sàn BTCT đổ tại chỗ cho sàn tầng 01 và trần BTCT cho mái, đảm bảo khả năng chịu lực tốt và chống thấm hiệu quả. Cốt sàn hoàn thiện là ±0.000.
  • Vật liệu Hoàn thiện:
    • Sàn: Lát gạch Granite màu theo chỉ định (KT 800×800) cho các khu vực chính; gạch Ceramic chống trơn (KT 300×300) cho nhà vệ sinh. Gạch chân tường cao 120mm.
    • Cửa: Sử dụng Cửa nhôm hệ kính (kính dày 8.38mm) cho cửa đi chính và cửa phòng, với các chi tiết kích thước rõ ràng trong hồ sơ.
    • Bảo vệ: Chi tiết thép đặc 10x10mm hoặc 12x12mm bảo vệ (lan can/khung bảo vệ cửa sổ) được sơn tĩnh điện theo màu khung nhôm hệ.
    • Trần: Trần BTCT đổ tại chỗ, lăn sơn 2 nước màu trắng hoặc trần ốp nhựa  tại một số khu vực.

nhà cấp 4 mái bằng

Lợi ích và Giá trị khi chọn Techhome

Chọn Công ty Cổ phần Kiến trúc và Xây dựng Techhome là bạn đang chọn một đối tác uy tín, chuyên nghiệp để kiến tạo không gian sống hoàn hảo.

  • Kinh nghiệm và Năng lực: Chúng tôi là đơn vị tư vấn thiết kế và thi công trọn gói , với đội ngũ KTS và KS có chuyên môn cao, đảm bảo hồ sơ thiết kế kỹ thuật thi công chi tiết, chính xác.
  • Tối ưu Chi phí và Thời gian: Hồ sơ thiết kế chi tiết giúp hạn chế tối đa phát sinh trong quá trình thi công, quản lý vật tư hiệu quả và rút ngắn tiến độ.
  • Thiết kế Độc đáo: Chúng tôi luôn lắng nghe ý tưởng của Chủ đầu tư để tạo ra những thiết kế không chỉ đẹp, mà còn phù hợp với phong thủy và thói quen sinh hoạt của gia đình.
  • Hỗ trợ Kỹ thuật: Techhome cung cấp dịch vụ hỗ trợ tư vấn kỹ thuật xây dựng qua hotline: 0364042222 – 0387603333 trong suốt quá trình triển khai dự án.

nhà cấp 4 mái bằng

💰 Nhà Cấp 4 Mái Bằng Hiện Đại tại Bắc Giang có giá bao nhiêu? 

Chi phí xây dựng nhà cấp 4 mái bằng hiện đại phụ thuộc vào nhiều yếu tố như: thời điểm xây dựng, vật liệu hoàn thiện, vị trí địa lý, và lựa chọn phương án thi công (phần thô hay trọn gói).

Để có một ước tính chi phí chính xác cho mẫu nhà cấp 4 kích thước 14.5m x 9.72m tại Yên Dũng, Bắc Giang, quý khách hàng cần xác định rõ:

  • Diện tích xây dựng: Tổng diện tích sàn (khoảng 147 m²) và diện tích mái (khoảng 147 – 154 m²)  cần được tính toán chi tiết hơn.
  • Vật liệu hoàn thiện: Lựa chọn gạch Granite (KT 800×800), cửa nhôm hệ kính 8.38mm và các vật tư khác sẽ ảnh hưởng trực tiếp đến tổng mức đầu tư.

Để nhận được Báo giá chi tiết, trọn gói (Chìa khóa trao tay) và cam kết không phát sinh, hãy liên hệ trực tiếp với Techhome. Chúng tôi sẽ phân tích hồ sơ thiết kế này và đưa ra mức giá tối ưu nhất dựa trên ngân sách thực tế của gia đình bạn.

Lưu ý: Đây chỉ là mức chi phí ước tính. Để nhận được báo giá chính xác và chi tiết nhất cho công trình của bạn, vui lòng liên hệ trực tiếp với chúng tôi. Hoặc để tìm hiểu rõ hơn về tiêu chuẩn vật liệu xây dựng và các yếu tố ảnh hưởng đến chi phí, bạn có thể tham khảo thêm tại các bài viết chuyên sâu về vật liệu xây dựng cao cấp trên Wikipedia.

Nhà cấp 4 mái bằng

📞 Kết luận

Mẫu nhà cấp 4 mái bằng hiện đại 3 phòng ngủ tại Yên Dũng – Bắc Giang là sự kết hợp hoàn hảo giữa thẩm mỹ, công năng và kinh tế. Công trình không chỉ là một ngôi nhà, mà còn là không gian sống tiện nghi, thư thái cho cả gia đình.

Đừng ngần ngại biến ý tưởng về ngôi nhà mơ ước của bạn thành hiện thực. Hãy để Techhome đồng hành cùng bạn từ khâu thiết kế chi tiết đến thi công hoàn thiện.

Liên hệ ngay Hotline: 0364042222 – 0387603333 để nhận tư vấn miễn phí, xem thêm các mẫu nhà cấp 4 đẹp và nhận ngay hồ sơ dự toán chi phí chi tiết!

Xem thêm các dự án nổi bật khác của Techhome tại https://nhadeptechhome.vn/

Để lại một bình luận

Email của bạn sẽ không được hiển thị công khai. Các trường bắt buộc được đánh dấu *

    Vui lòng nhấn nút YÊU CẦU TƯ VẤN và đợi 1 - 2 giây đến khi thấy thông báo thành công

    YÊU CẦU TƯ VẤN