Mẫu Nhà 2 Tầng Đẹp Tại Nghệ An: Sự Lựa Chọn Hoàn Hảo Cho Gia Đình Đa Thế Hệ

Người xưa có câu “An cư lạc nghiệp”. Với mỗi người Việt, ngôi nhà không chỉ là nơi che mưa chắn nắng, mà là tổ ấm, là thành quả của bao năm tháng phấn đấu. Đặc biệt, giữa mảnh đất miền Trung nắng gió, việc tìm kiếm một mẫu nhà 2 tầng đẹp vừa thẩm mỹ, vừa tối ưu công năng để chống lại cái khắc nghiệt của thời tiết là điều trăn trở của rất nhiều gia chủ.

Hôm nay, Kiến trúc Techhome xin mời bạn ghé thăm một công trình tâm huyết mà chúng tôi vừa hoàn thiện hồ sơ thiết kế. Đó là ngôi nhà phố hiện đại của gia đình anh Pháp – anh Sơn tại Nghệ An. Hy vọng đây sẽ là nguồn cảm hứng tuyệt vời cho dự định xây dựng tổ ấm sắp tới của bạn.

1. Cơ duyên đến với Techhome và bài toán thiết kế

Anh Pháp và anh Sơn tìm đến Techhome qua một lời giới thiệu uy tín, mang theo mong muốn về một không gian sống hiện đại, tiện nghi trên mảnh đất có kích thước khá đặc thù: chiều ngang khoảng gần 7m và chiều sâu gần 13m.

Yêu cầu đặt ra không chỉ là một mẫu nhà 2 tầng đẹp về hình thức bên ngoài, mà quan trọng hơn là sự bố trí công năng bên trong phải thực sự khoa học. Gia đình cần không gian sinh hoạt chung rộng rãi, nhưng vẫn đảm bảo sự riêng tư cho từng thành viên với tổng diện tích thiết kế khoảng 187m2. Sau khi khảo sát và lắng nghe tâm tư của gia chủ, đội ngũ KTS Techhome đã đưa ra phương án thiết kế khiến hai anh gật đầu ưng ý ngay từ lần trình bày đầu tiên.

Phối cảnh mặt tiền mẫu nhà 2 tầng đẹp phong cách hiện đại với hình khối vuông vức tại Nghệ An.
Phối cảnh mặt tiền mẫu nhà 2 tầng đẹp phong cách hiện đại với hình khối vuông vức tại Nghệ An.

2. Vẻ đẹp kiến trúc: Hiện đại, phóng khoáng và tinh tế

Nhìn vào phối cảnh mặt tiền, bạn sẽ thấy ngay lý do vì sao mẫu nhà 2 tầng đẹp phong cách hiện đại lại đang “làm mưa làm gió” trên các diễn đàn xây dựng.

Hình khối mạnh mẽ

Ngôi nhà được thiết kế theo lối kiến trúc hình khối vuông vức, khỏe khoắn. Hệ mái bằng không chỉ giúp tiết kiệm chi phí xây dựng so với mái Thái mà còn tạo nên nét đẹp thời thượng. Các đường nét kiến trúc gãy gọn, dứt khoát, loại bỏ hoàn toàn các chi tiết phào chỉ rườm rà của phong cách cổ điển, thay vào đó là sự tập trung vào tỷ lệ vàng của các mảng khối.

Màu sắc và vật liệu

KTS đã khéo léo sử dụng tông màu trắng – xám ghi làm chủ đạo. Đây là gam màu “bất hủ” của các mẫu nhà 2 tầng đẹp, vừa sang trọng, vừa bền màu theo thời gian. Điểm nhấn của mặt tiền chính là hệ cửa kính lớn khung nhôm xingfa đen tuyền, kết hợp với các mảng tường ốp đá tự nhiên màu tối tạo nên sự tương phản đầy hút mắt.

Đặc biệt, hệ ban công tầng 2 được thiết kế đua ra hợp lý, kết hợp bồn cây xanh vừa có tác dụng giảm bức xạ nhiệt trực tiếp vào phòng ngủ, vừa mang lại mảng xanh thư giãn cho gia chủ.

Góc nghiêng mẫu nhà 2 tầng đẹp sử dụng hệ cửa nhôm kính Xingfa lấy sáng tối đa.
Góc nghiêng mẫu nhà 2 tầng đẹp sử dụng hệ cửa nhôm kính Xingfa lấy sáng tối đa.

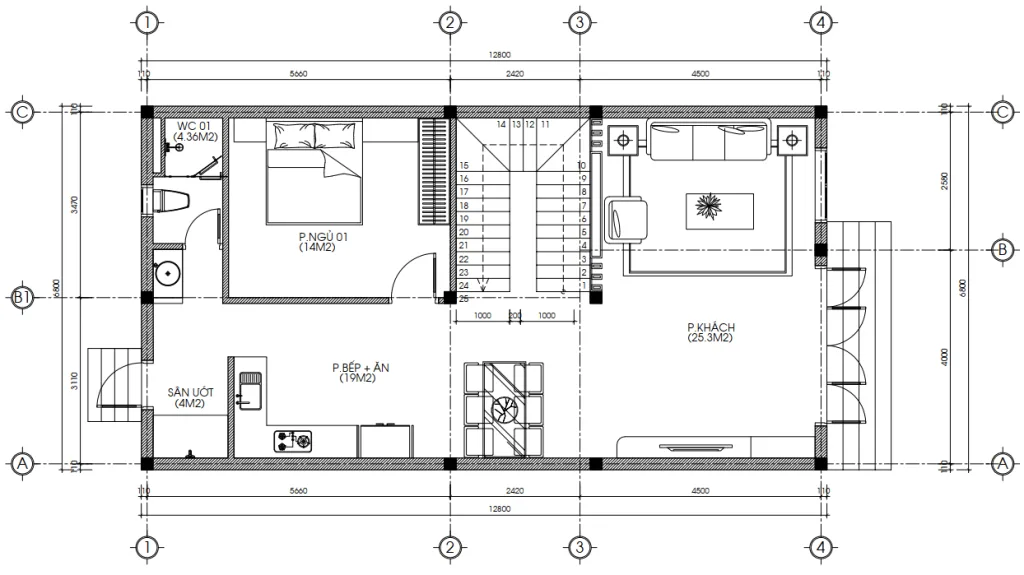
3. “Mổ xẻ” công năng: Khi bản vẽ nói lên sự tiện nghi

Một mẫu nhà 2 tầng đẹp thực sự không chỉ nằm ở cái “vỏ” bên ngoài, mà cái “hồn” lại nằm ở bản vẽ mặt bằng công năng. Hãy cùng Techhome đi sâu vào chi tiết cách bố trí nội thất nhà anh Pháp – Sơn để thấy sự tinh tế trong từng mét vuông đất.

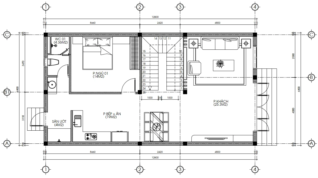
Tầng 1: Không gian kết nối (Diện tích 92m2)

Bước qua sảnh chính, chúng ta đến với phòng khách rộng 25.3m2. Đây là “bộ mặt” của ngôi nhà, được thiết kế vuông vức, dễ dàng bố trí sofa, kệ tivi hiện đại. Điểm hay của thiết kế này là cầu thang được đặt nép dọc nhà, giúp không gian phòng khách trông rộng hơn và không bị chia cắt vụn vặt.

Tiếp nối là khu vực Bếp + Ăn rộng 19m2. Với các mẫu nhà 2 tầng đẹp dạng ống, việc liên thông khách – bếp là giải pháp tối ưu để tạo độ thoáng. Tại đây, mùi thức ăn sẽ được xử lý qua hệ thống hút mùi và cửa thoáng bên hông.

Một điểm cộng rất lớn trong thiết kế này là Phòng ngủ 01 rộng 14m2 đặt tại tầng 1. Đây là thiết kế “chuẩn chỉ” cho gia đình có người lớn tuổi hoặc trẻ nhỏ, hạn chế việc leo cầu thang. Cuối nhà là khu vực vệ sinh chung (WC 01) 4.36m2 và một khoảng sân ướt (Sân gia công) 4m2. Khoảng sân này cực kỳ quan trọng với văn hóa sinh hoạt của người Việt, là nơi rửa rau, làm gà vịt những khi nhà có giỗ chạp mà không sợ bẩn bếp.

Bản vẽ bố trí công năng tầng 1 mẫu nhà 2 tầng đẹp diện tích 92m2 gồm phòng khách và bếp ăn liên thông.
Bản vẽ bố trí công năng tầng 1 mẫu nhà 2 tầng đẹp diện tích 92m2 gồm phòng khách và bếp ăn liên thông.

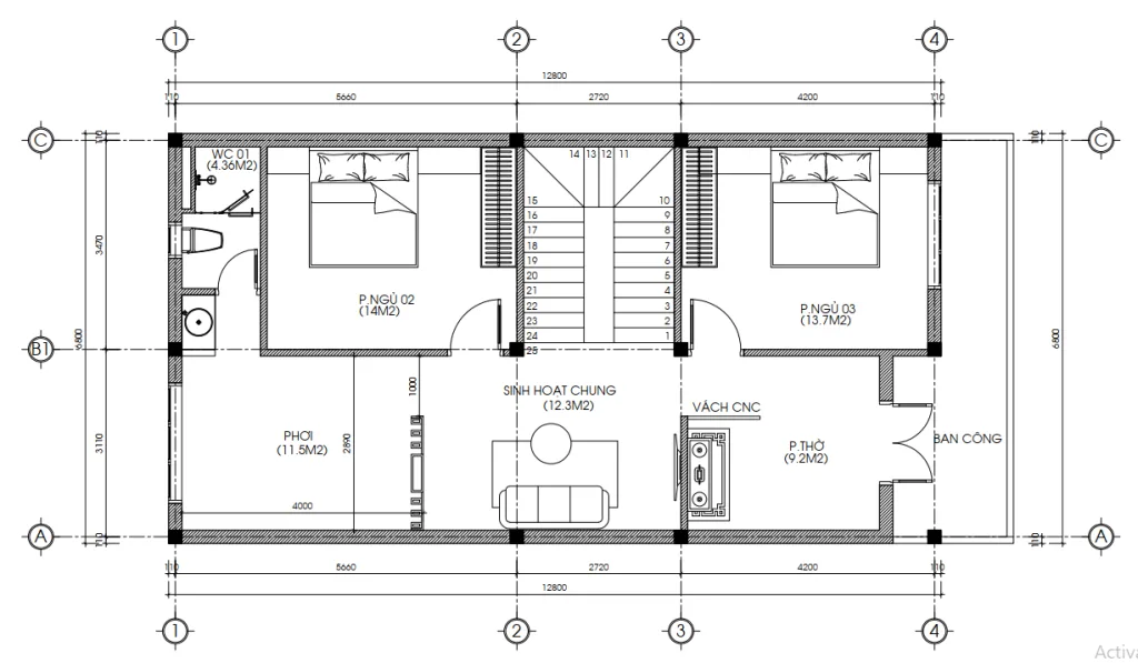
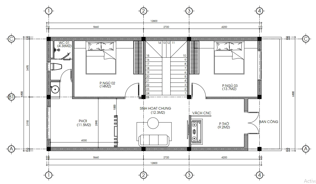
Tầng 2: Không gian nghỉ ngơi và tâm linh (Diện tích 95m2)

Di chuyển lên tầng 2, chúng ta sẽ bắt gặp một không gian Sinh hoạt chung rộng 12.3m2. Trong các mẫu nhà 2 tầng đẹp hiện đại, đây là nơi gắn kết tình cảm gia đình, nơi bố mẹ và con cái cùng xem phim, đọc sách trước khi đi ngủ.

Tầng này bố trí 02 phòng ngủ:

  • Phòng ngủ 02: 14m2.

  • Phòng ngủ 03: 13.7m2.

Các phòng ngủ đều được trổ cửa sổ lấy sáng tự nhiên, đảm bảo sự lưu thông không khí, tránh cảm giác bí bách thường thấy ở nhà phố.

Phòng thờ rộng 9.2m2  được đặt ở vị trí trang trọng nhất phía trước nhà, hướng ra ban công. Đây là yếu tố phong thủy quan trọng, thể hiện lòng thành kính với gia tiên. Phía sau cùng là khu vực sân phơi rộng 11.5m2, kín đáo và thuận tiện cho việc giặt giũ.

Tổng thể mặt bằng cho thấy KTS Techhome đã tính toán rất kỹ lưỡng để không một góc chết nào bị lãng phí. Đó chính là tiêu chuẩn vàng của một mẫu nhà 2 tầng đẹp và tối ưu.

Thiết kế mặt bằng tầng 2 mẫu nhà 2 tầng đẹp với 2 phòng ngủ và phòng thờ trang nghiêm.
Thiết kế mặt bằng tầng 2 mẫu nhà 2 tầng đẹp với 2 phòng ngủ và phòng thờ trang nghiêm.

4. Tại sao thiết kế này lại phù hợp với xu hướng 2026?

Năm 2026, xu hướng xây dựng đang dịch chuyển mạnh mẽ về sự tối giản và công năng thực dụng. Người ta không còn quá mặn mà với những chi tiết phù điêu đắp vẽ tốn kém và khó vệ sinh. Thay vào đó, một mẫu nhà 2 tầng đẹp kiểu Techhome thiết kế cho anh Pháp – Sơn được ưa chuộng vì:

  • Không lỗi mốt: Hình khối đơn giản luôn trường tồn với thời gian.

  • Tiết kiệm chi phí: Kết cấu đơn giản giúp giảm thời gian thi công và chi phí nhân công.

  • Dễ dàng bảo trì: Sơn phẳng, cửa nhôm kính dễ lau chùi, bền bỉ trước nắng mưa.

Tìm kiếm một mẫu nhà 2 tầng đẹp trên mạng xã hội, bạn sẽ thấy hàng nghìn kết quả, nhưng để tìm được một thiết kế vừa vặn với kích thước đất 6.8×12.8m và nhu cầu 3 phòng ngủ như thế này thì không nhiều.

Góc nghiêng mẫu nhà 2 tầng đẹp sử dụng hệ cửa nhôm kính Xingfa lấy sáng tối đa.

5. Báo giá dự toán xây dựng (Tham khảo)

Rất nhiều khách hàng khi xem mẫu nhà 2 tầng đẹp này đều thắc mắc: “Đẹp thế này thì hết bao nhiêu tiền?”. Techhome xin đưa ra bảng khái toán chi phí dựa trên diện tích thiết kế 187m2  của nhà anh Pháp – Sơn để bạn dễ hình dung.

(Lưu ý: Đơn giá chỉ mang tính chất tham khảo tại thời điểm hiện tại và phụ thuộc vào vật liệu, địa điểm thi công tại Nghệ An)

Hạng mục Diện tích (m2) Đơn giá (VNĐ/m2) Thành tiền (VNĐ)
Xây dựng phần thô 187 4.000.000 ~ 748.000.000
Nhân công hoàn thiện 187 1.500.000 ~ 280.500.000
Vật tư hoàn thiện (Cơ bản) 187 2.500.000 ~ 467.500.000
Tổng cộng (Ước tính) ~ 1.4 – 1.5 Tỷ

Chi tiết vật tư hoàn thiện gợi ý cho mẫu nhà 2 tầng đẹp này:

  • Gạch ốp lát: Viglacera hoặc Prime (khổ 80×80).

  • Sơn nước: Dulux hoặc Jotun (dòng lau chùi hiệu quả).

  • Cửa: Nhôm Xingfa nhập khẩu Quảng Đông, kính cường lực 8mm-10mm.

  • Thiết bị vệ sinh: Inax hoặc Toto dòng trung cấp.

Với mức đầu tư khoảng 1.4 tỷ đồng cho một ngôi nhà 2 tầng, 3 phòng ngủ, đầy đủ tiện nghi tại trung tâm, đây thực sự là một phương án tài chính cực kỳ hợp lý cho các gia đình trẻ hoặc gia đình 2 thế hệ.

Lưu ý: Đây chỉ là mức chi phí ước tính. Để nhận được báo giá chính xác và chi tiết nhất cho công trình của bạn, vui lòng liên hệ trực tiếp với chúng tôi. Hoặc để tìm hiểu rõ hơn về tiêu chuẩn vật liệu xây dựng và các yếu tố ảnh hưởng đến chi phí, bạn có thể tham khảo thêm tại các bài viết chuyên sâu về vật liệu xây dựng cao cấp trên Wikipedia.

Tổng thể mẫu nhà 2 tầng đẹp mái bằng lợp tôn chống nóng hiệu quả.
Tổng thể mẫu nhà 2 tầng đẹp mái bằng lợp tôn chống nóng hiệu quả.

6. Những lưu ý “xương máu” khi xây nhà tại miền Trung

Là những người con miền Trung hoặc làm việc lâu năm tại đây, Techhome hiểu rằng xây một mẫu nhà 2 tầng đẹp ở Nghệ An khó hơn các vùng khác.

  • Chống thấm: Mái bằng cần được xử lý chống thấm kỹ càng (sika, màng khò) vì mưa miền Trung rất lớn và dai dẳng. Trong bản vẽ mái, chúng tôi đã bố trí vị trí đặt téc nước và thái dương năng hợp lý để thuận tiện bảo trì.

  • Chống nóng: Tường hướng Tây nên xây tường 200 hoặc ốp gạch thẻ/lam chắn nắng để giảm nhiệt.

  • Kết cấu móng: Cần khảo sát địa chất kỹ. Nếu đất yếu cần ép cọc bê tông để đảm bảo tuổi thọ công trình trăm năm.

Tổng thể mẫu nhà 2 tầng đẹp mái bằng lợp tôn chống nóng hiệu quả.

7. Techhome – Người kiến tạo không gian sống

Để ra đời được một mẫu nhà 2 tầng đẹp như nhà anh Pháp – Sơn, đó là quy trình làm việc nghiêm túc từ khâu khảo sát hiện trạng, lên ý tưởng 2D đến phối cảnh 3D.

Tại Techhome, chúng tôi không chỉ vẽ nhà, chúng tôi vẽ nên những giấc mơ. Mỗi bản vẽ trao tay khách hàng là một bộ hồ sơ chi tiết gồm: Kiến trúc, Kết cấu, Điện nước (ME) và Dự toán.

Nếu bạn đang sở hữu một mảnh đất tương tự và yêu thích mẫu nhà 2 tầng đẹp mang phong cách hiện đại này, hoặc muốn điều chỉnh công năng (tăng thêm phòng ngủ, làm gara ô tô…), đừng ngần ngại liên hệ với Techhome. Chúng tôi luôn lắng nghe và tùy biến thiết kế dựa trên “cái tôi” của từng gia chủ.

Kết luận

Ngôi nhà của anh Pháp – anh Sơn tại Nghệ An là minh chứng rõ nét cho việc: Một mẫu nhà 2 tầng đẹp không cần phải quá cầu kỳ, phô trương. Vẻ đẹp thực sự đến từ sự hài hòa trong tỷ lệ, tinh tế trong màu sắc và quan trọng nhất là công năng sử dụng “chạm” đúng nhu cầu của gia đình.

Đời người xây nhà được mấy lần? Hãy để Techhome giúp bạn biến hành trình đó trở nên trọn vẹn và hạnh phúc nhất. Đừng để những lo toan về kỹ thuật làm khó bạn, bởi đã có chúng tôi lo.

Phối cảnh mặt tiền mẫu nhà 2 tầng đẹp phong cách hiện đại với hình khối vuông vức tại Nghệ An.


Bạn có muốn Techhome tư vấn miễn phí cho lô đất của mình ngay hôm nay?

Hãy nhắn tin để nhận dự toán chi tiết cho riêng lô đất của bạn và nhận bộ sưu tập mẫu nhà 2 tầng đẹp mới nhất 2026 nhé!

Để lại một bình luận

Email của bạn sẽ không được hiển thị công khai. Các trường bắt buộc được đánh dấu *

    Vui lòng nhấn nút YÊU CẦU TƯ VẤN và đợi 1 - 2 giây đến khi thấy thông báo thành công

    YÊU CẦU TƯ VẤN