📑 Mục lục
-
Giới thiệu nhà mái Nhật 2 tầng – xu hướng được yêu thích
-
Thông tin công trình nhà mái Nhật 2 tầng tại Hà Nam
-
Kiến trúc ngoại thất – Sang trọng, bền vững cùng thời gian
-
Mặt bằng công năng – Tối ưu tiện nghi cho gia đình Việt
-
Ưu điểm nổi bật của mẫu nhà mái Nhật 2 tầng
-
Vì sao nên chọn Techhome khi xây nhà mái Nhật?
1. Giới thiệu nhà mái Nhật 2 tầng – xu hướng được yêu thích
Trong những năm gần đây, nhà mái Nhật 2 tầng trở thành một trong những lựa chọn hàng đầu cho gia chủ yêu thích sự thanh thoát, tinh tế và bền vững. Với độ dốc vừa phải, mái Nhật không chỉ mang tính thẩm mỹ cao mà còn phù hợp với khí hậu nhiệt đới gió mùa của Việt Nam.
Mẫu nhà mái Nhật 2 tầng tại Hà Nam do Techhome thiết kế cho anh Nam là minh chứng rõ ràng: hiện đại, sang trọng nhưng vẫn giữ được nét truyền thống gần gũi.
2. Thông tin công trình nhà mái Nhật 2 tầng tại Hà Nam
-
Chủ đầu tư: Anh Nam
-
Địa điểm: Vụ Bản – Hà Nam
-
Loại hình: Nhà mái Nhật 2 tầng
-
Đơn vị thiết kế & thi công: Techhome – Thiết kế và thi công trọn gói
3. Kiến trúc ngoại thất – Sang trọng, bền vững cùng thời gian
Điểm nổi bật nhất của mẫu nhà mái nhật 2 tầng này chính là hệ mái Nhật màu ghi xám sang trọng, kết hợp với tone trắng tinh tế của phần thân nhà, tạo nên sự đối lập ấn tượng.
Các chi tiết phào chỉ nhẹ nhàng, trụ cột vuông vức, cửa kính khung nhôm hiện đại giúp căn nhà luôn sáng – thoáng – bền đẹp. Gara ô tô được bố trí hợp lý ngay tầng 1, tăng thêm sự tiện nghi cho gia đình.
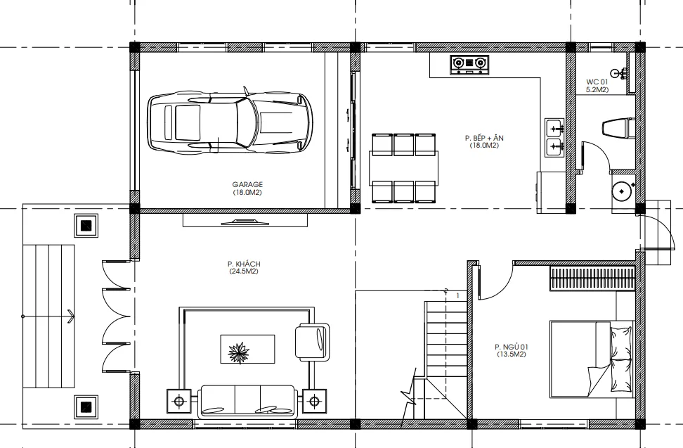
4. Mặt bằng công năng – Tối ưu tiện nghi cho gia đình Việt

🔹 Tầng 1:
-
Gara để xe rộng rãi (18m2).
-
Phòng khách sang trọng (24.5m2).
-
Phòng bếp + ăn tiện nghi (18m2).
-
01 phòng ngủ (13.5m2) cho ông bà/khách.
-
01 WC chung.
🔹 Tầng 2:
-
03 phòng ngủ thoáng mát.
-
01 phòng thờ trang nghiêm.
-
Ban công rộng, có mái che kính hiện đại.
Bố trí công năng hợp lý, đáp ứng nhu cầu sinh hoạt thoải mái của gia đình nhiều thế hệ.
5. Ưu điểm nổi bật của mẫu nhà mái Nhật 2 tầng
-
Thẩm mỹ sang trọng: Mái Nhật dốc nhẹ, tinh tế, phù hợp với xu hướng 2025.
-
Công năng khoa học: Gara, phòng khách, bếp – ngủ được bố trí hợp lý.
-
Tiết kiệm chi phí: So với biệt thự cổ điển, chi phí xây dựng hợp lý hơn.
-
Độ bền cao: Hệ mái Nhật chống nóng, thoát nước tốt, ít bị ẩm mốc.
Để tìm hiểu rõ hơn về tiêu chuẩn vật liệu xây dựng và các yếu tố ảnh hưởng đến chi phí, bạn có thể tham khảo thêm tại các bài viết chuyên sâu về vật liệu xây dựng cao cấp trên Wikipedia.
6. Vì sao nên chọn Techhome khi xây nhà mái Nhật?
Với hơn nhiều năm kinh nghiệm trong thiết kế và thi công, Techhome tự hào đồng hành cùng hàng trăm gia chủ trên khắp miền Bắc. Chúng tôi mang đến:
-
Giải pháp thiết kế chuẩn phong thủy – tối ưu công năng.
-
Cam kết thi công chất lượng – bền đẹp – đúng tiến độ.
-
Đội ngũ kỹ sư, kiến trúc sư chuyên nghiệp, tận tâm.
Xem thêm các dự án nổi bật khác của Techhome tại https://nhadeptechhome.vn/


