Giới thiệu xu hướng kiến trúc nhà mái Nhật 2 tầng
Trong những năm gần đây, nhà mái Nhật 2 tầng đang trở thành lựa chọn hàng đầu của nhiều gia chủ Việt Nam. Kiểu nhà này không chỉ mang đến vẻ đẹp thanh thoát, sang trọng mà còn phù hợp với điều kiện khí hậu, phong tục và nhu cầu sử dụng thực tế.
Đặc biệt, với sự kết hợp hài hòa giữa kiến trúc Á Đông và phong cách hiện đại, nhà mái Nhật mang đến không gian sống tiện nghi, bền vững và thẩm mỹ vượt thời gian.
Ưu điểm nổi bật của nhà mái Nhật 2 tầng
1. Thiết kế mái Nhật tinh tế, sang trọng
Khác với mái Thái có độ dốc lớn, mái Nhật thường thoải hơn, trải đều sang nhiều hướng, tạo cảm giác cân đối, mềm mại.
-
Mang lại vẻ đẹp trang nhã, phù hợp cả thành thị và nông thôn.
-
Giúp ngôi nhà trở nên thanh thoát, thoáng mát và sang trọng.
2. Công năng khoa học – tối ưu không gian sống
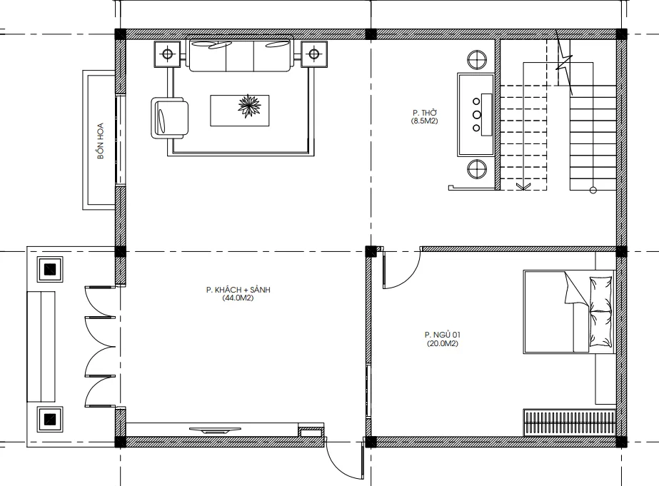
Một mẫu nhà mái Nhật 2 tầng thường được bố trí:
-
Tầng 1: Phòng khách rộng, bếp + ăn, 1 phòng ngủ, khu vệ sinh, gara hoặc sân vườn.
-
Tầng 2: Các phòng ngủ phụ, phòng thờ, ban công rộng thoáng.

Cách bố trí này đảm bảo tối ưu hóa diện tích sử dụng, phù hợp với gia đình nhiều thế hệ, vừa có sự riêng tư, vừa có không gian sinh hoạt chung ấm cúng.
3. Phù hợp khí hậu Việt Nam
Mái Nhật với độ dốc vừa phải giúp:
-
Thoát nước mưa nhanh, tránh ứ đọng, chống thấm tốt.
-
Chống nóng hiệu quả vào mùa hè.
-
Giữ ấm vào mùa đông.
4. Tính bền vững và tiết kiệm chi phí
-
Kết cấu chắc chắn, bền vững với thời gian.
-
Vật liệu mái đa dạng: ngói màu, ngói bê tông, tôn giả ngói… giúp gia chủ có nhiều lựa chọn phù hợp tài chính.
-
Tuổi thọ cao, ít phải bảo trì so với các kiểu mái khác.
Vì sao nhà mái Nhật 2 tầng được yêu thích nhất hiện nay?
Thứ nhất: Phong cách hiện đại nhưng vẫn gần gũi
Nhà mái Nhật mang đến một kiến trúc vừa hiện đại vừa truyền thống. Mái ngói xanh ghi, xanh than hoặc nâu trầm kết hợp với tường trắng, cửa gỗ, lan can sắt mỹ thuật… tạo nên sự hài hòa giữa thẩm mỹ – công năng – phong thủy.
Thứ hai: Đáp ứng nhu cầu đa dạng của gia đình Việt
Tùy vào diện tích đất và tài chính, gia chủ có thể lựa chọn:
-
Nhà mái Nhật 2 tầng hiện đại: tối giản, tinh tế, nhiều cửa kính.
-
Nhà mái Nhật tân cổ điển: sang trọng, có phào chỉ, lan can hoa văn.
-
Nhà mái Nhật sân vườn: gần gũi thiên nhiên, có khoảng xanh thư giãn.
Thứ ba: Giá trị phong thủy
Theo quan niệm Á Đông, mái nhà là “vầng che” bảo vệ gia đình. Mái Nhật cân đối, vững chãi tượng trưng cho sự ổn định, an khang, thịnh vượng, thu hút tài lộc và năng lượng tích cực cho gia chủ.
Chi phí xây dựng nhà mái Nhật 2 tầng 2025
Mức chi phí xây dựng nhà mái Nhật 2 tầng hiện nay thường dao động:
-
Khoảng 1,3 – 1,8 tỷ đồng cho diện tích 100 – 120m²/sàn, mức hoàn thiện cơ bản.
-
2 – 3 tỷ đồng trở lên với các mẫu cao cấp, nhiều chi tiết tân cổ điển, sân vườn rộng.
Chi phí sẽ phụ thuộc vào:
-
Diện tích xây dựng.
-
Vật liệu hoàn thiện.
-
Phong cách kiến trúc (hiện đại hay tân cổ điển).
-
Địa điểm thi công.
Một số mẫu nhà mái Nhật 2 tầng được yêu thích nhất
-
Nhà mái Nhật 2 tầng hiện đại: Mặt tiền vuông vắn, nhiều mảng kính, tối ưu ánh sáng.
-
Nhà mái Nhật tân cổ điển: Lan can hoa văn, phào chỉ tinh xảo, màu trắng – vàng sang trọng.
-
Nhà mái Nhật 2 tầng sân vườn: Không gian xanh, phù hợp gia chủ yêu thiên nhiên.
-
Nhà mái Nhật kết hợp gara ô tô: Tiện lợi, đáp ứng nhu cầu sinh hoạt của gia đình trẻ.
Techhome – Đơn vị thiết kế và thi công trọn gói nhà mái Nhật 2 tầng
Với nhiều năm kinh nghiệm trong lĩnh vực thiết kế và thi công trọn gói, Techhome tự hào đã kiến tạo hàng trăm công trình nhà mái Nhật 2 tầng trên khắp cả nước.
Chúng tôi cam kết:
-
Thiết kế tối ưu, chuẩn phong thủy.
-
Thi công chất lượng, đúng tiến độ.
-
Chi phí minh bạch, phù hợp ngân sách.
-
Đồng hành cùng gia chủ từ bản vẽ đến thực tế.
Hotline tư vấn: 0364 042 222 – 0387 603 333
Địa chỉ: B1.1 LK17 ô số 4 – KĐT Thanh Hà, Thanh Oai, Hà Nội


