Giới thiệu xu hướng nhà phố mái bằng 2 tầng 2025
Trong những năm gần đây, nhà phố mái bằng 2 tầng đang trở thành sự lựa chọn hàng đầu của nhiều gia đình trẻ và gia chủ thành công. Bước sang năm 2025, kiến trúc này tiếp tục bùng nổ và khẳng định vị thế bởi sự đơn giản, hiện đại, tiện nghi mà vẫn đảm bảo chi phí xây dựng hợp lý.
Nếu như trước đây, nhà phố mái thái hay mái nhật chiếm ưu thế, thì nay nhà mái bằng 2 tầng lại nổi lên như một giải pháp tối ưu cho đất phố chật hẹp và nhu cầu sử dụng đa năng. Với thiết kế vuông vức, trẻ trung và khả năng tận dụng không gian tối đa, mẫu nhà này vừa mang đến không gian sống tiện nghi, vừa là xu hướng thiết kế dẫn đầu 2025.
Vì sao nhà phố mái bằng 2 tầng được yêu thích?
1. Phù hợp tài chính cho nhiều gia đình
Một trong những điểm cộng lớn nhất của nhà phố mái bằng 2 tầng là chi phí xây dựng vừa túi tiền, phù hợp với đại đa số gia đình trẻ hoặc những gia chủ muốn tối ưu tài chính. Với khoảng đầu tư 700 triệu – 1,2 tỷ đồng, gia chủ có thể sở hữu một căn nhà vừa đẹp, vừa tiện nghi.
2. Thiết kế hiện đại – hợp xu thế 2025
Năm 2025 là thời đại của kiến trúc tối giản, tiện dụng nhưng vẫn sang trọng. Nhà mái bằng 2 tầng với đường nét vuông vắn, mảng tường phẳng, ban công rộng thoáng chính là lựa chọn bắt trend.
3. Tối ưu công năng sử dụng

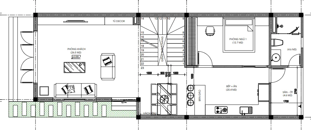
Nhà phố mái bằng 2 tầng thường có bố trí:
-
Tầng 1: phòng khách, bếp – ăn, vệ sinh, có thể thêm phòng ngủ cho người già.
-
Tầng 2: phòng ngủ master, phòng ngủ con, phòng sinh hoạt chung, sân phơi.
Cách sắp xếp này không chỉ đáp ứng nhu cầu sinh hoạt đầy đủ, mà còn tạo sự riêng tư và khoa học cho từng thành viên.
4. Tận dụng mái bằng đa công năng
Khác biệt lớn của nhà phố mái bằng 2 tầng chính là phần mái. Thay vì chỉ để che chắn, mái bằng còn được tận dụng làm sân thượng, khu vườn xanh, chỗ ngồi thư giãn hoặc không gian BBQ cuối tuần. Đây là ưu thế khiến nhiều gia đình yêu thích, đặc biệt là các khu đô thị đông đúc.
Những phong cách nhà phố mái bằng 2 tầng nổi bật năm 2025
Nhà phố mái bằng 2 tầng hiện đại tối giản
Phong cách này nhấn mạnh vào màu sắc trung tính (trắng, xám, ghi), ít chi tiết cầu kỳ, tập trung vào công năng. Đây là lựa chọn số 1 cho gia đình yêu thích sự trẻ trung và đơn giản.
Nhà phố mái bằng 2 tầng kết hợp sân vườn
Đưa thiên nhiên vào không gian sống là xu hướng 2025. Gia chủ có thể bố trí cây xanh ở ban công, sân thượng, tiểu cảnh trước sân, tạo cảm giác gần gũi, thoáng mát.
Nhà phố mái bằng 2 tầng có gara ô tô
Phù hợp với các gia đình ở phố lớn, việc bố trí gara ngay trong tầng 1 giúp tiện lợi di chuyển, bảo vệ tài sản. Đây là xu hướng được nhiều gia chủ quan tâm.
Nhà phố mái bằng 2 tầng kết hợp kinh doanh
Trong bối cảnh kinh tế năng động, nhiều gia đình lựa chọn thiết kế tầng 1 để kinh doanh – tầng 2 để ở. Đây là giải pháp giúp tối ưu nguồn thu nhập mà vẫn đảm bảo không gian sống.
Ưu điểm vượt trội của nhà phố mái bằng 2 tầng
-
Tiết kiệm chi phí: Xây dựng đơn giản hơn so với mái thái, mái nhật.
-
Đa dạng phong cách: Hiện đại, tối giản, sân vườn, kết hợp kinh doanh.
-
Tận dụng không gian tối đa: Có thể làm sân thượng, trồng cây, phơi đồ.
-
Phù hợp nhiều diện tích đất: Từ 60m² đến 120m² đều có thể triển khai linh hoạt.
-
Tăng giá trị bất động sản: Kiến trúc hiện đại, dễ cho thuê hoặc bán lại với giá tốt.
Một số lưu ý khi xây dựng nhà phố mái bằng 2 tầng
-
Chọn đơn vị thiết kế – thi công uy tín: Đảm bảo công năng và tính thẩm mỹ lâu dài.
-
Quan tâm đến chống nóng và thoát nước: Mái bằng dễ hấp thụ nhiệt, cần xử lý vật liệu chống nóng tốt.
-
Tính toán tài chính rõ ràng: Tránh phát sinh chi phí trong quá trình xây dựng.
-
Phong thủy hợp mệnh: Bố trí cửa chính, bếp, cầu thang theo phong thủy để mang lại may mắn.
Để tìm hiểu rõ hơn về tiêu chuẩn vật liệu xây dựng và các yếu tố ảnh hưởng đến chi phí, bạn có thể tham khảo thêm tại các bài viết chuyên sâu về vật liệu xây dựng cao cấp trên Wikipedia.
Xu hướng thiết kế nội thất trong nhà phố mái bằng 2 tầng 2025
-
Không gian mở: Liên thông phòng khách – bếp để tạo cảm giác rộng rãi.
-
Màu sắc tự nhiên: Gỗ, đá tự nhiên, ánh sáng vàng ấm áp tạo sự sang trọng.
-
Đa năng và tiện nghi: Đồ nội thất thông minh, tiết kiệm diện tích.
-
Smart Home: Tích hợp công nghệ hiện đại giúp gia chủ quản lý căn nhà dễ dàng hơn.
Liên hệ tư vấn – Thiết kế thi công trọn gói Techhome
Techhome tự hào là đơn vị thiết kế và thi công trọn gói hàng trăm công trình nhà phố mái bằng 2 tầng tại Hà Nội, Hải Dương, Thanh Hóa, Hưng Yên và nhiều tỉnh thành khác.
Với đội ngũ kiến trúc sư giàu kinh nghiệm, chúng tôi cam kết mang đến mẫu nhà hiện đại – tiện nghi – chi phí hợp lý.
Hotline: 0364 042 222 – 0387 603 333
Website: https://nhadeptechhome.vn


