Sống Khác Biệt Giữa Đô Thị – Khám Phá Xu Hướng Nhà Phố Hiện Đại 2025

nhà phố hiện đại

1. Nhà phố hiện đại – Lựa chọn khẳng định phong cách sống mới

Trong bối cảnh đô thị ngày càng phát triển, nhà phố hiện đại không chỉ đơn thuần là nơi ở, mà còn là biểu tượng của sự tinh tế, tiện nghi và thẩm mỹ vượt thời gian. Với phong cách kiến trúc tối giản nhưng vẫn sang trọng, sự kết hợp hài hòa giữa vật liệu cao cấp, không gian mở và công năng thông minh, mô hình nhà phố hiện đại đang trở thành xu hướng “cháy” nhất năm 2025.

Điểm nhấn lớn nhất chính là thiết kế mặt tiền phóng khoáng, sử dụng vật liệu kính cường lực, lam chắn nắng và mảng xanh trên cao, vừa tối ưu ánh sáng tự nhiên vừa tạo cảm giác gắn kết với thiên nhiên.

2. Lợi ích vượt trội khi lựa chọn nhà phố hiện đại

nhà phố hiện đại nhà phố hiện đại nhà phố hiện đại nhà phố hiện đại

🌿 Không gian xanh giữa lòng phố thị

Nhà phố hiện đại thường kết hợp ban công cây xanh, tiểu cảnh sân vườn, mái bằng kết hợp sân thượng. Điều này giúp cân bằng không khí trong lành, đem lại cảm giác thư giãn giữa phố xá đông đúc.

🏡 Công năng linh hoạt – tối ưu từng mét vuông

Với diện tích đất phố thường hạn chế, thiết kế nhà phố hiện đại ưu tiên không gian mở liên thông phòng khách – bếp – ăn, hạn chế tường ngăn, mang lại sự thoáng đãng và tiện nghi.

💡 Kiến trúc tối giản nhưng sang trọng

Phong cách hiện đại loại bỏ sự rườm rà, tập trung vào đường nét vuông vức, mảng khối khỏe khoắn, màu sắc trung tính kết hợp điểm nhấn bằng vật liệu gỗ, đá tự nhiên, kính cường lực. Đây chính là sự tinh tế khó lỗi thời.

🌍 Tiết kiệm năng lượng – Hướng đến bền vững

Thiết kế nhà phố hiện đại thường ứng dụng giải pháp đón gió, lấy sáng thông minh, hệ thống điện mặt trời, thiết bị tiết kiệm điện nước, hướng đến chuẩn sống xanh bền vững.


3. Xu hướng thiết kế nhà phố hiện đại 2025

  • Nhà phố 2 – 3 tầng mái bằng: Phù hợp với gia đình trẻ, yêu thích sự tối giản và chi phí hợp lý.

  • Nhà phố kết hợp kinh doanh: Tầng trệt làm cửa hàng/ văn phòng, các tầng trên là không gian sinh hoạt.

  • Nhà phố hiện đại có gara ô tô: Thiết kế tích hợp chỗ để xe tiện lợi, an toàn trong chính ngôi nhà.

  • Nhà phố xanh: Sử dụng tường cây, giếng trời, mái xanh để kết nối thiên nhiên, giảm nhiệt đô thị.


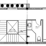
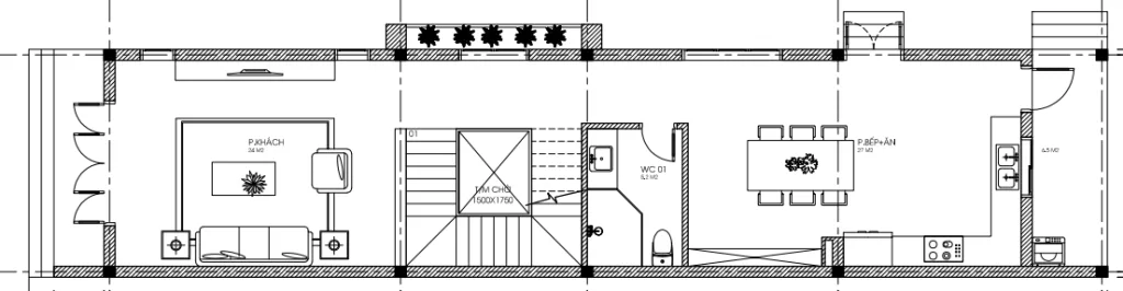
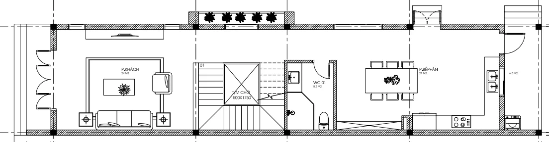
4. Gợi ý mặt bằng công năng tối ưu

Với diện tích mặt tiền 5 – 6m, chiều sâu 15 – 20m, công năng điển hình của một căn nhà phố hiện đại có thể sắp xếp như sau:

  • Tầng 1: Phòng khách rộng mở liên thông bếp – ăn, 1 WC chung, có thể tích hợp gara ô tô.

  • Tầng 2: 2 – 3 phòng ngủ, phòng sinh hoạt chung, ban công cây xanh.

  • Tầng 3 (nếu có): Phòng thờ, phòng ngủ phụ/ phòng làm việc, sân thượng thư giãn.

  • Sân thượng: Vườn cây, bàn trà ngoài trời, kết hợp không gian BBQ.


5. Chi phí xây dựng nhà phố hiện đại

Tùy vào diện tích và vật liệu lựa chọn, chi phí xây dựng nhà phố hiện đại dao động từ:

  • 6 – 7,5 triệu/m²: Hoàn thiện cơ bản, vật liệu phổ thông.

  • 7,5 – 9,5 triệu/m²: Hoàn thiện cao cấp hơn, có thêm mảng xanh và vật liệu ngoại nhập.

  • 9,5 – 12 triệu/m²: Mức cao cấp, tích hợp công nghệ thông minh và giải pháp sống xanh bền vững.

Lưu ý: Đây chỉ là mức chi phí ước tính. Để nhận được báo giá chính xác và chi tiết nhất cho công trình của bạn, vui lòng liên hệ trực tiếp với chúng tôi. Hoặc để tìm hiểu rõ hơn về tiêu chuẩn vật liệu xây dựng và các yếu tố ảnh hưởng đến chi phí, bạn có thể tham khảo thêm tại các bài viết chuyên sâu về vật liệu xây dựng cao cấp trên Wikipedia.


6. Vì sao nên chọn Techhome thiết kế – thi công nhà phố hiện đại?

  • ✅ Kinh nghiệm dày dặn: Đã thực hiện hàng trăm công trình nhà phố hiện đại trên khắp miền Bắc.

  • ✅ Thiết kế chuẩn SEO thẩm mỹ & công năng: Bản vẽ tối ưu diện tích, tận dụng ánh sáng và gió tự nhiên.

  • ✅ Thi công trọn gói: Minh bạch, đúng tiến độ, không phát sinh chi phí.

  • ✅ Bảo hành dài hạn: Cam kết chất lượng và đồng hành lâu dài cùng gia chủ.


7. Kết luận

Nhà phố hiện đại chính là xu hướng không thể bỏ lỡ cho những ai muốn khẳng định phong cách sống sang trọng, tiện nghi và gần gũi thiên nhiên. Đây không chỉ là nơi an cư, mà còn là khoản đầu tư bền vững cho tương lai.

 Nếu anh/chị đang tìm kiếm mẫu nhà phố hiện đại 2 – 3 tầng phù hợp với diện tích đất, nhu cầu sử dụng và chi phí dự trù, hãy để Techhome đồng hành kiến tạo tổ ấm mơ ước!

Xem thêm các dự án nổi bật khác của Techhome tại https://nhadeptechhome.vn/

Để lại một bình luận

Email của bạn sẽ không được hiển thị công khai. Các trường bắt buộc được đánh dấu *

    Vui lòng nhấn nút YÊU CẦU TƯ VẤN và đợi 1 - 2 giây đến khi thấy thông báo thành công

    YÊU CẦU TƯ VẤN