Nhà phố 2 tầng mái bằng – Xu hướng kiến trúc đang “làm mưa làm gió” năm 2025

Trong vài năm gần đây, nhà phố 2 tầng mái bằng không còn chỉ là lựa chọn phổ biến, mà đã trở thành biểu tượng cho phong cách sống hiện đại, tối giản và sang trọng. Tại các đô thị lớn, mẫu nhà này xuất hiện ngày càng nhiều, từ những con phố sầm uất đến các khu dân cư cao cấp.
Điểm hấp dẫn nhất của mẫu nhà phố mái bằng chính là sự linh hoạt trong thiết kế, dễ dàng biến tấu để phù hợp với nhiều diện tích đất, công năng sử dụng và gu thẩm mỹ của từng gia đình.
1. Vì sao nhà phố 2 tầng mái bằng được ưa chuộng?
Có 5 lý do chính khiến xu hướng này trở thành lựa chọn hàng đầu:
-
Phong cách hiện đại, tối giản: Kiến trúc vuông vức, đường nét khỏe khoắn, tạo cảm giác trẻ trung và sang trọng.
-
Tiết kiệm chi phí: So với các loại mái thái, mái nhật, mái bằng có chi phí thi công hợp lý hơn, dễ dàng bảo trì.
-
Tối ưu không gian: 2 tầng đủ để bố trí phòng khách, bếp, 3-4 phòng ngủ, phòng thờ mà vẫn thoáng đãng.
-
Tận dụng mái bằng: Có thể làm sân thượng, vườn cây xanh, khu tiệc BBQ hoặc lắp điện năng lượng mặt trời.
-
Phù hợp đô thị: Diện tích đất phố thường hẹp, mẫu nhà này đáp ứng được yêu cầu gọn gàng, hiện đại.
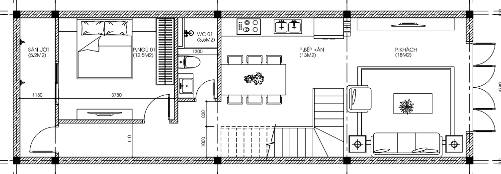
2. Thiết kế công năng chuẩn cho nhà phố 2 tầng mái bằng

Một mẫu thiết kế điển hình gồm:
-
Tầng 1: Phòng khách, phòng bếp + ăn, 1 phòng ngủ, WC, sân trước hoặc gara.
-
Tầng 2: 2-3 phòng ngủ, phòng thờ, ban công, sân phơi.
-
Mái bằng: Sân thượng trồng rau sạch, đặt máy năng lượng mặt trời hoặc khu vườn nhỏ thư giãn.
👉 Đây là sự kết hợp hoàn hảo giữa công năng – thẩm mỹ – phong thủy, vừa đáp ứng nhu cầu sinh hoạt, vừa đảm bảo sự riêng tư và thoải mái cho từng thành viên.
3. Ưu – nhược điểm của nhà phố 2 tầng mái bằng
Ưu điểm:
-
Bền bỉ với thời gian, ít bị ảnh hưởng bởi thời tiết.
-
Tạo được không gian sống xanh với ban công, sân thượng.
-
Phong cách hiện đại, trẻ trung, phù hợp thị hiếu hiện tại.
-
Dễ dàng kết hợp với vật liệu mới như kính, gỗ, đá ốp.
Nhược điểm:
-
Nếu chống thấm không tốt, mái bằng dễ bị đọng nước.
-
Cần thi công chuẩn kỹ thuật để tránh nứt, thấm.
4. Xu hướng thiết kế nhà phố 2 tầng mái bằng năm 2025

Năm nay, Techhome nhận thấy có 3 xu hướng nổi bật:
-
Phong cách Minimalism (tối giản): Gam màu trắng, đen, xám kết hợp kính cường lực.
-
Phong cách Tropical (nhiệt đới): Mái bằng kết hợp cây xanh, ban công thoáng mát.
-
Phong cách Luxury hiện đại: Mặt tiền ốp đá, hệ thống cửa nhôm kính sang trọng.
5. Báo giá xây dựng nhà phố 2 tầng mái bằng
Chi phí xây dựng trung bình: 5 – 7 triệu/m² (tùy chất liệu và thiết kế).
Ví dụ: Nhà phố 2 tầng mái bằng diện tích 80m², tổng chi phí khoảng 800 – 1.2 tỷ đồng.
Lưu ý: Đây chỉ là mức chi phí ước tính. Để nhận được báo giá chính xác và chi tiết nhất cho công trình của bạn, vui lòng liên hệ trực tiếp với chúng tôi. Hoặc để tìm hiểu rõ hơn về tiêu chuẩn vật liệu xây dựng và các yếu tố ảnh hưởng đến chi phí, bạn có thể tham khảo thêm tại các bài viết chuyên sâu về vật liệu xây dựng cao cấp trên Wikipedia.
6. Techhome – Đơn vị thiết kế & thi công nhà phố 2 tầng mái bằng uy tín
Với nhiều năm kinh nghiệm, Techhome đã đồng hành cùng hàng trăm gia đình Việt trong hành trình xây dựng ngôi nhà mơ ước.
Chúng tôi cam kết:
-
Thiết kế chuẩn phong thủy – tối ưu công năng.
-
Thi công trọn gói, đúng tiến độ, đúng cam kết.
-
Vật liệu đạt chuẩn chất lượng, bền bỉ theo thời gian.
-
Bảo hành uy tín, đồng hành cùng khách hàng sau bàn giao.
Kết luận
Nhà phố 2 tầng mái bằng không chỉ là một công trình kiến trúc, mà còn là biểu tượng của phong cách sống hiện đại, tiện nghi và đẳng cấp. Nếu bạn đang tìm kiếm một giải pháp nhà ở tối ưu về cả công năng lẫn thẩm mỹ, thì đây chắc chắn là lựa chọn hoàn hảo.
Liên hệ ngay với Techhome qua Hotline: 0364 042 222 – 0387 603 333 để được tư vấn chi tiết và nhận báo giá ưu đãi nhất.
Xem thêm các dự án nổi bật khác của Techhome tại https://nhadeptechhome.vn/
