🏡 Nhà 2 tầng mái bằng hiện đại – Giải pháp không gian sống chuẩn xu hướng 2025

Nhà 2 tầng mái bằng hiện đại đang là một trong những xu hướng thiết kế nhà ở hot nhất năm 2025. Không chỉ mang đến vẻ đẹp sang trọng, tinh tế mà loại hình kiến trúc này còn tối ưu hóa công năng, phù hợp với nhiều diện tích đất và nhu cầu của gia chủ.
Trong bối cảnh đô thị ngày càng phát triển, quỹ đất thu hẹp, việc lựa chọn một mẫu nhà phố mái bằng hiện đại chính là giải pháp thông minh để cân bằng giữa thẩm mỹ – công năng – chi phí.
🌟 Điểm nổi bật của thiết kế nhà 2 tầng mái bằng hiện đại
1. Thiết kế kiến trúc trẻ trung, tinh gọn
-
Đường nét vuông vức, bố cục rõ ràng, tạo nên sự khỏe khoắn.
-
Mặt tiền kết hợp vật liệu hiện đại như kính, đá, gỗ nhựa ngoài trời.
-
Ban công thoáng rộng kết hợp cây xanh mang lại sự hài hòa với thiên nhiên.
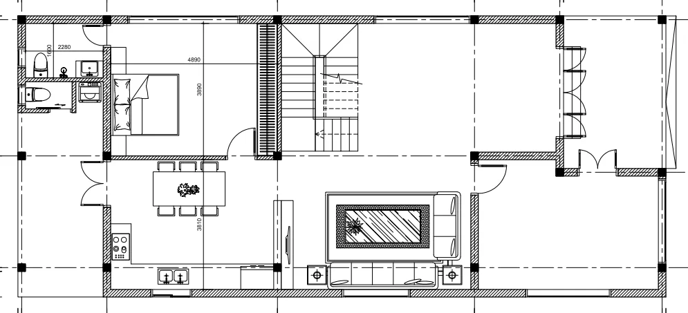
2. Công năng tối ưu hóa không gian
-
Tầng 1: Phòng khách sang trọng, bếp + ăn tiện nghi, phòng ngủ và WC bố trí hợp lý.
-
Tầng 2: Phòng ngủ master, phòng sinh hoạt chung, ban công thoáng đãng.
-
Sân thượng: Có thể thiết kế khu vườn mini, không gian BBQ hoặc chỗ thư giãn.
3. Tối ưu chi phí, bền vững lâu dài
-
Mái bằng dễ thi công, tiết kiệm chi phí hơn so với mái Thái hay mái Nhật.
-
Kết cấu bền chắc, khả năng chống thấm, chống nóng tốt.
-
Dễ dàng lắp đặt hệ thống điện mặt trời, bồn nước, máy năng lượng.
📸 Hình ảnh thực tế – Mẫu nhà 2 tầng mái bằng hiện đại Techhome

👉 Mẫu thiết kế nổi bật với hệ cửa kính cường lực sang trọng, ban công tràn ngập cây xanh và không gian mở đầy năng lượng. Tất cả được Techhome chau chuốt từng chi tiết, mang đến tổ ấm bền vững cho gia đình Việt.
💡 Tại sao nên chọn Techhome để thiết kế & thi công nhà 2 tầng mái bằng hiện đại?
✔ Đội ngũ kiến trúc sư sáng tạo, bắt kịp xu hướng mới.
✔ Thi công trọn gói – đảm bảo chất lượng, đúng tiến độ, đúng chi phí.
✔ Hơn 5000+ công trình bàn giao thành công, nhận được sự hài lòng tuyệt đối từ khách hàng.
✔ Cam kết bảo hành, bảo trì tận tâm.
📊 Chi phí xây dựng nhà 2 tầng mái bằng hiện đại 2025
-
Diện tích 80 – 100m²: từ 900 triệu – 1,2 tỷ.
-
Diện tích 120 – 150m²: từ 1,5 tỷ – 2,2 tỷ.
-
Diện tích lớn trên 200m²: từ 2,5 tỷ trở lên (tùy vật liệu và yêu cầu thiết kế).
Lưu ý: Đây chỉ là mức chi phí ước tính. Để nhận được báo giá chính xác và chi tiết nhất cho công trình của bạn, vui lòng liên hệ trực tiếp với chúng tôi. Hoặc để tìm hiểu rõ hơn về tiêu chuẩn vật liệu xây dựng và các yếu tố ảnh hưởng đến chi phí, bạn có thể tham khảo thêm tại các bài viết chuyên sâu về vật liệu xây dựng cao cấp trên Wikipedia.
🌿 Xu hướng thiết kế nhà 2 tầng mái bằng hiện đại năm 2025
-
Không gian xanh: ban công, giếng trời, vườn sân thượng.
-
Phong cách tối giản (Minimalism): ít chi tiết nhưng sang trọng, hiện đại.
-
Vật liệu thông minh, thân thiện môi trường: gạch ốp giả đá, gỗ nhựa, kính low-e cách nhiệt.
-
Tích hợp công nghệ thông minh (Smart Home): hệ thống đèn, rèm cửa, camera an ninh điều khiển từ xa.
🎯 Kết luận
Một mẫu nhà 2 tầng mái bằng hiện đại không chỉ là không gian sống, mà còn là tuyên ngôn phong cách, là sự lựa chọn khẳng định gu thẩm mỹ và đẳng cấp của gia chủ. Với đội ngũ kiến trúc sư chuyên nghiệp, Techhome luôn đồng hành cùng bạn để kiến tạo một tổ ấm bền vững – chuẩn xu hướng – đầy cảm hứng sống.
Xem thêm các dự án nổi bật khác của Techhome tại https://nhadeptechhome.vn/
