1. Nhà vườn mái Nhật 1 tầng – xu hướng kiến trúc được ưa chuộng nhất hiện nay
Trong vài năm trở lại đây, nhà vườn mái Nhật 1 tầng đã trở thành xu hướng kiến trúc nổi bật tại Việt Nam. Không chỉ mang đến một không gian sống tiện nghi, mẫu nhà này còn hội tụ đầy đủ yếu tố thẩm mỹ, công năng và sự hòa hợp với thiên nhiên.
Mái Nhật – hay còn gọi là mái lùn – được thiết kế với độ dốc vừa phải, kết hợp với hình khối vững chãi, tạo nên vẻ đẹp tinh tế và sang trọng. Khi kết hợp với không gian sân vườn rộng rãi, mẫu nhà này mang đến cảm giác an yên, thoáng đãng, rất phù hợp với lối sống hiện đại đề cao sự thư giãn và nghỉ dưỡng tại gia.
2. Điểm nhấn đặc biệt của nhà vườn mái Nhật 1 tầng
🌿 Không gian mở, gắn kết với thiên nhiên
Nhà vườn mái Nhật thường được thiết kế nhiều cửa sổ lớn, sử dụng kính cường lực để đón ánh sáng tự nhiên. Nhờ vậy, không gian nội thất luôn thoáng đãng, gần gũi với cây xanh và cảnh quan sân vườn.
🏠 Công năng tối ưu cho gia đình Việt
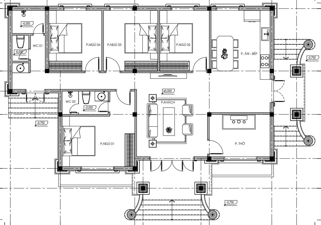
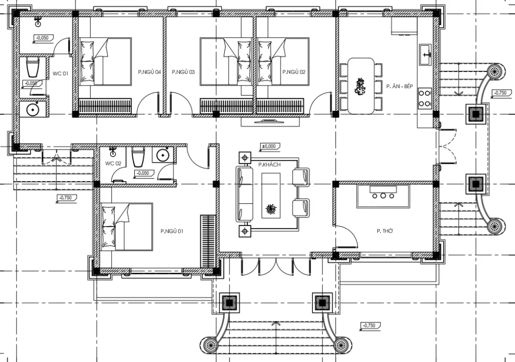
Bản vẽ công năng thường gồm: phòng khách rộng rãi, bếp – phòng ăn tiện nghi, 3 – 4 phòng ngủ, phòng thờ trang nghiêm, cùng khu vệ sinh bố trí hợp lý. Tất cả tạo nên sự tiện lợi trong sinh hoạt mà vẫn đảm bảo sự riêng tư cho từng thành viên.
🎨 Thẩm mỹ tinh tế, sang trọng nhưng không phô trương
Mái Nhật có độ dốc vừa phải, dáng thấp thoải, tạo cảm giác mềm mại hơn so với mái Thái. Phối hợp cùng gam màu trung tính như trắng, be, xám ghi, kiến trúc nhà vườn mái Nhật 1 tầng luôn toát lên sự thanh lịch, phù hợp với nhiều vùng miền.
🌳 Không gian ngoại thất xanh mát
Khu vườn được bố trí tiểu cảnh, hồ cá Koi, non bộ, hoặc chòi nghỉ giúp gia chủ tận hưởng không gian sống như một “khu nghỉ dưỡng thu nhỏ” ngay tại chính ngôi nhà của mình.
3. Ưu điểm vượt trội của mẫu nhà vườn mái Nhật 1 tầng
-
Chi phí hợp lý: So với biệt thự nhiều tầng, chi phí xây dựng nhà vườn 1 tầng thấp hơn, nhưng vẫn đảm bảo tính sang trọng và tiện nghi.
-
Thiết kế linh hoạt: Có thể tùy biến diện tích từ 120m² đến hơn 250m², phù hợp với nhiều khu đất rộng ở nông thôn hoặc ngoại ô thành phố.
-
Phong thủy hài hòa: Mái Nhật mang đến sự cân đối, thu hút tài lộc, giúp gia chủ cảm thấy an yên, hạnh phúc.
-
Không gian sống xanh: Tích hợp sân vườn, cây cảnh, hồ nước… tạo môi trường sống trong lành, gần gũi thiên nhiên, đặc biệt phù hợp với gia đình có người lớn tuổi và trẻ nhỏ.
4. Bản vẽ công năng chi tiết của nhà vườn mái Nhật 1 tầng

-
Phòng khách: Trung tâm ngôi nhà, rộng rãi, kết nối trực tiếp với hiên chính.
-
Phòng bếp – ăn: Thoáng đãng, tiện nghi, hướng ra vườn sau.
-
4 phòng ngủ: Bố trí hợp lý, đảm bảo sự riêng tư và yên tĩnh.
-
Phòng thờ: Trang trọng, đặt ở vị trí hợp phong thủy.
-
2 WC: Phân bổ hợp lý, thuận tiện cho sinh hoạt gia đình.
-
Sân vườn – tiểu cảnh: Tạo nên bức tranh hoàn chỉnh cho không gian sống.

5. Tại sao nên chọn Techhome thiết kế và thi công nhà vườn mái Nhật 1 tầng?
Với nhiều năm kinh nghiệm trong lĩnh vực thiết kế và thi công trọn gói, Techhome cam kết mang đến:
-
Thiết kế chuẩn phong thủy – tối ưu công năng.
-
Thi công chất lượng cao – bền đẹp theo thời gian.
-
Báo giá minh bạch, tối ưu chi phí cho gia chủ.
-
Đồng hành từ bản vẽ đến khi bàn giao, đảm bảo sự hài lòng tuyệt đối.
Để tìm hiểu rõ hơn về tiêu chuẩn vật liệu xây dựng và các yếu tố ảnh hưởng đến chi phí, bạn có thể tham khảo thêm tại các bài viết chuyên sâu về vật liệu xây dựng cao cấp trên Wikipedia.
6. Kết luận
Nhà vườn mái Nhật 1 tầng không chỉ là một công trình kiến trúc, mà còn là nơi lưu giữ những khoảnh khắc hạnh phúc của gia đình. Đây chính là lựa chọn lý tưởng cho những ai đang tìm kiếm một không gian sống thanh bình, tiện nghi và hòa hợp cùng thiên nhiên.
Nếu bạn đang quan tâm đến mẫu nhà vườn mái Nhật 1 tầng, hãy liên hệ ngay với Techhome để được tư vấn chi tiết và nhận báo giá thiết kế – thi công trọn gói ưu đãi nhất.
Xem thêm các dự án nổi bật khác của Techhome tại https://nhadeptechhome.vn/

