Trong xu hướng thiết kế kiến trúc hiện nay, nhà mái bằng 1 tầng đang trở thành lựa chọn hàng đầu của nhiều gia đình Việt. Với thiết kế tối giản, hiện đại nhưng không kém phần sang trọng, nhà mái bằng không chỉ mang lại sự tiện nghi trong sinh hoạt mà còn thể hiện phong cách sống trẻ trung, bền vững và hợp thời.

1. Vì sao nhà mái bằng 1 tầng ngày càng được ưa chuộng?
Ngay từ khi ra mắt, kiểu nhà mái bằng đã chinh phục được rất nhiều gia chủ bởi tính ứng dụng cao. Đặc biệt, mẫu nhà mái bằng 1 tầng phù hợp với đa dạng diện tích đất, từ nông thôn đến thành thị.
-
Phong cách hiện đại – tinh gọn: Với đường nét vuông vức, gọn gàng, nhà mái bằng mang đến một diện mạo khỏe khoắn và phóng khoáng.
-
Tiết kiệm chi phí: So với mái thái hoặc mái Nhật, chi phí xây dựng mái bằng thấp hơn nhờ cấu trúc đơn giản, dễ thi công.
-
Tối ưu công năng: Với 1 tầng, ngôi nhà dễ dàng bố trí 2 – 3 phòng ngủ, phòng khách, bếp – ăn và khu vệ sinh chung mà vẫn đảm bảo sự tiện nghi.
-
Bền vững và chắc chắn: Kết cấu mái bằng vững chãi, khả năng chịu lực tốt, ít bị ảnh hưởng bởi gió bão, phù hợp với điều kiện khí hậu Việt Nam.
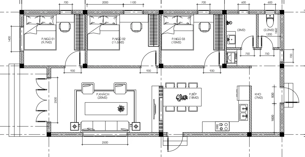
2. Bản vẽ công năng khoa học của nhà mái bằng 1 tầng

Trong thiết kế của Techhome, công năng được bố trí tối ưu cho gia đình từ 3 – 5 thành viên.
-
Phòng khách: Diện tích 20m², rộng thoáng, là trung tâm kết nối các thành viên.
-
3 phòng ngủ: Được phân chia hợp lý (9,7m² – 11,5m² – 10m²), mang lại không gian nghỉ ngơi thoải mái, riêng tư.
-
Phòng bếp + ăn: 18m², thiết kế mở, thuận tiện cho sinh hoạt chung.
-
Khu vệ sinh – tắm: Bố trí tách biệt, khoa học, đảm bảo sự tiện nghi.
-
Kho chứa: 7m², giúp lưu trữ đồ đạc gọn gàng, tối ưu diện tích sử dụng.
Với cách bố trí này, nhà mái bằng 1 tầng vừa đáp ứng nhu cầu sinh hoạt vừa giữ được sự thoáng mát, tiện nghi.
3. Ưu điểm vượt trội của nhà mái bằng 1 tầng
-
Thiết kế linh hoạt: Có thể tùy chỉnh theo diện tích đất và sở thích gia chủ.
-
Dễ mở rộng trong tương lai: Nếu có nhu cầu, gia đình có thể xây chồng tầng mà không ảnh hưởng đến kết cấu.
-
Phù hợp xu hướng xanh: Mái bằng có thể tận dụng để trồng cây, lắp đặt hệ thống điện mặt trời hoặc bồn nước năng lượng mặt trời.
-
Phong thủy hài hòa: Với mặt tiền rộng, hình khối vuông vức, nhà mái bằng thường tượng trưng cho sự vững chắc, ổn định và tài lộc bền lâu.
4. Phối cảnh kiến trúc ấn tượng

Ngôi nhà mái bằng 1 tầng Techhome thiết kế mang phong cách hiện đại với:
-
Tông màu trắng – ghi sang trọng, kết hợp điểm nhấn gỗ ấm áp.
-
Hệ cửa kính nhôm xingfa giúp lấy sáng tự nhiên tối đa, tiết kiệm năng lượng.
-
Mái bằng phẳng kết hợp trần ốp gỗ nhựa ngoài trời, tăng thêm vẻ sang trọng.
-
Sân vườn và cổng tường rào hiện đại, tạo tổng thể hài hòa, gần gũi thiên nhiên.
5. Nhà mái bằng 1 tầng phù hợp với ai?
-
Gia đình trẻ muốn sở hữu một tổ ấm tiện nghi, tiết kiệm chi phí.
-
Gia đình 2 – 3 thế hệ sinh sống chung nhưng mong muốn không gian tối giản, dễ sử dụng.
-
Người yêu thích phong cách hiện đại, tinh tế, không cầu kỳ nhưng bền vững theo thời gian.
6. Tại sao nên chọn Techhome thiết kế – thi công nhà mái bằng 1 tầng?
Với nhiều năm kinh nghiệm trong thiết kế và thi công trọn gói, Techhome tự hào mang đến:
-
Giải pháp thiết kế chuẩn phong thủy – chuẩn công năng – chuẩn thẩm mỹ.
-
Đội ngũ kiến trúc sư sáng tạo, kỹ sư giàu kinh nghiệm.
-
Thi công trọn gói – cam kết tiến độ – đảm bảo chất lượng.
-
Chính sách bảo hành, hậu mãi rõ ràng, tận tâm đồng hành cùng gia chủ.
Để tìm hiểu rõ hơn về tiêu chuẩn vật liệu xây dựng và các yếu tố ảnh hưởng đến chi phí, bạn có thể tham khảo thêm tại các bài viết chuyên sâu về vật liệu xây dựng cao cấp trên Wikipedia.

Kết luận
Một mẫu nhà mái bằng 1 tầng không chỉ đơn giản là nơi an cư mà còn thể hiện phong cách sống hiện đại, khoa học và bền vững. Với thiết kế tinh tế, công năng tối ưu và chi phí hợp lý, đây chắc chắn sẽ là lựa chọn hoàn hảo cho nhiều gia đình Việt.
Nếu bạn đang tìm kiếm đơn vị thiết kế và thi công nhà mái bằng 1 tầng trọn gói, hãy liên hệ ngay với Techhome để được tư vấn chi tiết và báo giá chính xác nhất.
Xem thêm các dự án nổi bật khác của Techhome tại https://nhadeptechhome.vn/
