Khi “chuẩn sống hiện đại” về tới vùng quê Ninh Bình
Giữa lòng Kim Sơn – Ninh Bình, nơi những cánh đồng trải dài và con người giữ trọn nét quê chân chất, một ngôi nhà vườn mái Nhật 1 tầng vừa hoàn thiện bởi Techhome đã khiến cả khu vực phải trầm trồ.
Công trình của anh An không chỉ là nơi ở, mà còn là biểu tượng của sự tinh tế, hiện đại và đẳng cấp mới trong kiến trúc nông thôn Việt.
Nhìn từ xa, ngôi nhà toát lên vẻ đẹp thanh thoát, chuẩn phong cách Nhật Bản, vừa gần gũi vừa hiện đại – một thiết kế khiến bất kỳ ai cũng phải thốt lên:
“Đúng là nhà vườn mơ ước!”
📋 Thông tin tổng quan công trình nhà vườn mái nhật 1 tầng
-
Chủ đầu tư: Anh An
-
Địa điểm: Kim Sơn – Ninh Bình
-
Loại hình: Nhà vườn mái Nhật 1 tầng
-
Đơn vị thiết kế & thi công: Công ty TNHH Techhome
-
Diện tích xây dựng: ~160m²
-
Công năng: 3 phòng ngủ, phòng khách, bếp + ăn, 2 WC, phòng giặt, khu tắm riêng
-
Hoàn thiện: 2025
-
Phong cách: Hiện đại – tối giản – sang trọng
🏠 Phối cảnh tổng thể – Vẻ đẹp dung hòa giữa hiện đại & truyền thống
Tổng thể ngôi nhà vườn mái nhật 1 tầng được xây theo khối vuông vắn – đăng đối, lấy cảm hứng từ kiến trúc Nhật Bản với mái dốc nhẹ, giật cấp thanh thoát, giúp ngôi nhà thoát nước tốt, bền vững và mát mẻ quanh năm.
Tông màu chủ đạo xanh ghi – trắng kem kết hợp với hệ đá ốp chân tường granite xám đen tạo nên cảm giác chắc chắn, sang trọng nhưng vẫn gần gũi.
Phần mặt tiền được thiết kế nổi bật với hệ cột vuông khỏe khoắn, cửa kính nhôm xingfa đen tạo độ tương phản hiện đại, đón trọn ánh sáng tự nhiên vào bên trong.
Khi nhìn vào công trình, ai cũng cảm nhận được “hơi thở của sự tinh tế” – vừa hiện đại, vừa chuẩn mực, đúng phong cách Techhome.
🌸 Mái Nhật – Nét chấm phá làm nên linh hồn công trình
Điểm nhấn đặc biệt của công trình chính là mái Nhật giật cấp 4 chiều – mềm mại, thanh thoát nhưng vô cùng cân đối.
Mái được lợp ngói Fuji màu xanh than, có độ dốc chuẩn, hệ diềm mái kẻ chỉ rõ nét – vừa đảm bảo thẩm mỹ, vừa mang đến cảm giác sang trọng như một biệt thự mini giữa lòng quê.
Mái Nhật không chỉ là kiến trúc – mà là “chất sống”: yên bình, tinh tế và bền vững theo thời gian.
🌿 Không gian sân vườn – “Chạm” vào thiên nhiên
Techhome tận dụng tối đa diện tích sân và vườn xung quanh để kiến tạo không gian mở.
Phía trước nhà là khu tiểu cảnh nhỏ, trồng tùng bonsai, cây xanh thấp tầng tạo điểm nhấn mềm mại cho mặt tiền.
Lối đi lát đá granite chống trơn, kết hợp hệ thống đèn âm sân giúp căn nhà lung linh hơn khi đêm xuống.
Khu sân trước rộng rãi đủ chỗ cho 2 ô tô và không gian vui chơi cho trẻ nhỏ.
Phía sau được bố trí khu giặt – phơi tách biệt, kín đáo mà tiện lợi.
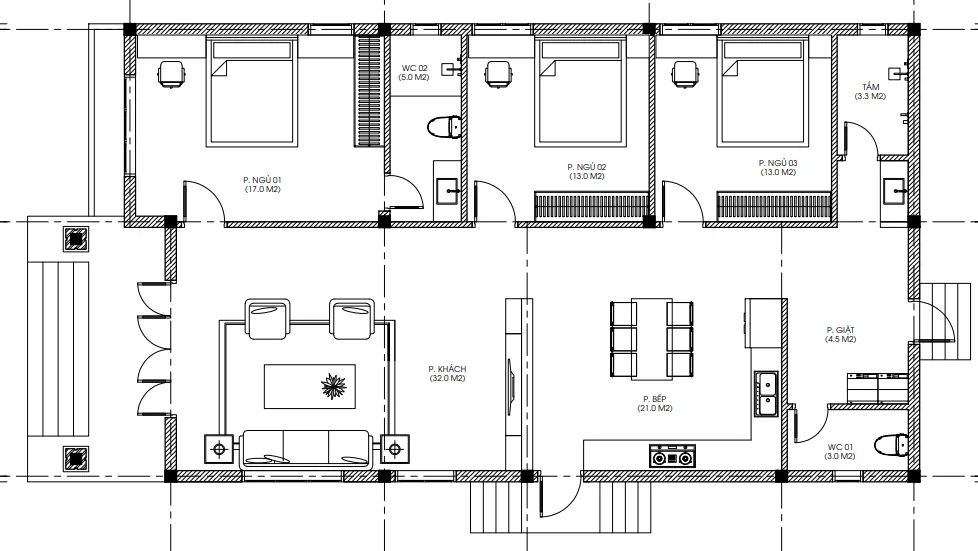
📐 Mặt bằng công năng – Khoa học, hợp phong thủy
Từ bản vẽ chi tiết , mặt bằng ngôi nhà vườn mái nhật 1 tầng được chia thành 2 khối rõ ràng:
🔹 Khối sinh hoạt chung – Trung tâm kết nối gia đình
-
Phòng khách (32m²): rộng rãi, bố trí bộ sofa lớn hướng ra cửa chính, đón sáng tự nhiên.
Phía trên trần thạch cao giật cấp, kết hợp đèn led âm trần tạo ánh sáng nhẹ nhàng. -
Phòng bếp + ăn (21m²): thiết kế mở, nối liền phòng khách, thuận tiện di chuyển.
Khu bếp được bố trí hệ tủ gỗ công nghiệp chống ẩm, mặt bếp đá đen kim sa sang trọng.
Không gian “3 trong 1”: khách – ăn – bếp được bố trí thông minh, đảm bảo riêng tư nhưng vẫn kết nối sinh hoạt.
🔹 Khối nghỉ ngơi – Yên bình, thoải mái
-
Phòng ngủ 1 (17m²): Master, có WC riêng 5m², hướng chính Nam – đón nắng sớm.
-
Phòng ngủ 2 & 3 (13m²): đồng diện tích, đặt hai bên cân xứng, cửa sổ lớn mở ra vườn sau.
-
Phòng tắm riêng (3.3m²): tách biệt, đầy đủ tiện nghi.
-
Phòng giặt (4.5m²): thiết kế cuối nhà, thuận tiện lối ra sân phơi.
Mỗi phòng đều có cửa sổ 2 lớp, đảm bảo ánh sáng và gió lưu thông, giúp không gian nhà vườn mái nhật 1 tầng luôn khô thoáng, dễ chịu quanh năm.
🧱 Chất liệu – Bền đẹp cùng năm tháng
Techhome sử dụng hệ vật liệu cao cấp, thân thiện môi trường, đảm bảo tuổi thọ công trình trên 30 năm:
-
Tường xây gạch đặc 220mm, chống nóng – chống ồn hiệu quả.
-
Mái Nhật Fuji khung thép mạ kẽm, ngói màu cao cấp chống bám rêu.
-
Sơn ngoại thất Jotun 5 lớp giữ màu bền đẹp suốt 10 năm.
-
Cửa nhôm Xingfa nhập khẩu, kính cường lực 10mm chống tia UV.
-
Đá ốp chân tường granite tự nhiên – sang trọng, bền chắc.
-
Trần thạch cao giật cấp kết hợp đèn led âm trần – tạo hiệu ứng ánh sáng hiện đại.
Để tìm hiểu rõ hơn về tiêu chuẩn vật liệu xây dựng và các yếu tố ảnh hưởng đến chi phí, bạn có thể tham khảo thêm tại các bài viết chuyên sâu về vật liệu xây dựng cao cấp trên Wikipedia.
🧭 Phong thủy hài hòa – Nhà yên, gia thịnh
-
Hướng nhà: Nam – đón nắng, tránh gió Lào, mang năng lượng tốt.
-
Màu chủ đạo: xanh ghi – trắng – đen đá: tượng trưng cho mệnh Thủy – Kim tương sinh.
-
Bố cục nhà: cân đối, trung cung đặt phòng khách, các phòng ngủ hướng ra vườn.
Techhome không chỉ thiết kế đẹp, mà còn tính toán chuẩn phong thủy – giúp gia chủ “an cư – vượng khí – phát tài”.
💬 Chia sẻ từ chủ đầu tư – anh An (Kim Sơn, Ninh Bình)
“Tôi từng tham khảo nhiều mẫu nhà trên mạng, nhưng chỉ khi làm việc với Techhome tôi mới thực sự ưng ý.
Các bạn tư vấn kỹ, lên bản vẽ chi tiết, tính toán hướng nhà, công năng và chi phí rất rõ ràng.
Giờ nhìn ngôi nhà hoàn thiện, tôi thấy từng đồng bỏ ra đều xứng đáng!”
🌟 Tại sao nhà vườn mái Nhật 1 tầng đang là xu hướng hot tại Việt Nam?
-
Phù hợp khí hậu Việt Nam: Mái dốc giúp thoát nước nhanh, chống nóng tốt.
-
Thiết kế tối giản mà tinh tế: Không cần cầu kỳ, vẫn toát lên vẻ sang trọng.
-
Tối ưu diện tích: Phù hợp lô đất 120–200m², phổ biến tại nông thôn mới.
-
Không lỗi thời: Phong cách Nhật – Hàn tối giản, bền với thời gian.
🏆 Techhome – Đơn vị tiên phong thiết kế & thi công trọn gói
“Chúng tôi không chỉ xây nhà – chúng tôi kiến tạo giá trị sống.”
🔹 Techhome cam kết:
-
Thiết kế độc bản – không trùng lặp.
-
Thi công chuẩn kỹ thuật – đúng tiến độ – không phát sinh.
-
Vật liệu cao cấp – bảo hành kết cấu 5 năm, bảo trì trọn đời.
-
Đội ngũ kiến trúc sư – kỹ sư giàu kinh nghiệm, tận tâm.
-
Dịch vụ “tận tay – tận tâm – tận nơi”, đồng hành cùng gia chủ từ bản vẽ đến chìa khóa trao tay.
📞 Liên hệ tư vấn thiết kế & thi công trọn gói cùng Techhome
-
-
Hotline: 0364 042 222 – 0387 603 333
-
Địa chỉ: B1.1 LK17 – Ô số 4, KĐT Thanh Hà, Thanh Oai, Hà Nội
- Xem thêm các dự án nổi bật khác của Techhome tại https://nhadeptechhome.vn/
-






