Chiêm ngưỡng mẫu nhà vườn 1 tầng mái Nhật 5 phòng ngủ tại Hà Trung, Thanh Hóa – sự hòa quyện hoàn hảo giữa kiến trúc Tân cổ điển và sự tinh tế, hiện đại. Khám phá phối cảnh ngoại thất sang trọng và mặt bằng công năng 192m² tối ưu của Techhome.
🎯 Mẫu Nhà Vườn 1 Tầng Mái Nhật
Dự án Nhà ở gia đình Anh Tứ tại Hà Trung – Thanh Hóa là một công trình kiến trúc ấn tượng, thể hiện rõ nét xu hướng thiết kế nhà vườn 1 tầng mái Nhật – sự lựa chọn hàng đầu cho những gia đình yêu thích vẻ đẹp thanh lịch, hiện đại nhưng vẫn giữ được nét bề thế của phong cách Tân cổ điển. Với diện tích xây dựng rộng rãi, trên một mặt sàn khoảng 192m² , Techhome đã thành công trong việc kiến tạo một không gian sống hoàn hảo, đáp ứng công năng cho một đại gia đình với 5 phòng ngủ.
Phong cách Tân cổ điển kết hợp Mái Nhật mang lại sự dung hòa tuyệt vời: ngôi nhà không quá cầu kỳ như Cổ điển nhưng vẫn giữ được sự đăng đối, sang trọng, cùng với hệ mái dốc nhẹ tạo cảm giác thanh thoát, gần gũi với thiên nhiên. Dự án này là minh chứng rõ rệt cho năng lực thiết kế đa dạng và tinh tế của Techhome.

👑 Phối Cảnh Ngoại Thất Thanh Lịch Của Nhà Vườn Mái Nhật
Ngoại thất biệt thự vườn nổi bật với sự hài hòa về hình khối và màu sắc, mang đậm tinh thần kiến trúc nhà vườn 1 tầng mái Nhật hiện đại:
- Hệ Mái Nhật Độc Đáo: Hệ mái có độ dốc vừa phải, tạo cảm giác nhẹ nhàng, cân đối, không quá cao như mái Thái nhưng vẫn đảm bảo thoát nước tốt, phù hợp với thẩm mỹ hiện đại. Mái sử dụng ngói màu xanh than/xám đậm , tạo sự tương phản mạnh mẽ với màu tường trắng, làm tăng thêm chiều sâu và sự thanh lịch cho tổng thể công trình.
- Màu Sắc và Trang Trí: Ngôi nhà khoác lên mình tone màu trắng chủ đạo, kết hợp với các mảng tường ốp gạch/đá và chân tường ốp đá chẻ màu tối, mang lại sự vững chãi, sạch sẽ và sang trọng. Các chi tiết phào chỉ được sử dụng tinh tế, không quá rườm rà.
- Sảnh Chính Uy Nghi: Sảnh chính nổi bật với cột trụ Tân cổ điển cao lớn, đối xứng. Cửa chính bằng gỗ tự nhiên chạm khắc hoa văn là trung tâm thị giác, thể hiện sự bề thế của mặt tiền.
- Cửa Sổ Hiện Đại: Hệ thống cửa sổ sử dụng khung nhôm kính lớn màu ghi sẫm/đen, tối ưu ánh sáng tự nhiên cho toàn bộ không gian bên trong, tạo sự đối lập thú vị giữa nét cổ điển của phào chỉ và nét hiện đại của vật liệu.
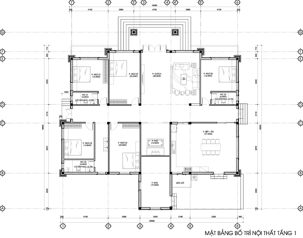
🌳 Phân Tích Mặt Bằng Công Năng Tối Ưu
Mặt bằng công năng của mẫu nhà vườn 1 tầng mái Nhật 5 phòng ngủ này được Techhome bố trí trên diện tích tổng thể 18.6m x 20.69m. Sự sắp xếp này hướng đến sự tiện nghi và khoa học cho sinh hoạt của đại gia đình.
- Khu Vực Công Cộng (Chính):
- Phòng Khách (40.0m²): Không gian lớn, trang trọng, kết nối trực tiếp với sảnh chính, đảm bảo sự thông thoáng và là nơi tiếp khách lý tưởng.
- Phòng Bếp + Ăn (41.0m²): Được bố trí riêng biệt với phòng khách, nhưng vẫn đảm bảo sự liên thông cần thiết, thuận tiện cho việc nấu nướng và tổ chức các bữa tiệc gia đình.
- Khu Vực Cá Nhân (5 Phòng Ngủ):
- Nhà có 5 Phòng Ngủ với diện tích đa dạng: PN01 (16.5m²) có vệ sinh khép kín 4m2, PN02 (20.0m²), PN03 (14.5m²), PN04 (20.0m²), PN05 (16.5m²) kết hợp vệ sinh khép kín 4m2. Sự phân bổ đồng đều hai bên và phía sau giúp cân bằng không gian và đảm bảo sự yên tĩnh tối đa.
- Khu Vực Phụ Trợ:
- 1 WC chung (4.6m²): Phục vụ sinh hoạt chung một cách thuận tiện.
- Các không gian chức năng khác như Phòng Kho (19.0m²) và Sân Ướt được đặt kín đáo, hỗ trợ tối đa cho sinh hoạt mà không ảnh hưởng đến thẩm mỹ chung.

🧱 Đánh Giá về Kết Cấu và Vật Liệu Nhà Vườn 1 Tầng Mái Nhật
Để đảm bảo chất lượng và tính bền vững cho công trình, Techhome luôn ưu tiên các giải pháp kết cấu và vật liệu tối ưu.
- Giải Pháp Kết Cấu: Công trình được thiết kế với kết cấu bê tông cốt thép hiện đại, đã được tính toán dựa trên tiêu chuẩn kỹ thuật nghiêm ngặt .
- Vật Liệu Hoàn Thiện Chất Lượng Cao:
- Mái: Sử dụng hệ mái lợp ngói, tạo hình dốc nhẹ kiểu Nhật, đảm bảo độ bền cao và tính thẩm mỹ.
- Sàn: Lát Gạch Granite Vân Đá KT 800x800mm cho khu vực chính (Phòng Khách, Bếp Ăn) và Gạch Ceramic chống trơn (KT 300x300mm hoặc 400x400mm) cho khu vực phụ và WC.
- Cửa: Cửa chính gỗ cao cấp ; cửa sổ và cửa đi phụ sử dụng Cửa nhôm hệ kính an toàn (dày 6.38mm hoặc 8.38mm), đảm bảo an ninh và khả năng lấy sáng tối ưu.
- Trần: Kết hợp giữa Trần thạch cao/Trần gỗ và Trần bê tông cốt thép , tích hợp hệ thống đèn Downlight âm trần, đèn chùm và đèn LED hắt.

🚀 Lợi Ích và Giá Trị Khi Chọn Techhome
Techhome cam kết mang lại trải nghiệm xây nhà trọn gói an tâm và chất lượng vượt trội:
- Đội Ngũ Chuyên Gia Hàng Đầu: Dự án được thực hiện bởi đội ngũ KTS và KS chuyên môn cao , đảm bảo mọi chi tiết thiết kế đều được triển khai chính xác, đúng kỹ thuật.
- Quy Trình Làm Việc Minh Bạch: Chúng tôi cung cấp hồ sơ thiết kế kỹ thuật thi công chi tiết, rõ ràng , giúp chủ đầu tư (Anh Tứ) dễ dàng kiểm soát chất lượng và tiến độ.
- Cam Kết Chất Lượng: Vật liệu chất lượng, giám sát chặt chẽ tại công trường, đảm bảo công trình bền đẹp theo thời gian.
- Hỗ Trợ Toàn Diện: Dịch vụ tư vấn chuyên nghiệp, từ thiết kế đến thi công hoàn thiện. Hotline Hỗ Trợ Kỹ Thuật Xây Dựng: 0364042222 – 0387603333 luôn sẵn sàng phục vụ.
💰 Nhà Vườn 1 Tầng Mái Nhật Của Anh Tứ Có Giá Bao Nhiêu?
Đối với mẫu nhà vườn 1 tầng mái Nhật Tân cổ điển có quy mô lớn tại Thanh Hóa này, việc lập dự toán chi phí đòi hỏi sự chi tiết.
- Tổng Diện Tích Xây Dựng Quy Đổi: Khoảng 280 – 300m² sàn xây dựng (bao gồm móng, sàn trệt, mái Nhật).
Lưu ý: Đây chỉ là mức chi phí ước tính. Để nhận được báo giá chính xác và chi tiết nhất cho công trình của bạn, vui lòng liên hệ trực tiếp với chúng tôi. Hoặc để tìm hiểu rõ hơn về tiêu chuẩn vật liệu xây dựng và các yếu tố ảnh hưởng đến chi phí, bạn có thể tham khảo thêm tại các bài viết chuyên sâu về vật liệu xây dựng cao cấp trên Wikipedia.
✅ Kết Luận
Mẫu nhà vườn 1 tầng mái Nhật 5 phòng ngủ là lựa chọn tuyệt vời cho những ai tìm kiếm sự kết hợp giữa nét cổ điển sang trọng và tiện nghi hiện đại. Với kinh nghiệm thực tế tại Thanh Hóa, Techhome cam kết biến ý tưởng của bạn thành hiện thực một cách hoàn hảo.
Hãy để Techhome đồng hành cùng bạn kiến tạo không gian sống mơ ước!
Đăng ký tư vấn thiết kế nhà vườn 1 tầng mái Nhật ngay hôm nay:
☎️ Hotline Tư Vấn Chuyên Sâu: 0364042222 – 0387603333.
Xem thêm các dự án nổi bật khác của Techhome tại https://nhadeptechhome.vn/




