Vẻ đẹp vượt thời gian của kiến trúc Mansard
Nếu kiến trúc hiện đại mang đến sự phóng khoáng, thì nhà phố tân cổ điển mái Mansard lại chinh phục người nhìn bằng vẻ đẹp sang trọng, tinh tế và đầy quyền quý. Kiến trúc Mansard xuất hiện từ thế kỷ 17 tại Pháp, gắn liền với những dinh thự, lâu đài của giới quý tộc. Đến nay, phong cách này vẫn giữ nguyên giá trị nhưng được “cải tiến” để phù hợp với xu hướng đô thị.
Mẫu nhà phố mà Techhome thực hiện dưới đây là minh chứng rõ nét: không chỉ là nơi ở, mà còn là biểu tượng đẳng cấp cho gia chủ.
Ngoại thất – Sang trọng, quyền quý, chuẩn phong cách quý tộc
Điểm nhấn nổi bật của mẫu nhà phố tân cổ điển mái Mansard chính là:
-
Mái Mansard đặc trưng: Kiểu mái dốc lợp đá xanh ghi, kết hợp đường bo viền vàng đồng, toát lên sự xa hoa.
-
Hoa văn phù điêu tinh xảo: Từng chi tiết phào chỉ, phù điêu đắp nổi đều sắc sảo, tạo cảm giác như một cung điện thu nhỏ.
-
Ban công lan can uốn lượn: Họa tiết sắt mỹ thuật mạ vàng, kết hợp cùng cửa kính lớn, giúp mặt tiền mềm mại mà không kém phần sang trọng.
-
Cổng và hàng rào: Được đồng bộ với phong cách tân cổ, mạ đồng nổi bật, tôn lên vẻ bề thế cho toàn bộ công trình.
-
Hệ cột trụ: Cột tròn Corinthian mạnh mẽ, vững chãi, nâng đỡ không gian như một tác phẩm nghệ thuật.
Nhìn từ xa, ngôi nhà phố tân cổ điển mái Mansard 3 tầng hiện lên uy nghi, tráng lệ, nhưng vẫn gần gũi với nhịp sống hiện đại.




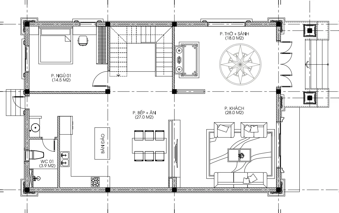
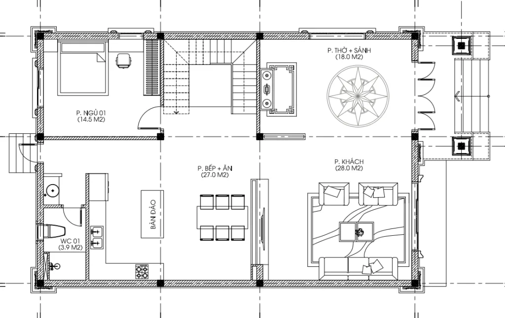
Công năng mặt bằng – Tối ưu không gian sống tiện nghi

Công trình nhà phố tân cổ điển mái Mansard không chỉ đẹp ở vẻ ngoài, mà còn chinh phục người ở bởi cách bố trí công năng khoa học:
-
Phòng khách (28m²): Rộng thoáng, nội thất cao cấp, xứng đáng là “trái tim” của ngôi nhà.
-
Phòng bếp + ăn (27m²): Liên thông hiện đại, có bàn đảo tiện dụng, không gian lý tưởng cho những bữa cơm gia đình.
-
Phòng ngủ master (14.5m²): Riêng tư, ấm cúng, nội thất bố trí hợp lý.
-
Phòng thờ + sảnh (18m²): Vị trí trang trọng, hợp phong thủy, thể hiện đạo hiếu và truyền thống gia đình Việt.
-
WC (3.9m²): Gọn gàng, tiện nghi, nằm cạnh bếp, thuận tiện cho sinh hoạt.
Mỗi tầng đều được thiết kế đúng công năng, đủ tiện nghi và hợp lý về lưu thông ánh sáng, gió trời.
Ưu điểm nổi bật của nhà phố tân cổ điển mái Mansard
-
Đẳng cấp vượt trội: Tôn vinh vị thế, khẳng định gu thẩm mỹ tinh tế của gia chủ.
-
Phong cách bền vững: Kiến trúc tân cổ điển không bao giờ lỗi mốt, càng lâu càng có giá trị.
-
Công năng khoa học: Tối ưu diện tích sử dụng, thích hợp cho gia đình nhiều thế hệ.
-
Tính thẩm mỹ cao: Mái Mansard và chi tiết hoa văn tạo điểm nhấn độc nhất.
-
Khả năng mở rộng: Dễ dàng cải tạo thêm tầng hoặc biến mái Mansard thành phòng tiện ích.
Xu hướng nhà phố tân cổ điển mái Mansard năm 2025
Trong năm 2025, mẫu nhà phố tân cổ điển mái Mansard hứa hẹn sẽ tiếp tục “làm mưa làm gió” nhờ:
-
Phù hợp đô thị: Vẫn sang trọng nhưng được tối ưu để thích ứng với quỹ đất phố.
-
Sự kết hợp hiện đại – cổ điển: Giữ lại đường nét cổ điển, kết hợp vật liệu mới (kính cường lực, nhôm Xingfa, đá ốp cao cấp).
-
Ứng dụng công nghệ: Nhà thông minh, an ninh tự động, tiết kiệm năng lượng.
-
Thiết kế cá nhân hóa: Mỗi công trình mang dấu ấn riêng, thể hiện cá tính của chủ nhân.
Chi phí dự kiến xây dựng
Tùy vào quy mô và vật liệu hoàn thiện, chi phí sẽ dao động:
-
Phần thô: 5 – 6 triệu/m²
-
Hoàn thiện cao cấp: 8 – 12 triệu/m²
-
Tổng mức đầu tư: 3 – 5 tỷ (cho diện tích 250 – 300m²).
Đây là con số hoàn toàn xứng đáng cho một công trình xứng tầm dinh thự giữa lòng phố.
Lưu ý: Đây chỉ là mức chi phí ước tính. Để nhận được báo giá chính xác và chi tiết nhất cho công trình của bạn, vui lòng liên hệ trực tiếp với chúng tôi. Hoặc để tìm hiểu rõ hơn về tiêu chuẩn vật liệu xây dựng và các yếu tố ảnh hưởng đến chi phí, bạn có thể tham khảo thêm tại các bài viết chuyên sâu về vật liệu xây dựng cao cấp trên Wikipedia.
Kiệt tác kiến trúc cho gia chủ tinh hoa
“Bạn sẽ bất ngờ với mẫu nhà phố tân cổ điển mái Mansard sang trọng bậc nhất hiện nay” – không chỉ là một tiêu đề, mà còn là sự thật hiển hiện. Mỗi chi tiết trong thiết kế đều mang dấu ấn của sự tinh xảo, quyền quý và vĩnh cửu.
Nếu bạn đang tìm kiếm một mẫu nhà vừa sang trọng, vừa tiện nghi và trường tồn với thời gian, thì đây chính là lựa chọn hoàn hảo.
Liên hệ ngay Techhome để được tư vấn chi tiết:
Địa chỉ: B1.1 LK17 ô số 4 – KĐT Thanh Hà, Thanh Oai, Hà Nội
Hotline: 0364 042 222 – 0387 603 333
Xem thêm các dự án nổi bật khác của Techhome tại https://nhadeptechhome.vn/

