Giới thiệu
Trong năm 2025, mẫu nhà phố 3 tầng hiện đại đang trở thành xu hướng dẫn đầu trong ngành xây dựng và thiết kế kiến trúc tại Việt Nam. Không chỉ mang đến không gian sống sang trọng, tiện nghi, nhà phố 3 tầng còn là biểu tượng của sự thành đạt, thể hiện gu thẩm mỹ và phong cách sống đẳng cấp của gia chủ.
Vậy, điều gì khiến ngày càng nhiều gia chủ thành công lựa chọn xu hướng này? Cùng Techhome khám phá chi tiết ngay trong bài viết dưới đây.
Mục lục
-
Nhà phố 3 tầng hiện đại – Xu hướng tất yếu của năm 2025
-
Ưu điểm nổi bật của mẫu nhà phố 3 tầng
-
Thiết kế tối ưu công năng
-
Phong cách kiến trúc sang trọng
-
Tiết kiệm chi phí và diện tích đất
-
-
Vì sao gia chủ thành công thường chọn nhà phố 3 tầng?
-
Khẳng định đẳng cấp sống
-
Tối ưu giá trị đầu tư lâu dài
-
Không gian sống phù hợp nhiều thế hệ
-
-
Một số mẫu thiết kế nhà phố 3 tầng hiện đại nổi bật
-
Lời khuyên khi lựa chọn thiết kế và thi công nhà phố 3 tầng
1. Nhà phố 3 tầng hiện đại – Xu hướng tất yếu của năm 2025
Trong bối cảnh đô thị ngày càng phát triển, nhu cầu về những ngôi nhà vừa đẹp, vừa tiện nghi lại tiết kiệm diện tích trở nên cấp thiết. Nhà phố 3 tầng hiện đại chính là giải pháp lý tưởng, đáp ứng đầy đủ các tiêu chí: công năng – thẩm mỹ – kinh tế.
Các kiến trúc sư của Techhome nhận định rằng, 2025 sẽ là năm bùng nổ của phong cách nhà phố 3 tầng nhờ sự linh hoạt trong thiết kế và khả năng đáp ứng đa dạng nhu cầu của gia chủ.
2. Ưu điểm nổi bật của mẫu nhà phố 3 tầng hiện đại

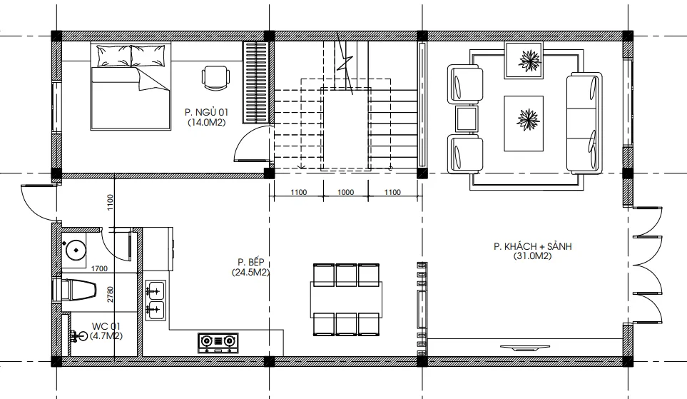
Thiết kế tối ưu công năng
-
Tầng 1 thường được bố trí gara, phòng khách và bếp ăn.
-
Tầng 2 dành cho không gian riêng tư như phòng ngủ, phòng làm việc.
-
Tầng 3 tích hợp phòng thờ, sân phơi hoặc khu vườn nhỏ.
Phong cách kiến trúc sang trọng

Nhà phố 3 tầng thường áp dụng lối thiết kế hiện đại với các đường nét tối giản, mảng khối mạnh mẽ, kết hợp cùng hệ thống kính cường lực và cây xanh mang lại vẻ ngoài trẻ trung, sang trọng.
Tiết kiệm chi phí và diện tích đất
So với biệt thự hoặc nhà vườn, nhà phố 3 tầng hiện đại là lựa chọn tối ưu chi phí xây dựng trong khi vẫn đảm bảo công năng đầy đủ và không gian sống thoáng đãng.
3. Vì sao gia chủ thành công thường chọn nhà phố 3 tầng?
Khẳng định đẳng cấp sống
Một ngôi nhà phố 3 tầng hiện đại chính là lời khẳng định phong cách sống đẳng cấp, gu thẩm mỹ tinh tế và sự thành đạt của gia chủ.
Tối ưu giá trị đầu tư lâu dài
Đây không chỉ là nơi ở, mà còn là khoản đầu tư bền vững. Nhà phố 3 tầng hiện đại dễ dàng tăng giá trị theo thời gian, đồng thời có thể tận dụng cho thuê hoặc kinh doanh.
Không gian sống phù hợp nhiều thế hệ
Với kết cấu 3 tầng, gia chủ dễ dàng bố trí không gian sống cho nhiều thế hệ cùng sinh hoạt mà vẫn đảm bảo sự riêng tư, thoải mái.
4. Một số mẫu thiết kế nhà phố 3 tầng hiện đại nổi bật
-
Nhà phố 3 tầng mái bằng: hiện đại, trẻ trung, phù hợp với lối sống tối giản.
-
Nhà phố 3 tầng mái lệch: phá cách, tạo điểm nhấn độc đáo.
-
Nhà phố 3 tầng có sân thượng: không gian xanh lý tưởng cho gia đình trẻ.
5. Lời khuyên khi lựa chọn thiết kế và thi công nhà phố 3 tầng
-
Lựa chọn đơn vị thiết kế – thi công uy tín và chuyên nghiệp để đảm bảo công trình bền đẹp theo thời gian.
-
Tận dụng tối đa ánh sáng tự nhiên và không gian xanh để nâng cao chất lượng sống.
-
Kết hợp phong thủy hài hòa để mang lại may mắn và tài lộc cho gia chủ.
Để tìm hiểu rõ hơn về tiêu chuẩn vật liệu xây dựng và các yếu tố ảnh hưởng đến chi phí, bạn có thể tham khảo thêm tại các bài viết chuyên sâu về vật liệu xây dựng cao cấp trên Wikipedia.
✅ Với tất cả những ưu điểm nổi bật, không ngạc nhiên khi nhà phố 3 tầng hiện đại 2025 trở thành lựa chọn hàng đầu của các gia chủ thành công. Techhome tự hào là đơn vị đồng hành cùng hàng trăm khách hàng trong việc kiến tạo nên những không gian sống sang trọng, tiện nghi và bền vững.
Liên hệ ngay: 0364 042 222 – 0387 603 333 để được tư vấn miễn phí!
Xem thêm các dự án nổi bật khác của Techhome tại https://nhadeptechhome.vn/

