Xu Hướng Nhà Mái Thái 2 Tầng: Đẳng Cấp Sang Trọng, Bền Vững Theo Thời Gian

Nhà mái Thái 2 tầng từ lâu đã được coi là biểu tượng của sự sang trọng và tinh tế trong kiến trúc nhà ở Việt Nam. Không chỉ mang lại vẻ đẹp bề thế, kiểu nhà này còn đáp ứng tối đa nhu cầu sử dụng của gia đình hiện đại. Trong bối cảnh năm 2025, xu hướng lựa chọn nhà mái Thái 2 tầng ngày càng trở nên phổ biến bởi những giá trị thẩm mỹ, công năng và phong thủy bền vững theo thời gian.

Nhà mái Thái 2 tầng

1. Nhà mái Thái 2 tầng – Vẻ đẹp kiến trúc vượt thời gian

Điểm nhấn đặc trưng của nhà mái Thái 2 tầng chính là phần mái dốc thoải, tạo hình khối cân đối và thanh thoát. Phần mái thường được lợp ngói thái cao cấp, không chỉ mang tính thẩm mỹ cao mà còn giúp chống nóng, thoát nước mưa nhanh chóng – phù hợp với khí hậu nhiệt đới gió mùa tại Việt Nam.

Ngoại thất của nhà mái Thái 2 tầng có thể linh hoạt kết hợp từ phong cách tân cổ điển với những chi tiết phào chỉ tinh tế, cho đến phong cách hiện đại với đường nét tối giản, mạnh mẽ. Sự đa dạng này giúp gia chủ dễ dàng lựa chọn theo gu thẩm mỹ và cá tính riêng.

2. Không gian sống tiện nghi và tối ưu

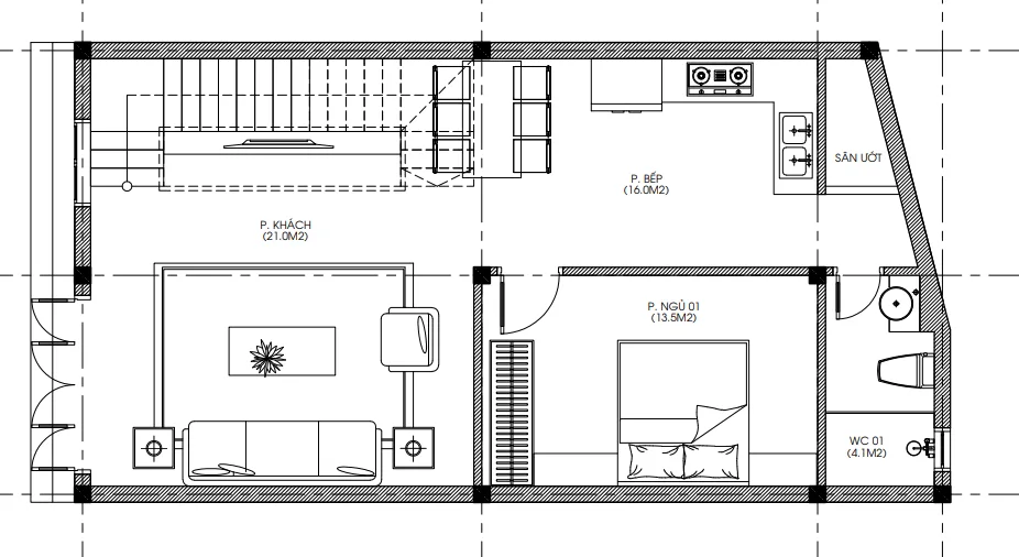
mặt bằng Nhà mái Thái 2 tầng

Một ngôi nhà mái Thái 2 tầng thường được thiết kế với đầy đủ công năng cho một gia đình Việt:

  • Tầng 1: Phòng khách rộng rãi, bếp – ăn liên thông, 1 phòng ngủ và khu vệ sinh.

  • Tầng 2: 2–3 phòng ngủ, phòng sinh hoạt chung, ban công thoáng đãng.

Cách bố trí này vừa đảm bảo sự tiện lợi cho sinh hoạt hằng ngày, vừa mang đến cảm giác gắn kết giữa các thành viên trong gia đình.

3. Lợi ích phong thủy – Vì sao gia chủ ưa chuộng?

Theo quan niệm phong thủy, mái Thái dốc có khả năng tránh tụ khí xấu, giúp lưu thông dòng chảy năng lượng, mang lại may mắn và tài lộc cho gia chủ. Đặc biệt, nhà mái Thái 2 tầng còn thể hiện sự vững chãi, nâng cao địa vị xã hội và sự thịnh vượng lâu dài.

4. Chi phí xây dựng hợp lý và giá trị bền vững

Nhiều người cho rằng nhà mái Thái 2 tầng tốn kém, nhưng thực tế, chi phí xây dựng loại hình này vô cùng đa dạng, tùy theo diện tích và mức đầu tư của gia chủ. Với mức ngân sách trung bình, gia chủ hoàn toàn có thể sở hữu một ngôi nhà sang trọng, hiện đại và bền bỉ theo thời gian.

Đặc biệt, giá trị của nhà mái Thái 2 tầng gần như không bao giờ lỗi mốt, thậm chí càng về sau càng khẳng định được tính thẩm mỹ vượt thời gian.

5. Xu hướng thiết kế 2025 – Sang trọng, xanh và thông minh

Nhà mái Thái 2 tầng Nhà mái Thái 2 tầng

Năm 2025, kiến trúc nhà mái Thái 2 tầng đang dần được nâng tầm với những xu hướng mới:

  • Thiết kế xanh: Tận dụng khoảng sân vườn, ban công trồng cây xanh.

  • Vật liệu bền vững: Ngói thái, kính cường lực, đá tự nhiên.

  • Công nghệ thông minh: Tích hợp hệ thống điện, chiếu sáng, an ninh hiện đại.

Sự kết hợp này vừa đáp ứng nhu cầu thẩm mỹ, vừa mang lại trải nghiệm sống tiện nghi, hiện đại và thân thiện với môi trường.

Để tìm hiểu rõ hơn về tiêu chuẩn vật liệu xây dựng và các yếu tố ảnh hưởng đến chi phí, bạn có thể tham khảo thêm tại các bài viết chuyên sâu về vật liệu xây dựng cao cấp trên Wikipedia.

6. Lời kết

Không chỉ là một công trình nhà ở, nhà mái Thái 2 tầng còn là sự khẳng định về đẳng cấp sống của gia chủ – sang trọng, hiện đại nhưng vẫn giữ gìn nét đẹp truyền thống. Với những ưu điểm vượt trội về kiến trúc, công năng và phong thủy, kiểu nhà này chắc chắn sẽ tiếp tục giữ vững vị thế xu hướng hàng đầu trong thiết kế – thi công nhà ở tại Việt Nam trong nhiều năm tới.

Xem thêm các dự án nổi bật khác của Techhome tại https://nhadeptechhome.vn/

Để lại một bình luận

Email của bạn sẽ không được hiển thị công khai. Các trường bắt buộc được đánh dấu *

    Vui lòng nhấn nút YÊU CẦU TƯ VẤN và đợi 1 - 2 giây đến khi thấy thông báo thành công

    YÊU CẦU TƯ VẤN