Nhà vườn mái Nhật 1 tầng đang tạo nên “cơn sốt” trong ngành xây dựng nhà ở tại Việt Nam. Không chỉ mang vẻ đẹp tinh tế, hiện đại, kiểu kiến trúc này còn đáp ứng hoàn hảo nhu cầu sống xanh, gắn kết thiên nhiên và tối ưu công năng cho gia đình. Năm 2025, đây chính là xu hướng thiết kế và thi công mà rất nhiều gia chủ lựa chọn.
1. Nhà vườn mái Nhật 1 tầng – sự giao thoa giữa truyền thống và hiện đại
Mái Nhật có độ dốc thoải, cân đối, tạo cảm giác thanh thoát và nhẹ nhàng. Khi kết hợp cùng không gian vườn xanh, kiểu nhà này không chỉ đẹp mà còn mang lại sự thư thái, yên bình.
Khác với những mẫu biệt thự đồ sộ, nhà vườn mái Nhật 1 tầng mang đến sự gần gũi, phù hợp cho gia đình đa thế hệ, đồng thời vẫn giữ được phong thái sang trọng và đẳng cấp.
2. Ưu điểm vượt trội của nhà vườn mái Nhật 1 tầng
✅ Không gian sống rộng rãi, thoáng mát – Chỉ với một tầng, toàn bộ sinh hoạt của gia đình đều được bố trí hợp lý, hạn chế việc di chuyển lên xuống cầu thang.
✅ Thiết kế linh hoạt, đa dạng diện tích – Dù là lô đất 100m² hay 300m², mẫu nhà này đều có thể tối ưu.
✅ Phong thủy tốt, hợp khí hậu Việt Nam – Mái Nhật dốc nhẹ, thoát nước mưa nhanh, chống nóng hiệu quả.
✅ Chi phí xây dựng hợp lý – So với biệt thự nhiều tầng, nhà mái Nhật 1 tầng tiết kiệm hơn mà vẫn đảm bảo sự bề thế.
✅ Kết nối thiên nhiên – Thiết kế sân vườn, tiểu cảnh, khoảng xanh quanh nhà tạo không gian sống gần gũi, trong lành.
3. Công năng tối ưu, phù hợp với gia đình Việt

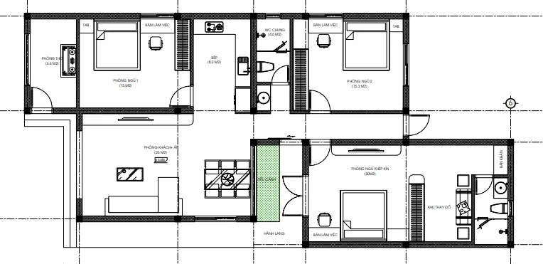
Bản vẽ mặt bằng nhà vườn mái Nhật 1 tầng thường bao gồm:
-
Phòng khách rộng rãi kết nối trực tiếp với sân vườn, đón ánh sáng tự nhiên.
-
3 – 4 phòng ngủ bố trí khoa học, đảm bảo riêng tư.
-
Phòng bếp + ăn liên thông, tiện lợi cho sinh hoạt gia đình.
-
WC chung & riêng tùy nhu cầu, thiết kế tối ưu cho sự tiện nghi.
-
Không gian phụ trợ: phòng thờ, gara, sân phơi, tiểu cảnh…
4. Xu hướng thiết kế nhà vườn mái Nhật 1 tầng 2025

-
Thiết kế tối giản (Minimalism): Hạn chế chi tiết rườm rà, ưu tiên đường nét phẳng, màu sắc trung tính.
-
Vật liệu hiện đại: Kính cường lực, đá tự nhiên, gỗ công nghiệp… giúp tăng tính thẩm mỹ.
-
Không gian mở: Cửa sổ lớn, cửa kính trượt để đón ánh sáng và gió trời.
-
Sân vườn thông minh: Kết hợp hồ cá Koi, tiểu cảnh xanh, lối đi lát đá tự nhiên.
-
Ứng dụng công nghệ: Hệ thống điện năng lượng mặt trời, smart home giúp tiết kiệm năng lượng.
Để tìm hiểu rõ hơn về tiêu chuẩn vật liệu xây dựng và các yếu tố ảnh hưởng đến chi phí, bạn có thể tham khảo thêm tại các bài viết chuyên sâu về vật liệu xây dựng cao cấp trên Wikipedia.
5. Vì sao nhà vườn mái Nhật 1 tầng được yêu thích nhất năm 2025?
-
Đáp ứng lối sống xanh – Khi con người tìm về thiên nhiên, mong muốn một không gian nghỉ dưỡng ngay tại nhà.
-
Phù hợp tài chính nhiều gia đình – Vừa túi tiền nhưng vẫn thể hiện sự sang trọng.
-
Đa dạng phong cách – Từ truyền thống, tân cổ điển đến hiện đại tối giản.
-
Giá trị bền vững – Không chỉ đẹp về thẩm mỹ mà còn bền bỉ theo thời gian, hợp khí hậu, hợp phong thủy.
6. Techhome – Đơn vị thiết kế & thi công trọn gói nhà vườn mái Nhật 1 tầng
Với kinh nghiệm trong hàng trăm công trình thực tế, Techhome cam kết:
-
Bản vẽ chi tiết, chuẩn phong thủy.
-
Thi công trọn gói – minh bạch chi phí.
-
Cam kết chất lượng, bảo hành uy tín.
-
Đội ngũ kiến trúc sư sáng tạo, luôn cập nhật xu hướng mới.
Xem thêm các dự án nổi bật khác của Techhome tại https://nhadeptechhome.vn/

