Nếu như mái Thái đã từng là lựa chọn “quốc dân” cho nhà phố và nhà vườn thì trong những năm gần đây, nhà mái nhật 2 tầng tân cổ điển đang dần chiếm lĩnh xu hướng, trở thành biểu tượng của sự tinh tế và bền vững. Vậy điều gì khiến kiểu nhà này được nhiều gia chủ Việt ưa chuộng đến thế? Techhome sẽ cùng bạn khám phá chi tiết qua bài viết dưới đây.
1. Nhà mái Nhật 2 tầng tân cổ điển – Khi vẻ đẹp truyền thống hòa quyện
Nhà mái Nhật xuất phát từ lối kiến trúc Nhật Bản, nổi bật với mái dốc thoải nhẹ, mở rộng sang hai bên, tạo nên tổng thể cân đối và thanh thoát. Khi kết hợp với kiến trúc 2 tầng, ngôi nhà trở thành một tuyệt tác giao hòa: vừa có nét đẹp cổ điển Á Đông, vừa phảng phất sự phóng khoáng hiện đại.
Điều thú vị là nhà mái Nhật không hề kén vị trí. Dù ở phố thị chật hẹp hay không gian làng quê rộng rãi, mẫu nhà này đều mang đến cảm giác hài hòa, thân thiện với thiên nhiên.

2. Ưu điểm vượt trội của nhà mái Nhật 2 tầng tân cổ điển
🔹 Công năng tối ưu cho gia đình nhiều thế hệ
Với diện tích hợp lý, nhà mái Nhật 2 tầng tân cổ điển có thể bố trí 3 – 5 phòng ngủ, phòng khách rộng rãi, bếp – ăn tiện nghi, phòng thờ trang nghiêm. Đây là lựa chọn hoàn hảo cho gia đình 2 – 3 thế hệ cùng sinh sống.
🔹 Thiết kế bền vững, chống nóng, chống ẩm vượt trội
Mái Nhật có độ dốc vừa phải, giúp thoát nước nhanh, hạn chế tình trạng thấm dột và rêu mốc. Đồng thời, mái rộng che chắn cho tường, tăng tuổi thọ công trình.
🔹 Thẩm mỹ sang trọng, trường tồn theo thời gian
Không quá cầu kỳ như mái Thái, không quá đơn giản như mái bằng, mái Nhật tạo nên một vẻ đẹp vừa tinh tế vừa mạnh mẽ. Kiểu dáng mái thấp, mở rộng tạo cảm giác ấm áp, gần gũi, rất hợp với phong thủy nhà ở Việt Nam.
🔹 Chi phí hợp lý, linh hoạt
So với mái Thái, nhà mái Nhật 2 tầng tân cổ điển thường có chi phí xây dựng tiết kiệm hơn 5 – 10%. Ngoài ra, gia chủ có thể tùy chọn vật liệu (ngói Nhật, ngói sóng, ngói phẳng…) để cân đối ngân sách.
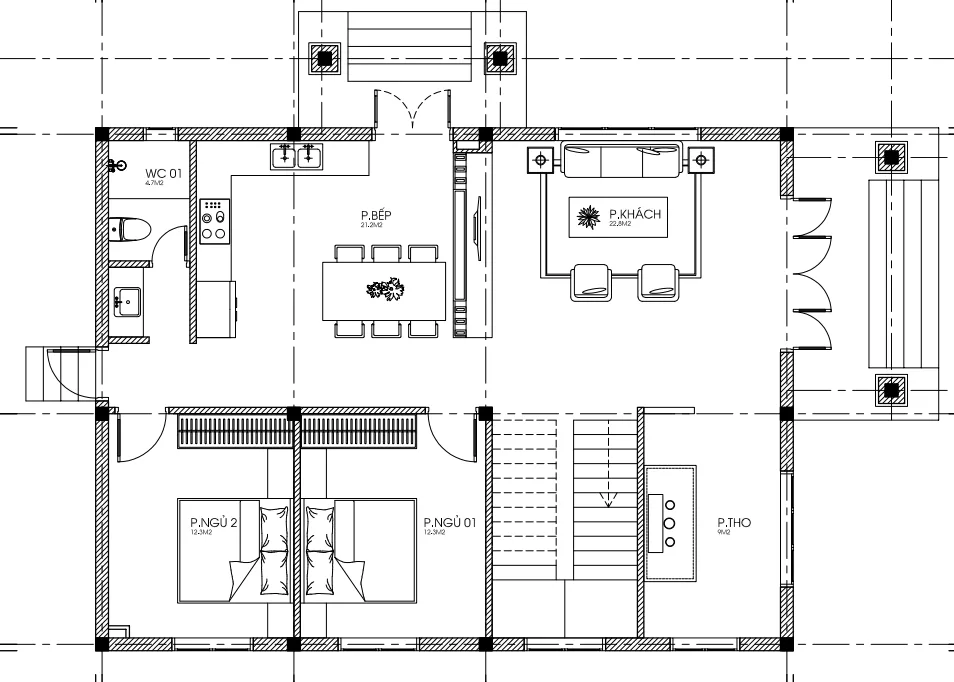
3. Mặt bằng công năng nhà mái Nhật 2 tầng tân cổ điển tại Techhome
Tầng 1:
-
Phòng khách (22 – 24m²): Không gian trung tâm, nơi thể hiện gu thẩm mỹ và phong cách sống của gia chủ.
-
Phòng bếp + ăn (20 – 22m²): Thiết kế mở, kết nối thiên nhiên, thuận tiện cho bữa cơm gia đình.
-
Phòng ngủ (12 – 15m²): Dành cho ông bà hoặc khách.
-
Phòng thờ (9 – 12m²): Vị trí trang nghiêm, hợp phong thủy.
-
WC tiện ích: Bố trí thông minh, dễ sử dụng.
Tầng 2:
-
2 – 3 phòng ngủ cho bố mẹ và con cái.
-
Phòng sinh hoạt chung hoặc phòng làm việc.
-
Ban công, sân chơi rộng thoáng, nơi trồng cây xanh và thư giãn.

4. So sánh nhà mái Nhật 2 tầng tân cổ điển với các kiểu nhà khác
| Tiêu chí | Nhà mái Nhật 2 tầng | Nhà mái Thái 2 tầng | Nhà mái bằng 2 tầng |
|---|---|---|---|
| Chi phí xây dựng | Trung bình – tiết kiệm | Cao hơn 5 – 10% | Thấp nhất |
| Độ bền | Cao, chống nóng, thoát nước tốt | Cao, nhưng tốn kém bảo trì | Trung bình, dễ nứt mái |
| Thẩm mỹ | Thanh thoát, nhẹ nhàng | Sang trọng, dốc cao nổi bật | Hiện đại, tối giản |
| Phong thủy | Cân đối, hài hòa | Tốt, đón gió, thoát khí | Khá hạn chế |
5. Xu hướng nhà mái Nhật 2 tầng tân cổ điển năm 2025
-
Kết hợp tân cổ điển: Phào chỉ nhẹ nhàng, lan can mạ vàng sang trọng.
-
Thiết kế xanh: Ban công, sân thượng trồng cây cảnh, hoa cỏ.
-
Sử dụng vật liệu mới: Kính cường lực, nhôm Xingfa, ngói Nhật cao cấp.
-
Không gian mở: Cửa lớn, cửa sổ rộng, kết nối thiên nhiên.

6. Chi phí xây dựng nhà mái Nhật 2 tầng tân cổ điển
Chi phí phụ thuộc vào diện tích, phong cách và vật liệu. Trung bình dao động:
-
Nhà mái Nhật 2 tầng cơ bản: 1.2 – 1.5 tỷ đồng.
-
Nhà mái Nhật 2 tầng tân cổ điển: 1.5 – 2.2 tỷ đồng.
-
Nhà mái Nhật cao cấp (vật liệu nhập khẩu): 2.5 tỷ đồng trở lên.
Lưu ý: Đây chỉ là mức chi phí ước tính. Để nhận được báo giá chính xác và chi tiết nhất cho công trình của bạn, vui lòng liên hệ trực tiếp với chúng tôi. Hoặc để tìm hiểu rõ hơn về tiêu chuẩn vật liệu xây dựng và các yếu tố ảnh hưởng đến chi phí, bạn có thể tham khảo thêm tại các bài viết chuyên sâu về vật liệu xây dựng cao cấp trên Wikipedia.
7. Câu hỏi thường gặp (FAQ)
❓ Nhà mái Nhật 2 tầng tân cổ điển có hợp phong thủy không?
✔️ Có. Mái dốc nhẹ, mở rộng giúp ngôi nhà đón khí lành, thoát khí xấu, mang lại tài lộc.
❓ Có thể xây nhà mái Nhật 2 tầng tân cổ điển trên diện tích đất nhỏ không?
✔️ Hoàn toàn được. Với diện tích chỉ từ 80m², kiến trúc sư Techhome vẫn có thể tối ưu công năng.
❓ Nên chọn mái Nhật hay mái Thái?
✔️ Nếu muốn mái cao, nổi bật → chọn mái Thái. Nếu muốn mái hài hòa, thanh thoát, bền vững → mái Nhật là lựa chọn tối ưu.
8. Techhome – Đồng hành cùng gia chủ kiến tạo tổ ấm
Techhome tự hào là đơn vị thiết kế & thi công trọn gói hàng trăm công trình nhà mái Nhật 2 tầng trên khắp cả nước. Với đội ngũ kiến trúc sư sáng tạo và thợ thi công lành nghề, chúng tôi cam kết:
-
Bản vẽ chuẩn phong thủy, công năng tối ưu.
-
Thi công đúng tiến độ, đảm bảo chất lượng.
-
Bảo hành, bảo trì lâu dài.
-
Đồng hành cùng gia chủ trong suốt quá trình xây dựng.
Hotline: 0364 042 222 – 0387 603 333
Xem thêm các dự án nổi bật khác của Techhome tại https://nhadeptechhome.vn/

