Khi “giấc mơ tổ ấm” trở thành hiện thực cùng Techhome
Nếu bạn nghĩ rằng nhà ống mái bằng chỉ đơn giản là những khối vuông khô cứng, hãy một lần chiêm ngưỡng công trình nhà mái bằng 4 tầng 1 tum của anh Trường tại Đông Anh – Hà Nội, được thiết kế và thi công trọn gói bởi Techhome.
Từ bản vẽ đến thực tế, ngôi nhà là minh chứng sống động cho triết lý của Techhome:
“Không chỉ xây một ngôi nhà – mà kiến tạo nên một giá trị sống trọn vẹn.”
Mỗi đường nét, mỗi khoảng sáng, từng mảng tường và ô cửa đều mang hơi thở của kiến trúc hiện đại, hòa quyện tinh tế giữa công năng – thẩm mỹ – phong thủy.
Không ít người khi nhìn thấy công trình nhà mái bằng 4 tầng 1 tum này đã thốt lên:
“Nhà thế này, chắc phải dỡ cái cũ để làm lại mất thôi!”
📐 Thông tin tổng quan công trình nhà mái bằng 4 tầng 1 tum
-
Chủ đầu tư: Anh Trường
-
Địa điểm: Đông Anh – Hà Nội
-
Hạng mục: Thiết kế & Thi công trọn gói
-
Đơn vị thực hiện: Công ty TNHH Techhome
-
Quy mô: 4 tầng + 1 tum
-
Phong cách: Hiện đại – sang trọng – tối giản
-
Diện tích xây dựng: Khoảng 85m²/sàn
-
Năm thực hiện: 2025
🧱 Ý tưởng thiết kế – Khi không gian và ánh sáng trở thành linh hồn của ngôi nhà
🔸 Phong cách hiện đại, tối giản nhưng tinh tế
Ngôi nhà được thiết kế theo phong cách hiện đại mái bằng, sử dụng các khối hình học khỏe khoắn kết hợp chất liệu hiện đại như kính, gỗ nhựa, gạch ốp granite và sơn đá ngoại thất.
Toàn bộ mặt tiền được Techhome xử lý theo triết lý “ít mà chất”, với tông màu chủ đạo trắng – nâu – xám tượng trưng cho sự bền vững và sang trọng.
Điểm nhấn đặc biệt là mảng kính dọc 3 tầng chạy suốt chiều cao ngôi nhà, giúp ánh sáng tự nhiên len lỏi vào từng ngóc ngách, tạo cảm giác không gian mở – thông thoáng – hiện đại.
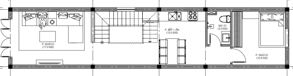
🏗️ Bố cục mặt bằng – Sự tính toán khoa học đến từng mét vuông

🏡 Tầng 1 – Không gian tiếp khách & sinh hoạt chung
Ngay từ sảnh chính, bước vào là phòng khách sang trọng kết hợp phòng thờ được bố trí trang nghiêm, hài hòa phong thủy.
Phía sau là phòng bếp + khu ăn uống rộng rãi, liên thông với giếng trời để đảm bảo ánh sáng và thông gió tự nhiên.
Cuối nhà là WC và khu để xe, được bố trí gọn gàng nhưng vẫn đảm bảo tiện nghi.
Tầng 1 là nơi hội tụ năng lượng, là “trái tim” kết nối mọi sinh hoạt của gia đình.
🛏️ Tầng 2 & Tầng 3 – Không gian nghỉ ngơi riêng tư
Mỗi tầng gồm 2 phòng ngủ rộng, đều có cửa sổ lớn hoặc ban công, đón trọn ánh sáng tự nhiên.
Nội thất tối giản nhưng tinh tế, sử dụng gỗ công nghiệp chống ẩm, kết hợp tông màu ấm áp, nhẹ nhàng tạo cảm giác thư thái.
Mỗi tầng đều có WC riêng khép kín, tiện lợi cho sinh hoạt của từng thành viên.
Tại đây, Techhome chú trọng yếu tố “con người” – nơi từng căn phòng đều phản ánh cá tính của người sở hữu.
🌿 Tầng 4 – Phòng sinh hoạt & không gian mở
Đây là không gian sinh hoạt chung, có thể sử dụng làm phòng làm việc, phòng giải trí hoặc phòng ngủ dự phòng.
Ban công tầng này được bố trí tiểu cảnh xanh, tạo điểm nhấn tươi mát và mềm mại cho tổng thể kiến trúc nhà mái bằng 4 tầng 1 tum.
☀️ Tầng tum – Đỉnh cao tiện ích và thư giãn
Phần tum trên cùng không chỉ là khu kỹ thuật, mà còn là sân thượng mở – nơi thư giãn lý tưởng của cả gia đình.
Techhome bố trí bộ bàn ghế ngoài trời, vườn cây nhỏ, cùng khu giặt – phơi riêng biệt giúp tận dụng tối đa không gian.
Dưới ánh hoàng hôn Đông Anh, sân thượng nhà anh Trường trở thành góc chill chuẩn “resort tại gia”.
🧩 Vật liệu & kỹ thuật thi công – Tỉ mỉ trong từng chi tiết
Techhome luôn đặt chất lượng thi công lên hàng đầu. Mỗi chi tiết đều được tính toán kỹ lưỡng:
-
Sơn ngoại thất Jotun chống thấm 5 lớp – bền màu 10 năm.
-
Gạch ốp granite cao cấp, tạo hiệu ứng sang trọng và dễ vệ sinh.
-
Cửa nhôm Xingfa kết hợp kính cường lực 12mm – lấy sáng tối đa, chống ồn, cách nhiệt tốt.
-
Trần thạch cao khung chìm, đèn LED âm trần tiết kiệm điện.
-
Hệ thống điện nước âm tường an toàn, đảm bảo tiêu chuẩn kỹ thuật.
-
Lan can kính cường lực + tay vịn inox 304, tăng tính hiện đại và độ bền.
Để tìm hiểu rõ hơn về tiêu chuẩn vật liệu xây dựng và các yếu tố ảnh hưởng đến chi phí, bạn có thể tham khảo thêm tại các bài viết chuyên sâu về vật liệu xây dựng cao cấp trên Wikipedia.
Chính sự đầu tư này khiến ngôi nhà không chỉ đẹp ở hiện tại mà còn “vững” trong tương lai.
🌤️ Mặt tiền – Khi thẩm mỹ trở thành điểm chạm cảm xúc
Điểm nổi bật nhất của công trình nhà mái bằng 4 tầng 1 tum là mặt tiền cân đối, hiện đại, mạnh mẽ nhưng vẫn tinh tế.
Sự kết hợp giữa mảng kính đứng – lam gỗ ngang – tường ốp đá sáng màu tạo nên tỷ lệ vàng trong kiến trúc.
Buổi sáng, ngôi nhà lung linh dưới ánh nắng; buổi tối, hệ đèn led hắt sáng khiến công trình nổi bật như viên ngọc giữa khu phố Đông Anh.
Không phô trương, không cầu kỳ – chỉ đơn giản là “đẹp đúng chuẩn Techhome”.
💬 Chia sẻ của chủ đầu tư – Anh Trường, Đông Anh, Hà Nội
“Tôi thật sự hài lòng!
Từ bản thiết kế đến khi nhận nhà, Techhome làm việc cực kỳ chuyên nghiệp.
Ngôi nhà hoàn thiện vượt mong đợi – tinh tế, chắc chắn và sang trọng.
Ai đến chơi cũng khen, nhiều người còn hỏi đơn vị thi công là ai!”
🏆 Techhome – Đơn vị tiên phong trong thiết kế & thi công nhà phố mái bằng tại Hà Nội
Với hơn 10 năm kinh nghiệm trong lĩnh vực thiết kế và thi công trọn gói, Techhome đã trở thành đối tác tin cậy của hàng trăm gia chủ tại miền Bắc.
Mỗi công trình không chỉ là sản phẩm, mà là tâm huyết, trách nhiệm và niềm tự hào của đội ngũ kỹ sư, kiến trúc sư Techhome.
🔹 Vì sao khách hàng chọn Techhome?
-
Thiết kế độc quyền – cá nhân hóa theo nhu cầu từng gia chủ.
-
Thi công trọn gói “chìa khóa trao tay” – không phát sinh chi phí.
-
Cam kết tiến độ & chất lượng, bảo hành lên tới 5 năm.
-
Đội ngũ chuyên nghiệp, tận tâm, đồng hành từ bản vẽ đến bàn giao.
-
Phong cách làm việc minh bạch – trung thực – hiệu quả.
💡 Xu hướng 2025: Nhà mái bằng 4 tầng 1 tum – lựa chọn của gia đình hiện đại
Trong bối cảnh đô thị phát triển, nhà mái bằng 4 tầng 1 tum đang trở thành xu hướng nổi bật nhờ:
-
Thiết kế gọn gàng, mạnh mẽ, tối ưu không gian.
-
Dễ dàng mở rộng – nâng tầng – lắp đặt pin năng lượng mặt trời.
-
Phong cách hiện đại, phù hợp gia đình trẻ hoặc đa thế hệ.
Mẫu nhà của anh Trường chính là đại diện tiêu biểu cho xu hướng “Sống hiện đại – Xây bền vững”.
🪶 Kết luận – Kiến tạo tổ ấm, khẳng định phong cách sống
Công trình nhà mái bằng 4 tầng 1 tum tại Đông Anh không chỉ là một ngôi nhà, mà là tuyên ngôn về phong cách sống của thế hệ hiện đại – dám nghĩ, dám làm và dám khác biệt.
Với Techhome, mỗi ngôi nhà là một câu chuyện riêng, và câu chuyện của anh Trường là minh chứng sống động cho giá trị cốt lõi mà chúng tôi theo đuổi:
“Tận tâm trong từng chi tiết – bền vững theo năm tháng.”
📞 Liên hệ ngay với Techhome để hiện thực hóa ngôi nhà trong mơ của bạn
-
Hotline: 0364 042 222 – 0387 603 333
-
Địa chỉ: B1.1 LK17 Ô Số 4 – KĐT Thanh Hà, Thanh Oai, Hà Nội
- Xem thêm các dự án nổi bật khác của Techhome tại https://nhadeptechhome.vn/






