🌟 Giới thiệu tổng quan – Khi Techhome biến giấc mơ thành hiện thực
Giữa lòng Gia Lộc – Hải Dương, nơi nhịp sống đang hòa quyện giữa truyền thống và hiện đại, Techhome một lần nữa khẳng định vị thế tiên phong trong lĩnh vực thiết kế và thi công trọn gói với công trình nhà mái bằng 2 tầng 1 tum hiện đại của chủ đầu tư anh Bảo.
Công trình không chỉ là một ngôi nhà để ở, mà còn là một “tác phẩm sống” – kết tinh giữa thẩm mỹ, công năng và kỹ thuật thi công đỉnh cao.
Mỗi đường nét, mỗi mảng tường, từng ô cửa kính đều được Techhome chăm chút như một bản hòa tấu giữa ánh sáng – không gian – vật liệu.
📐 Thông tin tổng quan công trình nhà mái bằng 2 tầng 1 tum
-
Chủ đầu tư: Anh Bảo
-
Địa điểm: Gia Lộc – Hải Dương
-
Đơn vị thiết kế & thi công: Techhome
-
Hạng mục: Thiết kế và thi công trọn gói
-
Quy mô: 2 tầng + 1 tum
-
Diện tích sàn: 120m² (trung bình mỗi sàn 90–120m²)
-
Phong cách: Hiện đại, tinh tế, tối giản mà sang trọng
-
Kết cấu: Mái bằng bê tông cốt thép
🧱 Tư duy thiết kế – Tối ưu công năng, bứt phá không gian sống
Ngôi nhà được đội ngũ kiến trúc sư Techhome lên phương án với mục tiêu rõ ràng:
“Tạo ra một không gian sống tiện nghi, thông thoáng, mang lại sự cân bằng giữa thẩm mỹ hiện đại và công năng truyền thống của người Việt.”
🔸 Phong cách kiến trúc
Công trình nhà mái bằng 2 tầng 1 tum chọn phong cách hiện đại – mái bằng với khối hình vuông vức, các đường nét phóng khoáng nhưng tinh tế.
Gam màu trắng – nâu gỗ – xám ghi chủ đạo giúp tổng thể trở nên sang trọng, hài hòa với cảnh quan xung quanh.
-
Mặt tiền được ốp gạch granite cao cấp kết hợp lam gỗ nhựa ngoài trời, vừa chống thấm vừa tăng điểm nhấn thị giác.
-
Hệ cửa kính cường lực khung nhôm Xingfa giúp lấy sáng tối đa, mở rộng tầm nhìn ra khu vườn phía trước.
-
Ban công kính cường lực trong suốt giúp công trình nhà mái bằng 2 tầng 1 tum thêm phần thanh thoát và hiện đại.
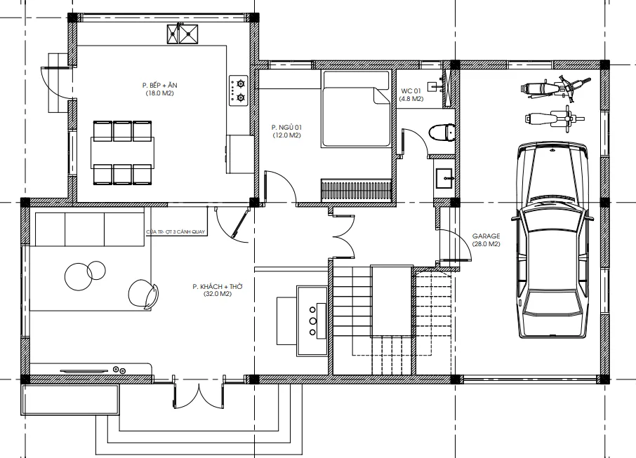
🏗️ Mặt bằng công năng chi tiết – Sự sắp đặt hoàn hảo đến từng mét vuông

Tầng 1 – Không gian sinh hoạt chính, rộng mở và tiện nghi
Bước qua sảnh chính, không gian tầng 1 mở ra một bố cục vô cùng hợp lý:
-
Phòng khách (32m²): Rộng rãi, liên thông với không gian thờ trang trọng. Ánh sáng tự nhiên chan hòa qua cửa kính lớn.
-
Phòng bếp + ăn (18m²): Bố trí phía sau, tách biệt với khách, đảm bảo sự kín đáo nhưng vẫn tiện di chuyển.
-
Phòng ngủ 01 (12m²): Dành cho người lớn tuổi, thuận tiện đi lại, nằm gần WC chung.
-
WC chung (4.8m²): Thiết kế nhỏ gọn, đầy đủ tiện nghi.
-
Garage (28m²): Sức chứa 1 ô tô + 2 xe máy, cửa cuốn tự động hiện đại.
Không gian tầng 1 là sự kết hợp giữa công năng – thẩm mỹ – ánh sáng, thể hiện tư duy thiết kế của Techhome trong việc tối ưu diện tích nhỏ mà vẫn sang trọng và thoáng đãng.
Tầng 2 – Không gian riêng tư, thư giãn và kết nối
Bước lên cầu thang, tầng 2 mở ra không gian riêng tư dành cho các thành viên trong gia đình.
-
2 phòng ngủ lớn có vệ sinh riêng, cửa hướng ban công.
-
Phòng sinh hoạt chung được bố trí giữa trung tâm tầng, là nơi cả nhà quây quần mỗi tối.
-
Ban công lớn hướng ra mặt tiền – nơi trồng cây xanh, đặt bàn trà, tận hưởng không khí trong lành.
Tầng 2 là minh chứng cho tư duy sống xanh – hiện đại – kết nối cảm xúc, đúng với triết lý thiết kế “Kiến tạo giá trị sống” mà Techhome luôn theo đuổi.
Tầng tum – Đỉnh cao tiện ích và thẩm mỹ
Phần tum của ngôi nhà mái bằng 2 tầng 1 tum không chỉ là khu vực kỹ thuật, mà được tận dụng tối đa công năng:
-
Khu giặt – phơi riêng biệt, thông thoáng và kín đáo.
-
Sân thượng rộng rãi, lát gạch chống trơn, có khu bàn trà ngoài trời – nơi anh Bảo yêu thích ngắm hoàng hôn Hải Dương mỗi chiều.
-
Khu kỹ thuật mái bằng được bố trí hợp lý: bồn nước, pin năng lượng mặt trời và cây xanh cảnh quan.
🌿 Vật liệu và thi công – Khi chi tiết tạo nên đẳng cấp
Techhome luôn đặt chất lượng vật liệu làm tiêu chuẩn tiên quyết trong mọi công trình:
-
Sơn tường: Jotun cao cấp chống thấm 5 lớp.
-
Gạch lát nền: Viglacera 600×600 chống xước, bền màu.
-
Cửa: Nhôm Xingfa nhập khẩu, kính an toàn 12mm.
-
Trần thạch cao Vĩnh Tường, đèn LED Philips tiết kiệm điện.
-
Lan can kính cường lực 10mm, tay vịn inox 304.
-
Thiết bị vệ sinh: Inax chính hãng, bảo hành 5 năm.
Nhờ đó, công trình không chỉ bền bỉ theo thời gian mà còn giữ được vẻ sang trọng tinh tế dù qua nhiều năm sử dụng.
Để tìm hiểu rõ hơn về tiêu chuẩn vật liệu xây dựng và các yếu tố ảnh hưởng đến chi phí, bạn có thể tham khảo thêm tại các bài viết chuyên sâu về vật liệu xây dựng cao cấp trên Wikipedia.
💬 Chia sẻ từ chủ đầu tư – Anh Bảo, Gia Lộc, Hải Dương
“Ban đầu tôi chỉ hình dung ngôi nhà đơn giản, nhưng khi làm việc với Techhome, tôi thật sự bất ngờ.
Từ khâu thiết kế, chọn vật liệu đến quá trình thi công – mọi thứ đều được đội ngũ chăm chút tỉ mỉ.
Kết quả vượt xa mong đợi, đúng là ‘nhà trong mơ’ của gia đình tôi!”
Chính sự hài lòng của khách hàng là động lực để Techhome không ngừng cải tiến, giữ vững uy tín thương hiệu.
🏆 Techhome – Đơn vị tiên phong trong thi công trọn gói nhà mái bằng tại Hải Dương
Trải qua hơn 10 năm trong lĩnh vực thiết kế – thi công trọn gói, Techhome đã trở thành đối tác đáng tin cậy của hàng trăm gia chủ khắp miền Bắc.
Vì sao khách hàng chọn Techhome?
-
Tư vấn – thiết kế chuyên sâu, phù hợp phong thủy và nhu cầu thực tế.
-
Thi công trọn gói “chìa khóa trao tay”, không phát sinh chi phí.
-
Cam kết tiến độ – chất lượng – bảo hành 5 năm.
-
Đội ngũ kỹ sư, kiến trúc sư chuyên nghiệp, luôn đồng hành cùng chủ nhà trong mọi giai đoạn.
-
Chính sách hậu mãi chu đáo, bảo trì định kỳ, hỗ trợ kỹ thuật miễn phí.
💡 Nhà mái bằng 2 tầng 1 tum – Xu hướng sống của gia đình hiện đại
Trong những năm gần đây, nhà mái bằng 2 tầng 1 tum trở thành lựa chọn hàng đầu của các gia chủ yêu thích phong cách tối giản, sang trọng và bền vững.
Lý do xu hướng này lên ngôi:
-
Thiết kế gọn gàng, tiết kiệm diện tích đất.
-
Công năng đa dạng, dễ tùy chỉnh theo nhu cầu.
-
Mái bằng dễ lắp đặt pin năng lượng, bồn nước, sân vườn mini.
Công trình nhà anh Bảo tại Gia Lộc chính là minh chứng điển hình cho sự kết hợp hoàn hảo giữa tính thẩm mỹ và thực tiễn, được cộng đồng mạng và nhiều khách hàng Techhome đánh giá cao.
🪶 Kết luận – Kiến tạo tổ ấm bền vững cùng Techhome
Ngôi nhà mái bằng 2 tầng 1 tum tại Gia Lộc – Hải Dương không chỉ là công trình kiến trúc đẹp, mà còn là biểu tượng của sự tận tâm, tỉ mỉ và tinh thần trách nhiệm mà Techhome đặt vào từng dự án.
“Techhome không chỉ xây nhà – chúng tôi kiến tạo giá trị sống.”
Nếu bạn đang tìm kiếm đơn vị thiết kế & thi công trọn gói uy tín, hãy để Techhome đồng hành cùng bạn trên hành trình kiến tạo mái ấm bền vững, đẳng cấp và mang dấu ấn riêng.
📞 Liên hệ Techhome ngay hôm nay:
-
Hotline: 0364 042 222 – 0387 603 333
-
Địa chỉ: B1.1 LK17 ô số 4 – KĐT Thanh Hà, Thanh Oai, Hà Nội
- Xem thêm các dự án nổi bật khác của Techhome tại https://nhadeptechhome.vn/





