Ở những vùng quê yên bình như Phù Cừ, Hưng Yên, quan niệm về một ngôi nhà đẹp giờ đây đã thay đổi rất nhiều. Không còn là những ngôi nhà ngói đỏ ba gian truyền thống cũ kỹ, cũng chẳng cần phải là những tòa cao ốc chọc trời xa lạ. Xu hướng bây giờ là sự lên ngôi của những mẫu nhà cấp 4 mái Nhật – nơi giao thoa giữa nét đẹp kiến trúc Á Đông và sự tiện nghi của lối sống hiện đại.
Hôm nay, Techhome xin mời quý vị cùng ghé thăm “đứa con tinh thần” mà chúng tôi vừa hoàn thiện hồ sơ thiết kế cho gia đình anh Đỗ Cao Kỳ. Đây không chỉ là một bản vẽ, đó là tâm huyết, là sự lắng nghe và hiện thực hóa giấc mơ về một không gian sống đẳng cấp ngay trên mảnh đất quê hương.
1. Cơ duyên đến với Techhome và bài toán của gia chủ
Anh Kỳ tìm đến Techhome vào một ngày đẹp trời với một đề bài vừa dễ mà lại vừa khó. Anh sở hữu một mảnh đất khá dài và rộng (mặt tiền khoảng hơn 8m, chiều sâu hơn 20m), mong muốn xây dựng một ngôi nhà trệt để tiện cho việc sinh hoạt của cả gia đình đa thế hệ.
Yêu cầu của anh rất rõ ràng: “Anh thích nhà cấp 4 mái Nhật vì nhìn nó sang, không bị lỗi mốt mà lại mát mẻ. Nhà anh đông người, cần tới 3 phòng ngủ nhưng vẫn phải có phòng thờ riêng biệt, phòng khách rộng rãi để anh em họ hàng ghé chơi. Quan trọng nhất là phải thoáng, không được bí bách.”
Nhận đề bài, đội ngũ KTS Techhome đã bắt tay ngay vào việc lên ý tưởng. Với diện tích xây dựng thực tế khoảng 8m x 21.4m, việc bố trí công năng sao cho “vuông thành sắc cạnh” mà vẫn đảm bảo tính thẩm mỹ là một thử thách thú vị.

2. Vẻ đẹp ngoại thất: Sự cuốn hút từ cái nhìn đầu tiên
Phối màu hiện đại, tinh tế
Ngay khi nhìn vào bản phối cảnh 3D mặt tiền, bất cứ ai cũng sẽ bị thu hút bởi vẻ đẹp thanh lịch của mẫu nhà cấp 4 mái Nhật này. Chúng tôi không sử dụng những gam màu nóng chói chang, thay vào đó là sự kết hợp hoàn hảo giữa màu trắng sứ chủ đạo và các mảng tường ốp màu xanh ghi (blue-gray).
Màu xanh ghi không chỉ tạo cảm giác dịu mắt, bình yên mà còn cực kỳ bền màu với thời gian, hạn chế việc lộ vết bẩn do rêu mốc hay bụi đường. Hệ thống phào chỉ được tiết chế, không rườm rà nhưng đủ sắc nét để tạo nên sự khỏe khoắn cho ngôi nhà. Phần chân tường được ốp đá rối màu tối, vừa tạo thế vững chãi như “bàn thạch”, vừa bảo vệ chân tường khỏi ẩm mốc trong những ngày mưa nồm đặc trưng của miền Bắc.
Hệ mái Nhật – Linh hồn của ngôi nhà
Không phải ngẫu nhiên mà nhà cấp 4 mái Nhật lại trở thành “mẫu nhà quốc dân” trong vài năm trở lại đây. Nhìn vào phối cảnh từ trên cao, quý vị có thể thấy hệ mái được thiết kế với độ dốc vừa phải, đua ra các phía rất cân đối.
Mái Nhật (lùn) khác với mái Thái ở chỗ nó không quá cao vút, tạo cảm giác đầm ấm, che chở. Hệ ngói sóng màu xanh đen đồng bộ với tông màu chủ đạo của ngôi nhà tạo nên một tổng thể hài hòa tuyệt đối. Về mặt công năng, hệ mái này thoát nước mưa cực nhanh và tản nhiệt rất tốt, giúp ngôi nhà luôn mát mẻ vào mùa hè oi ả của Hưng Yên.
Hệ thống cửa và sảnh đón
Sảnh chính là bộ mặt của ngôi nhà. Chúng tôi thiết kế hệ cột vuông vức, khỏe khoắn nâng đỡ mái sảnh. Cửa chính sử dụng gỗ Lim Nam Phi kết hợp pano kính, mang lại vẻ đẹp sang trọng, bề thế mà vẫn lấy được ánh sáng tự nhiên. Trong khi đó, toàn bộ hệ thống cửa sổ được sử dụng nhôm hệ kính cường lực, giúp không gian bên trong luôn ngập tràn ánh sáng và gió trời, xóa tan định kiến về những ngôi nhà ống dài hun hút thiếu sáng.

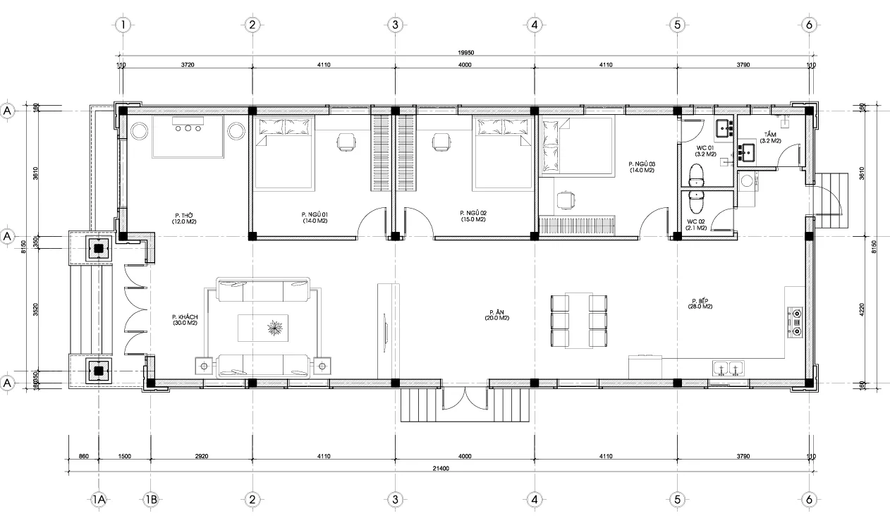
3. Khám phá công năng: Bố trí thông minh đến từng centimet
Đây chính là phần “ăn tiền” nhất của mẫu nhà cấp 4 mái Nhật này. Với kích thước xây dựng 8.15m x 21.4m, việc sắp xếp 3 phòng ngủ cùng các không gian sinh hoạt chung đòi hỏi sự tính toán kỹ lưỡng.
Dựa vào bản vẽ mặt bằng công năng tầng 1, hãy cùng Techhome dạo một vòng quanh nhà:
-
Phòng khách (30m2): Bước qua sảnh chính là không gian phòng khách rộng lớn. Đây là nơi anh Kỳ tiếp đón bạn bè, nên được ưu tiên diện tích lớn nhất, liên thông visual với khu vực sảnh đệm, tạo cảm giác chiều sâu hun hút.
-
Phòng thờ (12m2): Được đặt trang trọng ngay cạnh phòng khách, hướng ra mặt tiền. Đây là vị trí “tọa cát hướng cát”, thể hiện lòng thành kính của gia chủ với tổ tiên, đồng thời đảm bảo sự yên tĩnh, tôn nghiêm cần thiết.
-
Hệ thống 3 Phòng ngủ: Điểm đặc biệt của mẫu nhà cấp 4 mái Nhật này là hành lang giao thông chạy dọc nhà, kết nối các phòng ngủ nằm về một phía rất khoa học:
-
Phòng ngủ 01 (14m2).
-
Phòng ngủ 02 (15m2).
-
Phòng ngủ 03 (14m2) kết hợp vệ sinh khép kín 3,2m2..
-
Tất cả các phòng ngủ đều có cửa sổ mở ra thoáng mát.
-
-
Bếp 28m2 và Phòng ăn (20m2): Được đẩy về phía cuối nhà. Đây là cách bố trí rất phổ biến ở nông thôn, giúp mùi thức ăn không bay ngược lên phòng khách, đồng thời tạo ra một không gian quây quần riêng tư cho bữa cơm gia đình. Khu bếp có cửa phụ mở ra sân sau/vườn, cực kỳ tiện lợi cho việc đi chợ về hay sơ chế thực phẩm sống.
-
Khu vệ sinh: Nhà được bố trí 1 WC chung và 1 phòng tắm riêng biệt. Việc tách biệt không gian tắm và vệ sinh là một tư duy rất văn minh, giúp nhiều người có thể sử dụng cùng lúc vào giờ cao điểm buổi sáng.

4. Giải pháp kỹ thuật và kết cấu
Để một ngôi nhà cấp 4 mái Nhật bền đẹp theo thời gian, Techhome không chỉ vẽ đẹp mà còn tính toán kết cấu cực kỳ chi tiết.
Trong hồ sơ kỹ thuật thi công, chúng tôi đã chỉ định rõ:
-
Móng: Tùy thuộc vào địa chất tại Phù Cừ, nhưng thường với nhà cấp 4, móng băng hoặc móng cốc (nếu đất tốt) sẽ được ưu tiên để tiết kiệm chi phí mà vẫn đảm bảo chịu lực.
-
Trần: Sử dụng trần thạch cao kết hợp hệ thống đèn Downlight và đèn hắt, giúp tăng chiều cao ảo cho ngôi nhà và tạo sự sang trọng.
-
Mái: Sử dụng vì kèo thép siêu nhẹ hoặc xà gồ hợp kim nhôm, lợp ngói màu. Giải pháp này nhẹ hơn đổ bê tông mái chéo dán ngói rất nhiều, giảm tải trọng cho móng và tiết kiệm chi phí.

5. Tại sao bạn nên chọn xây nhà cấp 4 mái Nhật lúc này?
Có rất nhiều lý do khiến mẫu nhà cấp 4 mái Nhật của anh Kỳ trở thành niềm mơ ước của nhiều người:
-
Tiết kiệm chi phí: So với nhà cao tầng, nhà cấp 4 giảm bớt chi phí làm móng, cầu thang và thời gian thi công ngắn hơn.
-
Gắn kết thành viên: Mọi sinh hoạt đều diễn ra trên một mặt sàn. Ông bà không phải leo cầu thang, con cháu chạy nhảy trong tầm mắt bố mẹ. Tình cảm gia đình vì thế mà khăng khít hơn.
-
Thẩm mỹ trường tồn: Kiến trúc mái Nhật đề cao sự đơn giản, cân đối. Mười năm hay hai mươi năm nữa, nhìn ngôi nhà vẫn đẹp và sang, không bị lỗi thời như các mẫu nhà kiểu Pháp cầu kỳ hay mái bằng đơn điệu.
-
Phù hợp khí hậu: Chống nóng tốt, thoát nước nhanh, rất hợp với thời tiết nhiệt đới gió mùa tại Việt Nam.

6. Kinh nghiệm thi công nhà cấp 4 mái Nhật thực tế
Là đơn vị trực tiếp thiết kế và giám sát, Techhome chia sẻ một vài lưu ý “xương máu” khi xây nhà cấp 4 mái Nhật:
-
Tỷ lệ độ dốc mái: Không được quá dốc (như mái Thái) nhưng cũng không được quá thoải (dễ đọng nước). Tỷ lệ vàng thường rơi vào khoảng 25-30 độ.
-
Chọn vật liệu ngói: Nên chọn các loại ngói tráng men cao cấp hoặc ngói bê tông màu có thương hiệu để tránh bay màu sau vài năm sử dụng.
-
Hệ thống điện nước: Với nhà dài hơn 20m như nhà anh Kỳ, việc tính toán áp lực nước để khu vệ sinh cuối nhà nước vẫn chảy mạnh là rất quan trọng. Techhome luôn có bản vẽ sơ đồ cấp thoát nước chi tiết để thợ thi công chính xác.

7. Báo giá thiết kế và thi công nhà cấp 4 mái Nhật (Tham khảo 2024-2025)
Rất nhiều khách hàng thắc mắc: “Xây một ngôi nhà cấp 4 mái Nhật đẹp như thế này hết bao nhiêu tiền?”. Techhome xin đưa ra bảng khái toán dựa trên mức giá thị trường hiện tại để quý vị tham khảo (Lưu ý: Giá có thể thay đổi tùy thời điểm, vật liệu và vị trí địa lý).
Diện tích xây dựng tạm tính:
-
Diện tích sàn: ~175m2 (8,15m x 21.4m).
-
Diện tích mái (hệ số nghiêng 1.4 – 1.5): ~240m2 – 250m2.
Bảng báo giá tham khảo:
| Hạng mục | Đơn giá (VNĐ) | Thành tiền ước tính (VNĐ) |
| 1. Chi phí Thiết kế | 100.000đ/m2 | ~ 17.500.000 |
| 2. Thi công phần thô | 3.800.000 – 4.200.000đ/m2 | ~ 650.000.000 – 750.000.000 |
| (Bao gồm: Móng, tường, điện nước âm, mái bê tông/vì kèo) | ||
| 3. Thi công hoàn thiện | 2.000.000 – 3.000.000đ/m2 | ~ 350.000.000 – 550.000.000 |
| (Gạch ốp lát, sơn bả, cửa, thiết bị vệ sinh, đèn…) | ||
| TỔNG CỘNG (Chìa khóa trao tay) | ~ 1.100.000.000 – 1.300.000.000 |
Lưu ý: Đây chỉ là mức chi phí ước tính. Để nhận được báo giá chính xác và chi tiết nhất cho công trình của bạn, vui lòng liên hệ trực tiếp với chúng tôi. Hoặc để tìm hiểu rõ hơn về tiêu chuẩn vật liệu xây dựng và các yếu tố ảnh hưởng đến chi phí, bạn có thể tham khảo thêm tại các bài viết chuyên sâu về vật liệu xây dựng cao cấp trên Wikipedia.

8. Tại sao chọn Techhome?
Giữa hàng trăm đơn vị thiết kế, tại sao anh Kỳ ở Hưng Yên lại chọn Techhome?
-
Minh bạch: Hồ sơ thiết kế rõ ràng từ kiến trúc, kết cấu đến điện nước.
-
Tận tâm: Chúng tôi không chỉ vẽ nhà, chúng tôi vẽ tổ ấm. Đội ngũ KTS luôn giám sát kỹ lưỡng từng nét vẽ.
-
Hỗ trợ trọn đời: Số hotline kỹ thuật 0364042222 – 0387603333 luôn sẵn sàng hỗ trợ tư vấn kỹ thuật 24/7 cho thợ thi công tại hiện trường.
Kết luận
Ngôi nhà cấp 4 mái Nhật của gia đình anh Đỗ Cao Kỳ tại Hưng Yên là một minh chứng rõ nét cho thấy: Không cần phải xây nhà cao tầng mới là sang trọng. Một không gian sống tiện nghi, ấm cúng, gần gũi với thiên nhiên và gắn kết các thành viên gia đình mới là giá trị đích thực của kiến trúc.
Nếu bạn cũng đang ấp ủ dự định xây dựng một ngôi nhà cấp 4 mái Nhật trên mảnh đất quê hương, đừng ngần ngại liên hệ với Techhome. Chúng tôi sẽ giúp bạn hiện thực hóa giấc mơ đó với chi phí tối ưu nhất.
Xem thêm các dự án nổi bật khác của Techhome tại https://nhadeptechhome.vn/
