Nếu bạn đang tìm kiếm một không gian sống bình yên, gần gũi nhưng vẫn toát lên vẻ sang trọng, hiện đại thì mẫu nhà cấp 4 mái Nhật mà TechHome vừa hoàn thiện hồ sơ thiết kế cho gia đình chú Vân tại Kinh Môn, Hải Dương chính là câu trả lời hoàn hảo nhất. Không cần phải là những tòa nhà cao tầng đồ sộ, ngôi nhà này vẫn khiến bất cứ ai đi ngang qua cũng phải ngoái nhìn bởi vẻ đẹp thanh thoát và công năng “đỉnh của chóp”.
Hãy cùng TechHome “mổ xẻ” chi tiết hồ sơ thiết kế của mẫu nhà cấp 4 mái nhật này để xem tại sao nó lại trở thành niềm ao ước của nhiều gia chủ đến vậy nhé.
Tại sao xu hướng xây nhà cấp 4 mái Nhật lại “lên ngôi”?
Có một sự thật là vài năm trở lại đây, thay vì đua nhau xây nhà ống hay biệt thự cao tầng, rất nhiều gia chủ lại quay về với những mẫu nhà cấp 4 mái Nhật. Tại sao vậy? Đơn giản vì nó “chạm” được vào nhu cầu thực tế: tiện lợi, mát mẻ và chi phí hợp lý.
Với khuôn viên đất rộng tại Kinh Môn, chú Vân đã chia sẻ với anh em kiến trúc sư TechHome rằng: “Chú muốn một ngôi nhà mà ở đó con cháu về chơi thấy rộng rãi, người già đi lại không phải leo cầu thang mỏi gối, và quan trọng là nhìn nó phải ấm cúng”. Và thế là bản vẽ nhà cấp 4 mái Nhật 3 phòng ngủ này ra đời, giải quyết tất cả những trăn trở đó.

Chiêm ngưỡng vẻ đẹp ngoại thất: Hiện đại mà gần gũi
Nhìn vào phối cảnh 3D, điều đầu tiên đập vào mắt chúng ta chính là hệ mái Nhật màu xanh than cực kỳ bắt mắt. Khác với mái Thái cao vút, hệ mái của mẫu nhà cấp 4 mái Nhật này có độ dốc vừa phải, mở rộng ra các hướng, tạo cảm giác ngôi nhà như đang dang tay che chở cho các thành viên bên trong.
Phối màu tinh tế và sang trọng
Các kiến trúc sư TechHome đã khéo léo sử dụng tông màu trắng sứ làm chủ đạo. Để tránh sự đơn điệu, chúng tôi nhấn nhá thêm các đường kẻ chỉ âm tường và các mảng tường ốp gạch thẻ màu ghi xanh ở phần chân tường và cổ trần. Sự kết hợp này không chỉ giúp ngôi nhà trông vững chãi hơn mà còn tạo nên sự đồng bộ tuyệt đối với màu ngói. Đây là một đặc trưng thẩm mỹ khiến nhà cấp 4 mái Nhật luôn giữ được vẻ đẹp bền bỉ theo thời gian, không lo lỗi mốt.
Hệ cột và sảnh đón bề thế
Khu vực sảnh chính là “bộ mặt” của gia chủ. Tại công trình này, hệ cột trụ vuông vức được thiết kế to khỏe, ốp đá phần chân tạo sự uy nghi. Bậc tam cấp (chính xác là ngũ cấp – 5 bậc) được ốp đá Granite đen – trắng tương phản, giúp tôn nền nhà lên cao, khiến ngôi nhà cấp 4 mái Nhật này trông cao ráo và thoáng đãng hơn hẳn so với mặt đường.
Cửa chính sử dụng gỗ Lim Nam Phi kết hợp pano kính, vừa giữ được nét truyền thống sang trọng, vừa lấy được ánh sáng tự nhiên. Trong khi đó, hệ thống cửa sổ lại sử dụng nhôm kính Xingfa hiện đại, giúp không gian bên trong luôn tràn ngập ánh sáng và gió trời.

Công năng sử dụng: Bài toán diện tích được giải quyết thông minh
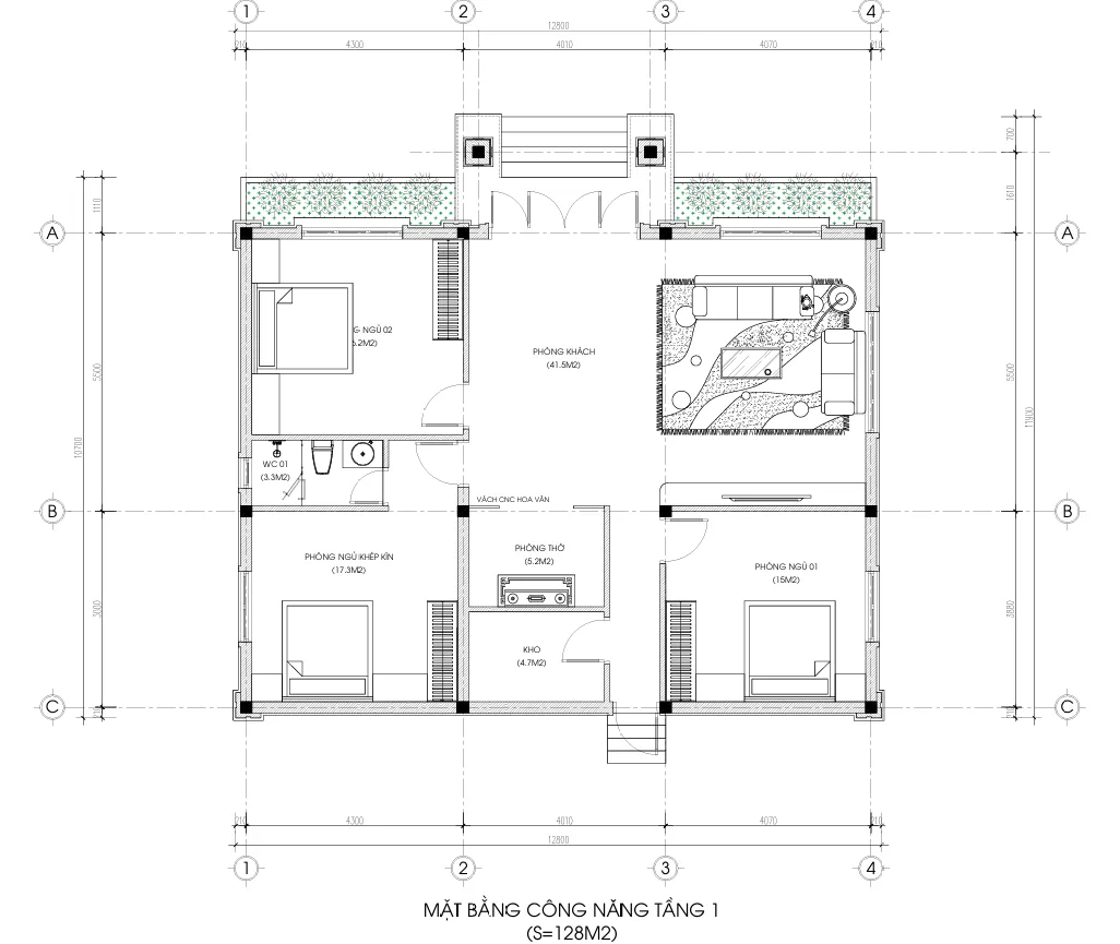
Một ngôi nhà đẹp không chỉ ở cái vỏ bên ngoài, mà quan trọng nhất là “nội dung” bên trong. Với diện tích xây dựng khoảng 128m2 (kích thước phủ bì 12.8m x 11.9m), việc bố trí công năng cho mẫu nhà cấp 4 mái Nhật này là một bài toán thú vị mà TechHome đã giải quyết xuất sắc.
Dựa trên bản vẽ mặt bằng công năng , chúng ta có thể thấy cách bố trí cực kỳ khoa học:
-
Phòng khách “siêu to khổng lồ”: Với diện tích lên tới 41.5m2, phòng khách này dư sức để tổ chức những buổi họp mặt đại gia đình vào dịp lễ Tết. Đây là không gian trung tâm, kết nối mọi thành viên.
-
Phòng thờ trang nghiêm: Nằm ngay sau phòng khách, có vách ngăn CNC hoa văn tạo sự riêng tư nhưng vẫn thông thoáng. Diện tích khu thờ khoảng 10m2 (bao gồm cả không gian đệm), đúng chuẩn phong thủy Á Đông.
-
3 Phòng ngủ tiện nghi:
-
Phòng ngủ Master (Phòng số 2): Diện tích 17.3m2, có vệ sinh khép kín (3.3m2). Đây là không gian nghỉ ngơi lý tưởng cho vợ chồng chú Vân.
-
Phòng ngủ 1: 15m2, rộng rãi cho con cái.
-
Phòng ngủ 2: 12m2, ấm cúng.
-
-
Điểm đặc biệt: Bạn sẽ thắc mắc “Bếp đâu?”. Theo thói quen sinh hoạt của nhiều gia đình tại Kinh Môn và các vùng quê Bắc Bộ, chú Vân muốn tách biệt khu bếp nấu ra một công trình phụ phía sau hoặc bên cạnh. Điều này giúp ngôi nhà cấp 4 mái Nhật chính luôn sạch sẽ, không bị ám mùi thức ăn và giữ được sự trang trọng tuyệt đối.

Tại sao chọn kết cấu mái Nhật cho nhà cấp 4?
Không phải ngẫu nhiên mà từ khóa nhà cấp 4 mái Nhật lại được tìm kiếm nhiều đến vậy. So với các loại mái khác, mái Nhật có những ưu điểm vượt trội:
-
Chống nóng tốt: Với khí hậu nhiệt đới như ở Hải Dương, mái Nhật với độ dốc vừa phải và lớp ngói tản nhiệt giúp ngôi nhà luôn mát mẻ vào mùa hè.
-
Thoát nước nhanh: Mùa mưa bão, độ dốc của mái giúp nước thoát nhanh, không gây ứ đọng, thấm dột, bảo vệ tuổi thọ công trình.
-
Tiết kiệm chi phí hơn mái Thái: Do độ dốc thấp hơn mái Thái, lượng vật tư (ngói, kèo, xà gồ) sử dụng cho nhà cấp 4 mái Nhật thường ít hơn, giúp gia chủ tiết kiệm một khoản kha khá.
Vật liệu xây dựng: Chất lượng làm nên thương hiệu
Trong hồ sơ kỹ thuật thi công của TechHome gửi cho chú Vân, chúng tôi quy định rất rõ ràng về chủng loại vật liệu để đảm bảo ngôi nhà cấp 4 mái Nhật này bền đẹp mãi:
-
Gạch xây: Gạch đặc cho các vị trí chịu lực và gạch lỗ cho tường ngăn, đảm bảo cách âm, cách nhiệt.
-
Sơn tường: Sử dụng dòng sơn ngoại thất cao cấp chống rêu mốc, bền màu dưới nắng mưa. Màu trắng sứ kết hợp xanh dương là “cặp bài trùng” kinh điển.
-
Gạch lát nền: Gạch Granite kích thước lớn (800x800mm) vân đá, tạo cảm giác không gian rộng mở và sang trọng.
-
Hệ thống cửa: Nhôm hệ cao cấp kính an toàn 8.38mm, vừa an toàn vừa thẩm mỹ.
Việc lựa chọn vật liệu đúng đắn quyết định đến 80% vẻ đẹp và độ bền của một ngôi nhà cấp 4 mái Nhật. TechHome luôn tư vấn cho khách hàng những phương án tối ưu nhất trong tầm giá.

Phong thủy trong thiết kế nhà chú Vân
Chú Vân là người rất coi trọng phong thủy. Hiểu được điều đó, hướng nhà, hướng cửa và vị trí đặt ban thờ đều được kiến trúc sư TechHome tính toán kỹ lưỡng dựa trên tuổi của gia chủ.
Thiết kế nhà cấp 4 mái Nhật thường có hình khối vuông vức hoặc hình chữ nhật, đại diện cho hành Thổ, tạo sự vững chãi, an toàn. Hệ thống cửa sổ được bố trí đối lưu không khí tốt, giúp dòng vượng khí luôn luân chuyển trong nhà, mang lại sức khỏe và tài lộc cho gia chủ. Vị trí phòng thờ “tọa cát hướng cát” nhìn thẳng ra sảnh chính cũng là một điểm cộng lớn về mặt tâm linh.
Quy trình làm việc của TechHome với gia chủ
Để ra được bộ hồ sơ “chất như nước cất” này, anh em TechHome đã phải về tận Kinh Môn để đo đạc hiện trạng, bay flycam khảo sát khu đất. Sau đó là hàng loạt các cuộc trao đổi trực tiếp và online với chú Vân để chốt phương án.
Sự tỉ mỉ thể hiện qua từng bản vẽ chi tiết: từ mặt bằng lát sàn, chi tiết phào chỉ cửa sổ, cho đến chi tiết cột sảnh. Chú Vân khi nhận hồ sơ đã phải thốt lên: “Chú không nghĩ làm cái nhà cấp 4 mái Nhật mà hồ sơ nó dày và chi tiết đến thế này, thợ nhìn vào là làm được ngay không cần hỏi nhiều”. Đó chính là niềm tự hào của chúng tôi.

Dự toán chi phí xây dựng (Tham khảo)
Đây chắc chắn là phần các bạn mong chờ nhất. “Nhà đẹp thế này thì hết bao nhiêu tiền?”. TechHome xin đưa ra một bảng báo giá khái toán để bạn dễ hình dung khi muốn xây dựng một mẫu nhà cấp 4 mái Nhật tương tự như nhà chú Vân (Diện tích 128m2 sàn + diện tích mái đua).
Lưu ý: Đơn giá dưới đây mang tính chất tham khảo tại thời điểm hiện tại và có thể thay đổi tùy thuộc vào vị trí, thời điểm vật giá và chủng loại vật tư gia chủ chọn.
Báo giá thi công trọn gói (Chìa khóa trao tay)
Với mức đầu tư khoảng hơn 1 tỷ đồng cho một ngôi nhà cấp 4 mái Nhật 3 phòng ngủ, nội thất gỗ Lim, thiết bị vệ sinh cao cấp và diện tích rộng rãi như thế này là hoàn toàn xứng đáng. Nếu ngân sách hạn hẹp hơn, bạn có thể điều chỉnh chủng loại vật liệu hoàn thiện (như dùng gạch men thường, cửa nhôm kính thường, ngói xi măng…) để giảm chi phí xuống khoảng 800 – 900 triệu đồng.
Các yếu tố ảnh hưởng đến đơn giá
-
Vị trí địa lý: Xây nhà ở Kinh Môn, Hải Dương nhân công và vận chuyển có thể rẻ hơn so với trung tâm Hà Nội hoặc các vùng núi cao.
-
Thời điểm thi công: Xây nhà vào đầu năm thường giá vật tư ổn định hơn cuối năm.
-
Phong cách thiết kế: Mẫu nhà cấp 4 mái Nhật tân cổ điển nhiều phào chỉ sẽ tốn công thợ hơn mẫu hiện đại đơn giản.

Kinh nghiệm “xương máu” khi xây nhà cấp 4 mái Nhật
Từ thực tế công trình nhà chú Vân, TechHome rút ra vài lời khuyên cho các bạn:
-
Đừng tiếc tiền thiết kế: Một bộ hồ sơ chuẩn chỉ vài chục triệu nhưng giúp bạn tiết kiệm hàng trăm triệu tiền phát sinh do đập đi xây lại, hoặc tính toán sai kết cấu sắt thép.
-
Chú ý tỷ lệ mái: Mái Nhật đẹp ở độ dốc. Nếu dốc quá thành mái Thái, dốc ít quá thì nước thoát chậm và nhìn nhà bị “lùn”. Tỷ lệ vàng thường được các KTS TechHome cân nhắc rất kỹ.
-
Sân vườn là linh hồn: Đã xây nhà cấp 4 mái Nhật thì phải có sân vườn. Như nhà chú Vân, khoảng sân lát gạch sạch sẽ kết hợp bồn hoa trước nhà chính là điểm nhấn giúp công trình mềm mại hơn.
TechHome – Đơn vị thiết kế và thi công uy tín
Công trình nhà chú Vân tại Hải Dương chỉ là một trong hàng trăm dự án nhà cấp 4 mái Nhật mà TechHome đã thực hiện trên khắp cả nước. Chúng tôi không chỉ vẽ ra những ngôi nhà đẹp trên giấy, mà chúng tôi kiến tạo không gian sống thực tế, phù hợp với thói quen và ngân sách của người Việt.
Đội ngũ KTS của TechHome luôn tâm niệm: “Xây nhà cho khách cũng như xây nhà cho mình”. Sự tỉ mỉ trong từng bản vẽ kỹ thuật, sự tận tâm trong khâu giám sát tác giả chính là cam kết vàng của chúng tôi.

Kết luận
Mẫu nhà cấp 4 mái Nhật của gia đình chú Vân là minh chứng rõ ràng nhất cho việc: Nhà đẹp không cần phải quá cao sang, chỉ cần thiết kế hợp lý, hài hòa và thấu hiểu nhu cầu của người ở. Một không gian sống 3 phòng ngủ tiện nghi, một phòng khách rộng thênh thang và một khoảng sân vườn xanh mát – đó chẳng phải là ước mơ của bao người sao?
Nếu bạn đã “phải lòng” mẫu thiết kế này, hoặc đang ấp ủ ý định xây dựng một ngôi nhà cấp 4 mái Nhật cho riêng mình, đừng ngần ngại liên hệ với TechHome. Chúng tôi sẽ lắng nghe câu chuyện của bạn và biến nó thành hiện thực.
Bạn muốn nhận tư vấn chi tiết và báo giá chính xác cho ngôi nhà của mình?
👉 Liên hệ ngay với TechHome:
-
Hotline: 0364.04.2222 / 0387.60.3333
-
Đơn vị: Công ty Cổ phần Kiến trúc và Xây dựng TechHome.
- Xem thêm các dự án nổi bật khác của Techhome tại https://nhadeptechhome.vn/
- Địa chỉ: B1.1 LK17 ô số 4 – KĐT Thanh Hà, Thanh Oai, Hà Nội
Hãy để TechHome cùng bạn xây dựng tổ ấm vững bền!
