Chủ đầu tư: Anh Quang
Địa điểm: Phù Cừ, Hưng Yên
Đơn vị thiết kế: Công ty Cổ phần Kiến trúc và Xây dựng TechHome
Xây nhà là chuyện cả đời. Với người dân Việt Nam mình, ngôi nhà không chỉ là nơi che mưa che nắng, mà còn là niềm tự hào, là thành quả sau bao năm phấn đấu. Hiểu được tâm tư ấy, TechHome đã dành trọn tâm huyết để hoàn thiện hồ sơ thiết kế nhà mái Nhật 2 tầng cho gia đình anh Quang tại Phù Cừ, Hưng Yên.
Đây không chỉ là một bản vẽ vô hồn, mà là câu chuyện về tổ ấm, nơi giao thoa giữa nét đẹp kiến trúc Tân Cổ Điển sang trọng và sự tiện nghi hiện đại, phù hợp với nếp sống của gia đình tại vùng đất Hưng Yên yên bình. Mời quý bạn đọc cùng TechHome khám phá chi tiết ngôi nhà này.

1. Duyên dáng kiến trúc Tân Cổ Điển: Khi “Thiết kế nhà mái Nhật 2 tầng” lên ngôi
Ngay từ cái nhìn đầu tiên qua phối cảnh 3D, ngôi nhà của anh Quang hiện lên sừng sững nhưng không hề nặng nề. Chúng tôi lựa chọn phong cách Tân Cổ Điển nhẹ nhàng, lược bỏ những chi tiết rườm rà, chỉ giữ lại những đường phào chỉ tinh tế nhất.
Hệ mái Nhật – Linh hồn của ngôi nhà
Điểm nhấn đắt giá nhất trong bản thiết kế nhà mái Nhật 2 tầng này chính là hệ mái. Khác với mái Thái cao vút, mái Nhật (hay còn gọi là mái lùn) có độ dốc vừa phải, tỏa ra các hướng, tạo cảm giác cân đối, vững chãi. Màu ngói xanh than nổi bật trên nền sơn trắng sứ chủ đạo, tạo nên sự tương phản thanh lịch, không bao giờ lỗi mốt.
Nhìn vào bản vẽ mặt bằng mái, hệ mái được tính toán kỹ lưỡng với độ dốc thoát nước tốt, đảm bảo ngôi nhà luôn mát mẻ vào mùa hè và ấm áp vào mùa đông – điều cực kỳ quan trọng với khí hậu miền Bắc.
Mặt tiền và hình khối
Mặt tiền ngôi nhà rộng 8m, một kích thước lý tưởng để phô diễn vẻ đẹp kiến trúc. Hệ cột trụ vuông vắn tại sảnh chính tạo sự uy nghi, vững chãi. Điểm xuyết trên đó là các chi tiết phào chỉ đầu cột và chân cột được trau chuốt tỉ mỉ.
Đặc biệt, hệ ban công tầng 2 được thiết kế rất “tình”. Bên cạnh ban công vuông vắn khỏe khoắn, kiến trúc sư đã khéo léo lồng ghép một ban công hình bán nguyệt với lan can nhôm đúc nghệ thuật màu vàng kim. Chi tiết này kết hợp với cửa vòm cong mềm mại đã làm mềm đi những khối bê tông thô cứng, biến ngôi nhà thành một tác phẩm nghệ thuật thực thụ.

2. Khám phá công năng: Sự bố trí thông minh trong “Thiết kế nhà mái Nhật 2 tầng”
Một ngôi nhà đẹp bên ngoài là chưa đủ, nó phải “ngon” từ bên trong. Với diện tích xây dựng khoảng 100m2/sàn (kích thước phủ bì 8m x 12.5m), TechHome đã giải bài toán công năng cho gia đình anh Quang một cách triệt để.
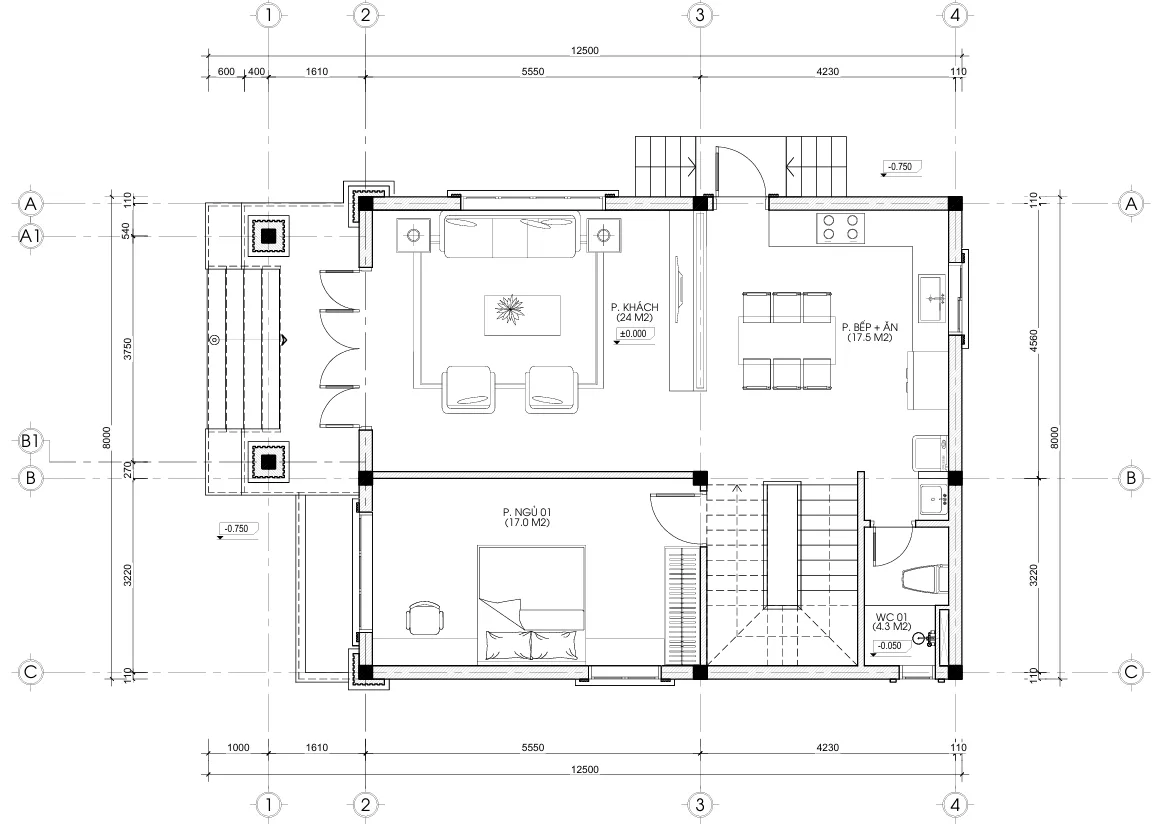
Tầng 1: Không gian kết nối (Diện tích xây dựng ~100m2)
Bước qua sảnh chính rộng rãi là phòng khách sang trọng với diện tích 24m2. Đây là “bộ mặt” của gia chủ, nơi anh Quang tiếp đón bạn bè, người thân. Phòng khách được thiết kế liên thông nhẹ nhàng với khu vực cầu thang, tạo cảm giác không gian được mở rộng hơn so với diện tích thực.
Đi sâu vào bên trong là khu vực Bếp + Ăn rộng 17.5m2. Chị nhà sẽ có một không gian nấu nướng thoải mái, có cửa phụ đi ra sảnh phụ bên hông, giúp việc đi chợ về không cần xách đồ tươi sống đi qua phòng khách, đồng thời giúp mùi thức ăn thoát ra ngoài dễ dàng.
Tại tầng 1, chúng tôi bố trí 01 phòng ngủ (Phòng ngủ 01) rộng 17.0m2. Phòng này rất thích hợp cho ông bà lớn tuổi, hạn chế việc leo cầu thang, đảm bảo sức khỏe và an toàn. Kế bên là một nhà vệ sinh chung (WC 01) rộng 4.3m2, được đặt kín đáo cuối nhà nhưng vẫn đảm bảo sự thông thoáng và thẩm mỹ.

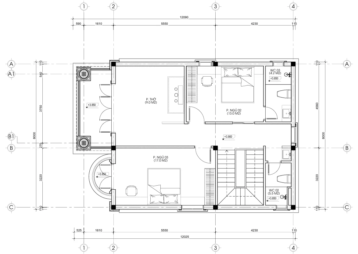
Tầng 2: Không gian nghỉ ngơi và tâm linh
Di chuyển lên tầng 2 qua cầu thang 21 bậc được lát đá Granite đen cổ trắng sang trọng, chúng ta đến với không gian riêng tư của gia đình.
Mẫu thiết kế nhà mái Nhật 2 tầng này ưu tiên sự tôn nghiêm với Phòng thờ rộng 9.0m2 đặt ở vị trí trang trọng nhất, hướng ra ban công mặt tiền. Cửa mở ra ban công giúp phòng thờ luôn thoáng khí và tràn ngập ánh sáng tự nhiên.
Tầng này có 02 phòng ngủ:
-
Phòng ngủ 03 rộng 17.0m2, tương đương phòng ngủ tầng 1, dành cho vợ chồng gia chủ.
-
Phòng ngủ 02 rộng 13.0m2, dành cho con cái.
Điểm cộng lớn của tầng 2 là hệ thống vệ sinh tiện nghi. Ngoài WC chung, thiết kế còn bố trí các khu vực vệ sinh rộng rãi (WC 02 rộng 5.5m2 và WC 03 rộng 4.2m2), đảm bảo sinh hoạt không bị chồng chéo vào mỗi buổi sáng.
Khu vực ban công phía trước là nơi lý tưởng để gia đình đặt một bàn trà nhỏ, ngắm cảnh làng quê Phù Cừ mỗi buổi chiều tà.

3. Vật liệu hoàn thiện: Chất lượng làm nên đẳng cấp
Trong bản hồ sơ thiết kế nhà mái Nhật 2 tầng của anh Quang, TechHome quy định rất rõ về quy cách vật liệu để đảm bảo độ bền và thẩm mỹ.
-
Hệ thống cửa: Cửa chính là gỗ tự nhiên (hoặc cửa thép vân gỗ) tạo sự bề thế. Hệ thống cửa sổ và cửa đi ban công sử dụng nhôm hệ kính cường lực (như Xingfa). Ưu điểm của loại cửa này là lấy sáng tốt, cách âm, cách nhiệt, giúp ngôi nhà luôn chan hòa ánh sáng và tiết kiệm điện năng.
-
Sàn nhà: Tầng 1 lát gạch Granite vân mây màu trắng kích thước lớn giúp không gian trông rộng hơn. Tầng 2 và các phòng ngủ sử dụng gạch Ceramic chống trơn hoặc sàn gỗ tùy theo sở thích gia chủ, tạo cảm giác ấm cúng.
-
Chân tường: Được ốp đá chẻ hoặc gạch thẻ sẫm màu. Chi tiết nhỏ này cực kỳ quan trọng, giúp bảo vệ chân tường khỏi rêu mốc, nồm ẩm đặc trưng của miền Bắc, giữ cho ngôi nhà luôn sạch sẽ như mới.

4. Tại sao “Thiết kế nhà mái Nhật 2 tầng” lại được ưa chuộng tại Hưng Yên?
Không phải ngẫu nhiên mà anh Quang và rất nhiều gia chủ tại Hưng Yên lại chọn mẫu nhà này.
-
Chi phí hợp lý: So với biệt thự cổ điển đồ sộ, mẫu nhà mái Nhật Tân Cổ Điển tiết kiệm chi phí thi công hơn do lược bỏ các chi tiết đắp vẽ cầu kỳ, nhưng vẫn giữ được sự sang trọng.
-
Công năng tối ưu: Với diện tích đất ở quê thường rộng rãi, việc bố trí nhà 2 tầng mái Nhật giúp tận dụng tối đa ánh sáng và gió trời.
-
Bền vững với thời gian: Kiến trúc này ít bị lỗi mốt. 10 hay 20 năm nữa, ngôi nhà vẫn giữ được vẻ đẹp thanh thoát, không bị cũ kỹ.

5. Báo giá thiết kế và thi công (Tham khảo)
Rất nhiều khách hàng khi xem bản vẽ nhà anh Quang thường thắc mắc: “Để xây được ngôi nhà như thế này thì cần bao nhiêu tiền?”. TechHome xin đưa ra bảng dự toán tham khảo cho mẫu thiết kế nhà mái Nhật 2 tầng diện tích sàn khoảng 100m2 (Tổng diện tích xây dựng khoảng 200m2 + diện tích mái/móng) tại thời điểm hiện tại.
Lưu ý: Đây là mức giá ước tính thị trường, giá thực tế phụ thuộc vào thời điểm thi công, giá vật liệu tại địa phương Hưng Yên và mức độ đầu tư nội thất của gia chủ.
Bảng Giá Thiết Kế (Kiến trúc + Kết cấu + Điện nước + 3D)
Đối với TechHome, đơn giá thiết kế :
-
Đơn giá: 100.000đ/m2.
Bảng Dự Toán Thi Công Xây Dựng (Trọn gói phần thô + Hoàn thiện cơ bản)
| Hạng mục | Đơn giá tham khảo (VNĐ/m2) | Diện tích tính giá (Tạm tính) | Thành tiền ước tính (VNĐ) |
| Xây dựng phần thô (Nhân công + Vật tư thô) | 3.800.000 – 4.200.000 | ~ 240m2 (bao gồm móng mái) | ~ 900.000.000 – 1.000.000.000 |
| Hoàn thiện (Sơn, gạch ốp lát, cửa, thiết bị vệ sinh cơ bản) | 2.000.000 – 3.000.000 | ~ 200m2 (sàn sử dụng) | ~ 400.000.000 – 600.000.000 |
| Tổng cộng chìa khóa trao tay | Khoảng 1.4 tỷ – 1.6 tỷ |
Nếu quý khách tự thuê nhân công và mua vật tư, chi phí có thể tiết kiệm hơn nhưng sẽ tốn nhiều công sức quản lý.
6. Lời kết
Ngôi nhà của anh Quang tại Phù Cừ là minh chứng rõ nét cho tư duy làm nghề của TechHome: “Vẽ nên ngôi nhà, xây nên tổ ấm”. Chúng tôi không chỉ cung cấp một bản thiết kế nhà mái Nhật 2 tầng đẹp, mà còn cung cấp giải pháp sống tiện nghi, khoa học.
Nhìn vào bản vẽ chi tiết từ móng đến mái, từ mặt đứng đến từng chi tiết phào chỉ cửa sổ, bạn sẽ thấy sự tỉ mỉ và trách nhiệm của đội ngũ kiến trúc sư TechHome. Chúng tôi cam kết đồng hành cùng gia chủ từ khi đặt nét bút đầu tiên cho đến ngày tân gia rộn rã tiếng cười.
Nếu bạn đang sở hữu mảnh đất tại Hưng Yên hay bất kỳ đâu và mơ ước về một ngôi nhà mái Nhật 2 tầng lý tưởng, đừng ngần ngại liên hệ với chúng tôi.
CÔNG TY CỔ PHẦN KIẾN TRÚC VÀ XÂY DỰNG TECHHOME
-
Hotline hỗ trợ tư vấn kỹ thuật: 0364042222 – 0387603333
- Xem thêm các dự án nổi bật khác của Techhome tại https://nhadeptechhome.vn/
Hãy để TechHome biến giấc mơ an cư của bạn thành hiện thực!


