Khám Phá Mẫu Thiết Kế Nhà Phố 3 Tầng Hiện Đại: Tuyệt Phẩm Kiến Trúc Tại Thái Nguyên

Có bao giờ bạn tự hỏi, điều gì tạo nên linh hồn của một ngôi nhà? Là những bức tường vững chãi, những món nội thất đắt tiền, hay chính là cách mà không gian ấy “thở” cùng nhịp sống của gia chủ? Hôm nay, hãy cùng TechHome lật mở từng trang hồ sơ của một dự án tâm huyết – một mẫu thiết kế nhà phố 3 tầng hiện đại dành cho gia đình anh Thìn tại Thái Nguyên . Đây không chỉ là một bản vẽ, đây là câu chuyện về việc hiện thực hóa ước mơ an cư lạc nghiệp.

Nếu bạn đang tìm kiếm ý tưởng cho tổ ấm tương lai, đặc biệt là những ai yêu thích sự phóng khoáng, tiện nghi nhưng vẫn ấm cúng, thì bài viết này chính là dành cho bạn.

1. Ấn tượng đầu tiên: Vẻ đẹp ngoại thất “vạn người mê”

Khi nhìn vào phối cảnh 3D của ngôi nhà này, điều đầu tiên đập vào mắt chúng ta là sự khỏe khoắn, gãy gọn của ngôn ngữ kiến trúc hiện đại. Khác với những ngôi nhà mái thái cầu kỳ hay tân cổ điển rườm rà, mẫu thiết kế nhà phố 3 tầng hiện đại này lựa chọn những khối hình học vuông vức, xếp chồng lên nhau một cách nghệ thuật để tạo nên chiều sâu cho mặt tiền.

Màu sắc và vật liệu – Bản giao hưởng của sự tinh tế

Gia chủ đã rất tinh tế khi lựa chọn tông màu xám ghi và trắng làm chủ đạo. Đây là những gam màu không bao giờ lỗi mốt, mang lại cảm giác sang trọng và sạch sẽ. Để tránh sự lạnh lẽo của bê tông cốt thép, các kiến trúc sư TechHome đã khéo léo lồng ghép những mảng ốp trần giả gỗ (conwood) màu nâu trầm ấm áp tại ban công các tầng.

Đặc biệt, hệ thống cửa kính lớn (kính Xingfa) được sử dụng triệt để từ tầng 1 lên đến tầng 3. Điều này không chỉ giúp ngôi nhà trông “tây” hơn mà còn giải quyết bài toán lấy sáng – một yếu tố sống còn trong thiết kế nhà phố 3 tầng hiện đại. Hãy tưởng tượng mỗi sáng thức dậy, ánh nắng tự nhiên tràn ngập căn phòng, đánh thức mọi giác quan của bạn. Đó chính là giá trị của một thiết kế biết tận dụng thiên nhiên.

Không gian xanh – Lá phổi của ngôi nhà

Một điểm cộng cực lớn cho công trình này là dải cây xanh rủ xuống mềm mại ở ban công tầng 2. Giữa phố thị ồn ào khói bụi, một chút sắc xanh không chỉ làm dịu mắt mà còn giúp thanh lọc không khí. Đây là xu hướng “kiến trúc xanh” mà bất kỳ mẫu thiết kế nhà phố 3 tầng hiện đại nào hiện nay cũng nên hướng tới.

thiết kế nhà phố 3 tầng hiện đại

2. Đi sâu vào công năng: Tiện nghi trong từng mét vuông

Đẹp thôi chưa đủ, một ngôi nhà thực sự đáng sống phải tối ưu được công năng sử dụng. Với diện tích mặt tiền khoảng 7,8m và chiều sâu xây dựng hợp lý, TechHome đã bố trí các phòng ốc như thế nào? Chúng ta cùng “soi” kỹ bản vẽ mặt bằng nhé.

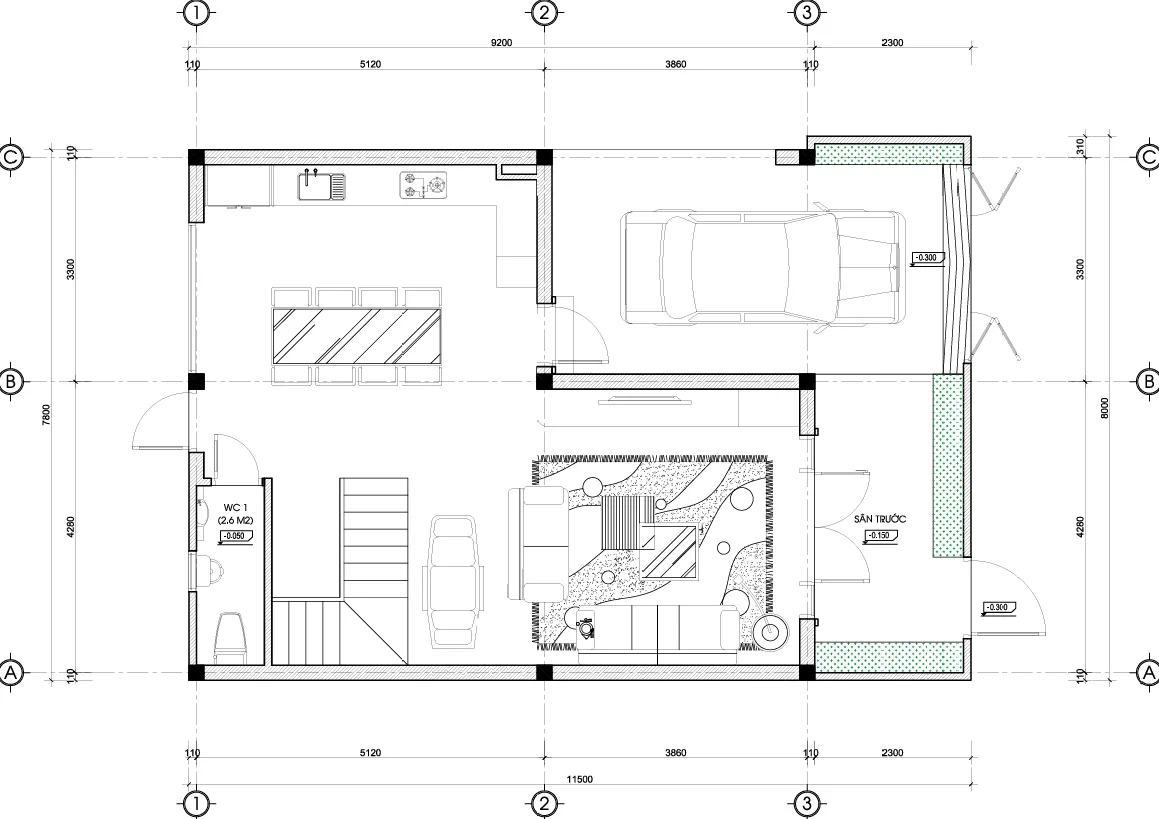
Tầng 1: Không gian kết nối yêu thương

Bước qua khoảng sân trước rộng rãi – nơi có thể để xe ô tô và trồng thêm vài chậu cảnh, chúng ta tiến vào không gian chính.

  • Phòng khách: Được đặt ngay vị trí trang trọng nhất, đón luồng khí tốt từ cửa chính. Đây là bộ mặt của gia chủ, nơi những câu chuyện hàn huyên diễn ra bên ấm trà nóng.

  • Bếp và phòng ăn: Trong thiết kế nhà phố 3 tầng hiện đại, xu hướng thiết kế mở (open layout) giữa phòng khách và bếp rất phổ biến. Tại ngôi nhà này, phòng ăn được bố trí liền mạch, tạo cảm giác ngôi nhà rộng hơn diện tích thực. Một bữa cơm gia đình ấm cúng sau ngày dài làm việc chính là “liều thuốc” tinh thần tốt nhất.

  • Vệ sinh chung: Được bố trí khéo léo, kín đáo (thường tận dụng gầm cầu thang hoặc góc khuất) để đảm bảo thẩm mỹ nhưng vẫn tiện lợi cho khách đến chơi nhà.

mặt bằng thiết kế nhà phố 3 tầng hiện đại

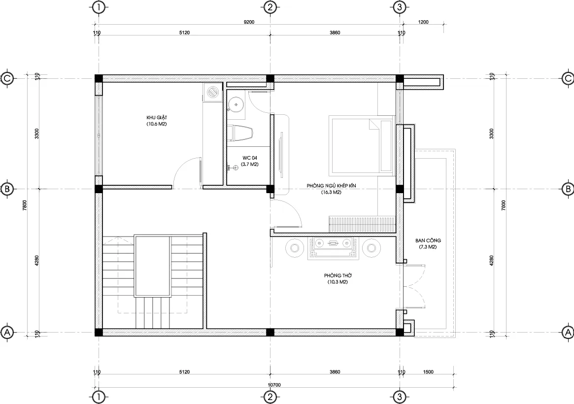
Tầng 2: Chốn riêng tư bình yên

Di chuyển lên tầng 2 qua hệ thống cầu thang được tính toán kỹ lưỡng về chiều cao bậc (đảm bảo không mỏi chân cho người già và trẻ nhỏ), chúng ta đến với không gian nghỉ ngơi.

  • Phòng ngủ Master: Đây là “vương quốc” của vợ chồng gia chủ. Phòng ngủ này không chỉ rộng (khoảng 13.1m2) mà còn tích hợp nhà vệ sinh khép kín (self-contained). Trong thiết kế nhà phố 3 tầng hiện đại, sự riêng tư luôn được đặt lên hàng đầu.

  • Phòng ngủ phụ: Dành cho con cái, được thiết kế với cửa sổ lớn hướng ra không gian thoáng đãng, đảm bảo sự phát triển tốt nhất cho trẻ.

  • Ban công: Khoảng ban công rộng khoảng 8m2 là nơi lý tưởng để đặt một chiếc ghế lười, nhâm nhi ly cà phê và ngắm nhìn phố phường.

mặt bằng thiết kế nhà phố 3 tầng hiện đại

 

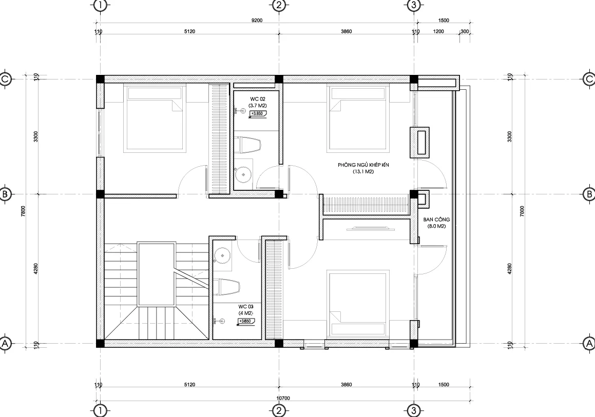
Tầng 3: Tâm linh và thư giãn

Tầng cao nhất của ngôi nhà được dành cho những không gian tĩnh tại hơn.

  • Phòng thờ: Văn hóa người Việt rất coi trọng không gian thờ cúng. Phòng thờ tại đây được đặt ở vị trí cao ráo, trang nghiêm, hướng ra mặt tiền hợp phong thủy.

  • Sân phơi và khu giặt: Khu vực giặt là được tách biệt (khoảng 10.6m2), đảm bảo sự sạch sẽ và tiện dụng. Sân phơi rộng rãi, đón nắng gió tự nhiên giúp quần áo luôn thơm tho.

  • Đặc biệt, tầng 3 còn có một phòng ngủ 16,3m2 kết hợp vệ sinh khép kín 3,7m2. Đây là điểm khác biệt của mẫu thiết kế nhà phố 3 tầng hiện đại và đẳng cấp này.

mặt bằng thiết kế nhà phố 3 tầng hiện đại

3. Yếu tố kỹ thuật: Sự bền vững từ bên trong

Nhiều người khi xây nhà chỉ quan tâm đến hình thức mà quên mất phần “xương sống” kỹ thuật. Nhưng với TechHome, mọi chi tiết trong bản vẽ kỹ thuật thi công đều được tính toán tỉ mỉ.

  • Hệ thống mái: Qua hình ảnh flycam chụp từ trên cao và bản vẽ mặt bằng mái, ta thấy ngôi nhà sử dụng mái bằng kết hợp với mái tôn chống nóng phía trên khu vực thang và kỹ thuật. Giải pháp này vừa tiết kiệm chi phí, vừa đảm bảo khả năng chống thấm và cách nhiệt cực tốt cho tầng 3.

  • Hệ thống điện nước: Bản vẽ bố trí trần đèn cho thấy việc sử dụng đèn downlight âm trần kết hợp đèn hắt, tạo nên kịch bản ánh sáng linh hoạt: sáng sủa khi làm việc và ấm cúng khi nghỉ ngơi.

  • Vật liệu sàn: Các bản vẽ lát sàn chỉ định rõ việc sử dụng gạch Granite vân đá khổ lớn (800×800 hoặc 600×600) cho phòng khách để tạo sự sang trọng, và gạch Ceramic chống trơn (300×300 hoặc 400×400) cho khu vực vệ sinh, sân ướt. Sự chi tiết này giúp gia chủ dễ dàng giám sát thi công và đảm bảo an toàn trong quá trình sử dụng.

thiết kế nhà phố 3 tầng hiện đại

4. Tại sao nên chọn thiết kế nhà phố 3 tầng hiện đại?

Giữa muôn vàn phong cách kiến trúc, vì sao mẫu thiết kế nhà phố 3 tầng hiện đại lại được anh Thìn và nhiều gia chủ tại Thái Nguyên, Hà Nội ưa chuộng đến thế?

  1. Tối ưu diện tích: Với quỹ đất ngày càng hạn hẹp ở đô thị, việc chồng tầng là giải pháp tốt nhất để nới rộng không gian sống.

  2. Tiết kiệm chi phí: So với kiến trúc cổ điển đắp vẽ nhiều phào chỉ hoa văn tốn kém nhân công, phong cách hiện đại tập trung vào mảng khối, giúp tiết kiệm chi phí xây dựng đáng kể mà vẫn đẹp sang trọng.

  3. Không lỗi thời: Vẻ đẹp của sự đơn giản là vẻ đẹp trường tồn. Một ngôi nhà hiện đại xây dựng hôm nay, 10 năm sau nhìn lại vẫn thấy hợp thời.

  4. Dễ dàng bảo trì: Các đường nét phẳng, vật liệu hiện đại như kính, nhôm, đá ốp… rất dễ vệ sinh và bảo dưỡng theo thời gian.

5. Báo Giá Thiết Kế Nhà Phố 3 Tầng Hiện Đại & Dự Toán Xây Dựng (Tham Khảo Mới Nhất)

Sau khi đã “phải lòng” vẻ đẹp và công năng của ngôi nhà, câu hỏi lớn nhất mà chắc hẳn 99% các gia chủ như anh Thìn đều băn khoăn là: “Để sở hữu một bản thiết kế nhà phố 3 tầng hiện đại đẹp như thế này thì tốn bao nhiêu tiền?”“Chi phí xây dựng trọn gói là bao nhiêu?”.

Tại TechHome, chúng tôi tin rằng sự minh bạch về tài chính ngay từ đầu là chìa khóa để xây dựng niềm tin. Dưới đây là bảng báo giá và dự toán tham khảo để bạn dễ dàng hình dung và chuẩn bị ngân sách.

Một bộ hồ sơ thiết kế nhà phố 3 tầng hiện đại không chỉ là vài bức ảnh 3D cho vui mắt. Trong tập hồ sơ kỹ thuật thi công dày cả trăm trang của TechHome, nó bao gồm: bản vẽ kiến trúc, kết cấu, điện nước (ME), và chi tiết nội thất… Chính xác đến từng viên gạch, từng con ốc.

  • Thiết kế kiến trúc: 100.000đ /m2.

Ví dụ: Với ngôi nhà phố 3 tầng, diện tích sàn khoảng 100m2/sàn (Tổng 300m2), chi phí cho một bản thiết kế nhà phố 3 tầng hiện đại đầy đủ, chuẩn chỉ chỉ chiếm một phần rất nhỏ (khoảng 2-3%) so với tổng giá trị ngôi nhà, nhưng lại giúp bạn tiết kiệm hàng trăm triệu đồng tiền phát sinh do sai sót khi thi công.

Dự toán chi phí thi công xây dựng

Dựa trên bản vẽ kỹ thuật và vật liệu được chỉ định trong hồ sơ của nhà anh Thìn (như kính an toàn 8.38mm , gạch Granite vân đá, hệ thống cửa nhôm hệ…), chúng ta có thể ước tính chi phí xây dựng cho mẫu thiết kế nhà phố 3 tầng hiện đại này như sau:

a. Thi công phần thô (Xây dựng khung xương)

Phần này bao gồm: Móng, khung cột, sàn bê tông, xây tường, trát tường, đi đường ống điện nước âm tường.

  • Đơn giá tham khảo: 3.800.000đ – 4.200.000đ/m2 xây dựng.

  • Đây là phần cốt lõi quyết định sự bền vững của ngôi nhà. TechHome cam kết sử dụng sắt thép, xi măng đúng chủng loại cam kết trong hợp đồng.

b. Thi công trọn gói (Chìa khóa trao tay)

Bao gồm phần thô + phần hoàn thiện (Gạch ốp lát, sơn bả, trần thạch cao, thiết bị vệ sinh, cửa nhôm kính, tay vịn cầu thang…).

  • Đơn giá tham khảo: 6.500.000đ – 8.000.000đ/m2 xây dựng.

  • Mức giá này sẽ dao động tùy thuộc vào việc bạn chọn vật liệu “khá” hay “cao cấp”. Ví dụ: Bạn chọn lát sàn gạch Ceramic thông thường hay gạch Granite cao cấp, dùng thiết bị vệ sinh Inax hay Toto…

Lưu ý: Đối với mẫu thiết kế nhà phố 3 tầng hiện đại này, diện tích xây dựng thực tế sẽ bao gồm cả diện tích sảnh, ban công và mái. Do đó, để có con số chính xác nhất, các kỹ sư cần bóc tách khối lượng từ bản vẽ chi tiết.

Những yếu tố ảnh hưởng đến giá thành

Tại sao cùng một mẫu thiết kế nhà phố 3 tầng hiện đại mà giá nhà hàng xóm lại rẻ hơn hoặc đắt hơn nhà mình? Dưới đây là 3 yếu tố chính:

  1. Vị trí địa lý và điều kiện thi công: Xây nhà ở mặt phố rộng rãi tại Thái Nguyên sẽ có chi phí vận chuyển vật liệu rẻ hơn so với xây trong ngõ nhỏ chật hẹp ở nội thành Hà Nội.

  2. Thời điểm xây dựng: Giá sắt thép, xi măng, nhân công thay đổi theo từng quý. Xây nhà đầu năm thường có giá nhân công “mềm” hơn dịp cuối năm.

  3. Mức độ đầu tư vật liệu hoàn thiện: Đây là yếu tố làm thay đổi giá nhiều nhất. Ví dụ, trong bản vẽ chi tiết cửa đi , gia chủ dùng nhôm hệ kính dày 8.38mm. Nếu đổi sang kính hộp chân không cách âm cách nhiệt hoặc nhôm nhập khẩu cao cấp, chi phí hạng mục cửa có thể tăng gấp đôi.

Để tìm hiểu rõ hơn về tiêu chuẩn vật liệu xây dựng và các yếu tố ảnh hưởng đến chi phí, bạn có thể tham khảo thêm tại các bài viết chuyên sâu về vật liệu xây dựng cao cấp trên Wikipedia.

thiết kế nhà phố 3 tầng hiện đại

5. Quy trình làm việc chuyên nghiệp của TechHome

Nhìn vào bộ hồ sơ dày dặn bao gồm đầy đủ từ kiến trúc, kết cấu đến điện nước, chúng ta thấy được sự nghiêm túc và chuyên nghiệp của đội ngũ TechHome.

Mỗi bản vẽ đều có chữ ký kiểm duyệt của các kiến trúc sư chủ trì, đảm bảo tính pháp lý và kỹ thuật cao nhất. Từ chi tiết nhỏ như cái tay vịn cầu thang gỗ , đến chi tiết cửa sổ nhôm kính, tất cả đều được quy định rõ ràng về kích thước, vật liệu. Điều này giúp gia chủ tránh được những phát sinh không đáng có trong quá trình thi công – nỗi ám ảnh của bất kỳ ai khi làm nhà.

Khi bạn cầm trên tay một bộ hồ sơ thiết kế nhà phố 3 tầng hiện đại chi tiết như thế này, bạn đã nắm chắc 50% sự thành công của ngôi nhà. 50% còn lại nằm ở việc lựa chọn nhà thầu thi công uy tín.

6. Lời kết: Hơn cả một ngôi nhà, đó là tổ ấm

Ngôi nhà của anh Thìn tại Thái Nguyên mà TechHome thực hiện không chỉ là những khối bê tông vô tri. Đó là nơi che chở, nơi bão dừng sau cánh cửa, nơi tiếng cười con trẻ vang lên mỗi ngày.

Mẫu thiết kế nhà phố 3 tầng hiện đại này là minh chứng cho việc bạn hoàn toàn có thể sở hữu một không gian sống đẳng cấp, tiện nghi và thẩm mỹ mà không cần phải sở hữu một diện tích đất quá “khủng” hay ngân sách khổng lồ. Quan trọng là tư duy thiết kế và sự bố trí hợp lý.

Nếu bạn đang ấp ủ dự định xây dựng một tổ ấm cho riêng mình, đừng ngần ngại tìm kiếm những giải pháp tối ưu nhất. Một bản thiết kế nhà phố 3 tầng hiện đại có thể chính là chìa khóa mở ra cánh cửa hạnh phúc cho gia đình bạn.

Hãy để lại bình luận bên dưới nếu bạn muốn biết thêm chi phí dự toán cho mẫu nhà này, hoặc chia sẻ ý kiến của bạn về thiết kế của TechHome nhé!


Thông tin liên hệ tư vấn & thiết kế:

  • Công ty Cổ phần Kiến trúc và Xây dựng TechHome

  • Hotline hỗ trợ kỹ thuật: 0364.04.2222 – 0387.60.3333

  • Xem thêm các dự án nổi bật khác của Techhome tại https://nhadeptechhome.vn/

Để lại một bình luận

Email của bạn sẽ không được hiển thị công khai. Các trường bắt buộc được đánh dấu *

    Vui lòng nhấn nút YÊU CẦU TƯ VẤN và đợi 1 - 2 giây đến khi thấy thông báo thành công

    YÊU CẦU TƯ VẤN