Kiến trúc tân cổ điển luôn có một sức hút mãnh liệt bởi vẻ đẹp sang trọng, trường tồn với thời gian. Khi kết hợp cùng hệ mái Nhật thanh thoát, phong cách này càng trở nên hoàn hảo, phù hợp với khí hậu và thẩm mỹ Á Đông. Hôm nay, TechHome xin giới thiệu đến quý khách hàng một tuyệt phẩm kiến trúc mới nhất: Biệt thự 2 tầng mái Nhật tân cổ điển do chúng tôi thiết kế cho gia đình anh Du tại Chương Mỹ, Hà Nội.
Đây không chỉ là một ngôi nhà, mà là một tác phẩm nghệ thuật, nơi khẳng định vị thế của gia chủ và là chốn đi về bình yên nhất. Hãy cùng đi sâu vào phân tích vẻ đẹp và công năng của công trình này.
1. Tổng quan công trình biệt thự 2 tầng mái Nhật tân cổ điển
Trước khi đi vào chi tiết, hãy cùng điểm qua những thông tin cơ bản nhất về dự án này. Đây là cơ sở để các gia chủ khác có thể tham khảo và ướm thử vào lô đất của gia đình mình.
-
Tên công trình: Nhà ở gia đình.
-
Chủ đầu tư: Anh Du.
-
Địa điểm xây dựng: Chương Mỹ – Hà Nội.
-
Đơn vị tư vấn thiết kế: Công ty Cổ phần Kiến trúc và Xây dựng TechHome.
-
Phong cách kiến trúc: Biệt thự 2 tầng mái Nhật tân cổ điển.
-
Kích thước xây dựng: khoảng 10m x 14m (Diện tích sàn tầng 1 khoảng 131m2).
Với diện tích đất rộng rãi tại ngoại thành Hà Nội, anh Du mong muốn sở hữu một không gian sống thoáng đãng, tiện nghi nhưng phải toát lên vẻ sang trọng. Mẫu biệt thự 2 tầng mái Nhật tân cổ điển chính là lời giải xuất sắc nhất mà các kiến trúc sư TechHome dành cho bài toán này.

2. Vẻ đẹp ngoại thất: Sự giao thoa giữa cổ điển và hiện đại
Nhìn vào phối cảnh 3D của công trình, chúng ta ngay lập tức bị thu hút bởi sự bề thế và thanh lịch.
2.1. Hệ mái Nhật – Điểm nhấn của sự thanh thoát
Khác với mái Thái cao vút, hệ mái của mẫu biệt thự 2 tầng mái Nhật tân cổ điển này có độ dốc vừa phải, mở rộng ra các hướng khác nhau. Thiết kế này không chỉ giúp thoát nước mưa nhanh, chống nóng hiệu quả vào mùa hè miền Bắc mà còn tạo nên sự cân đối, đầm ấm cho tổng thể ngôi nhà. Màu ngói xanh than được lựa chọn (fuji hoặc ngói sóng) cực kỳ nổi bật trên nền sơn trắng sứ chủ đạo.
2.2. Kiến trúc mặt tiền và hệ cột trụ
Mặt tiền của ngôi nhà tuân thủ nghiêm ngặt các tỷ lệ vàng trong kiến trúc tân cổ điển. Hệ thống cột trụ vuông vắn, vững chãi tại sảnh chính được trang trí bằng các phào chỉ tinh tế ở đầu và chân cột, nhưng không quá rườm rà.
Sự kết hợp giữa các đường kẻ chỉ lõm chạy dọc thân tường và các chi tiết phù điêu, hoa văn đắp nổi nhẹ nhàng tại các vòm cửa sổ tạo nên sự mềm mại, giảm bớt sự thô cứng của các khối bê tông.
2.3. Ban công và Giàn hoa trang trí
Một điểm nhấn đắt giá của mẫu biệt thự 2 tầng mái Nhật tân cổ điển nhà anh Du chính là khu vực ban công và sân chơi tầng 2. Lan can được làm bằng nhôm đúc nghệ thuật mạ vàng kim sang trọng, tạo sự tương phản mạnh mẽ với màu trắng của tường.
Đặc biệt, khu vực sân chơi (Sân chơi 24.5m2) được thiết kế một giàn hoa bê tông (hoặc hệ lam gỗ nhựa) kết hợp kính cường lực lấy sáng. Đây sẽ là nơi gia chủ thưởng trà, trồng lan hoặc tổ chức những bữa tiệc nướng BBQ ngoài trời.

3. Phân tích công năng sử dụng chi tiết
Vẻ đẹp bên ngoài thu hút ánh nhìn, nhưng công năng bên trong mới là yếu tố giữ chân các thành viên trong gia đình. Với bản vẽ kỹ thuật chi tiết từ hồ sơ thiết kế, TechHome đã tối ưu hóa từng mét vuông sử dụng cho mẫu biệt thự 2 tầng mái Nhật tân cổ điển này.
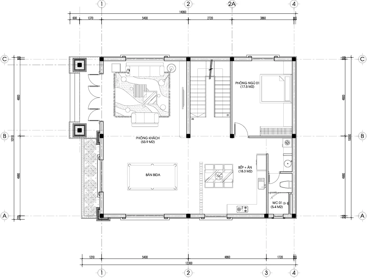
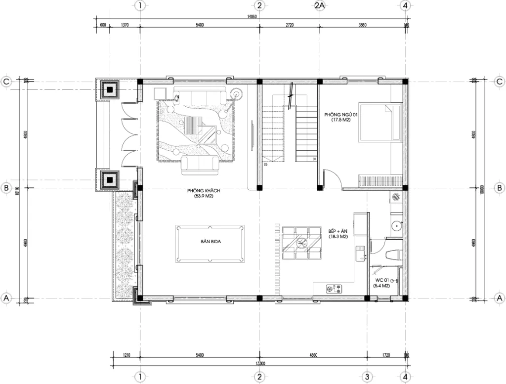
3.1. Mặt bằng công năng Tầng 1 (Diện tích 131m2)
Tầng 1 được thiết kế là không gian sinh hoạt chung rộng lớn và cởi mở.
-
Phòng khách (53.9m2): Đây là một diện tích cực kỳ lý tưởng. Không gian này đủ rộng để bố trí một bộ sofa gỗ sồi kích thước lớn và đặc biệt là có khu vực riêng đặt bàn Bida giải trí. Điều này cho thấy gia chủ là người rất biết hưởng thụ cuộc sống và hiếu khách.
-
Bếp + Ăn (18.3m2): Khu vực bếp nấu và phòng ăn được liên thông với phòng khách qua sảnh thang, tạo sự liền mạch nhưng vẫn đảm bảo sự riêng tư cần thiết.
-
Phòng ngủ 01 (17.5m2): Được bố trí kín đáo phía trong, phù hợp cho ông bà hoặc người lớn tuổi để tránh việc leo cầu thang.
-
WC chung (5.4m2): Đặt tại vị trí thuận tiện gần bếp và phòng ngủ.
Sự phân bổ này giúp cho luồng giao thông trong nhà luôn thông thoáng. Từ sảnh chính bước vào là sự choáng ngợp của phòng khách lớn, thể hiện đẳng cấp của mẫu biệt thự 2 tầng mái Nhật tân cổ điển.

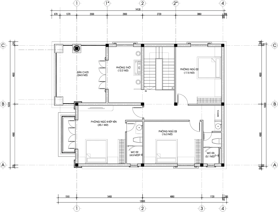
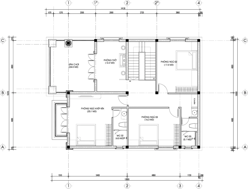
3.2. Mặt bằng công năng Tầng 2 (Diện tích 134m2)
Tầng 2 là không gian nghỉ ngơi riêng tư và tâm linh.
-
Phòng thờ (12.2m2): Được đặt ở vị trí trang trọng nhất, hướng ra mặt tiền (hướng ban công), đảm bảo yếu tố phong thủy “tọa cát hướng cát”.
-
Phòng ngủ khép kín (Master – 20.1m2): Dành cho vợ chồng gia chủ, có vệ sinh riêng (WC 02 – 4.5m2) đảm bảo sự tiện nghi tối đa.
-
Hai phòng ngủ thường (16.3m2 và 17.5m2): Dành cho các con, diện tích đủ rộng để bố trí giường, tủ, bàn học và không gian vui chơi.
-
Sân chơi (24.5m2): Không gian mở kết nối với thiên nhiên, nơi thư giãn.
-
WC chung (5.1m2): Phục vụ cho 2 phòng ngủ thường và khách khi lên tầng 2.

3.3. Tầng áp mái và Mái
Hồ sơ thiết kế cũng thể hiện rõ mặt bằng áp mái với ô thăm mái kích thước 800x800mm và vị trí đặt téc nước, thái dương năng, đảm bảo kỹ thuật và thẩm mỹ, không làm hỏng hình khối của biệt thự 2 tầng mái Nhật tân cổ điển.
4. Tại sao nên chọn thiết kế Biệt thự 2 tầng mái Nhật Tân cổ điển?
Không phải ngẫu nhiên mà anh Du tại Chương Mỹ lại lựa chọn phong cách này. Dưới đây là những lý do khiến mẫu nhà này trở thành xu hướng “quốc dân”:
-
Thẩm mỹ vượt thời gian: Tân cổ điển là sự chắt lọc tinh hoa. Nó lược bỏ sự cầu kỳ, rườm rà của cổ điển nhưng không quá đơn điệu như hiện đại. Mẫu biệt thự 2 tầng mái Nhật tân cổ điển vì thế mà 20-30 năm sau nhìn vẫn sang trọng.
-
Phù hợp khí hậu: Hệ mái Nhật có độ đua ra lớn giúp che nắng, che mưa tốt cho hệ tường và cửa sổ. Tường dày 220mm (tường đôi) thường được sử dụng trong các thiết kế này giúp cách nhiệt cực tốt.
-
Công năng linh hoạt: Với diện tích sàn hơn 130m2/sàn, việc bố trí 4 phòng ngủ (như nhà anh Du) là vô cùng thoải mái, đáp ứng nhu cầu của gia đình 3 thế hệ.
5. Vật liệu xây dựng và hoàn thiện
Để tạo nên một biệt thự 2 tầng mái Nhật tân cổ điển đẹp đúng chất, việc lựa chọn vật liệu là vô cùng quan trọng. Dựa trên hồ sơ kỹ thuật thi công của TechHome, chúng tôi đề xuất các vật liệu sau:
-
Cửa: Hệ thống cửa chính dùng gỗ Lim Nam Phi để tạo sự bề thế. Cửa sổ sử dụng nhôm hệ Xingfa kết hợp kính dán an toàn 8.38mm hoặc 6.38mm giúp lấy sáng tối đa và cách âm.
-
Sàn: Lát gạch Granite kích thước lớn (800×800) ở phòng khách để tạo cảm giác rộng rãi, sàn gỗ ở các phòng ngủ để tạo sự ấm cúng.
-
Cầu thang: Mặt bậc ốp đá Granite đen, cổ bậc trắng, tay vịn gỗ hoặc kính.
-
Sơn ngoại thất: Sử dụng dòng sơn cao cấp (Dulux, Jotun) có khả năng chống thấm, chống bám bụi và bền màu với thời gian.

6. Báo giá thiết kế và xây dựng Biệt thự 2 tầng mái Nhật Tân cổ điển
Một trong những câu hỏi lớn nhất của khách hàng là: “Xây dựng ngôi nhà như thế này hết bao nhiêu tiền?”. TechHome xin gửi tới quý khách bảng dự toán chi phí (tham khảo) áp dụng cho năm 2024-2025.
Lưu ý: Bảng giá dưới đây mang tính chất ước tính dựa trên mức giá thị trường chung và quy mô công trình nhà anh Du (Tổng diện tích xây dựng khoảng 270m2 sàn + 50% diện tích mái).
6.1. Chi phí thiết kế kiến trúc
Đối với biệt thự 2 tầng mái Nhật tân cổ điển, yêu cầu về độ tỉ mỉ trong phào chỉ và tỷ lệ hình khối cao hơn nhà hiện đại.
-
Đơn giá thiết kế: 100.000 VNĐ/m2.
-
Tổng chi phí thiết kế: ~ 27.000.000 VNĐ.
6.2. Chi phí thi công xây dựng (Dự toán)
| Hạng mục | Đơn giá (VNĐ/m2) | Diện tích ước tính | Thành tiền (VNĐ) |
| Xây dựng phần thô | 4.000.000 – 4.500.000 | 270m2 + Mái | ~ 1.2 tỷ – 1.4 tỷ |
| Hoàn thiện (Gói khá) | 2.500.000 – 3.500.000 | 270m2 | ~ 700 tr – 950 tr |
| Tổng cộng (Chìa khóa trao tay) | 6.500.000 – 8.000.000 | – | ~ 1.9 tỷ – 2.4 tỷ |
Gói hoàn thiện bao gồm: Ốp lát, sơn bả, thiết bị vệ sinh, trần thạch cao, hệ thống cửa, điện nước, ban công nhôm đúc… (Chưa bao gồm đồ nội thất rời như giường, tủ, bàn ghế sofa).
Giá trị thực tế sẽ phụ thuộc vào thời điểm thi công, vị trí địa lý (như tại Chương Mỹ giá nhân công có thể mềm hơn nội thành), và chủng loại vật liệu gia chủ lựa chọn. Để có báo giá chính xác nhất cho biệt thự 2 tầng mái Nhật tân cổ điển, quý khách vui lòng liên hệ trực tiếp hotline của TechHome.

7. Quy trình làm việc tại TechHome
Để cho ra đời bộ hồ sơ chất lượng như nhà anh Du, TechHome tuân thủ quy trình làm việc chuyên nghiệp:
-
Khảo sát hiện trạng: Đo đạc đất, xem hướng gió, nắng và phong thủy.
-
Lên phương án mặt bằng: Bố trí công năng phù hợp nhu cầu (như việc anh Du yêu cầu có bàn Bida).
-
Dựng phối cảnh 3D: Giúp chủ nhà hình dung rõ ngôi biệt thự 2 tầng mái Nhật tân cổ điển trong tương lai.
-
Triển khai hồ sơ kỹ thuật: Kết cấu, điện nước, kiến trúc chi tiết (như trong các hình ảnh bản vẽ đính kèm).
-
Dự toán và Thi công: Bóc tách khối lượng và tiến hành xây dựng.

8. Lời kết
Công trình nhà anh Du tại Chương Mỹ là minh chứng rõ nét cho năng lực thiết kế và sự thấu hiểu khách hàng của TechHome. Mẫu biệt thự 2 tầng mái Nhật tân cổ điển này không chỉ đáp ứng về mặt thẩm mỹ với những đường nét phào chỉ tinh tế, hệ mái bề thế mà còn giải quyết bài toán công năng một cách xuất sắc.
Nếu bạn đang sở hữu một mảnh đất và ấp ủ giấc mơ về một ngôi nhà sang trọng, đẳng cấp nhưng vẫn ấm cúng, hãy để TechHome đồng hành cùng bạn.
Liên hệ ngay với chúng tôi để nhận tư vấn và báo giá chi tiết:
-
CÔNG TY CỔ PHẦN KIẾN TRÚC VÀ XÂY DỰNG TECHHOME
-
Hotline/Zalo: 0364.04.2222 – 0387.60.3333
Đừng ngần ngại gọi cho chúng tôi để biến ý tưởng về căn biệt thự 2 tầng mái Nhật tân cổ điển của bạn thành hiện thực ngay hôm nay!
Xem thêm các dự án nổi bật khác của Techhome tại https://nhadeptechhome.vn/
