Giữa nhịp sống hối hả của thủ đô, xu hướng tìm về vùng ven để xây dựng một không gian sống xanh, thoáng đãng đang lên ngôi. Không cần quá đồ sộ hay cao tầng, một ngôi nhà vừa đủ tiện nghi, ấm cúng và thẩm mỹ là ước mơ của rất nhiều gia đình. Thấu hiểu điều đó, Techhome xin giới thiệu đến quý khách hàng mẫu nhà cấp 4 mái Nhật mang mã số 375 – một “tác phẩm” tâm huyết mà chúng tôi vừa hoàn thiện hồ sơ thiết kế cho gia đình chị Phương tại Sóc Sơn, Hà Nội.
Đây không chỉ là một nơi để ở, mà là nơi để “trở về”. Hãy cùng Techhome khám phá chi tiết ngôi nhà này nhé.
1. Thông Tin Tổng Quan Dự Án
Trước khi đi sâu vào chi tiết, mời quý vị điểm qua những thông số cơ bản của dự án này để dễ dàng hình dung:
-
Chủ đầu tư: Chị Phương
-
Địa điểm xây dựng: Sóc Sơn, Hà Nội
-
Đơn vị thiết kế: Công ty Cổ phần Kiến trúc và Xây dựng Techhome
-
Loại hình: Nhà ở gia đình (Nhà cấp 4)
-
Phong cách: Kiến trúc hiện đại, mái Nhật.
-
Mã số hồ sơ: 375
-
Công năng chính: 1 Phòng khách, 1 Bếp + Ăn, 2 Phòng ngủ, 2 WC.
Sở dĩ mẫu nhà cấp 4 mái Nhật này được chị Phương lựa chọn ngay từ cái nhìn đầu tiên bởi nó đáp ứng hoàn hảo tiêu chí: “Tinh tế bên ngoài – Tiện nghi bên trong”.

2. Vẻ Đẹp Ngoại Thất: Sự Giao Thoa Giữa Hiện Đại Và Truyền Thống
Nhìn vào phối cảnh mặt tiền, điều đầu tiên thu hút ánh nhìn chính là hệ mái Nhật thanh thoát. Khác với mái Thái cao vút, mẫu nhà cấp 4 mái Nhật có độ dốc vừa phải, tỏa ra các hướng tạo cảm giác cân đối, vững chãi và cực kỳ sang trọng.
Điểm nhấn kiến trúc “Mắt Ngọc”
Điểm “đắt giá” nhất trong thiết kế ngoại thất của ngôi nhà này chính là ô cửa sổ tròn lớn ở mặt tiền, được ốp đá xám xung quanh tạo thành hình khối nổi bật trên nền sơn trắng. Đây không chỉ là cửa sổ lấy sáng, mà còn như một “con mắt” nghệ thuật, phá vỡ sự khô cứng của các mảng tường vuông vức thường thấy ở các mẫu nhà cấp 4 mái Nhật thông thường. Chi tiết này mang lại vẻ mềm mại, duyên dáng và rất “tình” cho ngôi nhà.
Phối màu và vật liệu
Techhome sử dụng tông màu trắng sứ làm chủ đạo, kết hợp với màu ghi xám của ngói và đá ốp chân tường.
-
Màu trắng: Giúp ngôi nhà trông rộng hơn, sáng sủa và không bao giờ lỗi mốt.
-
Đá ốp chân tường: Bảo vệ ngôi nhà khỏi rêu mốc, bụi bẩn, đồng thời tạo cảm giác vững chãi.
-
Hệ cửa nhôm kính: Toàn bộ hệ thống cửa đi và cửa sổ đều sử dụng nhôm hệ kính cường lực . Điều này giúp tối đa hóa ánh sáng tự nhiên, giúp không gian bên trong luôn tràn ngập năng lượng.
Việc lựa chọn mẫu nhà cấp 4 mái Nhật với phong cách này cho thấy gu thẩm mỹ tinh tế của chị Phương: yêu thích sự giản đơn nhưng không hề đơn điệu.

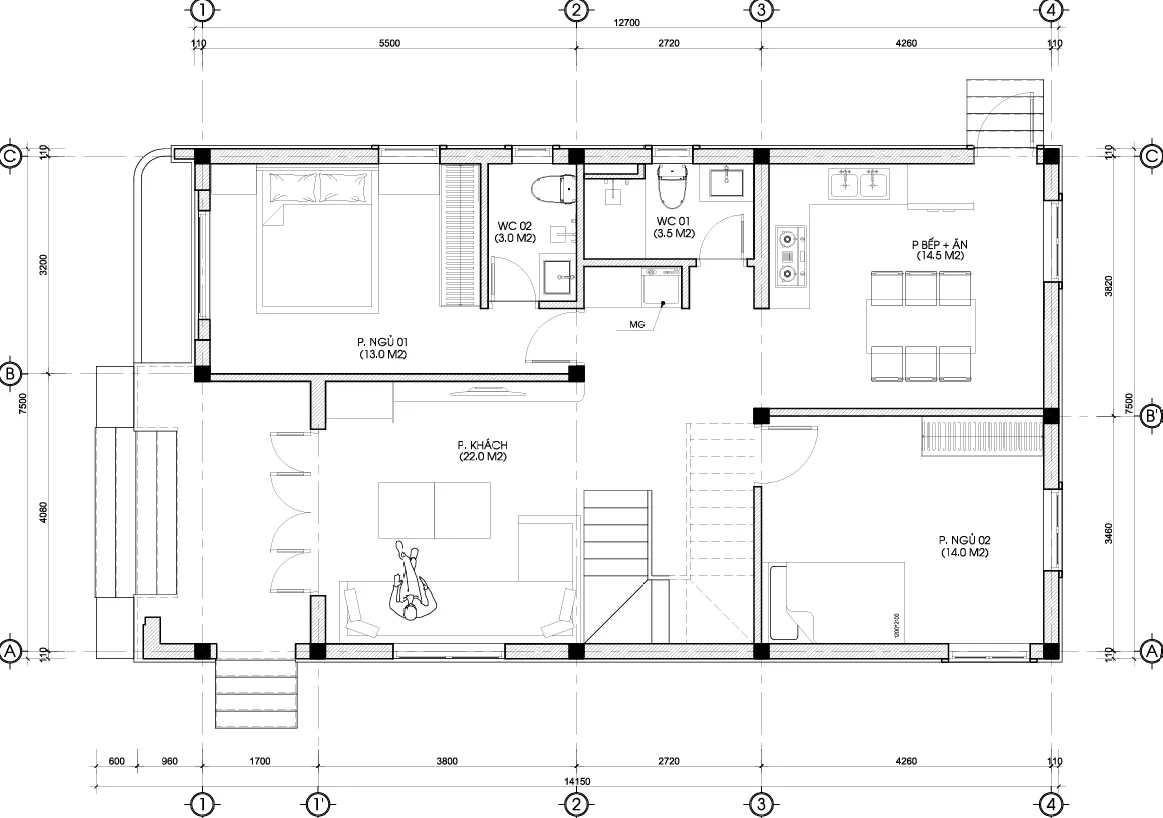
3. Khám Phá Công Năng: Tối Ưu Hóa Diện Tích Sử Dụng
Một mẫu nhà cấp 4 mái Nhật đẹp không chỉ ở bên ngoài mà quan trọng nhất là bố trí công năng phải khoa học, thuận tiện cho sinh hoạt hàng ngày. Với diện tích xây dựng khoảng 7.5m x 12.7m, các kiến trúc sư Techhome đã tính toán kỹ lưỡng từng mét vuông.
Dựa trên bản vẽ mặt bằng bố trí nội thất tầng 1, công năng ngôi nhà được phân bổ như sau:
Phòng Khách (22.0 m2) – Trái tim của ngôi nhà
Bước qua sảnh chính là không gian phòng khách rộng 22m2. Đây là diện tích lý tưởng cho một mẫu nhà cấp 4 mái Nhật quy mô gia đình. Phòng khách được bố trí ngay trung tâm, kết nối trực tiếp với sảnh và các không gian khác, tạo sự thông thoáng tối đa. Tại đây, gia chủ có thể bố trí một bộ sofa lớn, kệ tivi hiện đại mà vẫn còn nhiều khoảng trống để di chuyển.
Phòng Bếp + Ăn (14.5 m2) – Giữ lửa yêu thương
Liên thông với phòng khách (ngăn cách nhẹ nhàng bằng vách ngăn hoặc lam gỗ) là khu vực Bếp và Ăn rộng 14.5m2. Thiết kế này giúp bà nội trợ vừa nấu nướng vừa có thể trò chuyện với người thân ở phòng khách. Hệ thống cửa sổ lớn và cửa phụ dẫn ra bên hông nhà giúp mùi thức ăn thoát ra ngoài dễ dàng, không ám vào các phòng khác – một ưu điểm lớn của mẫu nhà cấp 4 mái Nhật do Techhome thiết kế.
Hệ thống 02 Phòng ngủ – Riêng tư và Ấm áp
Ngôi nhà được thiết kế với 2 phòng ngủ, phù hợp cho gia đình trẻ hoặc cặp vợ chồng lớn tuổi muốn an hưởng tuổi già:
-
Phòng ngủ 01: Diện tích 13.0m2 kết hợp với WC chung 3m2.
-
Phòng ngủ 02: Diện tích 14.0m2, rộng rãi hơn một chút, có cửa sổ lớn đón gió trời.
Cả hai phòng ngủ trong mẫu nhà cấp 4 mái Nhật này đều vuông vắn, dễ kê giường tủ, bàn trang điểm mà không bị góc chết.
Khu vệ sinh và giặt phơi
-
WC 01: Diện tích 3.5m2, dùng chung cho cả nhà.
Đặc biệt, khu vực đặt máy giặt (MG) được bố trí gọn gàng gần WC, thuận tiện cho việc cấp thoát nước.

4. Tại Sao Chị Phương Chọn Mẫu Nhà Cấp 4 Mái Nhật Của Techhome?
Không phải ngẫu nhiên mà chị Phương tại Sóc Sơn lại “chốt” phương án mẫu nhà cấp 4 mái Nhật này ngay sau khi xem bản vẽ sơ bộ. Dưới đây là những lý do khiến mẫu nhà này trở thành “best-seller” tại Techhome:
-
Chống nóng và chống thấm tuyệt vời: Hệ mái Nhật có độ dốc vừa phải giúp thoát nước mưa nhanh chóng, không lo ứ đọng, thấm dột. Lớp đệm không khí phía dưới mái giúp ngôi nhà luôn mát mẻ vào mùa hè Hà Nội oi bức và ấm áp vào mùa đông.
-
Tiết kiệm chi phí: So với nhà cao tầng, mẫu nhà cấp 4 mái Nhật có chi phí xây dựng hợp lý hơn, thời gian thi công nhanh, không tốn kém chi phí ép cọc quá sâu (tùy nền đất).
-
Gần gũi thiên nhiên: Thiết kế nhà cấp 4 giúp con người kết nối với mặt đất, sân vườn dễ dàng hơn. Chỉ cần mở cửa là thấy cây xanh, rất tốt cho sức khỏe và tinh thần.
-
Phong thủy tốt: Trong quan niệm Á Đông, những ngôi nhà mái Nhật với thế “nhà cao cửa rộng”, cân đối thường mang lại vượng khí, sự bình an cho gia chủ.

5. Báo Giá Thiết Kế Và Thi Công Mẫu Nhà Cấp 4 Mái Nhật (Tham Khảo)
Rất nhiều khách hàng khi xem mẫu nhà cấp 4 mái Nhật MS 375 đều thắc mắc: “Xây ngôi nhà đẹp như thế này hết bao nhiêu tiền?”.
Là đơn vị trực tiếp thiết kế, Techhome xin đưa ra bảng dự toán chi phí mang tính chất tham khảo (áp dụng cho thời điểm 2024-2025) để quý khách dễ dàng chuẩn bị tài chính.
Lưu ý: Chi phí thực tế phụ thuộc vào giá vật liệu tại địa phương, thời điểm khởi công và loại vật liệu hoàn thiện mà gia chủ lựa chọn.
Bảng Dự Toán Chi Phí Xây Dựng (Diện tích sàn ~95m2 – 100m2)
| Hạng Mục | Đơn Giá Tham Khảo (VNĐ/m2) | Thành Tiền Ước Tính (VNĐ) | Ghi Chú |
| 1. Chi phí Thiết kế | 100.000 VNĐ | ~10.000.000 VNĐ | |
| 2. Xây dựng phần thô | 3.500.000 – 3.800.000 | ~350.000.000 – 380.000.000 | Bao gồm nhân công + vật liệu thô (cát, đá, xi măng, sắt thép…) |
| 3. Hoàn thiện cơ bản | 5.000.000 – 5.500.000 | ~500.000.000 – 550.000.000 | Chìa khóa trao tay (đã bao gồm sơn, lát nền, thiết bị vệ sinh cơ bản, cửa nhôm kính…) |
| 4. Hoàn thiện cao cấp | > 6.000.000 | > 600.000.000 | Sử dụng vật liệu nhập khẩu, gỗ tự nhiên, thiết bị vệ sinh thông minh… |
| 5. Chi phí mái Nhật | Hệ số mái ~1.4 – 1.5 | Tính riêng phần ngói | Mái ngói khung kèo thép siêu nhẹ hoặc đổ bê tông dán ngói. |
Tổng chi phí dự kiến để hoàn thiện mẫu nhà cấp 4 mái Nhật đẹp như nhà chị Phương rơi vào khoảng từ 700 triệu – 850 triệu đồng.
Đây là một mức đầu tư cực kỳ hợp lý cho một ngôi nhà bền vững, thẩm mỹ đi cùng năm tháng. Techhome cam kết minh bạch trong từng hạng mục báo giá, không phát sinh chi phí vô lý.

6. Chi Tiết Kỹ Thuật Đáng Lưu Ý Của Công Trình 375
Để tạo nên sự bền vững cho mẫu nhà cấp 4 mái Nhật này, các kỹ sư Techhome đã đưa ra các giải pháp kỹ thuật tối ưu:
-
Kết cấu móng: Tùy thuộc vào địa chất Sóc Sơn (thường là đất đồi hoặc đất thổ cư lâu năm), chúng tôi tư vấn sử dụng móng băng hoặc móng đơn gia cố để đảm bảo chịu lực tốt cho nhà 1 tầng.
-
Hệ thống điện nước: Được thiết kế âm tường, sử dụng ống gen bảo vệ an toàn cháy nổ. Bản vẽ mặt bằng trần đèn bố trí hệ thống đèn downlight âm trần và đèn hắt, tạo không gian ấm cúng và sang trọng vào ban đêm.
-
Lát nền: Sử dụng gạch Granite vân đá kích thước 800×800 hoặc 600×600 , giúp sàn nhà luôn bóng đẹp, dễ lau chùi và mở rộng không gian thị giác.
-
Chiều cao thông thủy: Chiều cao tầng 1 là 3.8m đến 4.19m (tính đến đỉnh mái). Đây là chiều cao lý tưởng giúp mẫu nhà cấp 4 mái Nhật luôn thoáng khí, đối lưu gió tốt, tránh cảm giác bí bách.
7. Quy Trình Làm Việc Tại Techhome
Nếu quý khách ưng ý với mẫu nhà cấp 4 mái Nhật này và muốn triển khai cho gia đình mình, Techhome xin giới thiệu quy trình làm việc chuyên nghiệp 6 bước:
-
Tiếp nhận thông tin: Lắng nghe nhu cầu, diện tích đất, và mức đầu tư dự kiến.
-
Khảo sát hiện trạng: KTS trực tiếp đo đạc, xem hướng đất, hướng gió tại thực địa.
-
Lên phương án mặt bằng & Phối cảnh 3D: Giúp khách hàng hình dung rõ nét ngôi nhà tương lai.
-
Triển khai hồ sơ kỹ thuật: Kết cấu, điện, nước, dự toán chi tiết .
-
Bàn giao & Giám sát tác quyền: Hỗ trợ giải đáp thắc mắc trong quá trình thợ thi công.
-
Thi công trọn gói (nếu có): Cam kết tiến độ, chất lượng và bảo hành dài hạn.

Lời Kết
Công trình mẫu nhà cấp 4 mái Nhật của gia đình chị Phương tại Sóc Sơn là minh chứng rõ nét cho tư duy thiết kế của Techhome: “Đẹp nhưng phải Thật”. Chúng tôi không vẽ nên những ngôi nhà chỉ để ngắm, chúng tôi xây dựng những tổ ấm để sống, để yêu thương và gắn kết.
Dù bạn đang sở hữu mảnh đất rộng lớn ở quê hay một diện tích vừa phải ở ngoại thành, mẫu nhà cấp 4 mái Nhật luôn là sự lựa chọn an toàn, tinh tế và kinh tế.
Nếu bạn yêu thích thiết kế này, hoặc muốn tùy chỉnh nó để phù hợp với nhu cầu riêng của gia đình mình (thêm phòng ngủ, nới rộng phòng khách…), đừng ngần ngại liên hệ với Techhome. Chúng tôi luôn sẵn sàng lắng nghe và hiện thực hóa giấc mơ an cư của bạn.
CÔNG TY CỔ PHẦN KIẾN TRÚC VÀ XÂY DỰNG TECHHOME
-
Hotline/Zalo: 0364.04.2222 / 0387.60.3333
-
Website: https://nhadeptechhome.vn/
Hãy gọi ngay cho chúng tôi để nhận tư vấn miễn phí về mẫu nhà cấp 4 mái Nhật đẹp nhất 2025!
