Bạn đang sở hữu một lô đất mặt phố đắc địa và đang loay hoay tìm kiếm một phương án thiết kế vừa đủ sang trọng để khẳng định vị thế, vừa đủ công năng để tối ưu hóa việc kinh doanh? Vậy thì mẫu nhà phố tân cổ điển 4 tầng của gia đình anh Thành tại Bảo Yên, Lào Cai mà Techhome vừa hoàn thiện hồ sơ thiết kế dưới đây chính là câu trả lời lý tưởng nhất dành cho bạn.
Lào Cai – vùng đất biên cương đang chuyển mình mạnh mẽ, nhu cầu về những không gian sống “chất” và có gu thẩm mỹ cao ngày càng lớn. Hiểu được điều đó, đội ngũ kiến trúc sư (KTS) Techhome đã dành trọn tâm huyết để kiến tạo nên một công trình không chỉ đẹp ở bản vẽ mà còn bền vững với thời gian.
1. Thông tin tổng quan dự án
Trước khi đi sâu vào vẻ đẹp kiến trúc, hãy cùng điểm qua các thông số kỹ thuật ấn tượng của công trình này:
-
Chủ đầu tư: Anh Thành.
-
Địa điểm xây dựng: Huyện Bảo Yên, Tỉnh Lào Cai.
-
Loại hình kiến trúc: Nhà phố (Nhà ống) phong cách Tân cổ điển.
-
Quy mô: 4 tầng + 1 tum.
-
Diện tích sàn xây dựng: 208m²/sàn (Tổng diện tích sử dụng 870m²).
-
Đơn vị thiết kế: Công ty Cổ phần Kiến trúc và Xây dựng Techhome.
-
Công năng chính: Tầng 1 làm khu vực lễ tân, khách chờ, garage và bếp phụ. Tầng 2, 3, 4 là không gian nghỉ ngơi với hệ thống phòng ngủ khép kín sang trọng.
Dưới góc nhìn của một chuyên gia, mẫu nhà phố tân cổ điển 4 tầng này không chỉ đơn thuần là một ngôi nhà để ở. Nó là sự tính toán kỹ lưỡng giữa bài toán kinh tế (khai thác mặt bằng) và giá trị hưởng thụ (tiện nghi cao cấp).

2. Kiến trúc ngoại thất: Vẻ đẹp vượt thời gian của mẫu nhà phố tân cổ điển 4 tầng
Tại sao lại là Tân cổ điển? Giữa muôn vàn phong cách từ Hiện đại đến Địa Trung Hải, anh Thành vẫn chọn lối kiến trúc Pháp nhẹ nhàng này. Lý do rất đơn giản: Nó không bao giờ lỗi mốt.
Sự sang trọng từ cái nhìn đầu tiên
Nhìn vào phối cảnh 3D, bạn sẽ bị thu hút ngay bởi sự bề thế. Mặt tiền của mẫu nhà phố tân cổ điển 4 tầng được chia làm 3 khối dọc rõ rệt, tạo cảm giác vững chãi như một dinh thự thu nhỏ giữa lòng phố thị Bảo Yên.
Toàn bộ tầng 1 được chúng tôi tư vấn ốp đá Granite màu vàng hoàng gia. Việc ốp đá không chỉ giúp công trình trông sang trọng hơn mà còn bảo vệ chân tường khỏi tác động của thời tiết vùng cao, vốn có độ ẩm lớn và mưa nhiều. Các thức cột Ionic trang nhã, chạy dọc từ tầng 2 lên đến tầng 4, giúp ngôi nhà trông thanh thoát và cao ráo hơn hẳn.
Điểm nhấn phù điêu và hoa văn
Tinh hoa của mẫu nhà phố tân cổ điển 4 tầng nằm ở các chi tiết phào chỉ. Chúng tôi không lạm dụng hoa văn rườm rà của phong cách Cổ điển mà chắt lọc những đường nét tinh tế nhất. Hệ thống cửa sổ vòm tại khối chính tâm tạo nên nét mềm mại, đối lập với những đường thẳng mạnh mẽ của hệ thống cửa sổ khung nhôm kính Xingfa cao cấp màu xám đậm.
Sân thượng (tầng tum) được kết thúc bằng một hệ mái bằng, phía trước là bức phù điêu được đắp vẽ thủ công cực kỳ tỉ mỉ. Đây chính là “vương miện” giúp khẳng định đẳng cấp của chủ nhân ngôi nhà.

3. Giải pháp mặt bằng công năng: Khi diện tích 208m² được tối ưu hóa
Một mẫu nhà phố tân cổ điển 4 tầng có diện tích sàn lên tới 208m² là niềm mơ ước của nhiều người. Tuy nhiên, nếu không biết cách phân bổ, không gian rất dễ bị loãng hoặc bí bách. Techhome đã đưa ra giải pháp “vàng” cho anh Thành như sau:
Tầng 1: Không gian đa năng và kinh doanh
Tầng 1 được thiết kế với cốt nền cao hơn mặt sân, tạo sự tách biệt và sạch sẽ.
-
Garage (52m²): Một sức chứa cực lớn, có thể để được 2 xe ô tô và nhiều xe máy, cực kỳ thuận tiện cho gia đình và khách hàng.
-
Khu vực khách chờ & Lễ tân: Được thiết kế như một sảnh khách sạn hạng sang. Đây là nơi tiếp đón khách hàng đến giao dịch.
-
Bếp nhỏ & Phòng ngủ bảo vệ: Đảm bảo tính tiện lợi và an ninh cho toàn bộ tòa nhà 24/7.
- Phòng ngủ 01 (17.5m2) : Tích hợp vệ sinh khép kín 3.5m2 và cửa sổ thông thoáng.

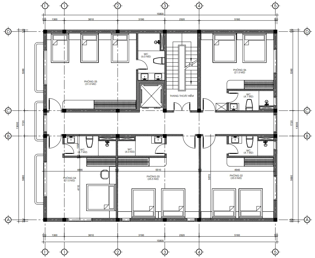
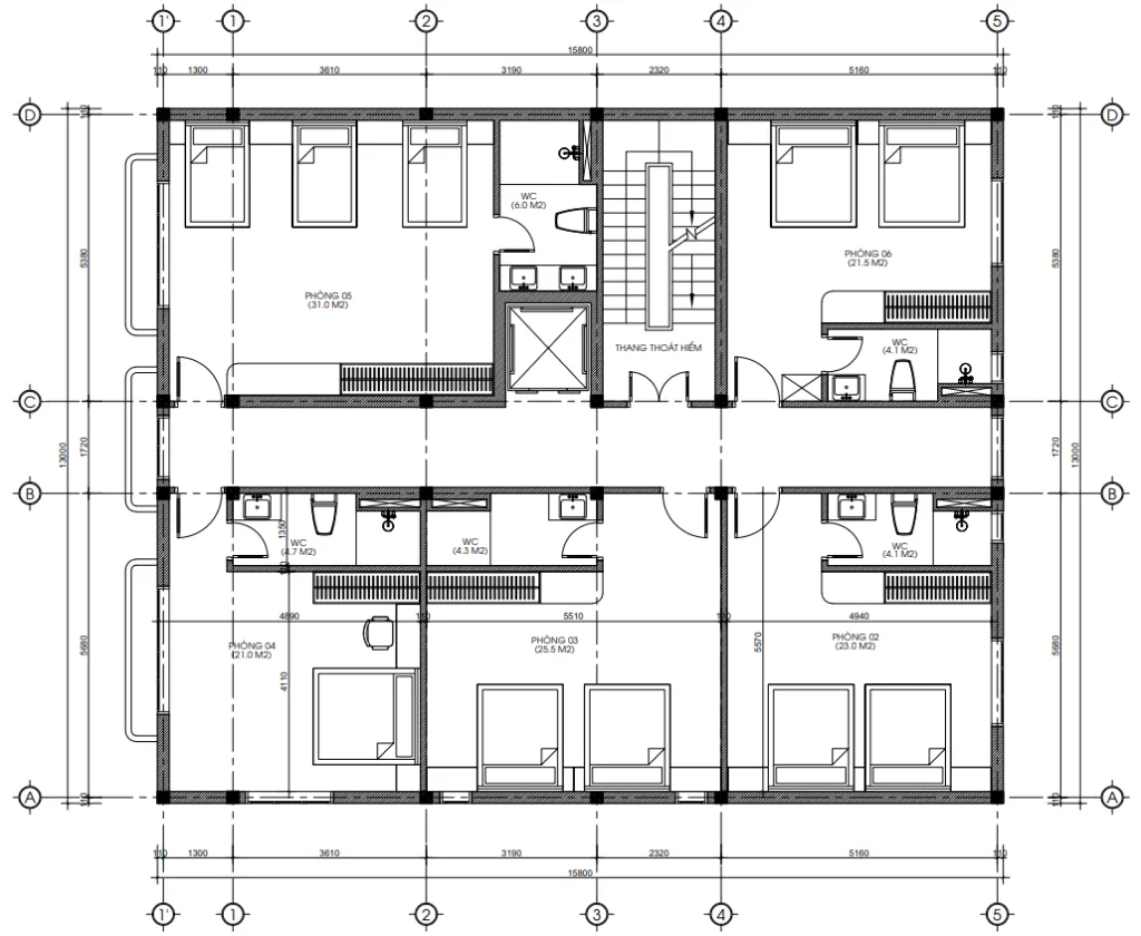
Tầng 2, 3 & 4: Thế giới riêng tư đẳng cấp
Điểm đặc biệt của mẫu nhà phố tân cổ điển 4 tầng này chính là việc bố trí các phòng ngủ như những căn hộ studio cao cấp. Mỗi tầng có 5 phòng ngủ với diện tích từ 21m² đến 31m².
-
Tất cả các phòng đều có nhà vệ sinh riêng (WC khép kín).
-
Hệ thống thang máy và thang bộ được đặt ở giữa nhà, giúp việc di chuyển giữa các tầng trở nên nhẹ nhàng, nhất là với những gia đình có người già và trẻ nhỏ.

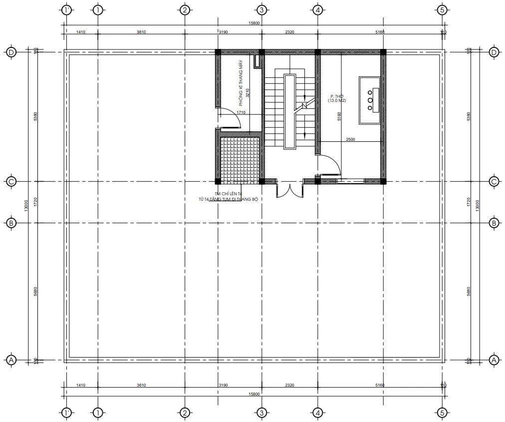
Tầng tum: Nơi hội tụ tâm linh và thư giãn
Tầng tum là khu vực của phòng thờ – nơi tôn nghiêm nhất trong nhà. Phần diện tích còn lại là sân thượng rộng thênh thang. Với tầm nhìn thoáng đãng của vùng núi rừng Lào Cai, đây sẽ là nơi anh Thành tổ chức những bữa tiệc BBQ ngoài trời hoặc đơn giản là ngồi nhâm nhi tách trà, ngắm nhìn phố phường từ trên cao.

4. Tại sao mẫu nhà phố tân cổ điển 4 tầng lại lên ngôi tại Lào Cai?
Là một chuyên gia trong ngành, tôi nhận thấy xu hướng xây dựng mẫu nhà phố tân cổ điển 4 tầng tại các tỉnh miền núi như Lào Cai, Yên Bái đang tăng mạnh. Tại sao lại như vậy?
-
Tính biểu tượng cao: Ở những vùng đang phát triển, ngôi nhà chính là bộ mặt của gia chủ. Sự bề thế của kiến trúc Tân cổ điển giúp chủ nhà tự tin hơn trong các mối quan hệ làm ăn.
-
Phù hợp với khí hậu: Hệ tường dày, mái cao và cửa sổ kính giúp cách nhiệt tốt. Mùa hè mát mẻ, mùa đông ấm áp – điều này cực kỳ quan trọng với thời tiết khắc nghiệt tại Bảo Yên.
-
Giá trị bền vững: Những mẫu nhà phố tân cổ điển 4 tầng thường có giá trị bán lại hoặc cho thuê rất cao nhờ vẻ đẹp không bị lỗi thời.

5. Bảng báo giá tham khảo thiết kế và thi công (Cập nhật 2026)
Techhome luôn minh bạch trong vấn đề tài chính. Dưới đây là mức đầu tư dự kiến cho một công trình tương tự như mẫu nhà phố tân cổ điển 4 tầng của anh Thành:
Báo giá thiết kế kiến trúc & nội thất
| Hạng mục | Đơn giá (VNĐ/m²) | Ghi chú |
| Thiết kế kiến trúc | 108.000 | Bao gồm 3D, kết cấu, điện nước |
| Thiết kế nội thất | 150.000 | Bản vẽ chi tiết đồ gỗ, décor |
| Gói Combo (Kiến trúc + Nội thất) | 250.000 |
Dự toán thi công xây dựng
| Hạng mục | Đơn giá (VNĐ/m²) | Đặc điểm vật tư |
| Thi công phần thô | 3.800.000 – 4.500.000 | Sắt Hòa Phát, xi măng bền sunfat |
| Thi công hoàn thiện (Gói khá) | 6.500.000 – 7.800.000 | Đá Granite, nhôm Xingfa, sơn Dulux |
| Thi công trọn gói (Chìa khóa trao tay) | 8.000.000 – 10.000.000 | Nội thất cao cấp, thiết bị thông minh |
Lưu ý: Đây chỉ là mức chi phí ước tính. Để nhận được báo giá chính xác và chi tiết nhất cho công trình của bạn, vui lòng liên hệ trực tiếp với chúng tôi. Hoặc để tìm hiểu rõ hơn về tiêu chuẩn vật liệu xây dựng và các yếu tố ảnh hưởng đến chi phí, bạn có thể tham khảo thêm tại các bài viết chuyên sâu về vật liệu xây dựng cao cấp trên Wikipedia.

6. Lời khuyên từ chuyên gia Techhome khi xây dựng nhà phố
Nếu bạn đang có ý định triển khai mẫu nhà phố tân cổ điển 4 tầng, hãy lưu ý 3 điều sau:
-
Đừng tiết kiệm chi phí hồ sơ thiết kế: Một bản vẽ chi tiết sẽ giúp bạn tránh được những lãng phí không đáng có khi thi công (ước tính tiết kiệm được 10-15% tổng vốn đầu tư).
-
Chú trọng hệ thống thoát nước: Với những nhà có sàn lớn 208m², việc xử lý chống thấm sân thượng và ban công là cực kỳ quan trọng để giữ cho mẫu nhà phố tân cổ điển 4 tầng luôn bền đẹp.
-
Chọn đơn vị am hiểu địa phương: Techhome đã có kinh nghiệm thực chiến tại Lào Cai, chúng tôi hiểu rõ về địa chất cũng như đội ngũ nhân công tại đây, giúp công trình hoàn thiện đúng tiến độ.

7. Kết luận
Dự án của anh Thành tại Bảo Yên là một minh chứng cho thấy: Khi tâm hồn nghệ sĩ của KTS gặp gỡ tư duy thực tế của gia chủ, chúng ta sẽ có một kiệt tác. Mẫu nhà phố tân cổ điển 4 tầng này không chỉ là nơi để che mưa che nắng, mà là nơi lưu giữ những khoảnh khắc hạnh phúc của gia đình và là “cỗ máy” tạo ra dòng tiền bền vững.
Bạn có muốn sở hữu một mẫu nhà phố tân cổ điển 4 tầng đẳng cấp như thế này không? Đừng ngần ngại liên hệ với Techhome để được tư vấn miễn phí và nhận những ưu đãi hấp dẫn nhất.
Thông tin liên hệ:
-
Website: https://nhadeptechhome.vn/
-
Hotline: 036.273.2222
-
Địa chỉ: B1.1 LK18 Ô 3 – KĐT Thanh Hà – Cienco 5 – Thanh Oai- Hà Nội.
Techhome – Xây niềm tin, dựng hạnh phúc!
Hy vọng bài viết về mẫu nhà phố tân cổ điển 4 tầng này đã mang lại cho bạn những thông tin hữu ích. Hãy theo dõi website của chúng tôi để cập nhật thêm nhiều mẫu nhà đẹp khác nhé!
