Mẫu nhà mái Nhật 2 tầng đẹp tại Lạng Sơn: Sự kết hợp hoàn hảo giữa hiện đại và truyền thống

Bạn đang sở hữu một mảnh đất đẹp và dự định xây dựng một tổ ấm cho gia đình mình? Bạn phân vân giữa hàng ngàn phong cách kiến trúc nhưng vẫn chưa tìm được “chân ái”? Hãy cùng Techhome ghé thăm Lạng Sơn để khám phá một siêu phẩm: Mẫu nhà mái Nhật 2 tầng đẹp của gia đình chị Mến. Đây không chỉ là một bản vẽ, mà là kết quả của sự thấu hiểu và tâm huyết mà đội ngũ kiến trúc sư chúng tôi dành cho khách hàng.

1. Tại sao mẫu nhà mái Nhật 2 tầng đẹp lại trở thành xu hướng năm 2026?

Trong những năm gần đây, xu hướng kiến trúc tối giản nhưng sang trọng đang lên ngôi. Không phải ngẫu nhiên mà cụm từ mẫu nhà mái Nhật 2 tầng đẹp luôn nằm trong top tìm kiếm. Hệ mái Nhật với độ dốc vừa phải, thiết kế chồng lớp tạo nên vẻ ngoài thanh thoát, không quá đồ sộ như mái Thái nhưng lại bền bỉ và thoát nước cực tốt.

Tại vùng đất có khí hậu đặc thù như Lạng Sơn, việc chọn một mẫu nhà mái Nhật 2 tầng đẹp là quyết định cực kỳ thông minh. Nó vừa giúp điều hòa không khí, chống nóng mùa hè, vừa giữ ấm vào mùa đông. Đặc biệt, vẻ ngoài hiện đại của ngôi nhà chị Mến (Mã số 630) đã hoàn toàn chinh phục được những người hàng xóm khó tính nhất.

Phối cảnh mặt tiền mẫu nhà mái Nhật 2 tầng đẹp hiện đại rộng 8m tại Lạng Sơn.
Phối cảnh mặt tiền mẫu nhà mái Nhật 2 tầng đẹp hiện đại rộng 8m tại Lạng Sơn.

2. Phân tích phối cảnh ngoại thất: Đẳng cấp đến từ sự tinh tế

Nhìn từ bên ngoài, ngôi nhà của chị Mến toát lên vẻ vững chãi nhưng vẫn mềm mại. Gam màu chủ đạo là trắng sứ kết hợp với các mảng tường ốp đá màu xám ghi và đen vân mây. Đây là cách phối màu kinh điển giúp ngôi nhà không bao giờ bị lỗi mốt.

  • Hệ mái: Sử dụng ngói màu xanh than sang trọng. Thiết kế mái Nhật đua rộng giúp bảo vệ tường nhà khỏi tác động của mưa nắng. Đây chính là linh hồn giúp công trình trở thành một mẫu nhà mái Nhật 2 tầng đẹp tiêu chuẩn.

  • Cửa chính: Được làm bằng gỗ tự nhiên cao cấp với các chi tiết chạm khắc hình tròn đồng tâm, tạo điểm nhấn ấm cúng và bề thế ngay từ lối vào.

  • Hệ thống cửa sổ: Toàn bộ được sử dụng nhôm kính Xingfa cao cấp. Điều này giúp tận dụng tối đa ánh sáng tự nhiên, giúp không gian bên trong luôn thông thoáng.

  • Điểm nhấn xanh: Các bồn hoa được bố trí khéo léo ở ban công tầng 2 và chân tường tầng 1, mang hơi thở thiên nhiên vào không gian sống.

Góc nghiêng mẫu nhà mái Nhật 2 tầng đẹp

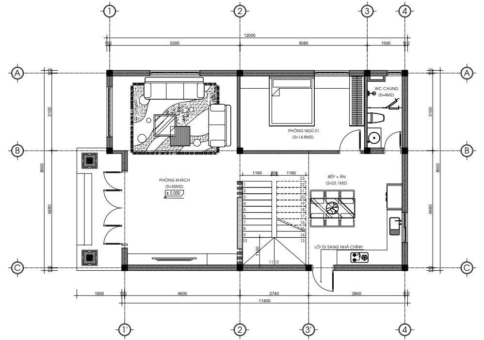
3. Chi tiết công năng tầng 1: Không gian kết nối gia đình

Một mẫu nhà mái Nhật 2 tầng đẹp không chỉ cần “đẹp bên ngoài” mà phải “tiện bên trong”. Với diện tích thiết kế tầng 1 là 101m2, các kiến trúc sư Techhome đã tối ưu hóa từng mét vuông:

  • Phòng khách (35m2): Bước qua cửa chính là không gian phòng khách rộng lớn. Đây là nơi chị Mến đón tiếp khách và cũng là không gian sinh hoạt chung của cả nhà. Với diện tích này, việc bố trí một bộ sofa lớn và kệ tivi hiện đại là cực kỳ thoải mái.

  • Phòng bếp + ăn (23.1m2): Khu vực bếp được thiết kế liên thông nhưng vẫn có sự tách biệt tinh tế. Đặc biệt, có một lối đi sang nhà cũ hoặc khu phụ giúp việc di chuyển và nấu nướng vô cùng thuận tiện.

  • Phòng ngủ 01 (14.8m2): Được bố trí tại tầng 1, rất phù hợp cho người lớn tuổi trong gia đình để tránh việc phải leo cầu thang.

  • WC chung (4m2): Diện tích đủ để lắp đặt các thiết bị vệ sinh cao cấp và cabin tắm đứng.

Cầu thang lên tầng 2 được thiết kế với 23 bậc, chiều cao mỗi bậc là 169mm, đảm bảo chuẩn phong thủy “Sinh – Lão – Bệnh – Tử” và giúp việc di chuyển không bị mỏi chân.

Bản vẽ bố trí công năng tầng 1 mẫu nhà mái Nhật 2 tầng đẹp diện tích 101m2
Bản vẽ bố trí công năng tầng 1 mẫu nhà mái Nhật 2 tầng đẹp diện tích 101m2

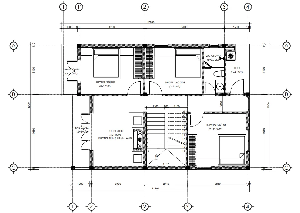
4. Công năng tầng 2: Sự riêng tư và bình yên

Tầng 2 của mẫu nhà mái Nhật 2 tầng đẹp này có diện tích 100m2, tập trung vào nghỉ ngơi và thờ tự:

  • Phòng thờ (11m2): Được đặt ở vị trí trang trọng nhất, hướng ra mặt tiền, đảm bảo yếu tố tâm linh và phong thủy.

  • 3 Phòng ngủ (Phòng 02: 12m2, Phòng 03: 11m2, Phòng 04: 12.5m2): Các phòng ngủ được bố trí xung quanh sảnh tầng, tạo sự riêng tư cho mỗi thành viên. Mỗi phòng đều có cửa sổ lấy sáng và gió tự nhiên.

  • Khu vực sân phơi và giặt (4.3m2): Được thiết kế kín đáo phía sau nhưng vẫn đảm bảo đủ nắng và gió để quần áo luôn khô thoáng.

  • Ban công: Điểm cộng lớn của mẫu nhà mái Nhật 2 tầng đẹp này là hệ thống ban công rộng với giàn Pergola phía trên. Đây là góc “chill” lý tưởng để chị Mến trồng thêm vài chậu Lan hay đặt một bộ bàn trà nhỏ ngắm cảnh Lạng Sơn về đêm.

Bản vẽ bố trí công năng tầng 2 mẫu nhà mái Nhật 2 tầng đẹp diện tích 100m2
Bản vẽ bố trí công năng tầng 2 mẫu nhà mái Nhật 2 tầng đẹp diện tích 100m2

5. Báo giá tham khảo thiết kế và thi công (Cập nhật 2026)

Tại Techhome, chúng tôi luôn minh bạch về tài chính để khách hàng yên tâm xây tổ ấm. Dưới đây là mức đầu tư dự kiến cho mẫu nhà mái Nhật 2 tầng đẹp diện tích tổng 201m2:

Hạng mục Đơn giá tham khảo Thành tiền dự kiến
Thiết kế kiến trúc  108.000đ/m2 ~22 triệu đồng
Thi công phần thô & nhân công hoàn thiện 3.800.000 – 4.200.000đ/m2 ~760 – 845 triệu đồng
Thi công trọn gói (Chìa khóa trao tay) 6.500.000 – 8.000.000đ/m2 ~1,3 – 1,6 tỷ đồng

Lưu ý: Đây chỉ là mức chi phí ước tính. Để nhận được báo giá chính xác và chi tiết nhất cho công trình của bạn, vui lòng liên hệ trực tiếp với chúng tôi. Hoặc để tìm hiểu rõ hơn về tiêu chuẩn vật liệu xây dựng và các yếu tố ảnh hưởng đến chi phí, bạn có thể tham khảo thêm tại các bài viết chuyên sâu về vật liệu xây dựng cao cấp trên Wikipedia.

Góc nghiêng mẫu nhà mái Nhật 2 tầng đẹp

6. Góc nhìn chuyên gia: Bí mật đằng sau một mẫu nhà mái Nhật 2 tầng đẹp

Là một kiến trúc sư lâu năm, tôi muốn chia sẻ thêm với các bạn vài kinh nghiệm để sở hữu một mẫu nhà mái Nhật 2 tầng đẹp đúng nghĩa:

  • Đừng tiết kiệm diện tích cửa sổ: Nhà mái Nhật có đặc điểm là chiều sâu khá lớn. Nếu không bố trí cửa sổ hợp lý, giữa nhà sẽ bị tối. Hãy dùng kính cường lực khổ lớn như nhà chị Mến để “kéo” thiên nhiên vào nhà.

  • Xử lý chống thấm mái: Mái Nhật có nhiều đường giao (sênô). Nếu thợ thi công không chắc tay, rất dễ bị thấm dột. Tại Techhome, chúng tôi luôn yêu cầu đổ bê tông mái chéo trước khi dán ngói để đảm bảo độ bền vĩnh cửu.

  • Màu sắc và vật liệu: Với mẫu nhà mái Nhật 2 tầng đẹp, hãy chọn các loại gạch thẻ ốp tường có độ nhám nhẹ. Nó tạo chiều sâu cho mảng khối khi có ánh sáng mặt trời chiếu vào. Tránh dùng quá nhiều màu sắc sặc sỡ làm mất đi vẻ thanh lịch vốn có.

  • Phong thủy cầu thang: Việc chị Mến chọn 23 bậc là rất chuẩn. Trong xây dựng, số bậc cầu thang thường rơi vào số lẻ (4n+1 hoặc 4n+3) để rơi vào cung tốt.

Tổng thể mẫu nhà mái Nhật 2 tầng đẹp lợp ngói màu xanh than sang trọng từ trên cao.
Tổng thể mẫu nhà mái Nhật 2 tầng đẹp lợp ngói màu xanh than sang trọng từ trên cao.

7. Tại sao nên chọn Techhome để hiện thực hóa ước mơ?

Hành trình xây nhà là một hành trình dài và nhiều lo toan. Tại nhadeptechhome.vn, chúng tôi không chỉ bán bản vẽ, chúng tôi bán sự an tâm.

  1. Chuyên nghiệp: Đội ngũ kiến trúc sư luôn lắng nghe và điều chỉnh theo ý thích của chủ đầu tư.

  2. Minh bạch: Hồ sơ thiết kế đầy đủ từ kiến trúc, kết cấu đến điện nước. Bạn có thể tự mình giám sát hoặc giao phó toàn bộ cho chúng tôi.

  3. Hỗ trợ 24/7: Hotline 0364042222 – 0387603333 luôn sẵn sàng giải đáp mọi thắc mắc của bạn dù bạn ở bất cứ đâu.

Tổng thể mặt sau mẫu nhà mái Nhật 2 tầng đẹp

Sở hữu một mẫu nhà mái Nhật 2 tầng đẹp không còn là giấc mơ xa vời nếu bạn tìm đúng người đồng hành. Ngôi nhà của chị Mến tại Lạng Sơn chính là minh chứng cho sự tận tâm đó.

Một mẫu nhà mái Nhật 2 tầng đẹp không chỉ là nơi để che mưa che nắng, nó là niềm tự hào, là nơi lưu giữ những khoảnh khắc hạnh phúc nhất của đời người. Nếu bạn cũng muốn sở hữu một không gian sống đẳng cấp như thế, đừng ngần ngại liên hệ với Techhome ngay hôm nay.

Hy vọng bài viết này đã cung cấp cho bạn cái nhìn sâu sắc về mẫu nhà mái Nhật 2 tầng đẹp. Đừng quên theo dõi website của chúng tôi để cập nhật thêm những mẫu nhà mới nhất năm 2026 nhé!

Để lại một bình luận

Email của bạn sẽ không được hiển thị công khai. Các trường bắt buộc được đánh dấu *

    Vui lòng nhấn nút YÊU CẦU TƯ VẤN và đợi 1 - 2 giây đến khi thấy thông báo thành công

    YÊU CẦU TƯ VẤN