Khám phá mẫu nhà phố 3 tầng hiện đại kích thước 6x16m tại Hoa Lư, Ninh Bình. Thiết kế kiến trúc đường cong độc đáo, công năng 4 phòng ngủ tiện nghi, tối ưu không gian xanh. Xem ngay bản vẽ chi tiết từ Techhome!
Giới thiệu: Xu hướng nhà phố 3 tầng hiện đại lên ngôi tại Cố đô
Trong bối cảnh quỹ đất đô thị ngày càng hạn hẹp, các mẫu nhà phố 3 tầng hiện đại đang trở thành lựa chọn hàng đầu của nhiều gia đình nhờ khả năng tối ưu hóa diện tích sử dụng mà vẫn đảm bảo tính thẩm mỹ cao. Không nằm ngoài xu hướng đó, công trình Nhà ở gia đình anh Tuấn tại Hoa Lư, Ninh Bình do Techhome thiết kế là một ví dụ điển hình cho không gian sống sang trọng, tiện nghi và đậm chất nghệ thuật.
Với diện tích xây dựng khoảng 100m2/sàn trên khuôn đất nở hậu nhẹ, đội ngũ Kiến trúc sư Techhome đã khéo léo xử lý hình khối để kiến tạo nên một tổ ấm lý tưởng cho gia đình 3 thế hệ.

Phối cảnh ngoại thất: Bản giao hưởng của những đường cong
Điểm nhấn đắt giá nhất của mẫu nhà phố 3 tầng hiện đại này chính là sự phá cách trong ngôn ngữ thiết kế mặt tiền. Thay vì những khối bê tông vuông vức, cứng nhắc thường thấy ở các ngôi nhà ống truyền thống, KTS đã táo bạo đưa vào các đường cong mềm mại tại khu vực ban công tầng 2 và tầng 3.
-
Kiến trúc Phi đối xứng: Mặt tiền 6.2m được chia khối thông minh, tạo chiều sâu cho công trình. Hệ lam chắn nắng và trần ốp giả gỗ mang lại cảm giác ấm cúng, sang trọng, tương phản nổi bật trên nền sơn trắng sứ chủ đạo.
-
Vật liệu hiện đại: Toàn bộ hệ thống cửa sử dụng nhôm hệ kính cao cấp (kính dày 6.38mm – 12mm), giúp thu trọn ánh sáng tự nhiên và mở rộng tầm nhìn ra cảnh quan non nước hữu tình của Ninh Bình.
-
Mái bằng tiện dụng: Tầng mái được thiết kế phẳng, bố trí khu vực kỹ thuật để bồn nước và thái dương năng gọn gàng, đảm bảo thẩm mỹ tổng thể cho ngôi nhà nhìn từ trên cao.

Phân tích mặt bằng công năng: Tối ưu hóa từng mét vuông
Sức hút của mẫu nhà phố 3 tầng hiện đại nhà anh Tuấn không chỉ nằm ở vẻ ngoài hào nhoáng mà còn ở cách bố trí công năng vô cùng khoa học, đáp ứng nhu cầu sinh hoạt của gia đình đông người.
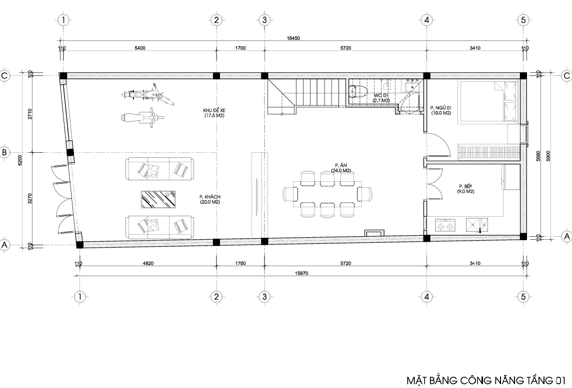
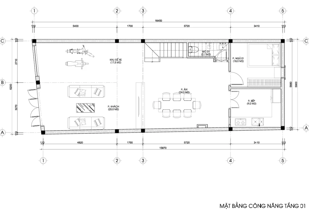
Tầng 1: Không gian kết nối mở (Diện tích sàn ~100m2)
Tầng 1 được thiết kế liên thông, tạo cảm giác rộng rãi và thoáng đạt:
-
Khu để xe (17.5m2): Rộng rãi, tách biệt với không gian sinh hoạt chính, hạn chế mùi xăng xe.
-
Phòng khách (20m2): Nối liền sảnh đệm, là nơi tiếp đón khách sang trọng.
-
Bếp & Phòng ăn (33m2): Không gian bếp ăn cực rộng (Phòng ăn 24m2 + Bếp 9m2), là trái tim của ngôi nhà, nơi giữ lửa yêu thương.
-
Phòng ngủ 01 (10m2): Bố trí kín đáo phía cuối nhà, rất phù hợp cho người lớn tuổi cần sự yên tĩnh và hạn chế leo cầu thang.

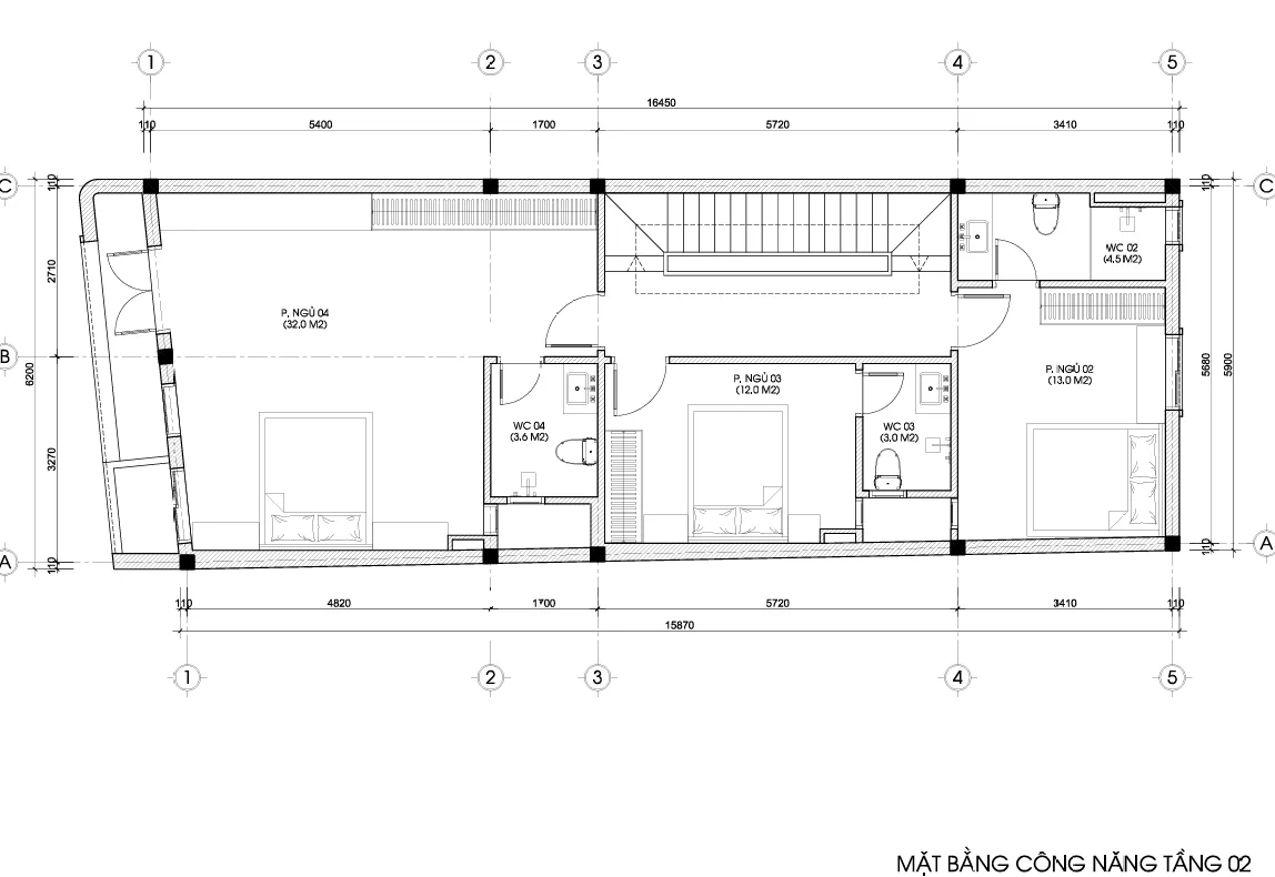
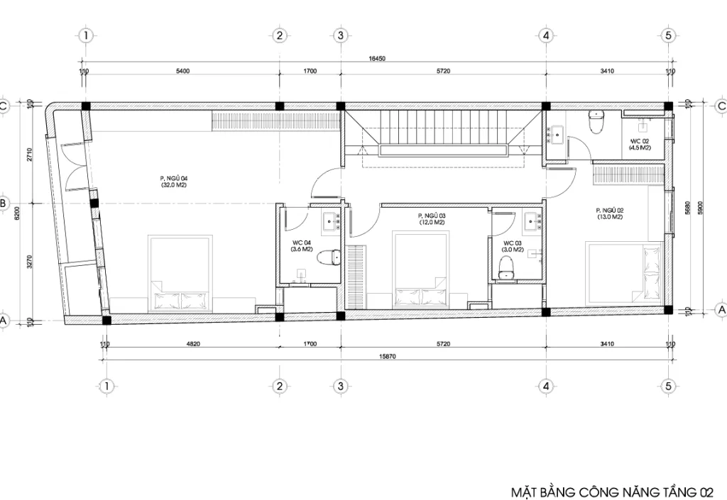
Tầng 2: Không gian nghỉ ngơi riêng tư
Khu vực tầng 2 tập trung hoàn toàn cho việc nghỉ ngơi với 03 phòng ngủ:
-
Phòng ngủ Master 04 (32m2): Chiếm trọn không gian phía trước với diện tích “khủng”, tích hợp WC khép kín (3.6m2) và ban công thoáng mát, mang lại trải nghiệm như resort tại gia.
-
2 Phòng ngủ phụ (12m2 – 13m2): Dành cho các con, được bố trí khoa học, sử dụng WC khép kín tiện nghi.

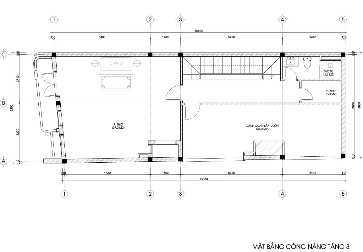
Tầng 3: Tâm linh và Thư giãn
Đây là tầng chức năng đặc biệt của mẫu nhà phố 3 tầng hiện đại này:
-
Phòng thờ (37m2): Không gian thờ cúng tổ tiên vô cùng rộng lớn và trang nghiêm, đặt tại vị trí phong thủy đẹp nhất phía trước nhà.
-
Sân vườn cảnh quan (31m2): Một khoảng sân thượng phía sau rộng rãi để gia chủ trồng cây, làm sân phơi hoặc tổ chức tiệc BBQ ngoài trời.
-
Kho & WC: Bố trí thêm phòng kho nhỏ (3m2) và WC giặt phơi tiện lợi.

Kết cấu vững chắc và Vật liệu hoàn thiện cao cấp
Để đảm bảo tuổi thọ và vẻ đẹp bền vững cho nhà phố 3 tầng hiện đại, Techhome chú trọng đặc biệt vào phần kết cấu và vật liệu:
-
Cầu thang: Mặt bậc ốp đá Granite tự nhiên, cổ bậc ốp đá hoặc sơn trắng, lan can kính cường lực tay vịn gỗ, tạo sự thanh thoát cho trục giao thông đứng.
-
Sàn nhà: Tầng 1 và không gian chung lát gạch Granite hoặc Ceramic kích thước lớn (800×800 hoặc 400×400) chống trơn trượt và dễ vệ sinh.
-
Khu vệ sinh: Ốp lát gạch Ceramic chống trơn 300×300, trần thạch cao chịu nước, thiết bị vệ sinh cao cấp (xí bệt men trắng, sen tắm đứng, lavabo…) .

Tại sao chọn Techhome cho dự án nhà phố của bạn?
Với dự án tại Hoa Lư – Ninh Bình, Techhome một lần nữa khẳng định năng lực trong lĩnh vực thiết kế và thi công trọn gói:
-
Hồ sơ kỹ thuật chi tiết: Từ bản vẽ mặt bằng định vị , mặt cắt thang , đến chi tiết cửa, tất cả đều được thể hiện tỉ mỉ, chính xác.
-
Thiết kế sáng tạo: Luôn cập nhật các xu hướng nhà phố 3 tầng hiện đại mới nhất, cá nhân hóa theo gu thẩm mỹ của gia chủ.
-
Chi phí minh bạch: Dự toán chi tiết, không phát sinh, cam kết sử dụng đúng chủng loại vật liệu như bản vẽ quy định.

Nhà phố 3 tầng hiện đại của anh Tuấn có chi phí xây dựng bao nhiêu?
Với tổng diện tích sàn xây dựng khoảng 350m2 (3 tầng + mái), mức đầu tư cho mẫu nhà này được Techhome ước tính như sau (Đơn giá tham khảo):
-
Gói xây thô + nhân công hoàn thiện: Khoảng 2 tỷ – 2.2 tỷ VNĐ.
-
Gói chìa khóa trao tay (Vật liệu khá – tốt): Khoảng 2.5 tỷ – 2.8 tỷ VNĐ.
Lưu ý: Đây chỉ là mức chi phí ước tính. Để nhận được báo giá chính xác và chi tiết nhất cho công trình của bạn, vui lòng liên hệ trực tiếp với chúng tôi. Hoặc để tìm hiểu rõ hơn về tiêu chuẩn vật liệu xây dựng và các yếu tố ảnh hưởng đến chi phí, bạn có thể tham khảo thêm tại các bài viết chuyên sâu về vật liệu xây dựng cao cấp trên Wikipedia.

Kết luận
Mẫu nhà phố 3 tầng hiện đại của gia đình anh Tuấn tại Ninh Bình là minh chứng hoàn hảo cho sự kết hợp giữa thẩm mỹ tinh tế và công năng thực dụng. Nếu bạn đang sở hữu một mảnh đất phố và mong muốn kiến tạo một không gian sống đẳng cấp, hãy để Techhome đồng hành cùng bạn.
👉 Liên hệ ngay với Techhome để nhận tư vấn và báo giá miễn phí!
-
Hotline/Zalo: 0364.04.2222 – 0387.60.3333.
-
Đơn vị thực hiện: Công ty Cổ phần Kiến trúc và Xây dựng Techhome.
-
Dịch vụ: Thiết kế & Thi công trọn gói Biệt thự, Nhà phố, Nội thất.
Xem thêm các dự án nổi bật khác của Techhome tại https://nhadeptechhome.vn/
