Giới thiệu về mẫu nhà phố hiện đại 2,5 tầng
Mẫu nhà phố hiện đại 2,5 tầng đang là lựa chọn yêu thích của nhiều gia đình trẻ nhờ sự cân đối về chi phí, công năng và thẩm mỹ. Thiết kế 2,5 tầng vừa đủ cho sinh hoạt tiện nghi, vừa không tạo cảm giác nặng nề như những ngôi nhà cao tầng.
Với kiến trúc hiện đại, đường nét vuông vắn, không gian mở và nhiều mảng xanh, mẫu nhà phố này không chỉ đáp ứng nhu cầu sinh hoạt hằng ngày mà còn thể hiện phong cách sống trẻ trung, năng động của gia chủ.


Điểm nhấn nổi bật trong kiến trúc nhà phố hiện đại 2,5 tầng
1. Mặt tiền sang trọng – đơn giản mà đẳng cấp
-
Thiết kế mặt tiền hiện đại kết hợp lam gỗ, đá ốp và hệ kính cường lực, tạo cảm giác vừa thanh thoát vừa bền vững.
-
Ban công thoáng mở, cây xanh được bố trí khéo léo mang lại không gian thư giãn.
-
Gam màu sáng – tối đan xen, làm nổi bật hình khối kiến trúc.
2. Công năng hợp lý – tiện nghi cho gia đình 3 thế hệ
Ngôi nhà phố 2,5 tầng hiện đại được TECHHOME bố trí công năng tối ưu:
-
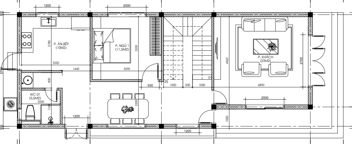
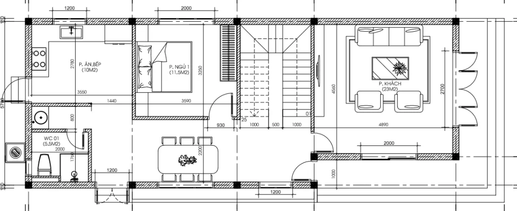
Tầng 1: Phòng khách rộng rãi, phòng bếp + ăn tiện nghi, 1 phòng ngủ nhỏ, 1 WC.
-
Tầng 2: 2 – 3 phòng ngủ lớn, ban công, phòng sinh hoạt chung.
-
Tầng tum (0,5 tầng): Phòng thờ, sân phơi, sân thượng làm nơi thư giãn, trồng rau xanh hoặc tiểu cảnh.


3. Nội thất hiện đại – tinh tế trong từng chi tiết
-
Nội thất tối giản, sử dụng gỗ công nghiệp kết hợp inox và kính.
-
Màu sắc trung tính (trắng, xám, nâu gỗ) tạo cảm giác sang trọng nhưng ấm áp.
-
Hệ thống đèn led âm trần thông minh, tiết kiệm điện năng.
Ưu điểm vượt trội của mẫu nhà phố hiện đại 2,5 tầng
-
Chi phí xây dựng hợp lý: Chỉ từ 1,6 – 1,8 tỷ đồng tùy vật liệu.
-
Phù hợp đất phố nhỏ: Diện tích từ 70 – 100m² vẫn có thể xây dựng thoải mái.
-
Công năng đầy đủ: Đáp ứng sinh hoạt cho gia đình từ 4 – 6 thành viên.
-
Thiết kế linh hoạt: Dễ dàng thay đổi mặt tiền, công năng theo sở thích.
-
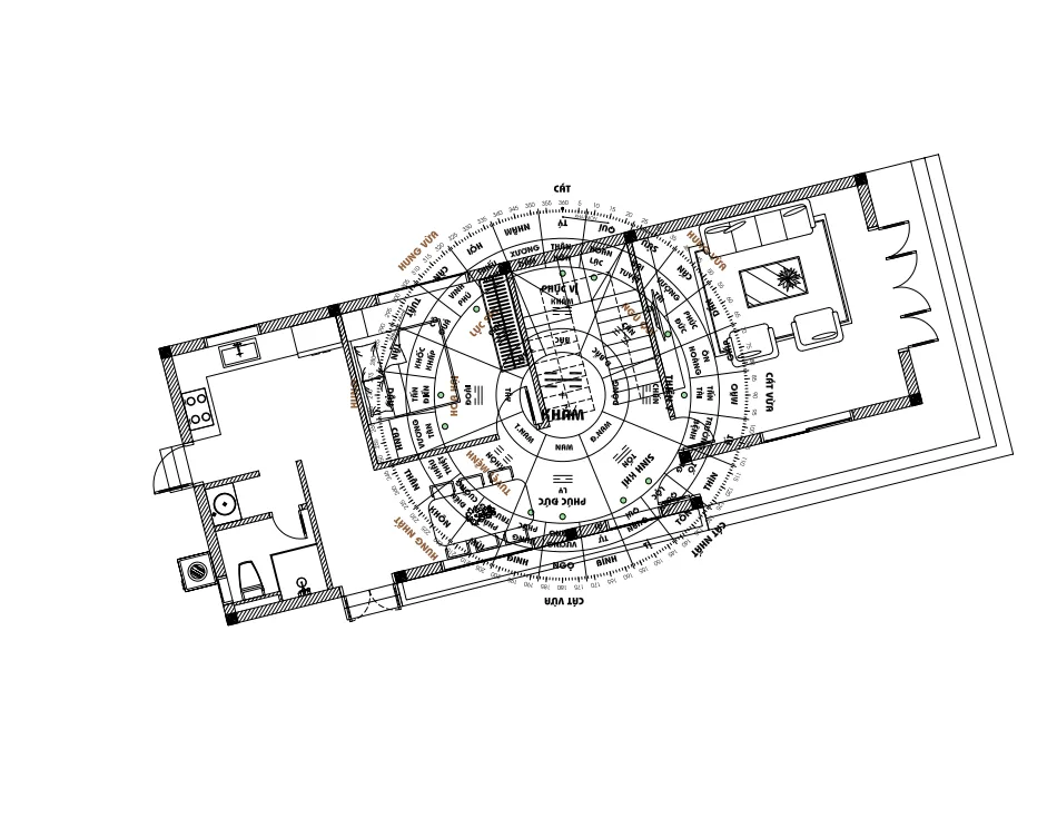
Phong thủy hài hòa: Bố trí chuẩn theo tuổi, mệnh của gia chủ, mang lại tài lộc và sức khỏe.

Vì sao nên chọn TECHHOME thiết kế và thi công nhà phố hiện đại 2,5 tầng?
-
Kinh nghiệm thực chiến: Hàng trăm công trình nhà phố đã hoàn thiện trên toàn quốc.
-
Thiết kế chuẩn SEO kiến trúc: Đẹp, bền, hợp phong thủy và công năng.
-
Dịch vụ trọn gói: Từ bản vẽ thiết kế, xin phép xây dựng đến thi công hoàn thiện.
-
Chi phí minh bạch: Dự toán rõ ràng, không phát sinh ngoài hợp đồng.
-
Bảo hành lâu dài: Kết cấu 5 năm, chống thấm 2 năm.
Để tìm hiểu rõ hơn về tiêu chuẩn vật liệu xây dựng và các yếu tố ảnh hưởng đến chi phí, bạn có thể tham khảo thêm tại các bài viết chuyên sâu về vật liệu xây dựng cao cấp trên Wikipedia.

Kết luận
Mẫu nhà phố hiện đại 2,5 tầng chính là giải pháp cân bằng hoàn hảo giữa thẩm mỹ – công năng – chi phí. Đây là lựa chọn lý tưởng cho những gia đình muốn sở hữu một không gian sống tiện nghi, sang trọng, phù hợp phong thủy mà không cần đầu tư quá nhiều.
👉 Hãy liên hệ ngay với Công ty Cổ phần Kiến trúc và Xây dựng TECHHOME qua hotline: 0364.042.222 – 0387.603.333 để được tư vấn chi tiết và báo giá miễn phí.
Xem thêm các dự án nổi bật khác của Techhome tại https://nhadeptechhome.vn/
