Bạn đang sở hữu một mảnh đất phân lô và đang loay hoay tìm kiếm một mẫu nhà phố 2 tầng hiện đại vừa đảm bảo công năng, vừa phải “chất” và khác biệt giữa khu phố? Vậy thì đừng bỏ qua siêu phẩm nhà phố tại Mê Linh mà Techhome vừa bàn giao hồ sơ cho anh Hùng. Đây không chỉ là một căn nhà, đó là một tác phẩm nghệ thuật của những đường cong.
1. Xu hướng lựa chọn mẫu nhà phố 2 tầng hiện đại năm 2026
Trong những năm gần đây, thay vì những hình khối vuông vức có phần khô cứng, khách hàng của Techhome có xu hướng tìm đến sự mềm mại và tối giản. Mẫu nhà phố 2 tầng hiện đại mã số 0178 này chính là minh chứng rõ nét nhất cho sự kết hợp hoàn hảo giữa công năng sử dụng và thẩm mỹ đương đại.
Tại sao mẫu nhà phố 2 tầng hiện đại lại được ưa chuộng đến thế? Đơn giản vì nó phù hợp với quỹ đất hẹp (thường là 5x16m hoặc 5x20m), chi phí đầu tư vừa phải nhưng vẫn đủ không gian cho một gia đình 2-3 thế hệ sinh sống thoải mái.

2. Thông tin chung về dự án nhà phố anh Hùng (Mê Linh)
Trước khi đi sâu vào vẻ đẹp kiến trúc, chúng mình cùng điểm qua “lý lịch” trích ngang của công trình này nhé:
-
Chủ đầu tư: Anh Hùng.
-
Địa điểm xây dựng: Mê Linh – Hà Nội.
-
Đơn vị thiết kế: Công ty Cổ phần Kiến trúc và Xây dựng Techhome.
-
Loại hình: Nhà ở gia đình.
-
Diện tích tầng 1: 80.0m2.
-
Diện tích tầng 2: 82.0m2.
Với sự kết hợp giữa kỹ sư và kiến trúc sư dày dạn kinh nghiệm, Techhome đã biến mong muốn của anh Hùng thành một mẫu nhà phố 2 tầng hiện đại mang đậm dấu ấn cá nhân.

3. Ngoại thất: Sự lên ngôi của những đường cong
Nhìn vào phối cảnh mặt tiền, bạn sẽ thấy ngay điểm khác biệt. Không còn là những ban công vuông chằn chặn, KTS Techhome đã khéo léo sử dụng các đường bo góc tròn ở mảng tường phía trước. Điều này giúp mẫu nhà phố 2 tầng hiện đại của anh Hùng trông thanh thoát, giảm bớt cảm giác nặng nề của bê tông cốt thép.
-
Tông màu chủ đạo: Trắng sứ kết hợp cùng màu gỗ trầm của nhựa giả gỗ ốp trần. Sự tương phản này tạo nên vẻ sang trọng, không bao giờ lỗi mốt.
-
Hệ thống cửa: Tầng 1 sử dụng cửa cuốn đảm bảo an toàn và tiết kiệm diện tích. Tầng 2 là hệ cửa nhôm kính Xingfa màu đen với ô kính uốn vòm, đồng điệu với ngôn ngữ thiết kế chung của cả mẫu nhà phố 2 tầng hiện đại này.
-
Ánh sáng và cây xanh: Ban công tầng 2 được bố trí các chậu cây cảnh uốn lượn, kết hợp đèn LED hắt trần tạo nên một khung cảnh lung linh khi đêm về.

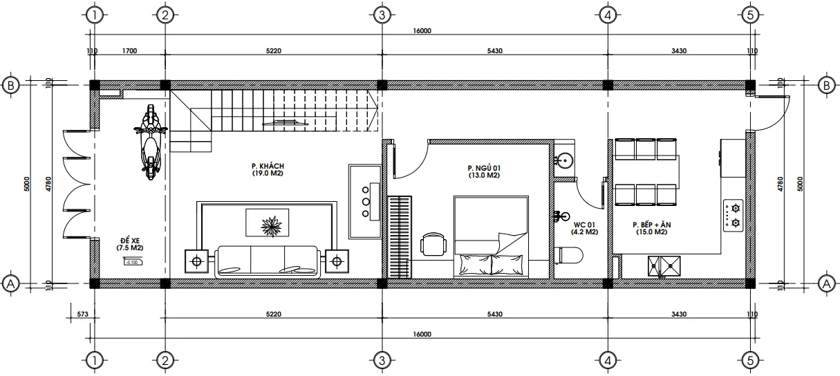
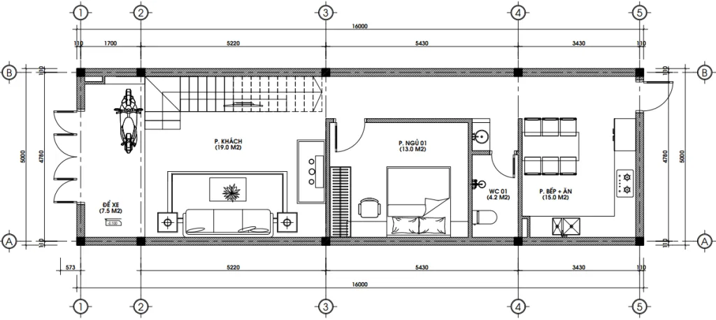
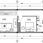
4. Phân tích công năng tầng 1: Không gian mở và thoáng đãng
Một mẫu nhà phố 2 tầng hiện đại đẹp thôi chưa đủ, quan trọng là phải “dễ sống”. Với diện tích 80m2, Techhome đã bố trí các phòng cực kỳ khoa học:
-
Khu vực để xe: Rộng 7.5m2 ngay phía trước, thuận tiện cho việc di chuyển hàng ngày.
-
Phòng khách (19.0m2): Ngay sau sảnh chính, là không gian đón khách lịch sự và sang trọng.
-
Phòng ngủ 01 (13.0m2): Được đặt ở giữa nhà, phù hợp cho người lớn tuổi trong gia đình hoặc làm phòng ngủ dự phòng.
-
Phòng bếp + Ăn (15.0m2): Nằm cuối nhà, tách biệt để tránh mùi thức ăn bay lên phòng khách.
-
WC 01 (4.2m2): Bố trí kín đáo ngay cạnh phòng ngủ.
Đặc biệt, chiều cao tầng 1 lên tới 3.7m, giúp không gian cực kỳ thoáng. Cầu thang 21 bậc với chiều cao mỗi bậc 176mm được tính toán chuẩn phong thủy “Sinh – Lão – Bệnh – Tử”, mang lại tài lộc cho gia chủ.

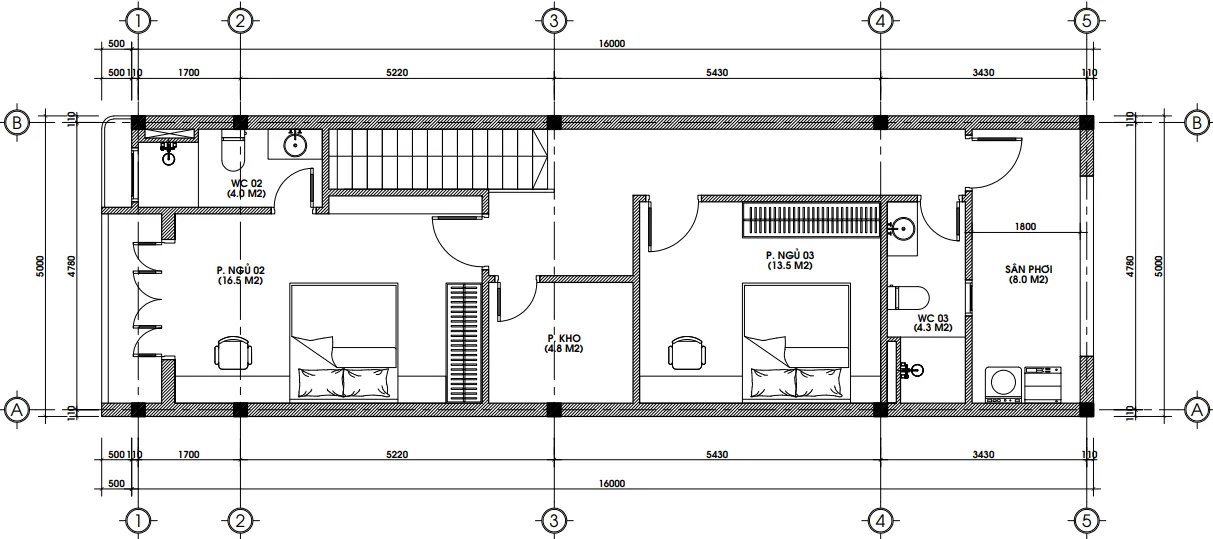
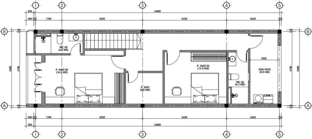
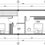
5. Phân tích công năng tầng 2: Riêng tư và tiện nghi
Nếu tầng 1 là không gian sinh hoạt chung thì tầng 2 của mẫu nhà phố 2 tầng hiện đại này là nơi nghỉ ngơi tuyệt đối với tổng diện tích 82m2:
-
Phòng ngủ 02 (16.5m2): Đây là phòng ngủ chính (Master) có WC khép kín (4.0m2) rất tiện lợi.
-
Phòng ngủ 03 (13.5m2): Không gian rộng rãi cho con cái.
-
Phòng kho (4.8m2): Một chi tiết rất tinh tế của Techhome để giúp nhà phố luôn gọn gàng.
-
Sân phơi (8.0m2): Nằm ở phía cuối, đảm bảo thẩm mỹ cho mặt tiền nhà.
Chiều cao tầng 2 là 3.5m, thấp hơn tầng 1 một chút để tạo cảm giác ấm cúng cho không gian nghỉ ngơi của mẫu nhà phố 2 tầng hiện đại.

6. Giải pháp chống nóng và kỹ thuật mái
Trong thiết kế mẫu nhà phố 2 tầng hiện đại, việc xử lý mái rất quan trọng. Nhìn từ trên cao, công trình sử dụng mái tôn chống nóng màu xanh xám, độ dốc vừa phải giúp thoát nước nhanh. Hệ thống bồn nước và thái dương năng được đặt gọn gàng trên sàn mái bê tông phía sau, đảm bảo cung cấp nước nóng lạnh liên tục cho cả nhà.
7. Báo giá thi công mẫu nhà phố 2 tầng hiện đại (Tham khảo 2026)
Tại Techhome, chúng mình luôn minh bạch về tài chính để khách hàng dễ dàng chuẩn bị ngân sách. Với diện tích sàn khoảng 162m2 (Tầng 1 + Tầng 2), chi phí ước tính cho mẫu nhà phố 2 tầng hiện đại như sau:
| Hạng mục | Đơn giá tham khảo | Thành tiền (Ước tính) |
| Thiết kế kiến trúc | 108.000 đ/m2 | 17.496.000 |
| Xây thô & Nhân công hoàn thiện | 3.800.000 – 4.200.000 đ/m2 | ~ 650.000.000 đ |
| Hoàn thiện gói tiêu chuẩn | 6.000.000 – 7.000.000 đ/m2 | ~ 972.000.000 – 1.134.000.000 đ |
Lưu ý: Đây chỉ là mức chi phí ước tính. Để nhận được báo giá chính xác và chi tiết nhất cho công trình của bạn, vui lòng liên hệ trực tiếp với chúng tôi. Hoặc để tìm hiểu rõ hơn về tiêu chuẩn vật liệu xây dựng và các yếu tố ảnh hưởng đến chi phí, bạn có thể tham khảo thêm tại các bài viết chuyên sâu về vật liệu xây dựng cao cấp trên Wikipedia.

8. Tại sao nên chọn Techhome để hiện thực hóa mẫu nhà phố 2 tầng hiện đại?
Giữa hàng nghìn đơn vị kiến trúc, tại sao anh Hùng và rất nhiều khách hàng tại Mê Linh lại tin tưởng Techhome?
-
Thiết kế độc bản: Mỗi mẫu nhà phố 2 tầng hiện đại chúng mình tạo ra đều dựa trên tính cách và nhu cầu thực tế của chủ nhà. Không có sự “copy-paste”.
-
Hồ sơ kỹ thuật chi tiết: Như bạn thấy trong bản vẽ, từng con số về chiều cao bậc thang, diện tích phòng đều được tính toán tỉ mỉ.
-
Hỗ trợ kỹ thuật 24/7: Techhome không chỉ bán bản vẽ, chúng mình đồng hành cùng bạn đến khi chìa khóa trao tay qua Hotline hỗ trợ: 0387603333.
-
Tối ưu hóa không gian: Với kinh nghiệm lâu năm, chúng mình biết cách biến những nhược điểm của đất hẹp thành ưu điểm trong mẫu nhà phố 2 tầng hiện đại.
9. Câu chuyện từ người trong cuộc
Anh Hùng chia sẻ: “Lúc đầu tôi chỉ định xây kiểu nhà ống đơn giản thôi, nhưng khi làm việc với đội ngũ Techhome, các bạn ấy gợi ý đưa đường cong vào mặt tiền. Ban đầu cũng hơi lo vì sợ thợ khó làm, nhưng có hồ sơ chi tiết và sự hướng dẫn của các bạn, thợ xây rất chuẩn. Giờ nhìn cái nhà nổi nhất phố, tôi rất hài lòng.”
Thật vậy, một mẫu nhà phố 2 tầng hiện đại thành công là khi chủ nhà cảm thấy hạnh phúc khi trở về. Đó cũng là mục tiêu cao nhất mà Techhome hướng tới.

Lời kết
Việc xây nhà là việc hệ trọng cả đời. Một mẫu nhà phố 2 tầng hiện đại đẹp không chỉ giúp nâng tầm giá trị sống mà còn là niềm tự hào của gia chủ. Hy vọng mẫu thiết kế của anh Hùng tại Mê Linh đã tiếp thêm cảm hứng cho bạn trên hành trình xây dựng tổ ấm.
CÔNG TY CỔ PHẦN KIẾN TRÚC VÀ XÂY DỰNG TECHHOME
🏠 Website: https://nhadeptechhome.vn/
☎️ Hotline: 036.273.2222
📍 Địa chỉ: B1.1 LK18 Ô 3 – KĐT Thanh Hà – Cienco 5 – Thanh Oai- Hà Nội.
