Xây nhà ở Sóc Sơn bây giờ không còn là câu chuyện “ăn chắc mặc bền” đơn thuần nữa. Chủ nhà ngày nay, điển hình như chị Yến, đòi hỏi một không gian không chỉ đẹp để hãnh diện với xóm làng mà còn phải thực dụng, tối ưu được từng mét vuông đất để sinh lời. Sau nhiều lần bàn thảo, đội ngũ Techhome đã trình làng mẫu nhà phố 2 tầng 1 tum hiện đại – một thiết kế hội tụ đủ sự tinh tế, công năng và tính kinh tế.
1. Thông tin chung về dự án thiết kế nhà chị Yến
Trước khi đi sâu vào phân tích nét vẽ, chúng ta hãy cùng điểm qua các thông số “vàng” của công trình này để thấy được sự tính toán kỹ lưỡng của các kiến trúc sư Techhome:
-
Chủ đầu tư: Chị Yến.
-
Địa điểm xây dựng: Sóc Sơn, Hà Nội.
-
Đơn vị tư vấn thiết kế: Công ty Cổ phần Kiến trúc và Xây dựng Techhome.
-
Loại hình kiến trúc: Mẫu nhà phố 2 tầng 1 tum hiện đại.
-
Diện tích xây dựng tầng 1: 83.0 m2.
-
Diện tích xây dựng tầng 2: 83.0 m2.
-
Diện tích tầng tum: 22.0 m2.
-
Chiều cao tầng 1: 3.7m (21 bậc thang).
-
Chiều cao tầng 2: 3.5m (21 bậc thang).
-
Chiều cao tầng tum: 3.3m.
Đây là một khuôn đất khá điển hình tại các khu phố mới ở Sóc Sơn với chiều ngang hơn 5m và chiều sâu lên đến 16m. Với kích thước này, nếu không khéo léo trong việc bố trí ánh sáng, ngôi nhà rất dễ rơi vào tình trạng “u ám” ở giữa. Nhưng với mẫu nhà phố 2 tầng 1 tum hiện đại này, Techhome đã biến nhược điểm thành ưu điểm.

2. Phối cảnh 3D: Vẻ đẹp hiện đại, không bao giờ lỗi mốt
Nhìn vào mặt tiền của ngôi nhà, bạn sẽ cảm nhận được ngay sự trẻ trung và thanh lịch. Techhome lựa chọn tông màu trắng chủ đạo, nhấn nhá bằng các mảng tường xám trung tính và vật liệu giả gỗ dưới ô văng tầng 2. Đây là cách phối màu cực kỳ “bền” với thời gian, giúp mẫu nhà phố 2 tầng 1 tum hiện đại luôn trông như mới dù qua nhiều năm sử dụng.
Hệ thống cửa chính và cửa sổ sử dụng nhôm kính Xingfa màu đen sang trọng. Việc sử dụng kính cường lực diện tích lớn tại tầng 2 giúp đón trọn ánh sáng tự nhiên vào phòng ngủ và phòng thờ, đồng thời tạo tầm nhìn thoáng đãng ra bên ngoài. Lan can ban công cũng được làm bằng kính cường lực trong suốt, xóa tan cảm giác bí bách thường thấy ở các nhà phố dạng ống.
Điểm nhấn đặc biệt ở mặt tiền chính là hệ thống đèn trang trí gắn tường. Ban đêm, ánh sáng vàng ấm áp sẽ hắt lên các mảng tường xám, tôn lên những đường nét kiến trúc khỏe khoắn của mẫu nhà phố 2 tầng 1 tum hiện đại. Một ngôi nhà đẹp không chỉ ở hình khối mà còn ở cách nó “tỏa sáng” khi lên đèn.
Để tìm hiểu rõ hơn về tiêu chuẩn vật liệu xây dựng và các yếu tố ảnh hưởng đến chi phí, bạn có thể tham khảo thêm tại các bài viết chuyên sâu về vật liệu xây dựng cao cấp trên Wikipedia.

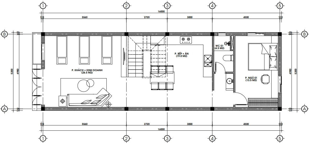
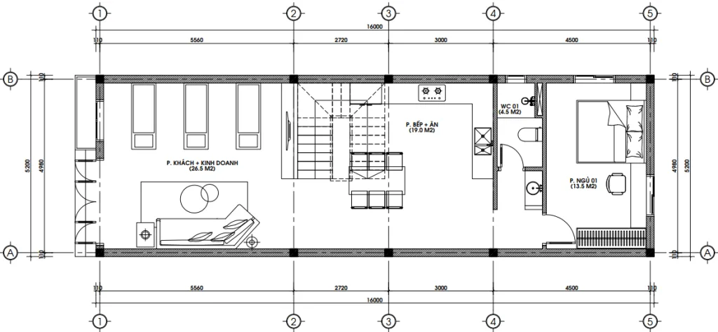
3. Mặt bằng công năng tầng 1: Ưu tiên kinh doanh và sinh hoạt chung
Bước vào tầng 1, chúng ta thấy ngay sự phân chia không gian cực kỳ khoa học. Với diện tích 83 m2, các kiến trúc sư đã bố trí như sau:
-
Phòng khách + Kinh doanh (26.5 m2): Nằm ngay mặt tiền, không gian này cực kỳ rộng rãi và thoáng đãng. Chị Yến có thể tận dụng phía trước để mở cửa hàng hoặc làm văn phòng giao dịch mà vẫn đảm bảo được khu vực tiếp khách gia đình phía sau.
-
Cầu thang bộ: Nằm ở giữa nhà, đóng vai trò như một “vách ngăn” tự nhiên giữa khu vực kinh doanh và khu vực bếp núc phía trong.
-
Phòng Bếp + Ăn (19.0 m2): Được thiết kế dạng chữ L hiện đại, tối ưu hóa không gian di chuyển. Bàn ăn được đặt ở vị trí trung tâm, là nơi cả gia đình quây quần sau một ngày làm việc.
-
Phòng ngủ 01 (13.5 m2): Nằm phía cuối nhà, đảm bảo sự yên tĩnh tối đa. Đây thường là phòng dành cho người lớn tuổi hoặc phòng ngủ phụ khi gia đình có khách.
-
Nhà vệ sinh WC 01 (4.5 m2): Được đặt khéo léo giữa bếp và phòng ngủ, vẫn đảm bảo sự thuận tiện và kín đáo.
Sự kết hợp giữa kinh doanh và ở trong mẫu nhà phố 2 tầng 1 tum hiện đại đòi hỏi sự tách biệt tương đối về âm thanh và mùi. Do đó, khu vực bếp được Techhome bố trí gần giếng trời để thoát mùi nhanh chóng.

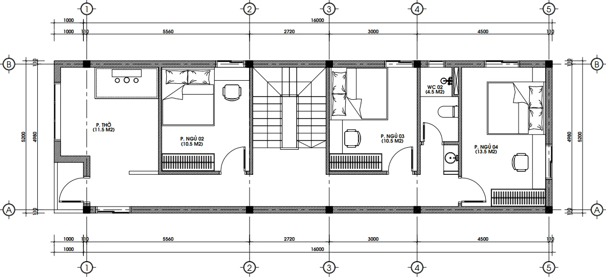
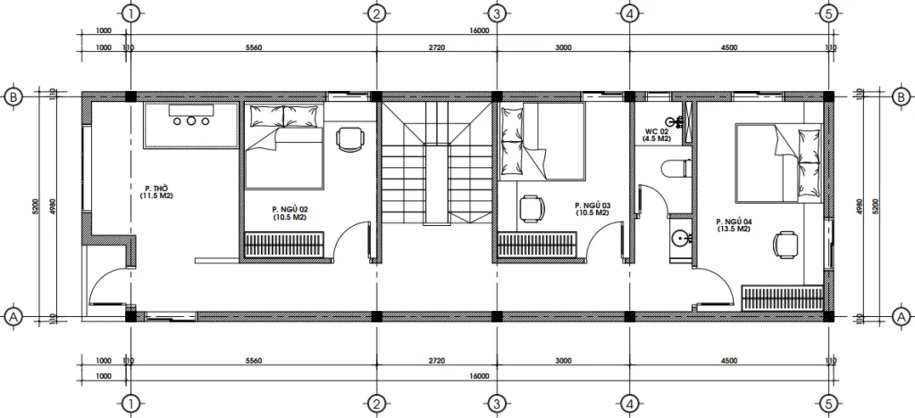
4. Mặt bằng công năng tầng 2: Không gian nghỉ ngơi riêng tư
Lên đến tầng 2, không gian hoàn toàn dành cho việc nghỉ ngơi và thờ tự của gia đình. Với 21 bậc thang cao 166mm, việc đi lại giữa các tầng rất thoải mái, không gây mỏi chân cho trẻ nhỏ hay người già. Công năng tầng 2 bao gồm:
-
Phòng thờ (11.5 m2): Được đặt ở vị trí trang trọng nhất phía trước nhà, hướng ra ban công chính. Điều này không chỉ đúng về phong thủy mà còn giúp không gian thờ tự luôn thông thoáng.
-
Phòng ngủ 04 (13.5 m2): Đây là phòng ngủ Master với cửa sổ lớn, view nhìn ra ngoài thoáng.
-
Phòng ngủ 02 và 03 (10.5 m2 mỗi phòng): Được thiết kế vừa vặn, phù hợp cho con cái. Mỗi phòng đều có cửa sổ lấy sáng và thông gió từ khu vực giếng trời giữa nhà.
-
Nhà vệ sinh WC 02 (4.5 m2): Dùng chung cho cả tầng, được trang bị đầy đủ thiết bị hiện đại.
Việc bố trí tới 3 phòng ngủ trên một mặt sàn tầng 2 của mẫu nhà phố 2 tầng 1 tum hiện đại chứng tỏ khả năng tối ưu diện tích cực tốt của Techhome. Mọi thành viên đều có không gian riêng nhưng vẫn cảm thấy gắn kết qua hành lang chung rộng rãi.

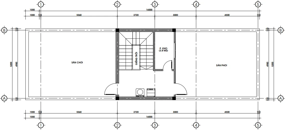
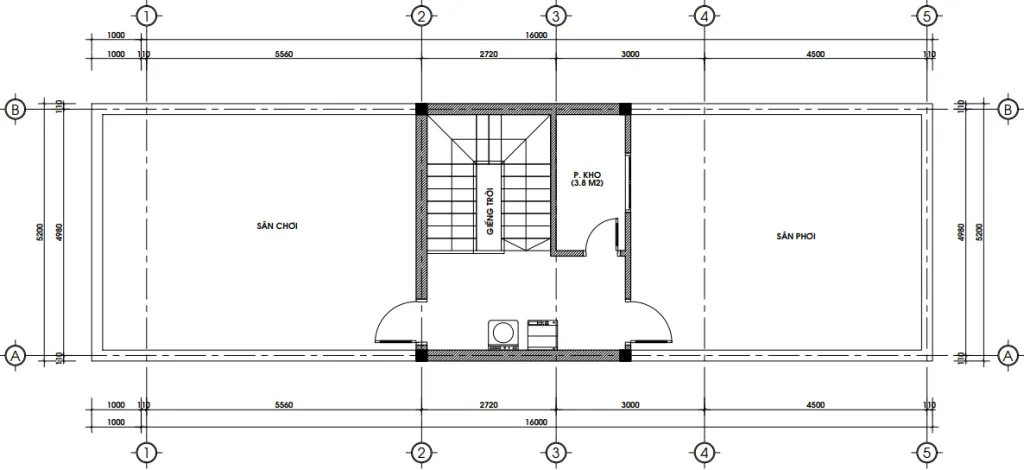
5. Tầng tum: “Lá phổi” của ngôi nhà
Nhiều người thường bỏ qua tầng tum hoặc chỉ coi đó là cái kho. Nhưng trong mẫu nhà phố 2 tầng 1 tum hiện đại của chị Yến, tầng tum lại là không gian đáng giá nhất:
-
Sân chơi: Phía trước là một khoảng sân rộng, nơi chị Yến có thể trồng cây cảnh, đặt một bộ bàn trà để thư giãn vào mỗi buổi sáng sớm hay chiều tà.
-
Sân phơi: Nằm phía sau, đảm bảo tính thẩm mỹ cho mặt tiền ngôi nhà.
-
Phòng kho (3.8 m2): Nơi cất giữ những vật dụng ít dùng, giúp ngôi nhà luôn gọn gàng.
-
Giếng trời: Đây chính là chìa khóa để lấy sáng và gió cho toàn bộ các tầng phía dưới.
Phần mái của mẫu nhà phố 2 tầng 1 tum hiện đại còn được tận dụng để đặt tép nước và hệ thống thái dương năng, giúp tiết kiệm điện năng và bảo vệ môi trường.

6. Tại sao bạn nên chọn Techhome làm đơn vị thiết kế?
Giữa hàng trăm đơn vị kiến trúc, tại sao chị Yến lại tin tưởng Techhome? Câu trả lời nằm ở sự chân thật và chuyên nghiệp trong từng bản vẽ.
Khi thực hiện mẫu nhà phố 2 tầng 1 tum hiện đại, Techhome không chỉ đưa ra một bản vẽ đẹp mà còn kèm theo hồ sơ thiết kế kỹ thuật thi công chi tiết. Từ sơ đồ điện nước, kết cấu móng cho đến chi tiết từng bậc cầu thang đều được tính toán chuẩn xác bởi các kỹ sư, kiến trúc sư giàu kinh nghiệm.
Mọi bản vẽ trước khi đến tay chủ đầu tư đều trải qua quy trình kiểm duyệt khắt khe bởi KTS. Chúng tôi hiểu rằng, một sai sót nhỏ trên bản vẽ có thể dẫn đến lãng phí hàng chục triệu đồng khi thi công thực tế. Vì thế, sự tỉ mỉ là tôn chỉ hoạt động của chúng tôi.
Ngoài ra, mẫu nhà phố 2 tầng 1 tum hiện đại tại Techhome luôn được tư vấn dựa trên ngân sách thực tế của chủ nhà. Chúng tôi không vẽ ra những thứ “viễn vông” mà khách hàng không thể xây dựng được.

7. Báo giá thiết kế và thi công tham khảo
Để quý khách hàng có cái nhìn thực tế hơn, Techhome xin đưa ra bảng báo giá sơ bộ cho dòng mẫu nhà phố 2 tầng 1 tum hiện đại (Lưu ý: Giá có thể thay đổi tùy vào thời điểm, chủng loại vật liệu và địa hình thi công).
7.1. Báo giá thiết kế kiến trúc & nội thất
-
Thiết kế kiến trúc: 108.000 VNĐ/m2.
-
Thiết kế nội thất: 150.000 VNĐ/m2.
-
Combo Thiết kế Kiến trúc + Nội thất : Chỉ 250.000 VNĐ/m2.

7.2. Báo giá thi công trọn gói (Chìa khóa trao tay)
-
Gói vật tư cơ bản: 6.000.000 – 6.500.000 VNĐ/m2.
-
Gói vật tư khá: 6.500.000 – 7.500.000 VNĐ/m2.
-
Gói cao cấp: Trên 8.000.000 VNĐ/m2.
Với mẫu nhà phố 2 tầng 1 tum hiện đại diện tích khoảng 190 m2 tổng sàn như của chị Yến, chi phí xây dựng thô và hoàn thiện cơ bản sẽ dao động khoảng 1.2 tỷ đến 1.5 tỷ đồng. Đây là mức đầu tư cực kỳ hợp lý cho một ngôi nhà phố 4 phòng ngủ kết hợp kinh doanh tại khu vực Sóc Sơn.

8. Kết luận: Nhà không chỉ để ở, nhà là để tận hưởng
Ngôi nhà của chị Yến tại Sóc Sơn là minh chứng rõ nhất cho việc: Diện tích không phải là vấn đề, vấn đề là bạn chọn được đơn vị thiết kế có tâm và có tầm. Mẫu nhà phố 2 tầng 1 tum hiện đại này không chỉ giải quyết tốt bài toán kinh doanh mà còn mang lại một không gian sống đầy cảm hứng cho mọi thành viên.
Nếu bạn đang sở hữu một mảnh đất phố và đang băn khoăn về phương án thiết kế, đừng ngần ngại liên hệ với Techhome. Chúng tôi sẽ cùng bạn vẽ nên tổ ấm trong mơ với mức chi phí tối ưu nhất. Một mẫu nhà phố 2 tầng 1 tum hiện đại đẳng cấp đang chờ đón bạn!
Thông tin liên hệ:
-
Website: https://nhadeptechhome.vn/
-
Hotline: 036.273.2222
-
Địa chỉ: B1.1 LK18 Ô 3 – KĐT Thanh Hà – Cienco 5 – Thanh Oai- Hà Nội.
