Bạn biết không, có những ngôi nhà ta chỉ nhìn qua một lần là thấy “phải lòng”. Không phải vì nó quá lộng lẫy hay dát vàng, mà bởi sự cân bằng tuyệt đối giữa công năng và thẩm mỹ. Đó chính là cảm giác mà mẫu nhà 2 tầng hiện đại mã số 0155 của Techhome mang lại.
Nếu bạn đang sở hữu một mảnh đất diện tích khoảng 120-130m2 và muốn xây dựng một tổ ấm vừa sang, vừa ấm cúng lại đủ chỗ cho 3 thế hệ, thì bài viết này là dành riêng cho bạn. Hãy cùng Techhome khám phá chi tiết “siêu phẩm” này nhé!

1. Phối cảnh ngoại thất: Khi những khối hình kể chuyện
Nhìn vào tổng thể, mẫu nhà 2 tầng hiện đại này đi theo ngôn ngữ kiến trúc Minimalism (tối giản) nhưng cực kỳ có “gu”. Thay vì những đường gờ phào chỉ rườm rà, Techhome sử dụng các hình khối vuông vức, khỏe khoắn để tạo nên sự bề thế.
Sự kết hợp màu sắc đầy ý đồ
Màu sắc là thứ đầu tiên đập vào mắt người nhìn. Ở thiết kế này, chúng mình sử dụng tông trắng chủ đạo mix cùng xám ghi và màu gỗ ấm.
-
Sắc trắng: Tạo cảm giác ngôi nhà rộng hơn, sạch sẽ và không bao giờ lỗi mốt.
-
Xám ghi từ đá ốp: Tạo điểm nhấn ở các mảng tường trang trí, mang lại vẻ cứng cáp, nam tính.
-
Gỗ ốp trần ban công: Đây là chi tiết mình cực kỳ thích. Ánh đèn LED âm trần hắt xuống mảng gỗ tạo nên một không gian “chill” đúng nghĩa vào buổi tối.
Vật liệu hiện đại lên ngôi
Điểm đắt giá nhất của mẫu nhà 2 tầng hiện đại 0155 chính là hệ cửa nhôm kính Xingfa bản lớn. Bạn có thể thấy, từ cửa chính đến cửa sổ đều được tối ưu diện tích mặt kính. Điều này giúp căn nhà luôn tràn ngập ánh sáng tự nhiên, tiết kiệm điện năng và xóa nhòa ranh giới giữa bên trong với bên ngoài. Ban công tầng 2 sử dụng kính cường lực trong suốt, vừa an toàn lại không che mất view nhìn ra sân vườn.

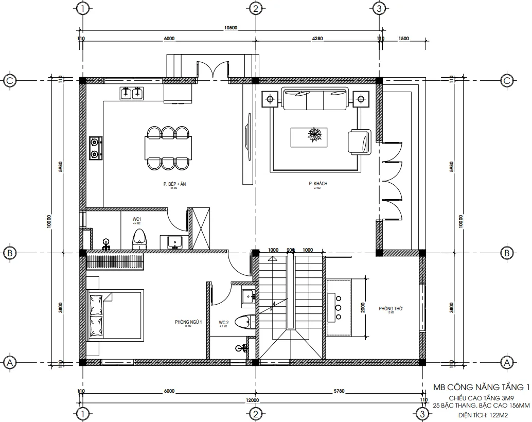
2. Giải mã mặt bằng công năng tầng 1: Sự thuận tiện là ưu tiên số 1
Bước qua bậc tam cấp ốp đá đen sang trọng, chúng ta sẽ tiến vào không gian tầng 1 với diện tích 122m2. Đây là nơi diễn ra các hoạt động chung của cả gia đình.
Phòng khách (27m2) – Bộ mặt của gia chủ : Ngay sau cánh cửa chính là phòng khách rộng rãi. Với diện tích 27m2, bạn hoàn toàn có thể đặt một bộ sofa chữ L cỡ lớn. Techhome đã khéo léo thiết kế các ô cửa sổ lớn để từ phòng khách, bạn có thể quan sát được khoảng sân trước. Đây là mẫu nhà 2 tầng hiện đại chú trọng vào sự kết nối giữa con người và thiên nhiên.
Phòng bếp & Ăn (25m2) – Giữ lửa hạnh phúc : Khu vực bếp được ngăn cách với phòng khách bằng một hệ lam hoặc kệ trang trí (tùy sở thích gia chủ), tạo sự thông thoáng nhưng vẫn đủ riêng tư. Bàn ăn 6-8 ghế đặt giữa không gian, là nơi cả nhà quây quần bên mâm cơm nóng hổi.
Phòng thờ (12m2) – Nét văn hóa truyền thống : Một điểm đặc biệt trong mẫu nhà 2 tầng hiện đại này là phòng thờ được đặt ngay tại tầng 1. Điều này rất phù hợp với các gia đình có người lớn tuổi, thuận tiện cho việc nhang khói, lễ bái mà không phải leo trèo cầu thang.
Phòng ngủ 1 (16m2) : Phòng ngủ dưới tầng 1 thường dành cho ông bà hoặc gia chủ. Với diện tích 16m2 và có WC riêng biệt ngay cạnh, ông bà sẽ có không gian nghỉ ngơi yên tĩnh, an toàn.

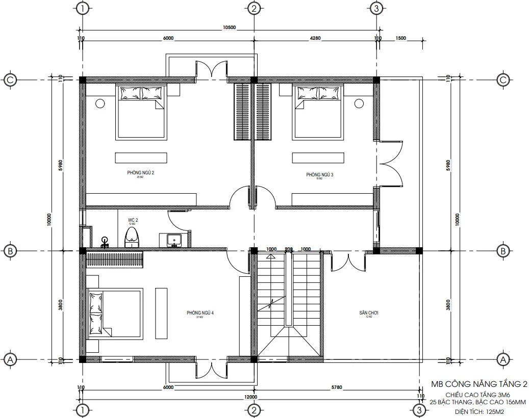
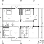
3. Mặt bằng tầng 2: Không gian riêng tư lý tưởng
Nếu tầng 1 là nơi giao lưu, thì tầng 2 của mẫu nhà 2 tầng hiện đại 0155 lại là “thiên đường” nghỉ dưỡng cho các thành viên còn lại. Với diện tích 125m2, tầng này được bố trí tới 3 phòng ngủ và 1 sân chơi cực rộng.
-
Phòng ngủ 2 (25m2): Đây chính là phòng Master. Diện tích cực lớn cho phép bạn tích hợp cả phòng thay đồ bên trong. Cửa lớn thông ra ban công giúp bạn đón bình minh ngay khi vừa thức dậy.
-
Phòng ngủ 3 & 4 (18m2 – 21m2): Dành cho con cái. Các phòng đều vuông vức, dễ kê đồ nội thất như bàn học, tủ quần áo.
-
Sân chơi (12m2): Đây là khoảng hở cần thiết cho một mẫu nhà 2 tầng hiện đại. Bạn có thể biến nơi này thành khu vườn mini, góc tập gym hoặc đơn giản là nơi ngồi nhâm nhi cà phê cuối tuần.

4. Tại sao bạn nên chọn mẫu nhà 2 tầng hiện đại từ Techhome?
Thị trường có rất nhiều đơn vị thiết kế, nhưng tại Techhome chúng mình không chỉ bán bản vẽ, chúng mình bán “giải pháp sống”.
-
Thiết kế cá nhân hóa: Dựa trên mẫu 0155, kiến trúc sư sẽ điều chỉnh theo nhu cầu thực tế và phong thủy của riêng bạn.
-
Tối ưu chi phí: Chúng mình tính toán tỉ mỉ lượng vật tư để tránh lãng phí. Một mẫu nhà 2 tầng hiện đại đẹp là ngôi nhà nằm trong ngân sách của chủ đầu tư.
-
Hỗ trợ kỹ thuật 24/7: Từ khi bắt đầu đặt móng đến khi sơn hoàn thiện, Techhome luôn đồng hành sát sao.

5. Báo giá tham khảo thiết kế và thi công (Cập nhật 2026)
Techhome biết rằng đây là phần bạn quan tâm nhất. Để sở hữu mẫu nhà 2 tầng hiện đại như hình, bạn có thể tham khảo bảng giá sau:
Chi phí thiết kế
-
Gói kiến trúc: 108.000đ / m2
-
Gói nội thất: 150.000đ / m2
Chi phí thi công (Dự toán cho 247m2 sàn)
| Hạng mục | Đơn giá (VNĐ/m2) | Thành tiền (Ước tính) |
| Thi công phần thô & nhân công hoàn thiện | 3.800.000 – 4.200.000 | ~ 950 – 1.05 tỷ |
| Thi công trọn gói (Chìa khóa trao tay) | 6.500.000 – 7.500.000 | ~ 1.6 – 1.85 tỷ |
Lưu ý: Đây chỉ là mức chi phí ước tính. Để nhận được báo giá chính xác và chi tiết nhất cho công trình của bạn, vui lòng liên hệ trực tiếp với chúng tôi. Hoặc để tìm hiểu rõ hơn về tiêu chuẩn vật liệu xây dựng và các yếu tố ảnh hưởng đến chi phí, bạn có thể tham khảo thêm tại các bài viết chuyên sâu về vật liệu xây dựng cao cấp trên Wikipedia.

6. Góc chuyên gia: 3 lưu ý để mẫu nhà 2 tầng hiện đại bền đẹp theo thời gian
Dưới góc độ là người làm nghề lâu năm, mình muốn chia sẻ thêm vài “bí kíp” để căn nhà của bạn không chỉ đẹp trên ảnh mà còn sướng khi ở:
Đừng tiếc tiền cho hệ thống chống thấm : Với thiết kế mái bằng của mẫu nhà 2 tầng hiện đại, việc chống thấm sàn mái và ban công là sống còn. Hãy yêu cầu nhà thầu sử dụng màng chống thấm hoặc các hóa chất chuyên dụng cao cấp nhất có thể.
Ưu tiên cây xanh bản địa : Ở các khu vực bồn hoa quanh nhà (như trong phối cảnh), hãy trồng các loại cây dễ chăm sóc, chịu nắng tốt như hoa giấy, lưỡi hổ hoặc trúc quân tử. Cây xanh sẽ làm “mềm” đi các khối bê tông của mẫu nhà 2 tầng hiện đại.
Hệ thống chiếu sáng thông minh : Đừng ngần ngại lắp hệ thống điện thông minh. Cảm biến ánh sáng ở sân vườn hay điều khiển rèm tự động sẽ nâng tầm trải nghiệm sống trong mẫu nhà 2 tầng hiện đại lên một đẳng cấp mới.

7. Cảm nhận của khách hàng
Anh Thao tại Nam Sang Ninh Bình chia sẻ: “Lúc đầu tôi lo nhà mái bằng sẽ nóng, nhưng khi Techhome tư vấn giải pháp gạch mát và mái tôn lạnh phía trên (che bởi sê-no), nhà cực kỳ mát. Đây thực sự là mẫu nhà 2 tầng hiện đại đáng xây nhất hiện nay.”
Kết luận
Xây nhà là việc trọng đại cả đời. Một mẫu nhà 2 tầng hiện đại không chỉ cần đẹp ở vẻ ngoài mà phải “thông minh” ở công năng và “vững chãi” ở kết cấu. Với mẫu 0155, Techhome tự tin mang đến cho bạn một không gian sống hoàn hảo nhất.
Hy vọng bài viết này đã giúp bạn có cái nhìn chi tiết hơn về mẫu nhà 2 tầng hiện đại 122m2. Nếu bạn vẫn còn băn khoăn về chi phí hay muốn thay đổi vị trí các phòng cho hợp tuổi, đừng ngần ngại nhắn tin hoặc gọi trực tiếp số Hotline Techhome nhé!
Techhome – Kiến tạo tổ ấm, nâng tầm giá trị sống.
🏠 Website: https://nhadeptechhome.vn/
☎️ Hotline: 036.273.2222
📍 Địa chỉ: B1.1 LK18 Ô 3 – KĐT Thanh Hà – Cienco 5 – Thanh Oai- Hà Nội.
