Khám Phá mẫu nhà ống 2 tầng 1 tum hiện đại Tuyệt Đẹp Tại Bắc Ninh – Giải Pháp Không Gian Hoàn Hảo Cho Gia Đình Trẻ

Chào mừng các độc giả thân thiết đã quay trở lại với chuyên mục chia sẻ những không gian sống đầy cảm hứng của Kiến trúc Techhome. Trong bối cảnh quỹ đất tại các khu vực đô thị, thị trấn ngày càng thu hẹp, việc tìm kiếm một thiết kế nhà ở vừa vặn với diện tích lô đất, tối ưu hóa công năng sinh hoạt mà vẫn đảm bảo tính thẩm mỹ cao luôn là niềm trăn trở của rất nhiều chủ đầu tư. Hôm nay, Tôi sẽ đưa các bạn dạo quanh một vòng vùng đất Bắc Ninh trù phú để cùng chiêm ngưỡng một mẫu nhà ống 2 tầng 1 tum hiện đại cực kỳ ấn tượng và mang tính ứng dụng cao.

Đây không chỉ là một khối bê tông vô tri, mà dưới bàn tay nhào nặn của các kiến trúc sư, nó đã trở thành một tổ ấm thực sự, mang đậm dấu ấn cá nhân và giải quyết triệt để bài toán về không gian sống tiện nghi. Nếu bạn đang ấp ủ dự định xây dựng một ngôi nhà khang trang, ngập tràn ánh sáng tự nhiên, chi phí đầu tư vừa phải, thì chắc chắn mẫu nhà ống 2 tầng 1 tum hiện đại này sẽ là một gợi ý “đáng đồng tiền bát gạo”. Hãy cùng Techhome bóc tách từng lớp không gian, từ ngoại thất đến nội thất và những lưu ý sống còn khi thi công nhé!

Phối cảnh mặt tiền mẫu nhà ống 2 tầng 1 tum hiện đại kết hợp ốp gỗ nhựa sang trọng tại Bắc Ninh.
Phối cảnh mặt tiền mẫu nhà ống 2 tầng 1 tum hiện đại kết hợp ốp gỗ nhựa sang trọng tại Bắc Ninh.

1. Thông Tin Tổng Quan Về Dự Án Kiến Trúc

Trước khi đi sâu vào việc mổ xẻ từng đường nét kiến trúc, chúng ta hãy cùng điểm qua những thông tin cơ bản nhất của dự án. Sự minh bạch và rõ ràng ngay từ đầu sẽ giúp bạn dễ dàng hình dung quy mô của công trình. Dự án này được đội ngũ Techhome dành rất nhiều tâm huyết để tư vấn và triển khai.

  • Tên công trình: Nhà ở gia đình.

  • Chủ đầu tư: Chị Giang.

  • Địa điểm xây dựng: Cao Thắng – Bắc Ninh.

  • Đơn vị tư vấn thiết kế: Công ty Cổ phần Kiến trúc và Xây dựng Techhome.

  • Tổng diện tích thiết kế: 195m2.

Qua những thông số trên, có thể thấy đây là một công trình có quy mô vừa phải, cực kỳ phổ biến. Việc lựa chọn xây dựng một mẫu nhà ống 2 tầng 1 tum hiện đại cho lô đất này là một quyết định vô cùng sáng suốt của gia đình chị Giang, giúp cân bằng hoàn hảo giữa nhu cầu sử dụng và ngân sách.

Góc nghiêng mẫu nhà ống 2 tầng 1 tum hiện đại

2. Phân Tích Kiến Trúc Ngoại Thất: Ngôn Ngữ Của Sự Tinh Tế Và Hình Khối Khỏe Khoắn

Nhìn vào các góc phối cảnh 3D mặt tiền, ấn tượng đầu tiên thu hút ánh nhìn chính là cách xử lý hình khối vô cùng thông minh và sắc nét. Đặc trưng của phong cách đương đại là sự chối bỏ những chi tiết phào chỉ, hoa văn rườm rà. Thay vào đó, mẫu nhà ống 2 tầng 1 tum hiện đại này tỏa sáng nhờ những mảng khối hình học phẳng, vuông vức, tạo cảm giác vững chãi và vươn cao mạnh mẽ.

Tone màu trắng chủ đạo được khoác lên mình công trình, đóng vai trò như một lớp nền hoàn hảo giúp bắt sáng và làm ngôi nhà trông rộng rãi hơn so với thực tế. Để xóa tan đi sự đơn điệu, lạnh lẽo của những bức tường phẳng, các kiến trúc sư đã khéo léo lồng ghép vật liệu gỗ nhựa ngoài trời tone màu nâu gỗ ấm áp. Sự xuất hiện của các mảng ốp gỗ tại khu vực trần mái hiên tầng tum và bậu lan can tầng 2 đã trở thành điểm nhấn đắt giá, mang lại vẻ đẹp sang trọng, gần gũi với thiên nhiên cho tổng thể mẫu nhà ống 2 tầng 1 tum hiện đại.

Hệ thống cửa ra vào và cửa sổ sử dụng hoàn toàn chất liệu kính cường lực kết hợp khung nhôm Xingfa cao cấp màu đen tuyền. Lan can ban công cũng đồng bộ với chất liệu kính trong suốt. Quyết định táo bạo này không chỉ tôn lên nét đẹp thời thượng của một mẫu nhà ống 2 tầng 1 tum hiện đại, mà còn mở ra tầm nhìn bao quát, xóa nhòa ranh giới giữa không gian bên trong và cảnh quan bên ngoài, đồng thời đón trọn vẹn nguồn ánh sáng và gió trời tự nhiên. Phía trước nhà, hệ thống cổng chính và tường rào cũng được thiết kế đồng bộ với lam sắt hộp và gạch ốp tường giả đá, tạo nên một lớp bảo vệ an toàn nhưng không hề bí bách. Các mảng xanh mini được điểm xuyết ở ban công các tầng chính là nét chấm phá cuối cùng, thổi bừng sinh khí cho toàn bộ công trình.

Góc nghiêng mẫu nhà ống 2 tầng 1 tum hiện đại

3. Khám Phá Chi Tiết Mặt Bằng Công Năng: Bài Toán Tối Ưu Từng Centimet Trải Nghiệm

Cái tài của người kiến trúc sư không chỉ nằm ở việc vẽ nên một mặt tiền hào nhoáng, mà cốt lõi là việc sắp xếp, phân bổ công năng bên trong sao cho logic, khoa học và thuận tiện nhất cho nhịp sinh hoạt thường nhật của gia chủ. Cùng Techhome “tham quan” bản vẽ mặt bằng của mẫu nhà ống 2 tầng 1 tum hiện đại này nhé.

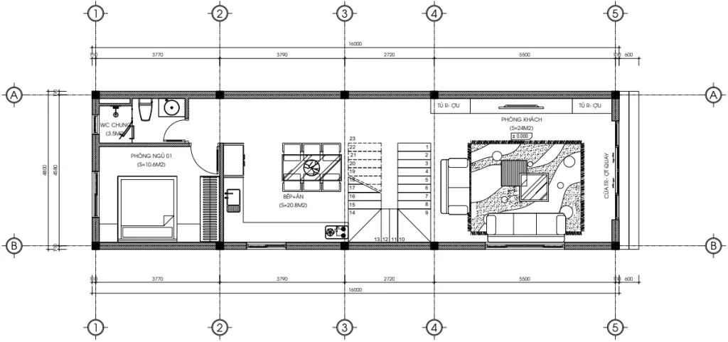
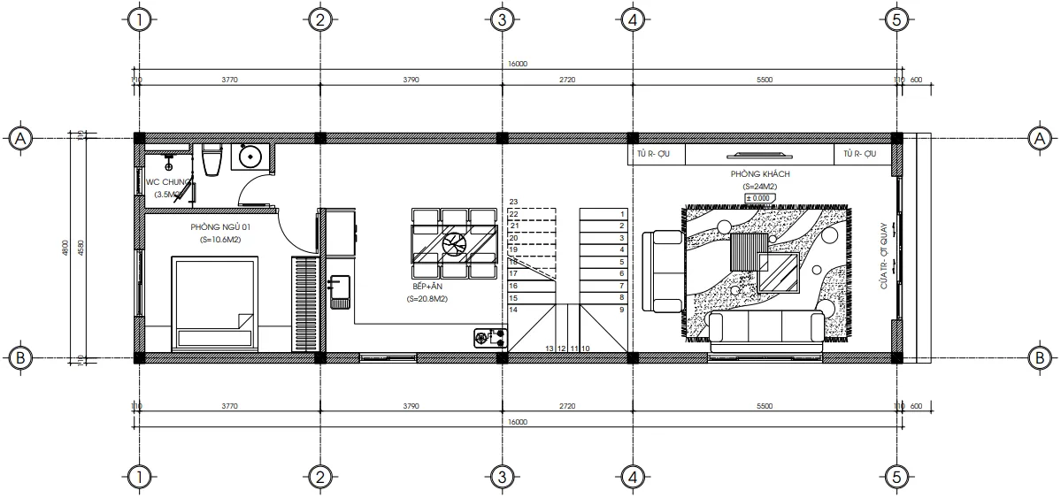
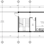
Tầng 1 (Diện tích 77m2): Không Gian Sinh Hoạt Chung Mở Và Kết Nối

Bước qua bậc tam cấp, không gian tầng 1 chào đón chúng ta bằng sự thoáng đãng bất ngờ nhờ chiều cao trần lên tới 3.9m với hệ cầu thang 23 bậc (chiều cao mỗi bậc 169mm).

  • Phòng khách (24m2) : Nằm ngay vị trí “mặt tiền” phía sau cánh cửa chính, diện tích 24m2 là một khoảng không gian cực kỳ lý tưởng để gia đình tiếp đón khách khứa.

  • Bếp và phòng ăn (20.8m2): Không gian này được thiết kế liên thông trực tiếp với phòng khách, không có vách ngăn cứng. Đây là thủ pháp quen thuộc trong các thiết kế mẫu nhà ống 2 tầng 1 tum hiện đại, giúp đánh lừa thị giác, tạo cảm giác nhà sâu và rộng hơn.

  • Phòng ngủ 01 (10.6m2): Được đẩy lùi về phía cuối nhà, đảm bảo sự yên tĩnh tối đa. Căn phòng này đặc biệt phù hợp cho ông bà hoặc người lớn tuổi, giúp hạn chế việc phải di chuyển lên xuống cầu thang.

  • WC Chung (3.5m2): Bố trí kín đáo cạnh phòng ngủ 01, phục vụ tiện lợi cho nhu cầu sinh hoạt tại tầng 1.

Bản vẽ bố trí công năng tầng 1 mẫu nhà ống 2 tầng 1 tum hiện đại diện tích 77m2 của Techhome.
Bản vẽ bố trí công năng tầng 1 mẫu nhà ống 2 tầng 1 tum hiện đại diện tích 77m2 của Techhome.

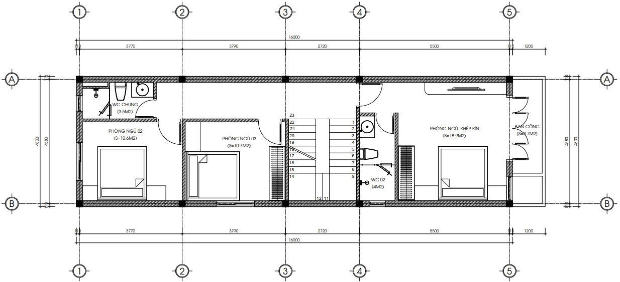
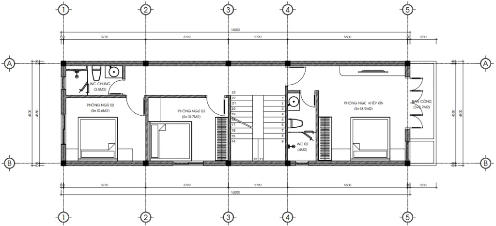
Tầng 2 (Diện tích 82m2): Thế Giới Nghỉ Ngơi Riêng Tư Và Thư Giãn

Men theo cầu thang lên tầng 2 (chiều cao 3.6m, 21 bậc, mỗi bậc cao 171mm), đây là khu vực dành trọn vẹn cho giấc ngủ và sự riêng tư của các thành viên. Việc phân chia phòng ốc ở tầng này trong mẫu nhà ống 2 tầng 1 tum hiện đại đòi hỏi sự tính toán kỹ lưỡng về diện tích.

  • Phòng ngủ khép kín (Master) (18.9m2) : Dành riêng cho vợ chồng chị Giang, căn phòng chiếm vị trí đẹp nhất phía trước nhà. Phòng sở hữu WC 02 (4m2) bên trong và một ban công rộng 3.7m2 cực kỳ “chill” để nhâm nhi tách trà mỗi sáng.

  • Phòng ngủ 02 (10.6m2) và Phòng ngủ 03 (10.7m2): Nằm ở khu vực giữa và cuối nhà. Dù diện tích không quá lớn nhưng với thiết kế vuông vắn, đây là không gian học tập và nghỉ ngơi tiêu chuẩn cho các con trong một mẫu nhà ống 2 tầng 1 tum hiện đại.

  • WC Chung (3.5m2) : Được đặt ở vị trí hành lang giao thông chung, thuận tiện cho cả phòng ngủ 02 và 03 sử dụng.

Bản vẽ bố trí công năng tầng 2 mẫu nhà ống 2 tầng 1 tum hiện đại diện tích 82m2 của Techhome.
Bản vẽ bố trí công năng tầng 2 mẫu nhà ống 2 tầng 1 tum hiện đại diện tích 82m2 của Techhome.

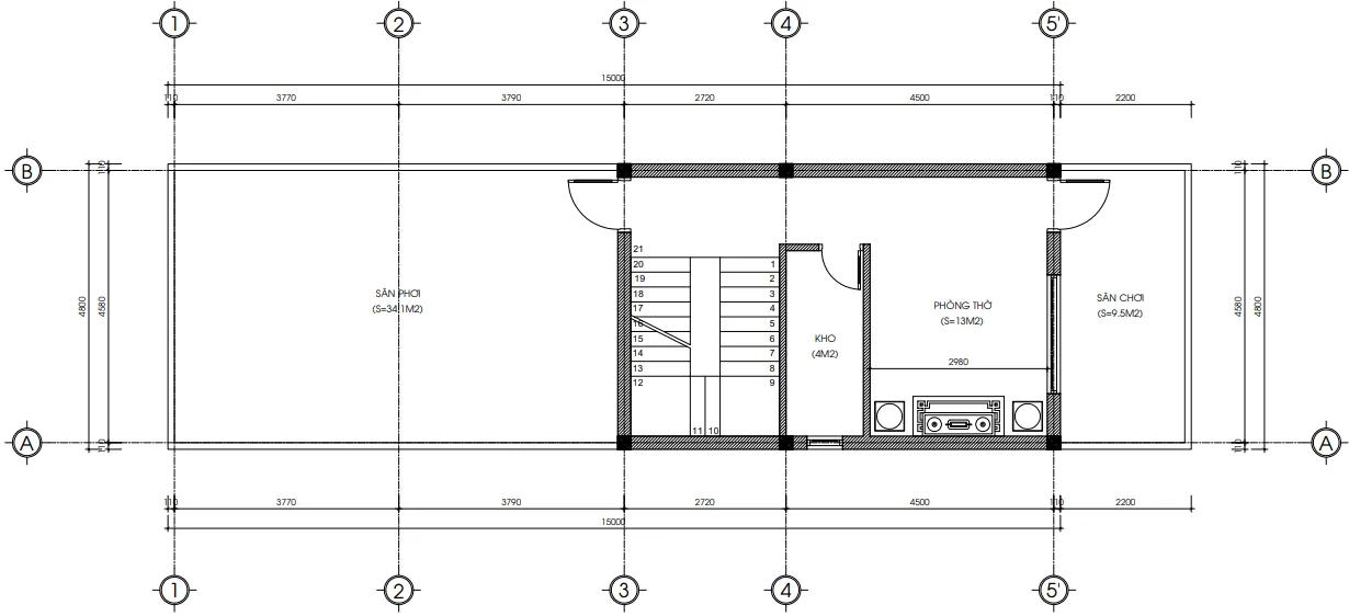
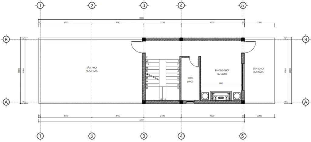
Tầng Tum (Diện tích 36m2): Không Gian Trọn Vẹn Tiện Ích Phụ Trợ

Đây chính là khu vực làm nên sự khác biệt của mẫu nhà ống 2 tầng 1 tum hiện đại so với nhà 2 tầng mái bằng thông thường. Thay vì bỏ trống tầng mái gây lãng phí, kiến trúc sư đã khéo léo tạo thêm một tầng tum nhỏ nhắn gọn gàng.

  • Phòng thờ (13m2): Được đặt ở vị trí cao nhất, trang nghiêm nhất, thể hiện lòng thành kính sâu sắc của con cháu với tổ tiên.

  • Sân chơi (9.5m2): Nằm phía trước phòng thờ, gia chủ có thể tận dụng không gian này làm góc tiểu cảnh, trồng lan, hoặc đặt một bộ bàn trà nhỏ ngắm sao trời. Hệ mái kính che chắn phía trên sân chơi, vừa cản mưa vừa cho phép ánh sáng lọt qua.

  • Sân phơi (34.1m2): Rất rộng rãi, nằm ở phía sau nhà, đảm bảo yếu tố thẩm mỹ cho mặt tiền ngôi nhà khi nhìn từ ngoài vào. 

  • Kho (4m2): Một khoảng không gian nhỏ nhưng cực kỳ có võ để cất giữ những vật dụng ít dùng, giúp một mẫu nhà ống 2 tầng 1 tum hiện đại luôn trong trạng thái gọn gàng, ngăn nắp.

Bản vẽ bố trí công năng tầng tum mẫu nhà ống 2 tầng 1 tum hiện đại diện tích 36m2 của Techhome.
Bản vẽ bố trí công năng tầng tum mẫu nhà ống 2 tầng 1 tum hiện đại diện tích 36m2 của Techhome.

4. Góc Độ Chuyên Gia: Những Gợi Ý Vàng Để Sở Hữu Tổ Ấm Hoàn Hảo

Với nhiều năm kinh nghiệm bám sát các công trình từ bản vẽ ra thực tế tại Kiến trúc Techhome, Tôi xin chia sẻ một vài kinh nghiệm xương máu dành riêng cho những ai đang mê mẩn mẫu nhà ống 2 tầng 1 tum hiện đại:

Thứ nhất, hãy cực kỳ chú trọng vào giải pháp lấy sáng và thông gió. Đặc thù của nhà lô phố là hẹp ngang và sâu. Nếu chỉ phụ thuộc vào mặt tiền, các phòng phía sau sẽ rất bí và tối. Khi thi công một mẫu nhà ống 2 tầng 1 tum hiện đại, Tôi luôn khuyên các gia chủ nên chừa lại một khoảng diện tích nhỏ (khoảng 2-4m2) ở khu vực cầu thang hoặc cuối nhà làm giếng trời. Nó đóng vai trò như “lá phổi” luân chuyển không khí, mang ánh sáng tự nhiên len lỏi vào từng góc tối nhất.

Thứ hai, tối giản hóa nội thất để nhường chỗ cho không gian sống. Đừng cố gắng “nhồi nhét” những bộ bàn ghế gỗ Đồng Kỵ đồ sộ chạm trổ rồng phượng vào một mẫu nhà ống 2 tầng 1 tum hiện đại. Sự lệch pha về phong cách sẽ làm ngôi nhà trở nên chật chội và nặng nề. Hãy ưu tiên các món đồ nội thất thông minh, đa năng, thiết kế phẳng, thẳng. Các gam màu trung tính như be, xám nhạt, pastel phối cùng ánh sáng vàng ấm sẽ tạo nên một hiệu ứng mở rộng không gian cực kỳ diệu kỳ.

Thứ ba, đừng xem nhẹ chống thấm sân thượng và tum. Khu vực sân phơi 34.1m2 và sân chơi tiếp xúc trực tiếp với nắng mưa. Quá trình thi công mẫu nhà ống 2 tầng 1 tum hiện đại bắt buộc phải thực hiện chống thấm nhiều lớp đúng kỹ thuật, sử dụng vật liệu chất lượng cao và đánh độ dốc thu nước chuẩn xác để tránh tình trạng ngấm dột xuống trần tầng 2 sau này.

Tổng thể mẫu nhà ống 2 tầng 1 tum hiện đại nhìn từ trên cao với khoảng sân phơi rộng rãi.
Tổng thể mẫu nhà ống 2 tầng 1 tum hiện đại nhìn từ trên cao với khoảng sân phơi rộng rãi.

5. Báo Giá Khái Toán Tham Khảo Tại Kiến Trúc Techhome

Chắc hẳn sau khi chiêm ngưỡng trọn vẹn vẻ đẹp và công năng, điều bạn đang tò mò nhất là: “Để sở hữu một mẫu nhà ống 2 tầng 1 tum hiện đại như nhà chị Giang thì cần chuẩn bị bao nhiêu tiền?”. Tại Techhome, chúng tôi luôn đề cao tính minh bạch. Chi phí sẽ dao động tùy thuộc vào giá nhân công, giá vật tư tại địa phương từng thời điểm và đặc biệt là chủng loại vật tư hoàn thiện mà gia đình bạn mong muốn (gạch ốp lát, thiết bị vệ sinh, hệ thống nhôm kính…).

Tuy nhiên, với tổng diện tích thiết kế là 195m2, Tôi xin đưa ra một mức khái toán cơ bản trên thị trường hiện nay để bạn dễ dàng lập kế hoạch tài chính:

  • Chi phí thiết kế: Tại Techhome, hồ sơ thiết kế vô cùng chi tiết bao gồm Kiến trúc, Kết cấu, Điện nước, Phối cảnh 3D nội ngoại thất, đi kèm mức giá cực kỳ cạnh tranh và nhiều ưu đãi hỗ trợ giám sát.

  • Chi phí thi công phần thô và nhân công hoàn thiện: Mức giá thường rơi vào khoảng 3.500.000 VNĐ đến 4.000.000 VNĐ/m2.

  • Chi phí thi công trọn gói (Chìa khóa trao tay): Sẽ dao động từ 6.500.000 VNĐ đến 7.500.000 VNĐ/m2. Việc xây dựng trọn gói một mẫu nhà ống 2 tầng 1 tum hiện đại giúp bạn tiết kiệm thời gian, công sức quản lý vật tư và được cam kết bảo hành đồng bộ từ nhà thầu.

Lưu ý: Đây chỉ là mức chi phí ước tính. Để nhận được báo giá chính xác và chi tiết nhất cho công trình của bạn, vui lòng liên hệ trực tiếp với chúng tôi. Hoặc để tìm hiểu rõ hơn về tiêu chuẩn vật liệu xây dựng và các yếu tố ảnh hưởng đến chi phí, bạn có thể tham khảo thêm tại các bài viết chuyên sâu về vật liệu xây dựng cao cấp trên Wikipedia.

Tổng thể mặt sau mẫu nhà ống 2 tầng 1 tum hiện đại

Lời Kết

Hành trình xây dựng một tổ ấm chưa bao giờ là điều dễ dàng, nó đòi hỏi sự cân nhắc kỹ lưỡng từ ngân sách, thẩm mỹ cho đến nếp sống sinh hoạt. Bản vẽ của gia đình chị Giang tại Cao Thắng, Bắc Ninh là một minh chứng hoàn hảo cho một mẫu nhà ống 2 tầng 1 tum hiện đại vừa đẹp mắt, vừa khoa học, lại tiết kiệm chi phí. Techhome tự hào là người bạn đồng hành, biến những đường nét trên giấy thành không gian sống thực thụ, bền vững với thời gian.

CÔNG TY CỔ PHẦN KIẾN TRÚC VÀ XÂY DỰNG TECHHOME

🏠 Website: https://nhadeptechhome.vn/

☎️ Hotline: 036.273.2222

📍 Địa chỉ: B1.1 LK18 Ô 3 – KĐT Thanh Hà – Cienco 5 – Thanh Oai- Hà Nội.

Để lại một bình luận

Email của bạn sẽ không được hiển thị công khai. Các trường bắt buộc được đánh dấu *

    Vui lòng nhấn nút YÊU CẦU TƯ VẤN và đợi 1 - 2 giây đến khi thấy thông báo thành công

    YÊU CẦU TƯ VẤN