Xây nhà chưa bao giờ là một quyết định dễ dàng, nhất là khi bạn muốn ngôi nhà đó vừa phải khác biệt, vừa phải tiện dụng mà lại không bị “lỗi mốt” sau vài năm. Hôm nay, Techhome xin chia sẻ với các bạn một câu chuyện thực tế về công trình của anh Bảo tại Phú Thọ. Đây là một mẫu nhà ống 2 tầng 1 tum hiện đại điển hình cho xu hướng kiến trúc 2026 – nơi những đường cong lên ngôi để phá vỡ sự thô cứng của nhà phố truyền thống.
1. Kiến trúc ngoại thất: Khi những đường cong biết nói
Nhìn vào phối cảnh mặt tiền, bạn sẽ thấy ngay điểm khác biệt. Không còn là những khối hộp vuông vức, khô khan, đội ngũ kiến trúc sư tại Techhome đã khéo léo đưa vào những chi tiết vòm cong ở ban công và ô cửa.
Điểm nhấn của mẫu nhà ống 2 tầng 1 tum hiện đại này chính là phần trần ban công và sảnh chính được ốp nhựa giả gỗ cao cấp với tông màu ấm. Kết hợp cùng hệ thống đèn downlight, ngôi nhà trở nên lung linh và sang trọng hơn hẳn khi đêm về. Với mặt tiền rộng khoảng 7m, việc sử dụng các mảng xanh ở ban công không chỉ giúp giải nhiệt mà còn tạo nên một “lá phổi nhỏ” cho gia đình anh Bảo.

2. Chi tiết mặt bằng công năng: Tối ưu đến từng centimet
Một mẫu nhà ống 2 tầng 1 tum hiện đại đẹp thôi là chưa đủ, nó phải phục vụ tốt cho cuộc sống hàng ngày. Với tổng diện tích sàn tầng 1 và tầng 2 lên đến 95m² mỗi sàn, chúng tôi đã bố trí không gian cực kỳ khoa học.
Tầng 1: Không gian kết nối gia đình
Tại tầng 1, sự ưu tiên được dành cho các không gian chung:
-
Phòng khách (20m²): Nằm ngay sau sảnh chính, là nơi tiếp khách rộng rãi, thoáng đãng.
-
Phòng bếp + ăn (20m²): Được thiết kế liên thông với phòng khách, tạo cảm giác không gian dài và rộng hơn rất nhiều.
-
Phòng ngủ 01 (13m²): Một căn phòng ấm cúng dành cho người lớn tuổi hoặc khách đến chơi nhà, giúp hạn chế việc phải leo cầu thang.
-
Nhà vệ sinh (3.3m²): Bố trí kín đáo gần cầu thang để tiết kiệm diện tích.
Sự sắp xếp này trong mẫu nhà ống 2 tầng 1 tum hiện đại giúp luồng giao thông trong nhà luôn mạch lạc, tạo cảm giác thoải mái nhất cho các thành viên.

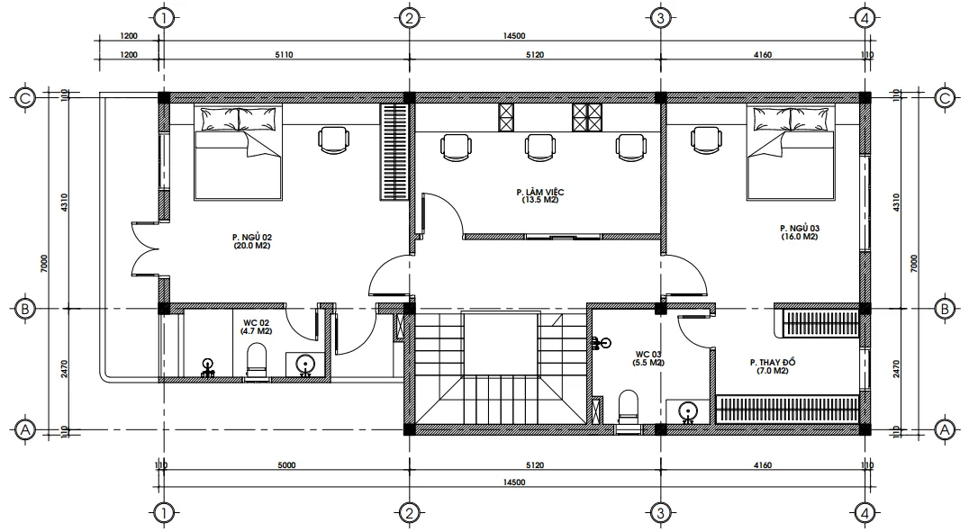
Tầng 2: Thế giới riêng tư đầy phong cách
Lên đến tầng 2, không gian nghỉ ngơi được chú trọng tối đa:
-
Phòng ngủ 02 (20m²): Có vệ sinh khép kín (4.7m²), sở hữu view ban công cực chill với cửa kính lớn.
-
Phòng ngủ 03 (16m²): Diện tích vừa vặn, đủ đầy tiện nghi. Có vệ sinh khép kín 5.5m2 và Phòng thay đồ (7m²): Một điểm cộng tuyệt vời cho các gia chủ yêu thích thời trang và sự ngăn nắp.
-
Phòng làm việc (13.5m²): Trong thời đại “work from home” (làm việc ở nhà), một không gian yên tĩnh là điều không thể thiếu trong mẫu nhà ống 2 tầng 1 tum hiện đại ngày nay.

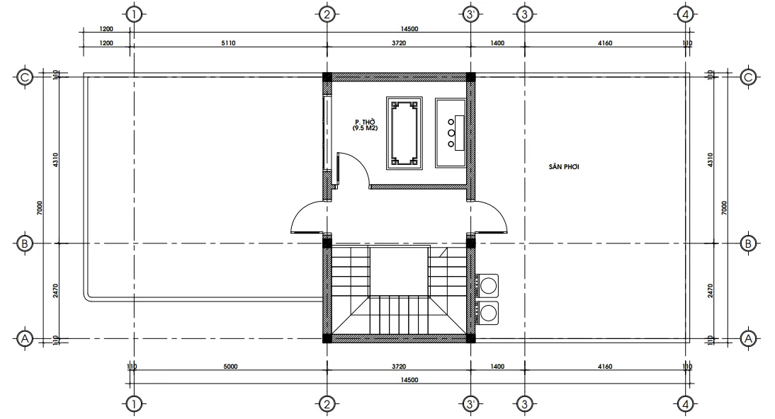
Tầng tum: Nơi giao thoa tâm linh và tiện ích
Tầng tum với diện tích 30m² là điểm kết thúc hoàn hảo cho công trình:
-
Phòng thờ (9.5m²): Được đặt ở vị trí cao nhất, trang trọng và tĩnh mịch.
-
Sân phơi: Rộng rãi, đón nắng gió trực tiếp, rất thuận tiện cho việc giặt giũ và phơi đồ.
Việc lựa chọn thiết kế theo kiểu mẫu nhà ống 2 tầng 1 tum hiện đại giúp gia chủ có thêm diện tích sử dụng mà không tốn quá nhiều chi phí như xây thêm một tầng thật.

3. Tại sao mẫu nhà ống 2 tầng 1 tum hiện đại lại “làm mưa làm gió” tại Phú Thọ?
Phú Thọ là vùng đất có khí hậu đặc trưng, nên khi thiết kế mẫu nhà ống 2 tầng 1 tum hiện đại, Techhome luôn chú trọng đến khả năng chống nóng và thoát nước. Hệ mái bằng kết hợp tum giúp ngôi nhà thoát nhiệt nhanh, đồng thời tận dụng được khoảng sân thượng để trồng cây, làm vườn rau sạch.
Hơn nữa, phong cách kiến trúc hiện đại tối giản (Minimalism) của mẫu nhà ống 2 tầng 1 tum hiện đại giúp giảm bớt các chi tiết phào chỉ rườm rà, từ đó giảm chi phí nhân công và thời gian thi công nhưng vẫn đảm bảo được vẻ ngoài thời thượng.
4. Báo giá thi công mẫu nhà ống 2 tầng 1 tum hiện đại (Tham khảo 2026)
Techhome luôn minh bạch trong vấn đề tài chính để bạn dễ dàng dự toán. Dưới đây là mức giá thực tế dựa trên mặt bằng giá vật liệu và nhân công hiện tại:
| Hạng mục | Đơn giá (VNĐ/m²) | Ghi chú |
| Thiết kế kiến trúc & kết cấu | 108.000 |
Bao gồm hồ sơ thi công, phối cảnh 3D. |
| Xây dựng phần thô | 3.800.000 – 4.200.000 | Bao gồm nhân công và vật tư thô (gạch, cát, đá, xi măng…). |
| Thi công trọn gói (Chìa khóa trao tay) | 6.500.000 – 8.000.000 | Tùy vào mức độ cao cấp của vật liệu hoàn thiện. |
Lưu ý: Đây chỉ là mức chi phí ước tính. Để nhận được báo giá chính xác và chi tiết nhất cho công trình của bạn, vui lòng liên hệ trực tiếp với chúng tôi. Hoặc để tìm hiểu rõ hơn về tiêu chuẩn vật liệu xây dựng và các yếu tố ảnh hưởng đến chi phí, bạn có thể tham khảo thêm tại các bài viết chuyên sâu về vật liệu xây dựng cao cấp trên Wikipedia.

5. Techhome – Người bạn đồng hành chân thành
Chúng tôi hiểu rằng, xây nhà là việc cả đời. Với Techhome, mỗi một mẫu nhà ống 2 tầng 1 tum hiện đại được tạo ra đều là sự kết tinh từ tâm huyết của kiến trúc sư và mong muốn của khách hàng. Chúng tôi không chỉ bán bản vẽ, chúng tôi cùng bạn xây dựng tổ ấm.
Dù bạn ở Phú Thọ hay bất cứ đâu, Techhome luôn sẵn sàng lắng nghe và tư vấn tận tình. Đừng ngần ngại để lại tin nhắn hoặc gọi điện cho chúng tôi để biến ý tưởng về một mẫu nhà ống 2 tầng 1 tum hiện đại thành hiện thực nhé!

Kết luận
Mẫu nhà ống 2 tầng 1 tum hiện đại của anh Bảo là một minh chứng rõ nét cho việc: Chỉ cần một chút sáng tạo với những đường cong và sự bố trí mặt bằng thông minh, bạn đã có thể sở hữu một không gian sống đẳng cấp. Nếu bạn cũng đang tìm kiếm một thiết kế tương tự, đừng quên ghé thăm website của chúng tôi để cập nhật thêm nhiều mẫu nhà ống 2 tầng 1 tum hiện đại mới nhất.
CÔNG TY CỔ PHẦN KIẾN TRÚC VÀ XÂY DỰNG TECHHOME
🏠 Website: https://nhadeptechhome.vn/
☎️ Hotline: 036.273.2222
📍 Địa chỉ: B1.1 LK18 Ô 3 – KĐT Thanh Hà – Cienco 5 – Thanh Oai- Hà Nội.


