Bạn đang sở hữu một mảnh đất rộng và muốn xây dựng một không gian sống vừa sang trọng, vừa tối giản nhưng phải đầy đủ tiện nghi? Mẫu nhà 2 tầng mái bằng hiện đại chính là từ khóa đang “làm mưa làm gió” trên các diễn đàn kiến trúc năm 2026. Hôm nay, hãy cùng Kiến trúc TechHome ghé thăm công trình của gia đình anh Hùng tại Đan Phượng, Hà Nội – một ví dụ điển hình cho sự kết hợp hoàn hảo giữa công năng và thẩm mỹ.
1. Câu chuyện về ngôi nhà tại Đan Phượng
Anh Hùng tìm đến Tech Home vào một buổi chiều cuối năm với một trăn trở rất “đời”: “Anh muốn xây nhà để bố mẹ ở dưới quê có chỗ nghỉ ngơi tuổi già, nhưng con cái ở phố về chơi cũng phải thấy thoải mái, hiện đại.” Sau nhiều lần khảo sát thực địa và trao đổi, đội ngũ kiến trúc sư đã tư vấn cho anh mẫu nhà 2 tầng mái bằng hiện đại với tổng diện tích sàn lên đến 238m2.
Tại sao lại là mái bằng? Giữa bối cảnh những ngôi nhà mái Thái, mái Nhật đã quá quen thuộc, anh Hùng muốn một cái gì đó trẻ trung, gọn gàng và bền bỉ với thời gian. Và thế là, phương án 618 ra đời.

2. Phân tích ngoại thất: Khi sự tối giản lên ngôi
Nhìn vào phối cảnh 3D của mẫu nhà 2 tầng mái bằng hiện đại này, bạn sẽ thấy ngay sự thanh thoát. Không có những đường phào chỉ cầu kỳ, ngôi nhà ghi điểm bởi các hình khối vuông vức, khỏe khoắn.
Sự kết hợp vật liệu thông minh
Mặt tiền tầng 1 được ốp đá marble vân mây xám khói, tạo cảm giác vững chãi và sạch sẽ. Tầng 2 lại là sự lên ngôi của các mảng tường ốp gỗ nhựa ngoài trời màu nâu trầm ấm, tạo độ tương phản cực kỳ hút mắt với màu sơn trắng chủ đạo. Đây là cách phối màu cực kỳ “trendy” cho các mẫu nhà 2 tầng mái bằng hiện đại hiện nay.
Hệ thống kính cường lực đón ánh sáng tự nhiên
Điểm nhấn lớn nhất chính là hệ cửa nhôm kính Xingfa bản rộng. Với thiết kế này, mọi ngóc ngách trong nhà đều ngập tràn ánh sáng tự nhiên. Đặc biệt, ở tầng 2, hệ cửa trượt 4 cánh dẫn ra ban công rộng thênh thang, nơi anh Hùng có thể đặt một bộ bàn trà nhỏ để ngắm nhìn cánh đồng Đan Phượng vào mỗi buổi sáng.
Hệ mái bằng – Giải pháp đa năng
Với thiết kế mái bằng, Tech Home không chỉ giải quyết bài toán chống thấm bằng công nghệ mới nhất mà còn tận dụng được không gian. Phía trên mái là nơi đặt hệ thống bồn nước inox và máy nước nóng năng lượng mặt trời, vừa gọn gàng lại vừa tiết kiệm điện năng cho gia chủ.

3. Mặt bằng công năng: Tối ưu đến từng milimet
Một ngôi nhà đẹp mà công năng bất tiện thì chỉ là “vỏ rỗng”. Với mẫu nhà 2 tầng mái bằng hiện đại này, Tech Home đã tính toán kỹ lưỡng dựa trên thói quen sinh hoạt của gia đình anh Hùng.
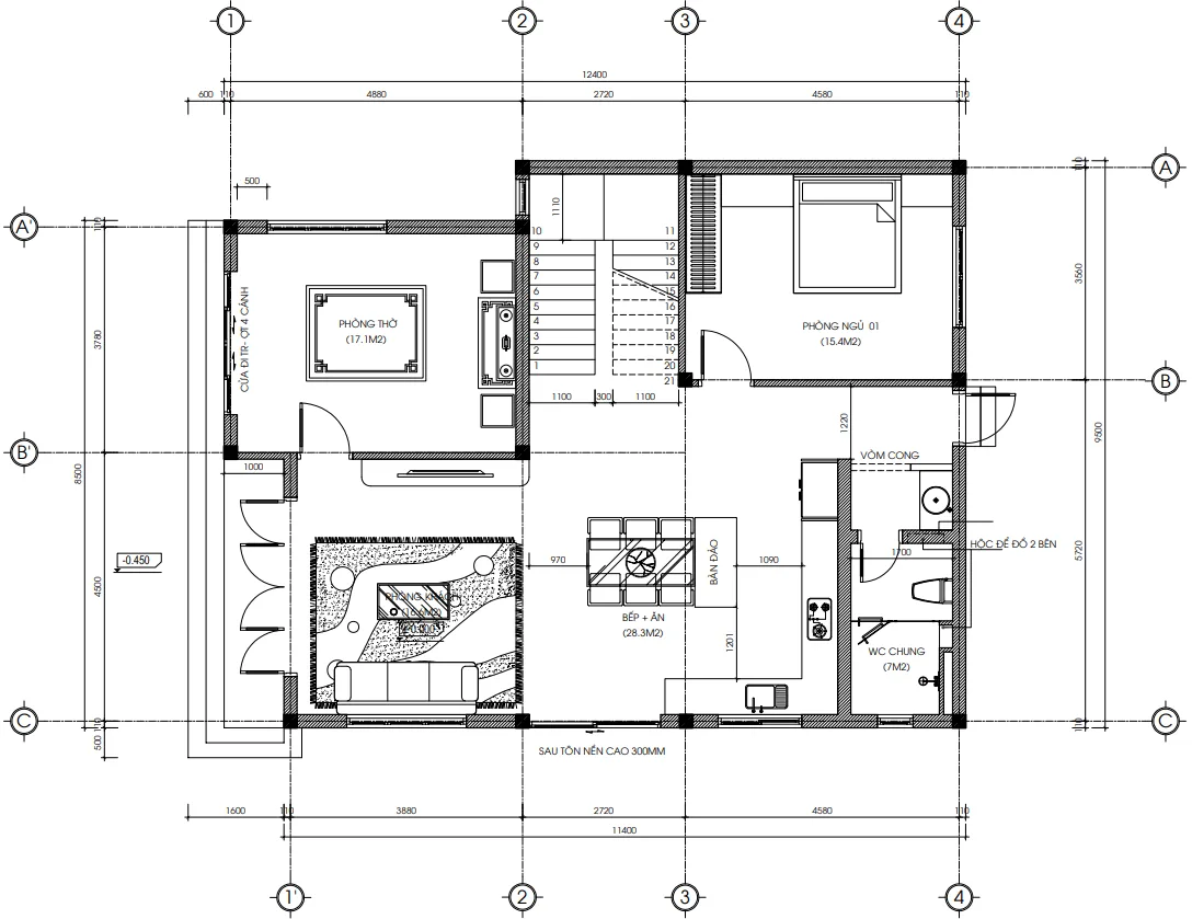
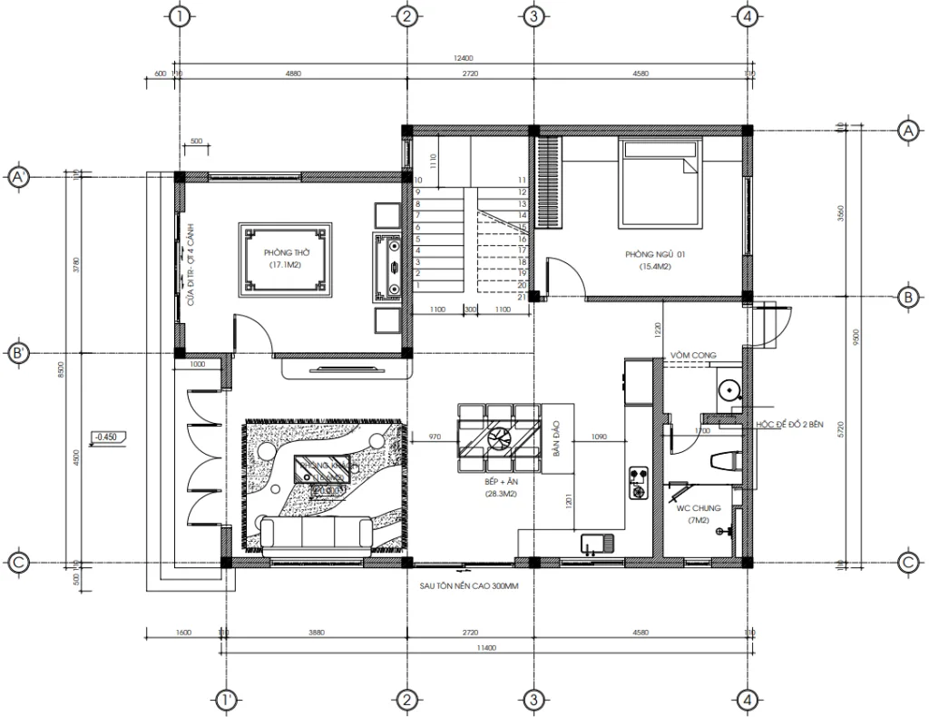
Tầng 1: Không gian kết nối (120m2)
-
Phòng thờ (17.1m2): Được đặt trang trọng ngay tại vị trí đẹp nhất của tầng 1, hướng ra cửa chính. Đây là nét văn hóa truyền thống mà Tech Home luôn tôn trọng trong mọi thiết kế.
-
Phòng bếp + Ăn (28.3m2): Một không gian cực rộng với bàn đảo hiện đại. Anh Hùng chia sẻ: “Bếp là nơi giữ lửa, nên anh muốn nó phải thật thoáng.”
-
Phòng ngủ 01 (15.4m2): Dành riêng cho bố mẹ anh Hùng để các cụ tiện đi lại, không phải leo cầu thang.
-
WC chung (7m2): Thiết kế tách biệt, sạch sẽ.

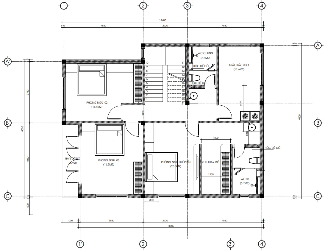
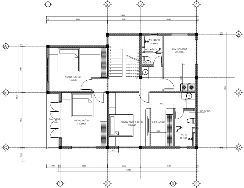
Tầng 2: Sự riêng tư và thư giãn (118m2)
Lên đến tầng 2 của mẫu nhà 2 tầng mái bằng hiện đại, không gian trở nên yên tĩnh hơn:
-
Phòng ngủ Master (23.6m2): Có khu thay đồ riêng và WC khép kín. Đây là không gian hưởng thụ đúng nghĩa của vợ chồng anh Hùng.
-
02 Phòng ngủ phụ (15.4m2 và 16.5m2): Dành cho các con .
-
Khu giặt phơi (11.6m2): Được giấu kín đáo phía sau, đảm bảo mỹ quan cho mặt tiền ngôi nhà.

4. Báo giá xây dựng mẫu nhà 2 tầng mái bằng hiện đại (Tham khảo 2026)
TechHome hiểu rằng tài chính là vấn đề quan trọng nhất. Chúng tôi luôn minh bạch trong mọi khoản chi phí. Dưới đây là bảng dự toán cho mẫu thiết kế của anh Hùng:
| Hạng mục | Đơn giá (VND/m2) | Thành tiền (Tạm tính) |
| Gói thiết kế kiến trúc | 108.000 | ~ 26 triệu |
| Xây dựng phần thô (Vật tư + Nhân công) | 3.800.000 – 4.200.000 | ~ 900 triệu – 1 tỷ |
| Xây dựng trọn gói (Chìa khóa trao tay) | 6.500.000 – 7.500.000 | ~ 1.5 tỷ – 1.8 tỷ |
Lưu ý: Đây chỉ là mức chi phí ước tính. Để nhận được báo giá chính xác và chi tiết nhất cho công trình của bạn, vui lòng liên hệ trực tiếp với chúng tôi. Hoặc để tìm hiểu rõ hơn về tiêu chuẩn vật liệu xây dựng và các yếu tố ảnh hưởng đến chi phí, bạn có thể tham khảo thêm tại các bài viết chuyên sâu về vật liệu xây dựng cao cấp trên Wikipedia.

5. Tại sao nên chọn mẫu nhà 2 tầng mái bằng hiện đại tại TechHome?
Trên thị trường có hàng trăm đơn vị thiết kế, nhưng anh Hùng chọn Tech Home vì sự tận tâm trong từng bản vẽ. Mỗi mẫu nhà 2 tầng mái bằng hiện đại chúng tôi tạo ra đều mang những nét riêng:
-
Thiết kế chuẩn phong thủy: Đội ngũ kiến trúc sư am hiểu về hướng nắng, hướng gió và cung mệnh gia chủ.
-
Hỗ trợ kỹ thuật 24/7: Như trên bản vẽ bạn thấy, số Hotline hỗ trợ kỹ thuật luôn sẵn sàng để thợ xây tại địa phương không bao giờ làm sai ý đồ thiết kế.
-
Hồ sơ chi tiết: Từ bản vẽ mặt bằng đến chi tiết điện nước, kết cấu đều được kiểm duyệt chặt chẽ.
Mẫu nhà 2 tầng mái bằng hiện đại không chỉ là một ngôi nhà, nó là niềm tự hào của gia chủ và là sự khẳng định uy tín của Tech Home.

6. Góc nhìn chuyên gia: Bí quyết để “nhà mái bằng” không bị nóng và thấm
Nhiều người e ngại xây mẫu nhà 2 tầng mái bằng hiện đại vì sợ nóng và thấm dột. Với kinh nghiệm hơn 10 năm, TechHome xin chia sẻ 3 “tuyệt chiêu”:
-
Chống thấm 3 lớp: Chúng tôi sử dụng màng khò nhiệt kết hợp sika chống thấm chuyên dụng, sau đó mới lát gạch chống nóng.
-
Sử dụng gạch mát (Gạch chống nóng): Lớp gạch này giúp hạ nhiệt độ tầng 2 xuống từ 3-5 độ so với ngoài trời.
-
Trồng cây xanh ban công: Như bạn thấy trong ảnh phối cảnh, các bồn cây xanh không chỉ để trang trí mà còn giúp điều hòa không khí cực tốt cho mẫu nhà 2 tầng mái bằng hiện đại.

7. Kết luận
Ngôi nhà của anh Hùng tại Đan Phượng là một minh chứng cho việc: Không cần quá cầu kỳ, chỉ cần sự tinh tế và thấu hiểu, bạn sẽ có một không gian sống lý tưởng. Nếu bạn đang tìm kiếm một mẫu nhà 2 tầng mái bằng hiện đại mang phong cách riêng của mình, đừng ngần ngại nhắn tin cho chúng tôi.
Kiến trúc TechHome – Kiến tạo tổ ấm, nâng tầm giá trị sống.
-
Website: https://nhadeptechhome.vn/
-
Hotline: 036.273.2222
-
Địa chỉ: B1.1 LK18 Ô 3 – KĐT Thanh Hà – Cienco 5 – Thanh Oai- Hà Nội.
