Mẫu Nhà Mái Nhật 2 Tầng Hiện Đại Của Gia Đình Anh Vận Tại Hưng Yên – Vẻ Đẹp Vượt Thời Gian

Giữa những bộn bề của cuộc sống hiện đại, ai trong chúng ta cũng khao khát tìm về một chốn bình yên, nơi bão dừng sau cánh cửa. Câu chuyện về hành trình xây dựng tổ ấm của anh Vận tại Hưng Yên là một minh chứng rõ nét cho ước mơ ấy. Không quá phô trương cầu kỳ như những tòa lâu đài, nhưng cũng không hề đơn điệu, anh Vận đã chọn cho mình một mẫu nhà mái Nhật 2 tầng đầy tinh tế. Đây không chỉ là nơi che mưa che nắng, mà còn là niềm tự hào, là kết tinh của bao năm phấn đấu. Hãy cùng TechHome khám phá chi tiết siêu phẩm kiến trúc đang “làm mưa làm gió” này nhé!


1. Duyên Lành Với Mảnh Đất Hưng Yên Và Yêu Cầu Của Gia Chủ

Chúng tôi gặp anh Vận vào một ngày đẹp trời khi anh đang loay hoay tìm kiếm ý tưởng cho ngôi nhà mới. Mảnh đất Hưng Yên trù phú, con người hiền hòa, anh Vận mong muốn một không gian sống phải thật sự thoáng đãng, tiện nghi nhưng chi phí phải hợp lý. Anh chia sẻ: “Anh thích sự đơn giản, khỏe khoắn. Nhà phải mát về mùa hè, ấm về mùa đông và quan trọng là công năng phải tối ưu cho gia đình đông người.”

Sau khi khảo sát thực địa và lắng nghe tâm tư của anh, đội ngũ kiến trúc sư (KTS) TechHome đã thống nhất phương án thiết kế mẫu nhà mái Nhật 2 tầng. Tại sao lại là mái Nhật? Bởi hệ mái này có độ dốc vừa phải, thoát nước tốt, rất phù hợp với khí hậu nhiệt đới ẩm gió mùa của Việt Nam, lại toát lên vẻ thanh thoát, sang trọng lạ thường.

Phối cảnh mặt tiền mẫu nhà mái Nhật 2 tầng hiện đại, bề thế với hệ cột trụ vững chãi của gia đình anh Vận.
Phối cảnh mặt tiền mẫu nhà mái Nhật 2 tầng hiện đại, bề thế với hệ cột trụ vững chãi của gia đình anh Vận.

2. Vẻ Đẹp Ngoại Thất: Bản Hòa Ca Của Màu Sắc Và Hình Khối

Nhìn vào phối cảnh mặt tiền, bạn sẽ bị thu hút ngay bởi sự bề thế nhưng vô cùng hài hòa. Mẫu nhà mái Nhật 2 tầng của anh Vận khoác lên mình “chiếc áo” màu trắng sứ tinh khôi, điểm xuyết là những mảng tường ốp gạch thẻ màu ghi tạo điểm nhấn.

  • Hệ cột trụ vững chãi: Hai cột sảnh chính vuông vức, chân cột ốp đá rối tự nhiên tạo cảm giác vững chãi, uy nghi nâng đỡ toàn bộ hệ mái sảnh.

  • Hệ cửa gỗ – kính đan xen: Cửa chính sử dụng gỗ Lim Nam Phi chạm khắc tinh xảo, thể hiện sự sang trọng của gia chủ. Trong khi đó, hệ thống cửa sổ sử dụng nhôm kính Xingfa cao cấp giúp đón trọn ánh sáng tự nhiên, mở rộng tầm nhìn ra sân vườn xanh mát.

  • Hệ mái Nhật (Mái lùn): Đây chính là linh hồn của mẫu nhà mái Nhật 2 tầng. Màu ngói xanh than (Blue) không chỉ sạch sẽ, bền màu theo thời gian mà còn cực kỳ hợp mệnh với gia chủ, mang lại tài lộc và may mắn.

Góc nghiêng mẫu nhà mái Nhật 2 tầng

3. “Mổ Xẻ” Công Năng: Bài Toán Diện Tích Được Giải Quyết Triệt Để

Một ngôi nhà đẹp không chỉ ở “nước sơn” mà phải tốt ở “chất gỗ”. Với tổng diện tích sàn sử dụng khoảng 225m2 cho 2 tầng, KTS TechHome đã tính toán tỉ mỉ từng centimet để không có góc chết.

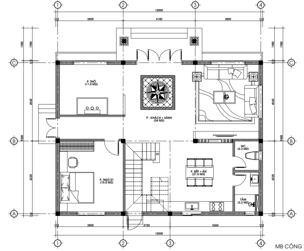
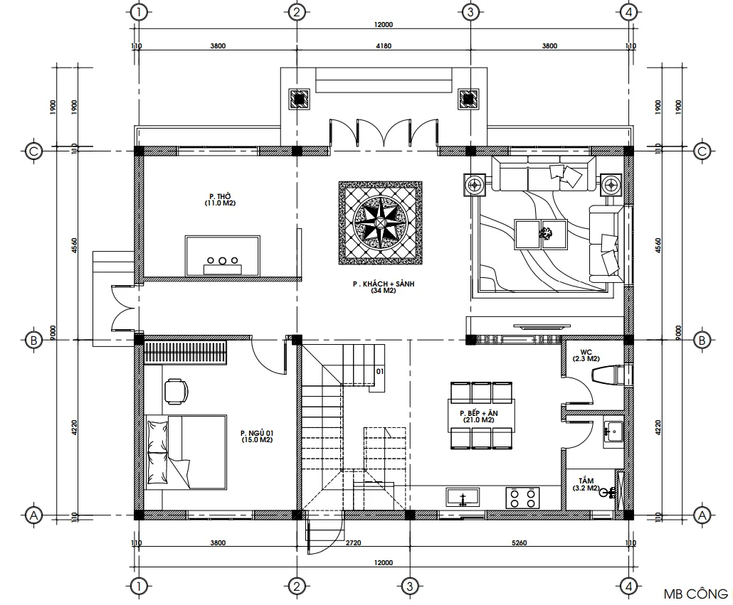
Tầng 1: Không Gian Kết Nối (Diện tích 115m2)

Bước qua sảnh chính là không gian Phòng Khách kết hợp Sảnh đệm cực rộng, lên tới 34m2. Đây là nơi anh Vận dự định sẽ đặt bộ sofa gỗ bề thế và kệ tivi hiện đại. Điểm đặc biệt của mẫu nhà mái Nhật 2 tầng này là sự liên thông không gian, giúp gió lùa từ sảnh chính ra sau nhà cực mát.

  • Phòng Thờ (11m2): Được đặt trang trọng ngay tầng 1, hướng ra mặt tiền. Việc đặt phòng thờ ở tầng 1 rất thuận tiện cho người lớn tuổi trong việc hương khói, thể hiện đạo hiếu của gia đình Việt.

  • Phòng Bếp + Ăn (21m2): Khu vực giữ lửa yêu thương được bố trí riêng biệt nhưng vẫn kết nối với phòng khách qua sảnh thang.

  • Phòng Ngủ 01 (15m2): Dành cho ông bà , với diện tích vừa vặn, ấm cúng.

  • Khu vệ sinh: TechHome đã thiết kế tách biệt khu Tắm (3.2m2) và WC (2.3m2) riêng. Đây là tư duy thiết kế rất hiện đại, giúp 2 người có thể sử dụng cùng lúc mà không ảnh hưởng nhau.

Bản vẽ bố trí công năng tầng 1 mẫu nhà mái Nhật 2 tầng diện tích 115m2
Bản vẽ bố trí công năng tầng 1 mẫu nhà mái Nhật 2 tầng diện tích 115m2

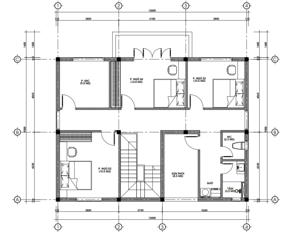
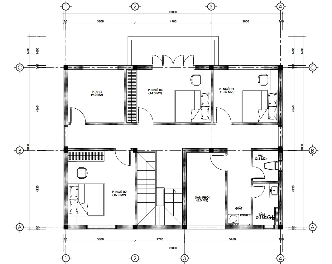
Tầng 2: Không Gian Nghỉ Ngơi Riêng Tư (Diện tích 110m2)

Bước theo 25 bậc cầu thang (theo cung Sinh trong phong thủy), chúng ta lên tới tầng 2. Đây là thế giới riêng của vợ chồng anh Vận và các con.

  • Phòng Sinh Hoạt Chung (9m2): Nơi cả nhà quây quần xem phim, đọc sách trước khi đi ngủ, gắn kết tình cảm gia đình.

  • Hệ thống 3 Phòng Ngủ:

    • Phòng ngủ 02: 15m2.

    • Phòng ngủ 03: 10.5m2.

    • Phòng ngủ 04: 14m2. Các phòng đều có cửa sổ lớn đón gió trời, giúp lưu thông sinh khí.

  • Khu giặt phơi: Sân phơi rộng 8.5m2 được bố trí phía sau, đảm bảo thẩm mỹ cho mặt tiền ngôi nhà.

Rõ ràng, với cách bố trí này, mẫu nhà mái Nhật 2 tầng đã đáp ứng hoàn hảo nhu cầu cho gia đình từ 5-7 thành viên chung sống thoải mái.

Mặt bằng công năng tầng 2 mẫu nhà mái Nhật 2 tầng bố trí 3 phòng ngủ và sân phơi thoáng đãng.
Mặt bằng công năng tầng 2 mẫu nhà mái Nhật 2 tầng bố trí 3 phòng ngủ và sân phơi thoáng đãng.

4. Vì Sao “Mẫu Nhà Mái Nhật 2 Tầng” Lại Trở Thành Xu Hướng Quốc Dân?

Không phải ngẫu nhiên mà khi lướt Facebook hay TikTok, bạn lại thấy tần suất xuất hiện của mẫu nhà mái Nhật 2 tầng dày đặc đến vậy. Là những người làm nghề lâu năm, chúng tôi đúc kết được những lý do sau:

  1. Tính thẩm mỹ cao: Nó lai tạo giữa nét cổ điển của mái Thái và sự hiện đại của mái Bằng. Nó không quá cao vút, đồ sộ nhưng lại có sự cân đối, bề thế vừa đủ.

  2. Tiết kiệm chi phí hơn mái Thái: Mái Nhật thường có độ dốc nhỏ hơn mái Thái (khoảng 25-30 độ), do đó lượng vật liệu (khung kèo, ngói) cũng ít hơn, giúp gia chủ tiết kiệm một khoản kha khá.

  3. Không gian mở: Thiết kế này thường đi kèm với hệ sân vườn, tiểu cảnh, tạo nên hệ sinh thái xanh bao quanh nhà.

  4. Dễ dàng bố trí công năng: Hình khối vuông vức của mẫu nhà mái Nhật 2 tầng giúp việc chia phòng ốc bên trong cực kỳ dễ dàng, không bị méo mó hay góc chết.

Góc nghiêng mẫu nhà mái Nhật 2 tầng

5. Báo Giá Thiết Kế Và Thi Công Mẫu Nhà Mái Nhật 2 Tầng (Cập Nhật 2026)

Đây chắc chắn là phần mà anh Vận cũng như quý bạn đọc quan tâm nhất. “Xây nhà to thế này chắc tốn kém lắm?”. Thực tế, chi phí xây dựng mẫu nhà mái Nhật 2 tầng phụ thuộc rất nhiều vào vật liệu hoàn thiện và địa điểm thi công.

Dưới đây là bảng báo giá tham khảo từ TechHome (Lưu ý: Giá có thể thay đổi tùy thời điểm):

a. Chi phí thiết kế:

Hiện nay, đơn giá thiết kế kiến trúc là 108.000đ/m2.

  • Với tổng diện tích sàn ~225m2, chi phí thiết kế trọn bộ hồ sơ (Kiến trúc, Kết cấu, Điện nước, 3D) sẽ khoảng: 25.000.000đ

b. Chi phí thi công xây dựng (Chìa khóa trao tay):

Hạng mục Đơn giá trung bình (VNĐ/m2) Diễn giải
Thi công phần thô 3.800.000 – 4.200.000 Bao gồm: Nhân công, xi măng, cát đá, sắt thép, gạch xây…
Thi công trọn gói 6.500.000 – 7.500.000 Bao gồm phần thô + hoàn thiện (Gạch ốp lát, sơn bả, trần thạch cao, thiết bị vệ sinh, cửa, điện nước…)

Ví dụ cụ thể cho nhà anh Vận (225m2):

  • Gói vật tư trung bình khá: 225m2 x 6.500.000đ = Khoảng 1 tỷ 462 triệu đồng.

  • Gói vật tư cao cấp (Gỗ tự nhiên, thiết bị nhập khẩu): 225m2 x 7.500.000đ = Khoảng 1 tỷ 687 triệu đồng.

Lưu ý: Mức giá trên chưa bao gồm chi phí san lấp mặt bằng, hàng rào, cổng ngõ và nội thất rời (giường, tủ, bàn ghế). Để có báo giá chính xác nhất cho mẫu nhà mái Nhật 2 tầng của riêng bạn, hãy gọi ngay Hotline: 0364.04.2222. Để tìm hiểu rõ hơn về tiêu chuẩn vật liệu xây dựng và các yếu tố ảnh hưởng đến chi phí, bạn có thể tham khảo thêm tại các bài viết chuyên sâu về vật liệu xây dựng cao cấp trên Wikipedia.

Tổng thể mẫu nhà mái Nhật 2 tầng

6. Những Lưu Ý “Sống Còn” Khi Xây Dựng Mẫu Nhà Mái Nhật 2 Tầng

Là chuyên gia, tôi khuyên bạn đừng bỏ qua những điều này nếu không muốn “tiền mất tật mang”:

  • Tỷ lệ mái: Độ dốc mái Nhật cần được tính toán kỹ. Nếu dốc quá thì thành mái Thái, tốn kém. Nếu bằng quá thì thoát nước kém, dễ dột.

  • Lựa chọn màu sắc: Mẫu nhà mái Nhật 2 tầng đẹp nhất khi phối tối đa 3 màu chủ đạo. Đừng quá tham lam màu sắc sẽ khiến ngôi nhà trở nên rối mắt, “kém sang”.

  • Vật liệu lợp ngói: Nên chọn ngói khung kèo thép nhẹ (Viettruss, Smarttruss…) thay vì dán ngói lên mái bê tông theo cách cũ. Cách này giúp giảm tải trọng cho móng, tản nhiệt tốt hơn và dễ dàng sửa chữa nếu có viên ngói bị vỡ.

  • Giám sát thi công: Dù bản vẽ mẫu nhà mái Nhật 2 tầng có đẹp đến đâu mà thợ thi công ẩu, sai kỹ thuật thì công trình cũng xuống cấp nhanh chóng. Hãy chọn đơn vị thầu uy tín như TechHome.

Tổng thể mẫu nhà mái Nhật 2 tầng lợp ngói màu xanh than (Blue) sang trọng nhìn từ trên cao xuống.
Tổng thể mẫu nhà mái Nhật 2 tầng lợp ngói màu xanh than (Blue) sang trọng nhìn từ trên cao xuống.

7. Quy Trình Làm Việc Tại TechHome

Để ra đời được bản hồ sơ chất lượng như nhà anh Vận, chúng tôi tuân thủ quy trình nghiêm ngặt:

  1. Tiếp nhận thông tin: Lắng nghe mong muốn về mẫu nhà mái Nhật 2 tầng mơ ước.

  2. Khảo sát hiện trạng: Đo đạc đất, hướng nắng, hướng gió, phong thủy.

  3. Lên phương án mặt bằng: Chốt công năng sử dụng (như bản vẽ tầng 1, tầng 2 phía trên).

  4. Dựng phối cảnh 3D: Giúp gia chủ hình dung rõ nét ngôi nhà tương lai.

  5. Triển khai hồ sơ kỹ thuật: Kết cấu, điện, nước chi tiết để thợ dễ dàng thi công.

  6. Bàn giao và giám sát: Đồng hành cùng gia chủ đến ngày tân gia.

8. Cảm Nhận Của Khách Hàng – Niềm Động Lực Của Chúng Tôi

Khi cầm trên tay bộ hồ sơ thiết kế, anh Vận xúc động: “Thực sự TechHome đã vẽ đúng những gì anh tưởng tượng. Nhìn bản 3D mẫu nhà mái Nhật 2 tầng này, anh chỉ muốn động thổ xây ngay lập tức. Cảm ơn các chú KTS rất nhiệt tình, sửa đi sửa lại đến khi anh ưng mới thôi.”

Sự hài lòng của anh Vận tại Hưng Yên chính là thước đo giá trị chuẩn xác nhất cho dịch vụ của chúng tôi. Mỗi ngôi nhà mọc lên không chỉ là gạch vữa, mà là tâm huyết của cả một tập thể.

mẫu nhà mái Nhật 2 tầng

9. Lời Kết

Bạn thấy đấy, xây nhà là việc lớn của đời người. Một quyết định đúng đắn ngay từ khâu thiết kế sẽ giúp bạn tiết kiệm hàng trăm triệu đồng tiền phát sinh và sở hữu không gian sống lý tưởng. Mẫu nhà mái Nhật 2 tầng của gia đình anh Vận là một ví dụ điển hình cho vẻ đẹp hiện đại, tiện nghi và kinh tế.

Nếu bạn cũng đang ấp ủ dự định xây cho mình một mẫu nhà mái Nhật 2 tầng đẹp như tranh vẽ tại Hưng Yên hay bất kỳ tỉnh thành nào trên cả nước, đừng ngần ngại liên hệ với TechHome. Chúng tôi không chỉ vẽ nhà, chúng tôi vẽ nên những giấc mơ!


CÔNG TY CỔ PHẦN KIẾN TRÚC VÀ XÂY DỰNG TECHHOME

Để lại một bình luận

Email của bạn sẽ không được hiển thị công khai. Các trường bắt buộc được đánh dấu *

    Vui lòng nhấn nút YÊU CẦU TƯ VẤN và đợi 1 - 2 giây đến khi thấy thông báo thành công

    YÊU CẦU TƯ VẤN